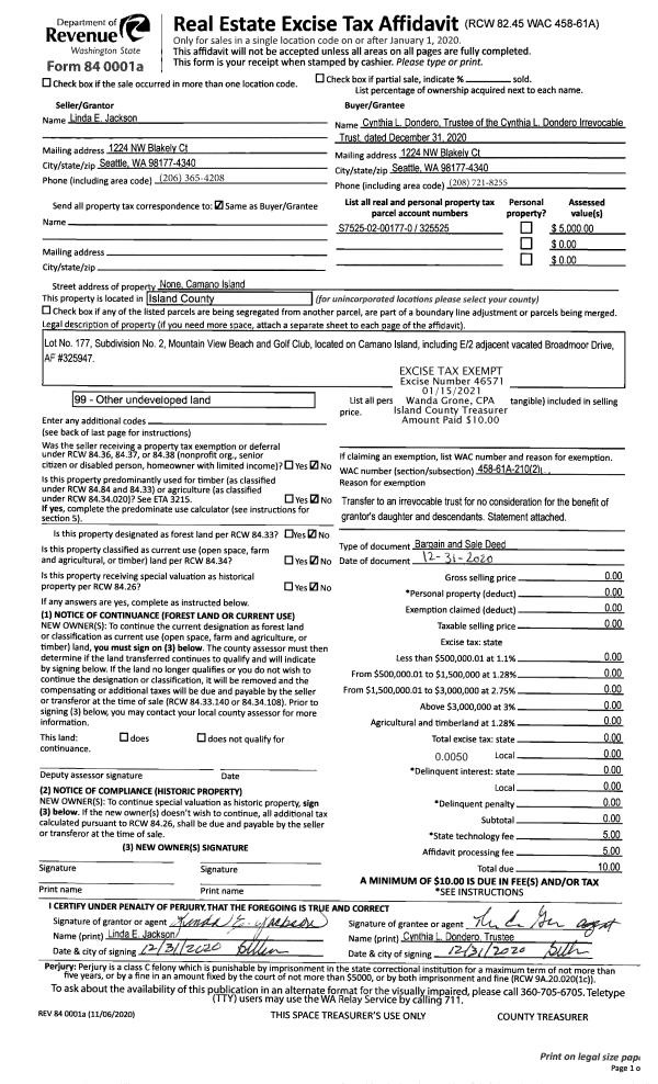
Property
Account |
| Property ID: | 558989 | Abbreviated Legal Description: | USELESS BAY SHORES #1 LOT 14 TGW PT TR A LY N OF SLN LOT 14 EXT WLY TO ORD HITDLN & S OF NLN LOT 14 EXT WLY TO ORD HITDLN |
| Geographic ID: | S8342-00-00014-0 | Agent Code: | |
| Type: | Real | | |
| Tax Area: | 710 - APPRAISER-S Whid Schl Dist, outside Langley, improved & 1 acre or less | Land Use Code | 11 |
| Open Space: | N | DFL | N |
| Historic Property: | N | Remodel Property: | N |
| Multi-Family Redevelopment: | N | | |
| Township: | | Section: | |
| Range: | |
Location |
| Address: | 6308 CHINOOK DR CLINTON, WA 98236 | Mapsco: | |
| Neighborhood: | Cycle 4 | Map ID: | 788 |
| Neighborhood CD: | 4 |
Owner |
| Name: | EIDSNESS TTEE, MARLY K | Owner ID: | 305046 |
| Mailing Address: | 6308 CHINOOK DR CLINTON, WA 98236 | % Ownership: | 100.0000000000% |
| | | Exemptions: | |
Taxes and Assessment Details
Values
| (+) Improvement Homesite Value: | + | $0 | |
| (+) Improvement Non-Homesite Value: | + | $863,956 | |
| (+) Land Homesite Value: | + | $0 | |
| (+) Land Non-Homesite Value: | + | $1,000,000 | |
| (+) Curr Use (HS): | + | $0 | $0 |
| (+) Curr Use (NHS): | + | $0 | $0 |
| | | -------------------------- | |
| (=) Market Value: | = | $1,863,956 | |
| (–) Productivity Loss: | – | $0 | |
| | | -------------------------- | |
| (=) Subtotal: | = | $1,863,956 | |
| (+) Senior Appraised Value: | + | $0 | |
| (+) Non-Senior Appraised Value: | + | $1,863,956 | |
| | | -------------------------- | |
| (=) Total Appraised Value: | = | $1,863,956 | |
| (–) Senior Exemption Loss: | – | $0 | |
| (–) Exemption Loss: | – | $0 | |
| | | -------------------------- | |
| (=) Taxable Value: | = | $1,863,956 | |
Taxing Jurisdiction
| Owner: | EIDSNESS TTEE, MARLY K | | |
| % Ownership: | 100.0000000000% | | |
| Total Value: | $1,863,956 | | |
| Tax Area: | 710 - APPRAISER-S Whid Schl Dist, outside Langley, improved & 1 acre or less |
| CF | Conservation Futures | 0.0316035091 | $1,863,956 | $1,863,956 | $58.91 | | |
| FIRE3 | Fire & Rescue Dist #3 S Whidbey GEN | 1.2004855531 | $1,863,956 | $1,863,956 | $2,237.65 | | |
| HOBOND | Hospital BOND | 0.1910887512 | $1,863,956 | $1,863,956 | $356.18 | | |
| HOGEN | Hospital GEN | 0.3902502903 | $1,863,956 | $1,863,956 | $727.41 | | |
| CE | County Current Expense | 0.3708482477 | $1,863,956 | $1,863,956 | $691.24 | | |
| CR | County Roads | 0.4584763726 | $1,863,956 | $1,863,956 | $854.58 | | |
| ISLANDEMS | Hospital GEN (EMS) | 0.5000000000 | $1,863,956 | $1,863,956 | $931.98 | | |
| LIB | Library Sno-Isle GEN | 0.3153421757 | $1,863,956 | $1,863,956 | $587.78 | | |
| PORTWHID | Port of S Whidbey GEN | 0.1094540357 | $1,863,956 | $1,863,956 | $204.02 | | |
| SCH206BOND | School 206 BOND | 0.3161759235 | $1,863,956 | $1,863,956 | $589.34 | | |
| SCH206MO | School 206 Enrichment | 0.4547169547 | $1,863,956 | $1,863,956 | $847.57 | | |
| ST | State School | 1.3035497053 | $1,863,956 | $1,863,956 | $2,429.76 | | |
| ST2 | State School Part 2 | 0.8169543533 | $1,863,956 | $1,863,956 | $1,522.77 | | |
| SWHIDPRBD | P & R S Whidbey BOND | 0.0152817568 | $1,863,956 | $1,863,956 | $28.48 | | |
| SWHIDPRBD2 | P & R S Whidbey BOND2 | 0.0138911264 | $1,863,956 | $1,863,956 | $25.89 | | |
| SWHIDPRMT | P & R S Whidbey GEN | 0.2053334452 | $1,863,956 | $1,863,956 | $382.73 | | |
| | Total Tax Rate: | 6.6934522006 | | | | | |
| | | | | Taxes w/Current Exemptions: | $12,476.29 | | |
| | | | | Taxes w/o Exemptions: | $12,476.29 | | |
Improvement / Building
| Improvement #1: | RESIDENTIAL | State Code: | Y | 3098.0 sqft | Value: | $863,956 |
| Bathrooms: | 3 | Bedrooms: | 2 | | Ceiling: | TONGUE & GROOVE | Cooling: | HEAT PUMP/CONV/V | | Exterior Wall/Cover: | CEMENT FIBER | Floor Covering: | VINYL/HARDWOOD 60-40 | | Floor Structure: | WOOD W/SUBFLOOR | Foundation: | CONCRETE | | Interior Finish: | DRYWALL PAINT | Plumbing Fixture Cnt: | 18 | | Roof Slope: | 3" IN 12" | Roof Structure/Cover: | CJ ALUMINIUM HEAVY |
|
| | Type | Description | Class CD | Sub Class CD | Year Built | Area |
| | BAS | BASE/MAIN FLOOR | 6 | 0 | 2018 | 1877.8 |
| | OP1 | OPEN PORCH SLAB | 6 | 0 | 2018 | 390.8 |
| | DGR | DETACHED GARAGE | 6 | 0 | 2018 | 576.0 |
| | DWN | DOWNSTAIRS LIVING AREA | 6 | 0 | 2018 | 1220.2 |
| | OWP | OPEN WOOD PORCH W/STEPS | 6 | 0 | 2018 | 369.0 |
| | OWR | OPEN WOOD PORCH W/STEPS/ROOF | 6 | 0 | 2018 | 135.0 |
Sketch
Property Image
Land
| 1 | HB | HIGH BLUFF | 0.0000 | 0.00 | 84.00 | 0.00 | 1.00 | $1,000,000 | $0 |
Roll Value History
| 2026 | N/A | N/A | N/A | N/A | N/A |
| 2025 | $863,956 | $1,000,000 | $0 | $1,863,956 | $1,863,956 |
| 2024 | $850,305 | $950,000 | $0 | $1,800,305 | $1,800,305 |
| 2023 | $857,161 | $950,000 | $0 | $1,807,161 | $1,807,161 |
| 2022 | $782,362 | $950,000 | $0 | $1,732,362 | $1,732,362 |
| 2021 | $685,739 | $625,000 | $0 | $1,310,739 | $1,310,739 |
| 2020 | $718,474 | $600,000 | $0 | $1,318,474 | $1,318,474 |
| 2019 | $653,777 | $750,000 | $0 | $1,403,777 | $1,403,777 |
| 2018 | $160,902 | $300,000 | $0 | $460,902 | $460,902 |
| 2017 | $0 | $300,000 | $0 | $300,000 | $300,000 |
| 2016 | $0 | $300,000 | $0 | $300,000 | $300,000 |
| 2015 | $0 | $300,000 | $0 | $300,000 | $300,000 |
| 2014 | $0 | $300,000 | $0 | $300,000 | $300,000 |
| 2013 | $0 | $248,218 | $0 | $248,218 | $248,218 |
| 2012 | $0 | $248,218 | $0 | $248,218 | $248,218 |
| 2011 | $0 | $248,218 | $0 | $248,218 | $248,218 |
| 2010 | $0 | $248,218 | $0 | $248,218 | $248,218 |
| 2009 | $0 | $298,079 | $0 | $298,079 | $298,079 |
| 2008 | $0 | $406,471 | $0 | $406,471 | $406,471 |
| 2007 | $0 | $406,471 | $0 | $406,471 | $406,471 |
Deed and Sales History
| 1 | 07/15/2022 | WD | Warranty Deed | HADDEN TRUSTEE, JULIA R | EIDSNESS TTEE, MARLY K | | | $0.00 | 53807 | 4548285 |
| 2 | 06/12/2015 | WD | Warranty Deed | EIDSNESS, MARLY KATHRYN | HADDEN TRUSTEE, JULIA R | | | $0.00 | 20164 | 4380878 |
| 3 | 12/19/2014 | WD | Warranty Deed | EIDSNESS, MARLY KATHRYN | EIDSNESS, MARLY KATHRYN | | | $0.00 | 18011 | 4370668 |
| 4 | 12/19/2014 | WD | Warranty Deed | TIMBERLAKE TRUSTEE 6/26 INT, TODD A | EIDSNESS, MARLY KATHRYN | | | $280,000.00 | 17987 | 4370585 |
| 5 | 07/26/2014 | QCD | Quit Claim Deed | TIMBERLAKE TRUSTEE 6/26 INT, TODD A | TIMBERLAKE TRUSTEE 6/26 INT, TODD A | | | $0.00 | 16242 | 4363298 |
| 6 | 07/05/2011 | QCD | Quit Claim Deed | DENOVA, THOMAS A | TIMBERLAKE TRUSTEE 6/26 INT, TODD A | | | $0.00 | 5413 | 4300484 |
| 7 | 12/16/2008 | PRD | Personal Representatives Deed | DENOVA, THOMAS A | DENOVA, THOMAS A | | | $0.00 | 90104 | 0 |
| 8 | 09/01/1996 | QCD | Quit Claim Deed | TIMBERLAKE, WAYNE J | DENOVA, THOMAS A | | | $0.00 | 63361 | 96016507 |
| 9 | 07/01/1995 | QCD | Quit Claim Deed | TIMBERLAKE, WAYNE J | TIMBERLAKE, WAYNE J | | | $0.00 | 52515 | 95011616 |
| 10 | 12/01/1994 | QCD | Quit Claim Deed | TIMBERLAKE, WAYNE J | TIMBERLAKE, WAYNE J | | | $0.00 | 50050 | 95000246 |
| 11 | 01/01/1993 | QCD | Quit Claim Deed | TIMBERLAKE, WAYNE J | TIMBERLAKE, WAYNE J | | | $0.00 | 30204 | 93000989 |
| 12 | 12/01/1992 | QCD | Quit Claim Deed | TIMBERLAKE, WAYNE J | TIMBERLAKE, WAYNE J | | | $0.00 | 25081 | 92025075 |
| 13 | 10/01/1992 | WD | Warranty Deed | MILBY, LOUISE P | TIMBERLAKE, WAYNE J | | | $260,000.00 | 24517 | 92022055 |
| 14 | 06/01/1992 | OTHER | Other - Misc. Documents | MILBY, F M | MILBY, LOUISE P | | | $0.00 | 64886 | 92007751 |
| 15 | 12/01/1989 | OTHER | Other - Misc. Documents | MILBY, F M | MILBY, F M | | | $0.00 | 63449 | 89018839 |
| 16 | 01/01/1900 | OTHER | Other - Misc. Documents | Unknown | MILBY, F M | | | $0.00 | 0 | 0 |
Payout Agreement
| No payout information available.. |