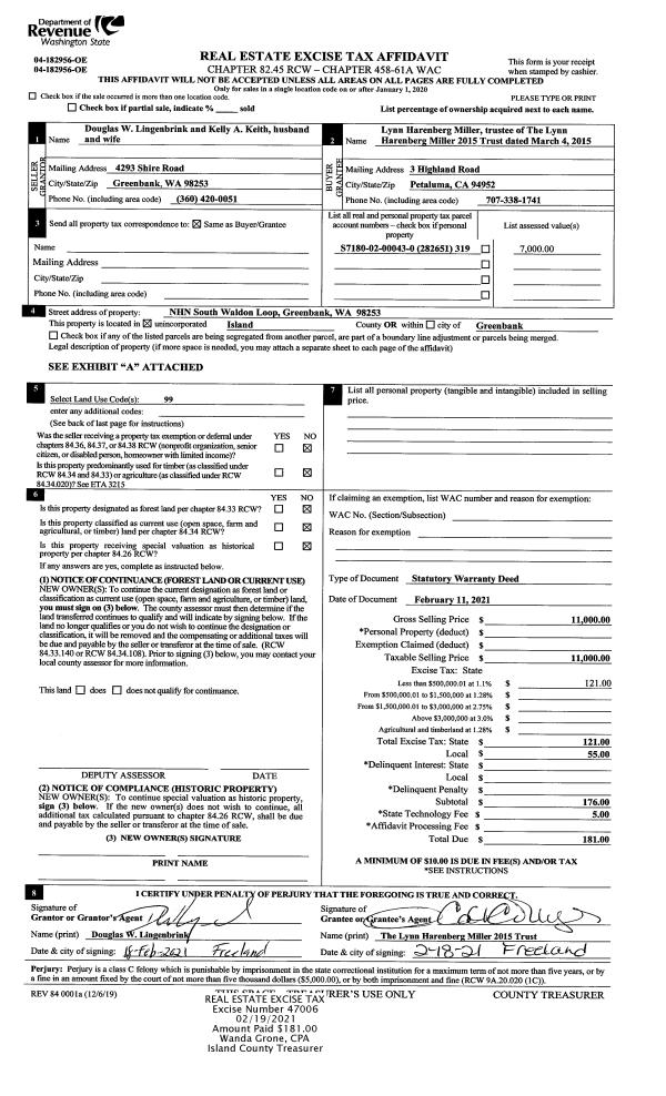
Property
Account |
| Property ID: | 559087 | Abbreviated Legal Description: | USELESS BAY SHORES #1 LOT 24 |
| Geographic ID: | S8342-00-00024-0 | Agent Code: | |
| Type: | Real | | |
| Tax Area: | 710 - APPRAISER-S Whid Schl Dist, outside Langley, improved & 1 acre or less | Land Use Code | 11 |
| Open Space: | N | DFL | N |
| Historic Property: | N | Remodel Property: | N |
| Multi-Family Redevelopment: | N | | |
| Township: | | Section: | |
| Range: | |
Location |
| Address: | 6335 SAHALEE CT CLINTON, WA 98236 | Mapsco: | |
| Neighborhood: | Cycle 4 | Map ID: | 788 |
| Neighborhood CD: | 4 |
Owner |
| Name: | WESLEY, MARCIA A | Owner ID: | 292900 |
| Mailing Address: | MATTHEW W WESLEY 6335 SAHALEE CT CLINTON, WA 98236-9125 | % Ownership: | 100.0000000000% |
| | | Exemptions: | |
Taxes and Assessment Details
Values
| (+) Improvement Homesite Value: | + | $0 | |
| (+) Improvement Non-Homesite Value: | + | $767,991 | |
| (+) Land Homesite Value: | + | $0 | |
| (+) Land Non-Homesite Value: | + | $370,000 | |
| (+) Curr Use (HS): | + | $0 | $0 |
| (+) Curr Use (NHS): | + | $0 | $0 |
| | | -------------------------- | |
| (=) Market Value: | = | $1,137,991 | |
| (–) Productivity Loss: | – | $0 | |
| | | -------------------------- | |
| (=) Subtotal: | = | $1,137,991 | |
| (+) Senior Appraised Value: | + | $0 | |
| (+) Non-Senior Appraised Value: | + | $1,137,991 | |
| | | -------------------------- | |
| (=) Total Appraised Value: | = | $1,137,991 | |
| (–) Senior Exemption Loss: | – | $0 | |
| (–) Exemption Loss: | – | $0 | |
| | | -------------------------- | |
| (=) Taxable Value: | = | $1,137,991 | |
Taxing Jurisdiction
| Owner: | WESLEY, MARCIA A | | |
| % Ownership: | 100.0000000000% | | |
| Total Value: | $1,137,991 | | |
| Tax Area: | 710 - APPRAISER-S Whid Schl Dist, outside Langley, improved & 1 acre or less |
| CF | Conservation Futures | 0.0316035091 | $1,137,991 | $1,137,991 | $35.96 | | |
| FIRE3 | Fire & Rescue Dist #3 S Whidbey GEN | 1.2004855531 | $1,137,991 | $1,137,991 | $1,366.14 | | |
| HOBOND | Hospital BOND | 0.1910887512 | $1,137,991 | $1,137,991 | $217.46 | | |
| HOGEN | Hospital GEN | 0.3902502903 | $1,137,991 | $1,137,991 | $444.10 | | |
| CE | County Current Expense | 0.3708482477 | $1,137,991 | $1,137,991 | $422.02 | | |
| CR | County Roads | 0.4584763726 | $1,137,991 | $1,137,991 | $521.74 | | |
| ISLANDEMS | Hospital GEN (EMS) | 0.5000000000 | $1,137,991 | $1,137,991 | $569.00 | | |
| LIB | Library Sno-Isle GEN | 0.3153421757 | $1,137,991 | $1,137,991 | $358.86 | | |
| PORTWHID | Port of S Whidbey GEN | 0.1094540357 | $1,137,991 | $1,137,991 | $124.56 | | |
| SCH206BOND | School 206 BOND | 0.3161759235 | $1,137,991 | $1,137,991 | $359.81 | | |
| SCH206MO | School 206 Enrichment | 0.4547169547 | $1,137,991 | $1,137,991 | $517.46 | | |
| ST | State School | 1.3035497053 | $1,137,991 | $1,137,991 | $1,483.43 | | |
| ST2 | State School Part 2 | 0.8169543533 | $1,137,991 | $1,137,991 | $929.69 | | |
| SWHIDPRBD | P & R S Whidbey BOND | 0.0152817568 | $1,137,991 | $1,137,991 | $17.39 | | |
| SWHIDPRBD2 | P & R S Whidbey BOND2 | 0.0138911264 | $1,137,991 | $1,137,991 | $15.81 | | |
| SWHIDPRMT | P & R S Whidbey GEN | 0.2053334452 | $1,137,991 | $1,137,991 | $233.67 | | |
| | Total Tax Rate: | 6.6934522006 | | | | | |
| | | | | Taxes w/Current Exemptions: | $7,617.10 | | |
| | | | | Taxes w/o Exemptions: | $7,617.10 | | |
Improvement / Building
| Improvement #1: | RESIDENTIAL | State Code: | Y | 3855.7 sqft | Value: | $767,991 |
| Bathrooms: | 3.5 | Bedrooms: | 3 | | Ceiling: | DRYWALL PAINTED | Cooling: | HEAT PUMP/CONV/V | | Exterior Wall/Cover: | SHINGLE | Floor Covering: | HARDWOOD/CARP 20-80 | | Floor Structure: | WOOD W/SUBFLOOR | Foundation: | CONCRETE | | Interior Finish: | DRYWALL PAINT | Plumbing Fixture Cnt: | 17 | | Roof Slope: | 4" IN 12" | Roof Structure/Cover: | CJ ASPHALT |
|
| | Type | Description | Class CD | Sub Class CD | Year Built | Area |
| | BAS | BASE/MAIN FLOOR | 5 | 0 | 2006 | 2463.2 |
| | BIG | BUILT IN GARAGE | 5 | 0 | 2006 | 928.4 |
| | UTY | STORAGE/UTILITY | 5 | 0 | 2006 | 156.0 |
| | OWP | OPEN WOOD PORCH W/STEPS | 5 | 0 | 2006 | 342.0 |
| | OWC | OPEN WOOD PORCH W/STEPS/ROOF/C | 5 | 0 | 2006 | 89.1 |
| | OWC | OPEN WOOD PORCH W/STEPS/ROOF/C | 5 | 0 | 2006 | 144.0 |
| | DWN | DOWNSTAIRS LIVING AREA | 5 | 0 | 2006 | 1392.5 |
Sketch
Property Image
Land
| 1 | 15 | SQ (12001-21780) | 0.0000 | 0.00 | 0.00 | 0.00 | 1.00 | $370,000 | $0 |
Roll Value History
| 2026 | N/A | N/A | N/A | N/A | N/A |
| 2025 | $767,991 | $370,000 | $0 | $1,137,991 | $1,137,991 |
| 2024 | $776,794 | $360,000 | $0 | $1,136,794 | $1,136,794 |
| 2023 | $785,596 | $350,000 | $0 | $1,135,596 | $1,135,596 |
| 2022 | $717,353 | $320,000 | $0 | $1,037,353 | $1,037,353 |
| 2021 | $629,316 | $280,000 | $0 | $909,316 | $909,316 |
| 2020 | $597,509 | $250,000 | $0 | $847,509 | $847,509 |
| 2019 | $564,589 | $290,000 | $0 | $854,589 | $854,589 |
| 2018 | $566,209 | $250,000 | $0 | $816,209 | $816,209 |
| 2017 | $569,227 | $180,000 | $0 | $749,227 | $749,227 |
| 2016 | $575,696 | $170,000 | $0 | $745,696 | $745,696 |
| 2015 | $582,165 | $170,000 | $0 | $752,165 | $752,165 |
| 2014 | $573,174 | $170,000 | $0 | $743,174 | $743,174 |
| 2013 | $579,297 | $170,000 | $0 | $749,297 | $749,297 |
| 2012 | $585,417 | $170,000 | $0 | $755,417 | $755,417 |
| 2011 | $591,543 | $200,000 | $0 | $791,543 | $791,543 |
| 2010 | $607,442 | $200,000 | $0 | $807,442 | $807,442 |
| 2009 | $632,646 | $252,000 | $0 | $884,646 | $884,646 |
| 2008 | $630,331 | $240,000 | $0 | $870,331 | $870,331 |
| 2007 | $631,097 | $205,000 | $0 | $836,097 | $836,097 |
Deed and Sales History
| 1 | 12/12/2019 | WD | Warranty Deed | DAVENPORT TRUSTEE, HOMER C | WESLEY, MARCIA A | | | $900,000.00 | 41467 | 4477506 |
| 2 | 01/23/2007 | QCD | Quit Claim Deed | DAVENPORT, HOMER C | DAVENPORT TTEE, HOMER C | | | $0.00 | 70392 | 4193443 |
| 3 | 01/03/2007 | WD | Warranty Deed | IZETT, CRAIG | DAVENPORT, HOMER C | | | $859,000.00 | 70143 | 4191670 |
| 4 | 09/16/2003 | WD | Warranty Deed | GROSS, JOHN G | IZETT, CRAIG | | | $48,000.00 | 34218 | 4075763 |
| 5 | 06/01/1985 | REC | Real Estate Contract | MILBY, F M | GROSS, JOHN G | | | $26,000.00 | 51697 | 85006765 |
| 6 | 01/01/1900 | OTHER | Other - Misc. Documents | Unknown | MILBY, F M | | | $0.00 | 0 | 0 |
Payout Agreement
| No payout information available.. |