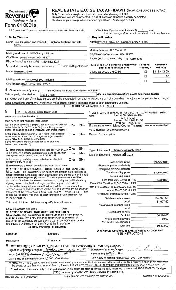
Property
Account |
| Property ID: | 559096 | Abbreviated Legal Description: | USELESS BAY SHORES #1 LOT 25 5 |
| Geographic ID: | S8342-00-00025-0 | Agent Code: | |
| Type: | Real | | |
| Tax Area: | 710 - APPRAISER-S Whid Schl Dist, outside Langley, improved & 1 acre or less | Land Use Code | 11 |
| Open Space: | N | DFL | N |
| Historic Property: | N | Remodel Property: | N |
| Multi-Family Redevelopment: | N | | |
| Township: | | Section: | |
| Range: | |
Location |
| Address: | 6341 SAHALEE CT CLINTON, WA 98236 | Mapsco: | |
| Neighborhood: | Cycle 4 | Map ID: | 788 |
| Neighborhood CD: | 4 |
Owner |
| Name: | SCHUMACHER TRUSTEE, WAYNE R | Owner ID: | 277520 |
| Mailing Address: | DALE M SCHUMACHER TRUSTEE 6341 SAHALEE COURT CLINTON, WA 98236-9125 | % Ownership: | 100.0000000000% |
| | | Exemptions: | |
Taxes and Assessment Details
Values
| (+) Improvement Homesite Value: | + | $0 | |
| (+) Improvement Non-Homesite Value: | + | $431,621 | |
| (+) Land Homesite Value: | + | $0 | |
| (+) Land Non-Homesite Value: | + | $370,000 | |
| (+) Curr Use (HS): | + | $0 | $0 |
| (+) Curr Use (NHS): | + | $0 | $0 |
| | | -------------------------- | |
| (=) Market Value: | = | $801,621 | |
| (–) Productivity Loss: | – | $0 | |
| | | -------------------------- | |
| (=) Subtotal: | = | $801,621 | |
| (+) Senior Appraised Value: | + | $0 | |
| (+) Non-Senior Appraised Value: | + | $801,621 | |
| | | -------------------------- | |
| (=) Total Appraised Value: | = | $801,621 | |
| (–) Senior Exemption Loss: | – | $0 | |
| (–) Exemption Loss: | – | $0 | |
| | | -------------------------- | |
| (=) Taxable Value: | = | $801,621 | |
Taxing Jurisdiction
| Owner: | SCHUMACHER TRUSTEE, WAYNE R | | |
| % Ownership: | 100.0000000000% | | |
| Total Value: | $801,621 | | |
| Tax Area: | 710 - APPRAISER-S Whid Schl Dist, outside Langley, improved & 1 acre or less |
| CF | Conservation Futures | 0.0316035091 | $801,621 | $801,621 | $25.33 | | |
| FIRE3 | Fire & Rescue Dist #3 S Whidbey GEN | 1.2004855531 | $801,621 | $801,621 | $962.33 | | |
| HOBOND | Hospital BOND | 0.1910887512 | $801,621 | $801,621 | $153.18 | | |
| HOGEN | Hospital GEN | 0.3902502903 | $801,621 | $801,621 | $312.83 | | |
| CE | County Current Expense | 0.3708482477 | $801,621 | $801,621 | $297.28 | | |
| CR | County Roads | 0.4584763726 | $801,621 | $801,621 | $367.52 | | |
| ISLANDEMS | Hospital GEN (EMS) | 0.5000000000 | $801,621 | $801,621 | $400.81 | | |
| LIB | Library Sno-Isle GEN | 0.3153421757 | $801,621 | $801,621 | $252.78 | | |
| PORTWHID | Port of S Whidbey GEN | 0.1094540357 | $801,621 | $801,621 | $87.74 | | |
| SCH206BOND | School 206 BOND | 0.3161759235 | $801,621 | $801,621 | $253.45 | | |
| SCH206MO | School 206 Enrichment | 0.4547169547 | $801,621 | $801,621 | $364.51 | | |
| ST | State School | 1.3035497053 | $801,621 | $801,621 | $1,044.95 | | |
| ST2 | State School Part 2 | 0.8169543533 | $801,621 | $801,621 | $654.89 | | |
| SWHIDPRBD | P & R S Whidbey BOND | 0.0152817568 | $801,621 | $801,621 | $12.25 | | |
| SWHIDPRBD2 | P & R S Whidbey BOND2 | 0.0138911264 | $801,621 | $801,621 | $11.14 | | |
| SWHIDPRMT | P & R S Whidbey GEN | 0.2053334452 | $801,621 | $801,621 | $164.60 | | |
| | Total Tax Rate: | 6.6934522006 | | | | | |
| | | | | Taxes w/Current Exemptions: | $5,365.59 | | |
| | | | | Taxes w/o Exemptions: | $5,365.59 | | |
Improvement / Building
| Improvement #1: | RESIDENTIAL | State Code: | Y | 2934.0 sqft | Value: | $431,621 |
| Bathrooms: | 3 | Bedrooms: | 3 | | Ceiling: | DRYWALL PAINTED | Exterior Wall/Cover: | WOOD SIDING | | Floor Covering: | CARPET/VINYL 60-40 | Floor Structure: | WOOD W/SUBFLOOR | | Foundation: | CONCRETE | Heating: | HEAT PUMP | | Interior Finish: | DRYWALL PAINT | Plumbing Fixture Cnt: | 12 | | Roof Slope: | 4" IN 12" | Roof Structure/Cover: | CJ CONCRETE TILE |
|
| | Type | Description | Class CD | Sub Class CD | Year Built | Area |
| | BAS | BASE/MAIN FLOOR | 4 | 0 | 1985 | 1752.0 |
| | BIG | BUILT IN GARAGE | 4 | 0 | 1985 | 768.0 |
| | OWP | OPEN WOOD PORCH W/STEPS | 4 | 0 | 1985 | 428.0 |
| | OWP | OPEN WOOD PORCH W/STEPS | 4 | 0 | 1985 | 150.0 |
| | DWN | DOWNSTAIRS LIVING AREA | 4 | 0 | 1985 | 1182.0 |
Sketch
Property Image
Land
| 1 | 15 | SQ (12001-21780) | 0.0000 | 0.00 | 0.00 | 0.00 | 1.00 | $370,000 | $0 |
Roll Value History
| 2026 | N/A | N/A | N/A | N/A | N/A |
| 2025 | $431,621 | $370,000 | $0 | $801,621 | $801,621 |
| 2024 | $431,800 | $360,000 | $0 | $791,800 | $791,800 |
| 2023 | $437,318 | $350,000 | $0 | $787,318 | $787,318 |
| 2022 | $401,008 | $320,000 | $0 | $721,008 | $721,008 |
| 2021 | $353,034 | $280,000 | $0 | $633,034 | $633,034 |
| 2020 | $361,568 | $250,000 | $0 | $611,568 | $611,568 |
| 2019 | $281,244 | $290,000 | $0 | $571,244 | $571,244 |
| 2018 | $282,050 | $250,000 | $0 | $532,050 | $532,050 |
| 2017 | $271,707 | $180,000 | $0 | $451,707 | $451,707 |
| 2016 | $253,433 | $170,000 | $0 | $423,433 | $423,433 |
| 2015 | $256,683 | $170,000 | $0 | $426,683 | $426,683 |
| 2014 | $237,552 | $170,000 | $0 | $407,552 | $407,552 |
| 2013 | $240,927 | $170,000 | $0 | $410,927 | $410,927 |
| 2012 | $244,303 | $170,000 | $0 | $414,303 | $414,303 |
| 2011 | $247,680 | $200,000 | $0 | $447,680 | $447,680 |
| 2010 | $259,966 | $200,000 | $0 | $459,966 | $459,966 |
| 2009 | $267,889 | $252,000 | $0 | $519,889 | $519,889 |
| 2008 | $270,628 | $240,000 | $0 | $510,628 | $510,628 |
| 2007 | $274,044 | $205,000 | $0 | $479,044 | $479,044 |
Deed and Sales History
| 1 | 10/19/2016 | TRUSTEED | Trustee's Deed | SCHUMACHER, WAYNE R | SCHUMACHER TRUSTEE, WAYNE R | | | $0.00 | 26925 | 4411517 |
| 2 | 09/29/2016 | WD | Warranty Deed | WHITAKER, TERRY H | SCHUMACHER, WAYNE R | | | $488,000.00 | 26451 | 4408806 |
| 3 | 06/13/2000 | WD | Warranty Deed | FERGUSON, THOMAS J | WHITAKER, TERRY H | | | $250,000.00 | 2241 | 20010648 |
| 4 | 07/01/1990 | DECREE | Divorce Decree/Legal Separation | FERGUSON, THOMAS J | FERGUSON, THOMAS J | | | $0.00 | 4292 | 90014160 |
| 5 | 03/01/1983 | WD | Warranty Deed | MILBY, F M | FERGUSON, THOMAS J | | | $26,000.00 | 30848 | 407874 |
Payout Agreement
| No payout information available.. |