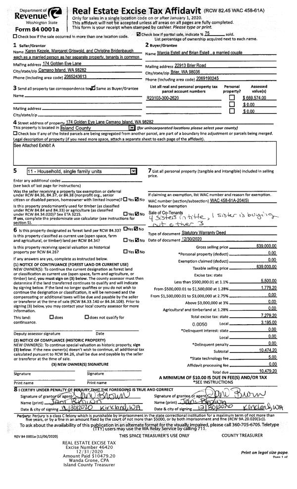
Property
Account |
| Property ID: | 559498 | Abbreviated Legal Description: | BUSH PT LOT 1 SP 82-52.22906.6205-B15 AF#404917 V1 SP P188 UNDIV 1/3 INT IN WELL SITE (LOT 3 OF SP 82-52 SEE 15D03-0) TGW EZ AF#60477 AFF# 410755 |
| Geographic ID: | S6205-00-15D01-0 | Agent Code: | |
| Type: | Real | | |
| Tax Area: | 780 - APPRAISER-S Whid Schl Dist, Special District, improved & less than 1 acre | Land Use Code | 11 |
| Open Space: | N | DFL | N |
| Historic Property: | N | Remodel Property: | N |
| Multi-Family Redevelopment: | N | | |
| Township: | | Section: | |
| Range: | |
Location |
| Address: | 4945 SCURLOCK RD FREELAND, WA 98249 | Mapsco: | |
| Neighborhood: | Cycle 3 | Map ID: | 300 |
| Neighborhood CD: | 3 |
Owner |
| Name: | HARRIS TTEE, LISA KIM | Owner ID: | 275287 |
| Mailing Address: | 2803 E VIA ROTUNDA TUCSON, AZ 85716 | % Ownership: | 100.0000000000% |
| | | Exemptions: | |
Taxes and Assessment Details
Values
| (+) Improvement Homesite Value: | + | $0 | |
| (+) Improvement Non-Homesite Value: | + | $751,702 | |
| (+) Land Homesite Value: | + | $0 | |
| (+) Land Non-Homesite Value: | + | $420,000 | |
| (+) Curr Use (HS): | + | $0 | $0 |
| (+) Curr Use (NHS): | + | $0 | $0 |
| | | -------------------------- | |
| (=) Market Value: | = | $1,171,702 | |
| (–) Productivity Loss: | – | $0 | |
| | | -------------------------- | |
| (=) Subtotal: | = | $1,171,702 | |
| (+) Senior Appraised Value: | + | $0 | |
| (+) Non-Senior Appraised Value: | + | $1,171,702 | |
| | | -------------------------- | |
| (=) Total Appraised Value: | = | $1,171,702 | |
| (–) Senior Exemption Loss: | – | $0 | |
| (–) Exemption Loss: | – | $0 | |
| | | -------------------------- | |
| (=) Taxable Value: | = | $1,171,702 | |
Taxing Jurisdiction
| Owner: | HARRIS TTEE, LISA KIM | | |
| % Ownership: | 100.0000000000% | | |
| Total Value: | $1,171,702 | | |
| Tax Area: | 780 - APPRAISER-S Whid Schl Dist, Special District, improved & less than 1 acre |
| CF | Conservation Futures | 0.0316035091 | $1,171,702 | $1,171,702 | $37.03 | | |
| FIRE3 | Fire & Rescue Dist #3 S Whidbey GEN | 1.2004855531 | $1,171,702 | $1,171,702 | $1,406.61 | | |
| HOBOND | Hospital BOND | 0.1910887512 | $1,171,702 | $1,171,702 | $223.90 | | |
| HOGEN | Hospital GEN | 0.3902502903 | $1,171,702 | $1,171,702 | $457.26 | | |
| CE | County Current Expense | 0.3708482477 | $1,171,702 | $1,171,702 | $434.52 | | |
| CR | County Roads | 0.4584763726 | $1,171,702 | $1,171,702 | $537.20 | | |
| ISLANDEMS | Hospital GEN (EMS) | 0.5000000000 | $1,171,702 | $1,171,702 | $585.85 | | |
| LIB | Library Sno-Isle GEN | 0.3153421757 | $1,171,702 | $1,171,702 | $369.49 | | |
| PORTWHID | Port of S Whidbey GEN | 0.1094540357 | $1,171,702 | $1,171,702 | $128.25 | | |
| SCH206BOND | School 206 BOND | 0.3161759235 | $1,171,702 | $1,171,702 | $370.46 | | |
| SCH206MO | School 206 Enrichment | 0.4547169547 | $1,171,702 | $1,171,702 | $532.79 | | |
| ST | State School | 1.3035497053 | $1,171,702 | $1,171,702 | $1,527.37 | | |
| ST2 | State School Part 2 | 0.8169543533 | $1,171,702 | $1,171,702 | $957.23 | | |
| SWHIDPRBD | P & R S Whidbey BOND | 0.0152817568 | $1,171,702 | $1,171,702 | $17.91 | | |
| SWHIDPRBD2 | P & R S Whidbey BOND2 | 0.0138911264 | $1,171,702 | $1,171,702 | $16.28 | | |
| SWHIDPRMT | P & R S Whidbey GEN | 0.2053334452 | $1,171,702 | $1,171,702 | $240.59 | | |
| | Total Tax Rate: | 6.6934522006 | | | | | |
| | | | | Taxes w/Current Exemptions: | $7,842.74 | | |
| | | | | Taxes w/o Exemptions: | $7,842.74 | | |
Improvement / Building
| Improvement #1: | RESIDENTIAL | State Code: | Y | 2987.7 sqft | Value: | $751,702 |
| Bathrooms: | 3.5 | Bedrooms: | 3 | | Ceiling: | DRYWALL PAINTED | Cooling: | HEAT PUMP/CONV/V | | Exterior Wall/Cover: | WOOD SIDING | Floor Covering: | HARDWOOD/CARP 60-40 | | Floor Structure: | WOOD W/SUBFLOOR | Foundation: | CONCRETE | | Interior Finish: | DRYWALL PAINT | Plumbing Fixture Cnt: | 17 | | Roof Slope: | FLAT | Roof Structure/Cover: | CJ ALUMINIUM HEAVY |
|
| | Type | Description | Class CD | Sub Class CD | Year Built | Area |
| | BAS | BASE/MAIN FLOOR | 5 | 0 | 2018 | 1643.7 |
| | UPS | UPPER STORY | 5 | 0 | 2018 | 768.0 |
| | AGR | ATTACHED GARAGE | 5 | 0 | 2018 | 600.0 |
| | UPS | UPPER STORY | 5 | 0 | 2018 | 576.0 |
| | OWP | OPEN WOOD PORCH W/STEPS | 5 | 0 | 2018 | 336.0 |
Sketch
Property Image
Land
| 1 | 16 | AC (00.51-01.00) | 0.0000 | 0.00 | 0.00 | 0.00 | 1.00 | $420,000 | $0 |
Roll Value History
| 2026 | N/A | N/A | N/A | N/A | N/A |
| 2025 | $751,702 | $420,000 | $0 | $1,171,702 | $1,171,702 |
| 2024 | $757,813 | $390,000 | $0 | $1,147,813 | $1,147,813 |
| 2023 | $763,925 | $390,000 | $0 | $1,153,925 | $1,153,925 |
| 2022 | $697,273 | $350,000 | $0 | $1,047,273 | $1,047,273 |
| 2021 | $611,148 | $250,000 | $0 | $861,148 | $861,148 |
| 2020 | $594,151 | $250,000 | $0 | $844,151 | $844,151 |
| 2019 | $505,623 | $300,000 | $0 | $805,623 | $805,623 |
| 2018 | $254,775 | $250,000 | $0 | $504,775 | $504,775 |
| 2017 | $108,209 | $150,000 | $0 | $258,209 | $258,209 |
| 2016 | $94,860 | $150,000 | $0 | $244,860 | $244,860 |
| 2015 | $96,572 | $150,000 | $0 | $246,572 | $246,572 |
| 2014 | $98,282 | $150,000 | $0 | $248,282 | $248,282 |
| 2013 | $99,994 | $165,750 | $0 | $265,744 | $265,744 |
| 2012 | $101,706 | $165,750 | $0 | $267,456 | $267,456 |
| 2011 | $103,416 | $195,000 | $0 | $298,416 | $298,416 |
| 2010 | $113,840 | $195,000 | $0 | $308,840 | $308,840 |
| 2009 | $119,091 | $200,000 | $0 | $319,091 | $319,091 |
| 2008 | $120,904 | $210,000 | $0 | $330,904 | $330,904 |
| 2007 | $122,555 | $210,000 | $0 | $332,555 | $332,555 |
Deed and Sales History
| 1 | 06/18/2018 | QCD | Quit Claim Deed | HARRIS TTEE, LISA KIM | HARRIS TTEE, LISA KIM | | | $0.00 | 34568 | 4446327 |
| 2 | 05/04/2016 | SPWARDEED | Special Warranty Deed | MCCABE, LOIS | HARRIS TTEE, LISA KIM | | | $265,000.00 | 24407 | 4399795 |
|   | |
| 3 | 01/01/1988 | PRD | Personal Representatives Deed | MCCABE, WILLIAM F | MCCABE, LOIS | | | $0.00 | 80243 | 88001086 |
| 4 | 03/01/1983 | WD | Warranty Deed | SCHENCK, FERRILL J | MCCABE, WILLIAM F | | | $68,000.00 | 30593 | 406835 |
| 5 | 01/01/1900 | OTHER | Other - Misc. Documents | Unknown | SCHENCK, FERRILL J | | | $0.00 | 59828 | 0 |
Payout Agreement
| No payout information available.. |