Property
Account |
| Property ID: | 559826 | Abbreviated Legal Description: | SARATOGA TERRACE LOT 4 |
| Geographic ID: | S8097-00-00004-0 | Agent Code: | |
| Type: | Real | | |
| Tax Area: | 540 - APPRAISER-Stan/Cam Schl Dist, Special Dist, improved & less than 1 acre | Land Use Code | 11 |
| Open Space: | N | DFL | N |
| Historic Property: | N | Remodel Property: | N |
| Multi-Family Redevelopment: | N | | |
| Township: | | Section: | |
| Range: | |
Location |
| Address: | 347 MOANA DR CAMANO ISLAND, WA 98282 | Mapsco: | |
| Neighborhood: | Cycle 5 | Map ID: | 943 |
| Neighborhood CD: | 5 |
Owner |
| Name: | COFFIN, WILEY R | Owner ID: | 298337 |
| Mailing Address: | BRETTE C COFFIN 347 MOANA DR CAMANO ISLAND, WA 98282 | % Ownership: | 100.0000000000% |
| | | Exemptions: | |
Taxes and Assessment Details
Values
| (+) Improvement Homesite Value: | + | $0 | |
| (+) Improvement Non-Homesite Value: | + | $509,482 | |
| (+) Land Homesite Value: | + | $0 | |
| (+) Land Non-Homesite Value: | + | $300,000 | |
| (+) Curr Use (HS): | + | $0 | $0 |
| (+) Curr Use (NHS): | + | $0 | $0 |
| | | -------------------------- | |
| (=) Market Value: | = | $809,482 | |
| (–) Productivity Loss: | – | $0 | |
| | | -------------------------- | |
| (=) Subtotal: | = | $809,482 | |
| (+) Senior Appraised Value: | + | $0 | |
| (+) Non-Senior Appraised Value: | + | $809,482 | |
| | | -------------------------- | |
| (=) Total Appraised Value: | = | $809,482 | |
| (–) Senior Exemption Loss: | – | $0 | |
| (–) Exemption Loss: | – | $0 | |
| | | -------------------------- | |
| (=) Taxable Value: | = | $809,482 | |
Taxing Jurisdiction
| Owner: | COFFIN, WILEY R | | |
| % Ownership: | 100.0000000000% | | |
| Total Value: | $809,482 | | |
| Tax Area: | 540 - APPRAISER-Stan/Cam Schl Dist, Special Dist, improved & less than 1 acre |
| CF | Conservation Futures | 0.0316035091 | $809,482 | $809,482 | $25.58 | | |
| EMS1 | Fire & Rescue Dist #1 Camano GEN (EMS) | 0.3677864386 | $809,482 | $809,482 | $297.72 | | |
| FIRE1 | Fire & Rescue Dist #1 Camano GEN | 1.2502910536 | $809,482 | $809,482 | $1,012.09 | | |
| FIRE1BOND | Fire & Rescue Dist #1 Camano BOND | 0.1570001679 | $809,482 | $809,482 | $127.09 | | |
| CE | County Current Expense | 0.3708482477 | $809,482 | $809,482 | $300.19 | | |
| CR | County Roads | 0.4584763726 | $809,482 | $809,482 | $371.13 | | |
| LCIB | Library Sno-Isle BOND (Camano Island) | 0.0396325772 | $809,482 | $809,482 | $32.08 | | |
| LIB | Library Sno-Isle GEN | 0.3153421757 | $809,482 | $809,482 | $255.26 | | |
| SCH205_401 | School 205-401 Enrichment | 1.2698420524 | $809,482 | $809,482 | $1,027.91 | | |
| SCH205BOND | School 205-401 BOND | 0.9396497583 | $809,482 | $809,482 | $760.63 | | |
| ST | State School | 1.3035497053 | $809,482 | $809,482 | $1,055.20 | | |
| ST2 | State School Part 2 | 0.8169543533 | $809,482 | $809,482 | $661.31 | | |
| | Total Tax Rate: | 7.3209764117 | | | | | |
| | | | | Taxes w/Current Exemptions: | $5,926.19 | | |
| | | | | Taxes w/o Exemptions: | $5,926.19 | | |
Improvement / Building
| Improvement #1: | RESIDENTIAL | State Code: | Y | 2726.0 sqft | Value: | $509,482 |
| Bathrooms: | 3 | Bedrooms: | 3 | | Ceiling: | DRYWALL PAINTED | Exterior Wall/Cover: | CEMENT FIBER | | Floor Covering: | CERAMIC TILE/CPT 40-60 | Floor Structure: | WOOD W/SUBFLOOR | | Foundation: | CONCRETE | Heating: | FHA GAS | | Interior Finish: | DRYWALL PAINT | Plumbing Fixture Cnt: | 13 | | Roof Slope: | 4" IN 12" | Roof Structure/Cover: | CJ ASPHALT |
|
| | Type | Description | Class CD | Sub Class CD | Year Built | Area |
| | BAS | BASE/MAIN FLOOR | 4 | 0 | 2005 | 879.0 |
| | DWN | DOWNSTAIRS LIVING AREA | 4 | 0 | 2005 | 799.0 |
| | OWC | OPEN WOOD PORCH W/STEPS/ROOF/C | 4 | 0 | 2005 | 180.0 |
| | BIG | BUILT IN GARAGE | 4 | 0 | 2005 | 440.0 |
| | UPS | UPPER STORY | 4 | 0 | 2005 | 1048.0 |
Sketch
Property Image
Land
| 1 | 15 | SQ (12001-21780) | 0.0000 | 0.00 | 0.00 | 0.00 | 1.00 | $300,000 | $0 |
Roll Value History
| 2026 | N/A | N/A | N/A | N/A | N/A |
| 2025 | $509,482 | $300,000 | $0 | $809,482 | $809,482 |
| 2024 | $515,390 | $300,000 | $0 | $815,390 | $815,390 |
| 2023 | $521,296 | $300,000 | $0 | $821,296 | $821,296 |
| 2022 | $477,390 | $250,000 | $0 | $727,390 | $727,390 |
| 2021 | $421,596 | $200,000 | $0 | $621,596 | $621,596 |
| 2020 | $326,620 | $150,000 | $0 | $476,620 | $476,620 |
| 2019 | $244,327 | $180,000 | $0 | $424,327 | $424,327 |
| 2018 | $245,030 | $175,000 | $0 | $420,030 | $420,030 |
| 2017 | $246,302 | $125,000 | $0 | $371,302 | $371,302 |
| 2016 | $249,110 | $130,000 | $0 | $379,110 | $379,110 |
| 2015 | $247,686 | $129,600 | $0 | $377,286 | $377,286 |
| 2014 | $250,447 | $129,600 | $0 | $380,047 | $380,047 |
| 2013 | $253,208 | $129,600 | $0 | $382,808 | $382,808 |
| 2012 | $255,967 | $129,600 | $0 | $385,567 | $385,567 |
| 2011 | $258,730 | $162,000 | $0 | $420,730 | $420,730 |
| 2010 | $268,671 | $162,000 | $0 | $430,671 | $430,671 |
| 2009 | $290,593 | $188,500 | $0 | $479,093 | $479,093 |
| 2008 | $293,839 | $188,500 | $0 | $482,339 | $482,339 |
| 2007 | $297,075 | $188,500 | $0 | $485,575 | $485,575 |
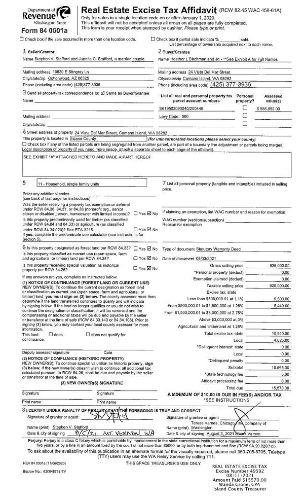
Deed and Sales History
| 1 | 02/24/2021 | WD | Warranty Deed | TISSELL, BARBARA | COFFIN, WILEY R | | | $707,000.00 | 47184 | 4512491 |
| 2 | 06/25/2002 | WD | Warranty Deed | Unknown | TISSELL, BARBARA | | | $69,000.00 | 22544 | 4024511 |
Payout Agreement
| No payout information available.. |