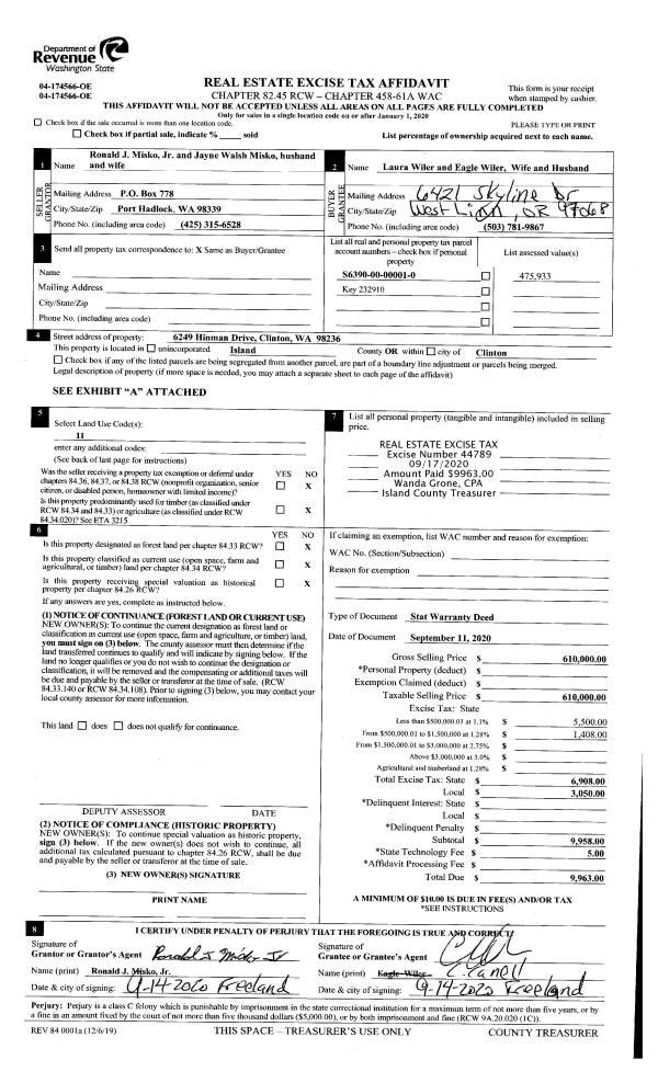
Property
Account |
| Property ID: | 559988 | Abbreviated Legal Description: | SARATOGA TERRACE LOT 20 |
| Geographic ID: | S8097-00-00020-0 | Agent Code: | |
| Type: | Real | | |
| Tax Area: | 540 - APPRAISER-Stan/Cam Schl Dist, Special Dist, improved & less than 1 acre | Land Use Code | 11 |
| Open Space: | N | DFL | N |
| Historic Property: | N | Remodel Property: | N |
| Multi-Family Redevelopment: | N | | |
| Township: | | Section: | |
| Range: | |
Location |
| Address: | 358 MOANA DR CAMANO ISLAND, WA 98282 | Mapsco: | |
| Neighborhood: | Cycle 5 | Map ID: | 943 |
| Neighborhood CD: | 5 |
Owner |
| Name: | SMITH, CHARLES | Owner ID: | 293402 |
| Mailing Address: | JAMIE SMITH 358 MOANA DR CAMANO ISLAND, WA 98282-7678 | % Ownership: | 100.0000000000% |
| | | Exemptions: | |
Taxes and Assessment Details
Values
| (+) Improvement Homesite Value: | + | $0 | |
| (+) Improvement Non-Homesite Value: | + | $726,673 | |
| (+) Land Homesite Value: | + | $0 | |
| (+) Land Non-Homesite Value: | + | $300,000 | |
| (+) Curr Use (HS): | + | $0 | $0 |
| (+) Curr Use (NHS): | + | $0 | $0 |
| | | -------------------------- | |
| (=) Market Value: | = | $1,026,673 | |
| (–) Productivity Loss: | – | $0 | |
| | | -------------------------- | |
| (=) Subtotal: | = | $1,026,673 | |
| (+) Senior Appraised Value: | + | $0 | |
| (+) Non-Senior Appraised Value: | + | $1,026,673 | |
| | | -------------------------- | |
| (=) Total Appraised Value: | = | $1,026,673 | |
| (–) Senior Exemption Loss: | – | $0 | |
| (–) Exemption Loss: | – | $0 | |
| | | -------------------------- | |
| (=) Taxable Value: | = | $1,026,673 | |
Taxing Jurisdiction
| Owner: | SMITH, CHARLES | | |
| % Ownership: | 100.0000000000% | | |
| Total Value: | $1,026,673 | | |
| Tax Area: | 540 - APPRAISER-Stan/Cam Schl Dist, Special Dist, improved & less than 1 acre |
| CF | Conservation Futures | 0.0316035091 | $1,026,673 | $1,026,673 | $32.45 | | |
| EMS1 | Fire & Rescue Dist #1 Camano GEN (EMS) | 0.3677864386 | $1,026,673 | $1,026,673 | $377.60 | | |
| FIRE1 | Fire & Rescue Dist #1 Camano GEN | 1.2502910536 | $1,026,673 | $1,026,673 | $1,283.64 | | |
| FIRE1BOND | Fire & Rescue Dist #1 Camano BOND | 0.1570001679 | $1,026,673 | $1,026,673 | $161.19 | | |
| CE | County Current Expense | 0.3708482477 | $1,026,673 | $1,026,673 | $380.74 | | |
| CR | County Roads | 0.4584763726 | $1,026,673 | $1,026,673 | $470.71 | | |
| LCIB | Library Sno-Isle BOND (Camano Island) | 0.0396325772 | $1,026,673 | $1,026,673 | $40.69 | | |
| LIB | Library Sno-Isle GEN | 0.3153421757 | $1,026,673 | $1,026,673 | $323.75 | | |
| SCH205_401 | School 205-401 Enrichment | 1.2698420524 | $1,026,673 | $1,026,673 | $1,303.71 | | |
| SCH205BOND | School 205-401 BOND | 0.9396497583 | $1,026,673 | $1,026,673 | $964.71 | | |
| ST | State School | 1.3035497053 | $1,026,673 | $1,026,673 | $1,338.32 | | |
| ST2 | State School Part 2 | 0.8169543533 | $1,026,673 | $1,026,673 | $838.74 | | |
| | Total Tax Rate: | 7.3209764117 | | | | | |
| | | | | Taxes w/Current Exemptions: | $7,516.25 | | |
| | | | | Taxes w/o Exemptions: | $7,516.25 | | |
Improvement / Building
| Improvement #1: | RESIDENTIAL | State Code: | Y | 3407.7 sqft | Value: | $726,673 |
| Bathrooms: | 3.25 | Bedrooms: | 3 | | Ceiling: | BEAM PAINTED | Cooling: | HEAT PUMP/CONV/V | | Exterior Wall/Cover: | CEMENT FIBER | Floor Covering: | VINYL 100% | | Floor Structure: | WOOD W/SUBFLOOR | Foundation: | CONCRETE | | Interior Finish: | DRYWALL PAINT | Plumbing Fixture Cnt: | 16 | | Roof Slope: | 3" IN 12" | Roof Structure/Cover: | BEAM ALUMINUM HEAVY |
|
| | Type | Description | Class CD | Sub Class CD | Year Built | Area |
| | BAS | BASE/MAIN FLOOR | 5 | 0 | 2020 | 1978.5 |
| | DWN | DOWNSTAIRS LIVING AREA | 5 | 0 | 2020 | 1429.2 |
| | AGR | ATTACHED GARAGE | 5 | 0 | 2020 | 671.0 |
| | OWP | OPEN WOOD PORCH W/STEPS | 5 | 0 | 2020 | 508.0 |
Sketch
Property Image
Land
| 1 | 15 | SQ (12001-21780) | 0.3560 | 15507.36 | 0.00 | 0.00 | 1.00 | $300,000 | $0 |
Roll Value History
| 2026 | N/A | N/A | N/A | N/A | N/A |
| 2025 | $726,673 | $300,000 | $0 | $1,026,673 | $1,026,673 |
| 2024 | $721,639 | $300,000 | $0 | $1,021,639 | $1,021,639 |
| 2023 | $729,216 | $300,000 | $0 | $1,029,216 | $1,029,216 |
| 2022 | $672,288 | $250,000 | $0 | $922,288 | $922,288 |
| 2021 | $596,539 | $200,000 | $0 | $796,539 | $796,539 |
| 2020 | $58,569 | $110,000 | $0 | $168,569 | $168,569 |
| 2019 | $0 | $110,000 | $0 | $110,000 | $110,000 |
| 2018 | $0 | $95,000 | $0 | $95,000 | $95,000 |
| 2017 | $0 | $95,000 | $0 | $95,000 | $95,000 |
| 2016 | $0 | $105,000 | $0 | $105,000 | $105,000 |
| 2015 | $0 | $109,000 | $0 | $109,000 | $109,000 |
| 2014 | $0 | $109,000 | $0 | $109,000 | $109,000 |
| 2013 | $0 | $109,000 | $0 | $109,000 | $109,000 |
| 2012 | $0 | $109,000 | $0 | $109,000 | $109,000 |
| 2011 | $0 | $109,000 | $0 | $109,000 | $109,000 |
| 2010 | $0 | $109,000 | $0 | $109,000 | $109,000 |
| 2009 | $0 | $127,500 | $0 | $127,500 | $127,500 |
| 2008 | $0 | $127,500 | $0 | $127,500 | $127,500 |
| 2007 | $0 | $127,500 | $0 | $127,500 | $127,500 |
Deed and Sales History
| 1 | 02/01/2020 | WD | Warranty Deed | SAVAGE, BARRY LAWRENCE | SMITH, CHARLES | | | $196,000.00 | 42025 | 4480877 |
| 2 | 12/30/2015 | WD | Warranty Deed | LONG TRUSTEE, JAMES N | SAVAGE, BARRY LAWRENCE | | | $130,000.00 | 22748 | 4392155 |
| 3 | 10/30/2007 | WD | Warranty Deed | LONG, JAMES N | LONG TTEE, JAMES N | | | $0.00 | 81355 | 4229631 |
| 4 | 09/01/1994 | WD | Warranty Deed | SCHMERTZ, JAMES B | LONG, JAMES N | | | $72,475.00 | 44054 | 94020882 |
| 5 | 09/01/1988 | WD | Warranty Deed | MOA, DONALD K | SCHMERTZ, JAMES B | | | $26,500.00 | 83128 | 88011596 |
| 6 | 01/01/1900 | OTHER | Other - Misc. Documents | Unknown | MOA, DONALD K | | | $0.00 | 0 | 0 |
Payout Agreement
| No payout information available.. |