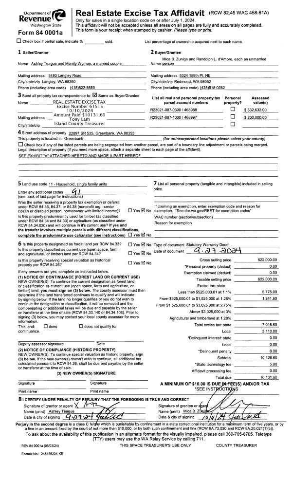
Property
Account |
| Property ID: | 560360 | Abbreviated Legal Description: | BG SECR NE SW N88*W354.68' S13*W496.71' TPB S13*W92.06 N88*W580' TO ML N13*E92.06' S88*E580' TPB TGW & SUB TO EZ (PT LOT 5-A & LOT 5B SP 79-69 AF#393237) |
| Geographic ID: | R03224-078-1900 | Agent Code: | |
| Type: | Real | | |
| Tax Area: | 339 - APPRAISER-Cpvl Schl Dist, Special Dist, vacant & 50 acres or less | Land Use Code | 91 |
| Open Space: | N | DFL | N |
| Historic Property: | N | Remodel Property: | N |
| Multi-Family Redevelopment: | N | | |
| Township: | 32 | Section: | 24 |
| Range: | R0 |
Location |
| Address: | | Mapsco: | |
| Neighborhood: | Area 2 Waterfront Westside Residential | Map ID: | 3 |
| Neighborhood CD: | 2WFW01R |
Owner |
| Name: | HARDAWAY, CHARLES E | Owner ID: | 81342 |
| Mailing Address: | MARGARET A HARDAWAY 21505 SE 255TH CT MAPLE VALLEY, WA 98038-7517 | % Ownership: | 100.0000000000% |
| | | Exemptions: | |
Taxes and Assessment Details
Values
| (+) Improvement Homesite Value: | + | $0 | |
| (+) Improvement Non-Homesite Value: | + | $0 | |
| (+) Land Homesite Value: | + | $0 | |
| (+) Land Non-Homesite Value: | + | $240,000 | |
| (+) Curr Use (HS): | + | $0 | $0 |
| (+) Curr Use (NHS): | + | $0 | $0 |
| | | -------------------------- | |
| (=) Market Value: | = | $240,000 | |
| (–) Productivity Loss: | – | $0 | |
| | | -------------------------- | |
| (=) Subtotal: | = | $240,000 | |
| (+) Senior Appraised Value: | + | $0 | |
| (+) Non-Senior Appraised Value: | + | $240,000 | |
| | | -------------------------- | |
| (=) Total Appraised Value: | = | $240,000 | |
| (–) Senior Exemption Loss: | – | $0 | |
| (–) Exemption Loss: | – | $0 | |
| | | -------------------------- | |
| (=) Taxable Value: | = | $240,000 | |
Taxing Jurisdiction
| Owner: | HARDAWAY, CHARLES E | | |
| % Ownership: | 100.0000000000% | | |
| Total Value: | $240,000 | | |
| Tax Area: | 339 - APPRAISER-Cpvl Schl Dist, Special Dist, vacant & 50 acres or less |
| CF | Conservation Futures | 0.0316035091 | $240,000 | $240,000 | $7.58 | | |
| CEM2 | Cemetery #2 | 0.0095056933 | $240,000 | $240,000 | $2.28 | | |
| HOBOND | Hospital BOND | 0.1910887512 | $240,000 | $240,000 | $45.86 | | |
| HOGEN | Hospital GEN | 0.3902502903 | $240,000 | $240,000 | $93.66 | | |
| CE | County Current Expense | 0.3708482477 | $240,000 | $240,000 | $89.00 | | |
| CR | County Roads | 0.4584763726 | $240,000 | $240,000 | $110.03 | | |
| ISLANDEMS | Hospital GEN (EMS) | 0.5000000000 | $240,000 | $240,000 | $120.00 | | |
| LIB | Library Sno-Isle GEN | 0.3153421757 | $240,000 | $240,000 | $75.68 | | |
| LIBCAP | Library Sno-Isle BOND (Cap Fac Imp Area) | 0.0543427938 | $240,000 | $240,000 | $13.04 | | |
| POCOUP | Port of Coupeville GEN | 0.1093371703 | $240,000 | $240,000 | $26.24 | | |
| POCOUPIDD | Port of Coupeville IDD | 0.3409740022 | $240,000 | $240,000 | $81.83 | | |
| COUPSDTECH | School 204 CP (TECH) | 0.7545480007 | $240,000 | $240,000 | $181.09 | | |
| SCH204MO | School 204 Enrichment | 0.6716186034 | $240,000 | $240,000 | $161.19 | | |
| ST | State School | 1.3035497053 | $240,000 | $240,000 | $312.85 | | |
| ST2 | State School Part 2 | 0.8169543533 | $240,000 | $240,000 | $196.07 | | |
| | Total Tax Rate: | 6.3184396689 | | | | | |
| | | | | Taxes w/Current Exemptions: | $1,516.40 | | |
| | | | | Taxes w/o Exemptions: | $1,516.40 | | |
Improvement / Building
Sketch
| No sketches available for this property. |
Property Image
Land
| 1 | HB | HIGH BLUFF | 1.2000 | 52272.00 | 92.00 | 0.00 | 1.00 | $240,000 | $0 |
Roll Value History
| 2026 | N/A | N/A | N/A | N/A | N/A |
| 2025 | $0 | $240,000 | $0 | $240,000 | $240,000 |
| 2024 | $0 | $240,000 | $0 | $240,000 | $240,000 |
| 2023 | $0 | $240,000 | $0 | $240,000 | $240,000 |
| 2022 | $0 | $240,000 | $0 | $240,000 | $240,000 |
| 2021 | $0 | $220,000 | $0 | $220,000 | $220,000 |
| 2020 | $0 | $220,000 | $0 | $220,000 | $220,000 |
| 2019 | $0 | $220,000 | $0 | $220,000 | $220,000 |
| 2018 | $0 | $200,000 | $0 | $200,000 | $200,000 |
| 2017 | $0 | $200,000 | $0 | $200,000 | $200,000 |
| 2016 | $0 | $200,000 | $0 | $200,000 | $200,000 |
| 2015 | $0 | $200,000 | $0 | $200,000 | $200,000 |
| 2014 | $0 | $200,000 | $0 | $200,000 | $200,000 |
| 2013 | $0 | $173,053 | $0 | $173,053 | $173,053 |
| 2012 | $0 | $173,053 | $0 | $173,053 | $173,053 |
| 2011 | $0 | $173,053 | $0 | $173,053 | $173,053 |
| 2010 | $0 | $173,053 | $0 | $173,053 | $173,053 |
| 2009 | $0 | $209,318 | $0 | $209,318 | $209,318 |
| 2008 | $0 | $243,679 | $0 | $243,679 | $243,679 |
| 2007 | $0 | $239,079 | $0 | $239,079 | $239,079 |
Deed and Sales History
| 1 | 03/17/1999 | BLA | DNU - Boundary Line Adjustment | HARDAWAY, CHARLES E | HARDAWAY, CHARLES E | | | $0.00 | 68191 | 98016053 |
| 2 | 07/31/1998 | ESTSEPPROP | Establish Separate Property | HARDAWAY, CHARLES E | HARDAWAY, CHARLES E | | | $0.00 | 83078 | 98016054 |
| 3 | 09/01/1996 | WD | Warranty Deed | BRITTON, DAVID H | HARDAWAY, CHARLES E | | | $105,000.00 | 63327 | 96016307 |
| 4 | 10/01/1989 | WD | Warranty Deed | CLARK, ROBERT H | BRITTON, DAVID H | | | $37,500.00 | 94864 | 89015763 |
| 5 | 11/01/1988 | WD | Warranty Deed | Unknown | CLARK, ROBERT H | | | $29,500.00 | 84004 | 88014967 |
| 6 | 12/01/1978 | CD | DNU - Correction Deed | Unknown | GRADY, JOHN E | | | $0.00 | 90292 | 346257 |
Payout Agreement
| No payout information available.. |