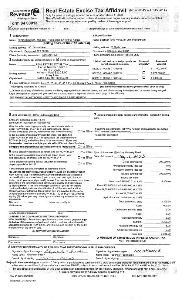
Property
Account |
| Property ID: | 560495 | Abbreviated Legal Description: | LOT 2D - SP 79-72 BG SECR NE SW N88*W354.68' N13*E100.29'TPB N13*E100' N88*W580'TO ML S13*W100' S88*E580'TPB TGW & SUB EZ FR 186 2240 & 161 2190 |
| Geographic ID: | R03224-145-2050 | Agent Code: | |
| Type: | Real | | |
| Tax Area: | 332 - APPRAISER-Cpvl Schl Dist, Special Dist, improved, greater than 1 acre | Land Use Code | 11 |
| Open Space: | N | DFL | N |
| Historic Property: | N | Remodel Property: | N |
| Multi-Family Redevelopment: | N | | |
| Township: | 32 | Section: | 24 |
| Range: | R0 |
Location |
| Address: | 911 OCEAN BLUFF LN COUPEVILLE, WA 98239 | Mapsco: | |
| Neighborhood: | Area 2 Waterfront Westside Residential | Map ID: | 3 |
| Neighborhood CD: | 2WFW01R |
Owner |
| Name: | MARZULLO, RAYMOND L | Owner ID: | 278760 |
| Mailing Address: | KAYE A MARZULLO 911 OCEAN BLUFF LN COUPEVILLE, WA 98239 | % Ownership: | 100.0000000000% |
| | | Exemptions: | |
Taxes and Assessment Details
Values
| (+) Improvement Homesite Value: | + | $0 | |
| (+) Improvement Non-Homesite Value: | + | $1,037,006 | |
| (+) Land Homesite Value: | + | $0 | |
| (+) Land Non-Homesite Value: | + | $525,000 | |
| (+) Curr Use (HS): | + | $0 | $0 |
| (+) Curr Use (NHS): | + | $0 | $0 |
| | | -------------------------- | |
| (=) Market Value: | = | $1,562,006 | |
| (–) Productivity Loss: | – | $0 | |
| | | -------------------------- | |
| (=) Subtotal: | = | $1,562,006 | |
| (+) Senior Appraised Value: | + | $0 | |
| (+) Non-Senior Appraised Value: | + | $1,562,006 | |
| | | -------------------------- | |
| (=) Total Appraised Value: | = | $1,562,006 | |
| (–) Senior Exemption Loss: | – | $0 | |
| (–) Exemption Loss: | – | $0 | |
| | | -------------------------- | |
| (=) Taxable Value: | = | $1,562,006 | |
Taxing Jurisdiction
| Owner: | MARZULLO, RAYMOND L | | |
| % Ownership: | 100.0000000000% | | |
| Total Value: | $1,562,006 | | |
| Tax Area: | 332 - APPRAISER-Cpvl Schl Dist, Special Dist, improved, greater than 1 acre |
| CF | Conservation Futures | 0.0316035091 | $1,562,006 | $1,562,006 | $49.36 | | |
| CEM2 | Cemetery #2 | 0.0095056933 | $1,562,006 | $1,562,006 | $14.85 | | |
| FIRE2 | Fire & Rescue Dist #2 N Whidbey GEN | 0.5475949600 | $1,562,006 | $1,562,006 | $855.35 | | |
| HOBOND | Hospital BOND | 0.1910887512 | $1,562,006 | $1,562,006 | $298.48 | | |
| HOGEN | Hospital GEN | 0.3902502903 | $1,562,006 | $1,562,006 | $609.57 | | |
| CE | County Current Expense | 0.3708482477 | $1,562,006 | $1,562,006 | $579.27 | | |
| CR | County Roads | 0.4584763726 | $1,562,006 | $1,562,006 | $716.14 | | |
| ISLANDEMS | Hospital GEN (EMS) | 0.5000000000 | $1,562,006 | $1,562,006 | $781.00 | | |
| LIB | Library Sno-Isle GEN | 0.3153421757 | $1,562,006 | $1,562,006 | $492.57 | | |
| LIBCAP | Library Sno-Isle BOND (Cap Fac Imp Area) | 0.0543427938 | $1,562,006 | $1,562,006 | $84.88 | | |
| POCOUP | Port of Coupeville GEN | 0.1093371703 | $1,562,006 | $1,562,006 | $170.79 | | |
| POCOUPIDD | Port of Coupeville IDD | 0.3409740022 | $1,562,006 | $1,562,006 | $532.60 | | |
| COUPSDTECH | School 204 CP (TECH) | 0.7545480007 | $1,562,006 | $1,562,006 | $1,178.61 | | |
| SCH204MO | School 204 Enrichment | 0.6716186034 | $1,562,006 | $1,562,006 | $1,049.07 | | |
| ST | State School | 1.3035497053 | $1,562,006 | $1,562,006 | $2,036.15 | | |
| ST2 | State School Part 2 | 0.8169543533 | $1,562,006 | $1,562,006 | $1,276.09 | | |
| | Total Tax Rate: | 6.8660346289 | | | | | |
| | | | | Taxes w/Current Exemptions: | $10,724.78 | | |
| | | | | Taxes w/o Exemptions: | $10,724.78 | | |
Improvement / Building
| Improvement #1: | RESIDENTIAL | State Code: | Y | 4544.1 sqft | Value: | $1,037,006 |
| Bathrooms: | 3.5 | Bedrooms: | 3 | | Ceiling: | DRYWALL PAINTED | Cooling: | FHA AND AC | | Exterior Wall/Cover: | SHINGLE | Floor Covering: | HARDWOOD/CARP 60-40 | | Floor Structure: | WOOD W/SUBFLOOR | Foundation: | CONCRETE | | Interior Finish: | DRYWALL PAINT | Plumbing Fixture Cnt: | 17 | | Roof Slope: | 12" IN 12" | Roof Structure/Cover: | BEAM ALUMINUM HEAVY |
|
| | Type | Description | Class CD | Sub Class CD | Year Built | Area |
| | BAS | BASE/MAIN FLOOR | 5 | 0 | 2005 | 3147.1 |
| | UB8 | BASEMENT UNFINISHED 8" | 5 | 0 | 2005 | 1226.1 |
| | OP1 | OPEN PORCH SLAB | 5 | 0 | 2005 | 918.0 |
| | OP4 | OPEN PORCH W/CEILING-ROOF | 5 | 0 | 2005 | 804.0 |
| | AGR | ATTACHED GARAGE | 5 | 0 | 2005 | 834.0 |
| | BIG | BUILT IN GARAGE | 5 | 0 | 2005 | 784.0 |
| | OWP | OPEN WOOD PORCH W/STEPS | 5 | 0 | 2005 | 748.0 |
| | DWN | DOWNSTAIRS LIVING AREA | 5 | 0 | 2005 | 1397.0 |
| | OCP | OPEN CARPORT | 5 | 0 | 2005 | 192.0 |
| | ENP | ENCLOSED PORCH | 5 | 0 | 2005 | 239.2 |
Sketch
Property Image
Land
| 1 | HB | HIGH BLUFF | 1.3300 | 57934.80 | 95.00 | 0.00 | 1.00 | $525,000 | $0 |
Roll Value History
| 2026 | N/A | N/A | N/A | N/A | N/A |
| 2025 | $1,037,006 | $525,000 | $0 | $1,562,006 | $1,562,006 |
| 2024 | $1,024,840 | $525,000 | $0 | $1,549,840 | $1,549,840 |
| 2023 | $1,037,006 | $500,000 | $0 | $1,537,006 | $1,537,006 |
| 2022 | $950,043 | $450,000 | $0 | $1,400,043 | $1,400,043 |
| 2021 | $835,671 | $350,000 | $0 | $1,185,671 | $1,185,671 |
| 2020 | $815,753 | $295,000 | $0 | $1,110,753 | $1,110,753 |
| 2019 | $729,139 | $300,000 | $0 | $1,029,139 | $1,029,139 |
| 2018 | $772,925 | $250,000 | $0 | $1,022,925 | $1,022,925 |
| 2017 | $612,711 | $250,000 | $0 | $862,711 | $862,711 |
| 2016 | $619,674 | $250,000 | $0 | $869,674 | $869,674 |
| 2015 | $626,637 | $250,000 | $0 | $876,637 | $876,637 |
| 2014 | $633,598 | $250,000 | $0 | $883,598 | $883,598 |
| 2013 | $640,562 | $211,979 | $0 | $852,541 | $852,541 |
| 2012 | $645,296 | $211,979 | $0 | $857,275 | $857,275 |
| 2011 | $652,227 | $211,979 | $0 | $864,206 | $864,206 |
| 2010 | $701,259 | $211,979 | $0 | $913,238 | $913,238 |
| 2009 | $699,548 | $300,452 | $0 | $1,000,000 | $1,000,000 |
| 2008 | $716,148 | $300,452 | $0 | $1,016,600 | $1,016,600 |
| 2007 | $215,219 | $300,452 | $0 | $515,671 | $515,671 |
Deed and Sales History
| 1 | 03/02/2017 | WD | Warranty Deed | OGLE, LARRY E | MARZULLO, RAYMOND L | | | $850,000.00 | 28299 | 4418218 |
| 2 | 07/18/2002 | WD | Warranty Deed | GRADY, JOHN E | OGLE, LARRY E | | | $110,000.00 | 22911 | 4026712 |
| 3 | 05/01/1984 | PACD | Purchaser's Assignment | GRADY, JOHN E | GRADY, JOHN E | | | $0.00 | 41837 | 426370 |
| 4 | 09/01/1978 | OTHER | Other - Misc. Documents | Unknown | GRADY, JOHN E | | | $12,684.00 | 85624 | 343178 |
Payout Agreement
| No payout information available.. |