Property
Account |
| Property ID: | 560725 | Abbreviated Legal Description: | ISLANDER CONDO APT 14 6.7850% INT |
| Geographic ID: | S7231-00-00014-0 | Agent Code: | |
| Type: | Real | | |
| Tax Area: | 100 - APPRAISER-OH Schl Dist, in OH | Land Use Code | 14 |
| Open Space: | N | DFL | N |
| Historic Property: | N | Remodel Property: | N |
| Multi-Family Redevelopment: | N | | |
| Township: | | Section: | |
| Range: | |
Location |
| Address: | 685 NW ATALANTA WAY BLDG 685, UNIT 3 OAK HARBOR, WA 98277 | Mapsco: | |
| Neighborhood: | 4B*OH-islander | Map ID: | 253 |
| Neighborhood CD: | 4B*OHisldr |
Owner |
| Name: | VESQUE, GUNDA E | Owner ID: | 298817 |
| Mailing Address: | 685 NW ATALANTA WAY UNIT #3 OAK HARBOR, WA 98277 | % Ownership: | 100.0000000000% |
| | | Exemptions: | |
Taxes and Assessment Details
Values
| (+) Improvement Homesite Value: | + | $156,998 | |
| (+) Improvement Non-Homesite Value: | + | $0 | |
| (+) Land Homesite Value: | + | $0 | |
| (+) Land Non-Homesite Value: | + | $100,000 | |
| (+) Curr Use (HS): | + | $0 | $0 |
| (+) Curr Use (NHS): | + | $0 | $0 |
| | | -------------------------- | |
| (=) Market Value: | = | $256,998 | |
| (–) Productivity Loss: | – | $0 | |
| | | -------------------------- | |
| (=) Subtotal: | = | $256,998 | |
| (+) Senior Appraised Value: | + | $0 | |
| (+) Non-Senior Appraised Value: | + | $256,998 | |
| | | -------------------------- | |
| (=) Total Appraised Value: | = | $256,998 | |
| (–) Senior Exemption Loss: | – | $0 | |
| (–) Exemption Loss: | – | $0 | |
| | | -------------------------- | |
| (=) Taxable Value: | = | $256,998 | |
Taxing Jurisdiction
| Owner: | VESQUE, GUNDA E | | |
| % Ownership: | 100.0000000000% | | |
| Total Value: | $256,998 | | |
| Tax Area: | 100 - APPRAISER-OH Schl Dist, in OH |
| CF | Conservation Futures | 0.0316035091 | $256,998 | $256,998 | $8.12 | | |
| CEM1 | Cemetery #1 | 0.0040320932 | $256,998 | $256,998 | $1.04 | | |
| COH | City of Oak Harbor | 2.3001546061 | $256,998 | $256,998 | $591.14 | | |
| OAKBOND | City of Oak Harbor BOND | 0.1926904192 | $256,998 | $256,998 | $49.52 | | |
| HOBOND | Hospital BOND | 0.1910887512 | $256,998 | $256,998 | $49.11 | | |
| HOGEN | Hospital GEN | 0.3902502903 | $256,998 | $256,998 | $100.29 | | |
| CE | County Current Expense | 0.3708482477 | $256,998 | $256,998 | $95.31 | | |
| ISLANDEMS | Hospital GEN (EMS) | 0.5000000000 | $256,998 | $256,998 | $128.50 | | |
| LIB | Library Sno-Isle GEN | 0.3153421757 | $256,998 | $256,998 | $81.04 | | |
| NWHIDPRMT | P & R N Whidbey GEN | 0.2004466701 | $256,998 | $256,998 | $51.51 | | |
| SCH201MO | School 201 Enrichment | 1.8559231640 | $256,998 | $256,998 | $476.97 | | |
| ST | State School | 1.3035497053 | $256,998 | $256,998 | $335.01 | | |
| ST2 | State School Part 2 | 0.8169543533 | $256,998 | $256,998 | $209.96 | | |
| | Total Tax Rate: | 8.4728839852 | | | | | |
| | | | | Taxes w/Current Exemptions: | $2,177.52 | | |
| | | | | Taxes w/o Exemptions: | $2,177.52 | | |
Improvement / Building
| Improvement #1: | RESIDENTIAL | State Code: | A1 | 896.0 sqft | Value: | $156,998 |
| Bathrooms: | 1 | Bedrooms: | 2 | | Ceiling: | DRY WALL SPRAYED | Exterior Wall/Cover: | PLY/HARDBOARD T-111 | | Floor Covering: | CARPET/VINYL 80-20 | Floor Structure: | WOOD W/SUBFLOOR | | Foundation: | CONCRETE | Heating: | FHA ELECTRIC | | Interior Finish: | DRYWALL PAINT | Plumbing Fixture Cnt: | 6 | | Roof Slope: | 4" IN 12" | Roof Structure/Cover: | CJ ASPHALT |
|
| | Type | Description | Class CD | Sub Class CD | Year Built | Area |
| | BAS | BASE/MAIN FLOOR | 3 | 0 | 1981 | 896.0 |
| | AGR | ATTACHED GARAGE | 3 | 0 | 1981 | 392.0 |
| | OP1 | OPEN PORCH SLAB | 3 | 0 | 1981 | 140.0 |
| | COMA | Common Area Improvement | 3 | 0 | 1981 | 0.0 |
Sketch
Property Image
Land
| 1 | 61 | MULTIPLE RESIDENCES | 0.0000 | 3772.00 | 0.00 | 0.00 | 1.00 | $100,000 | $0 |
Roll Value History
| 2026 | N/A | N/A | N/A | N/A | N/A |
| 2025 | $156,998 | $100,000 | $0 | $256,998 | $256,998 |
| 2024 | $159,075 | $100,000 | $0 | $259,075 | $259,075 |
| 2023 | $161,151 | $100,000 | $0 | $261,151 | $261,151 |
| 2022 | $147,880 | $75,000 | $0 | $222,880 | $222,880 |
| 2021 | $130,327 | $35,000 | $0 | $165,327 | $165,327 |
| 2020 | $106,951 | $40,000 | $0 | $146,951 | $146,951 |
| 2019 | $75,608 | $70,000 | $0 | $145,608 | $145,608 |
| 2018 | $75,879 | $65,000 | $0 | $140,879 | $140,879 |
| 2017 | $76,423 | $29,497 | $0 | $105,920 | $105,920 |
| 2016 | $77,509 | $29,497 | $0 | $107,006 | $107,006 |
| 2015 | $78,595 | $29,497 | $0 | $108,092 | $108,092 |
| 2014 | $78,903 | $29,497 | $0 | $108,400 | $108,400 |
| 2013 | $80,024 | $29,497 | $0 | $109,521 | $109,521 |
| 2012 | $82,268 | $29,497 | $0 | $111,765 | $111,765 |
| 2011 | $82,268 | $29,497 | $0 | $111,765 | $111,765 |
| 2010 | $88,072 | $9,996 | $0 | $98,068 | $98,068 |
| 2009 | $90,682 | $52,808 | $0 | $143,490 | $143,490 |
| 2008 | $92,752 | $64,124 | $0 | $156,876 | $156,876 |
| 2007 | $93,880 | $64,124 | $0 | $158,004 | $158,004 |
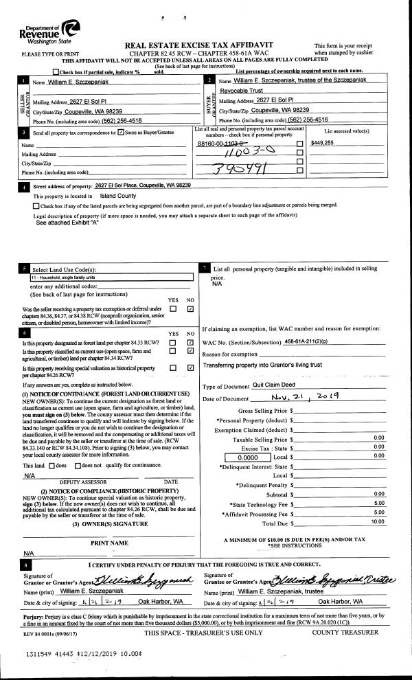
Deed and Sales History
| 1 | 04/07/2021 | WD | Warranty Deed | ATA ISLAND, LLC | VESQUE, GUNDA E | | | $224,250.00 | 47689 | 4515963 |
| 2 | 11/05/2019 | QCD | Quit Claim Deed | BATES JR, ARTHUR L | ATA ISLAND, LLC | | | $0.00 | 40999 | 4474959 |
| 3 | 08/07/2009 | WD | Warranty Deed | FIELD, SHANNON L | BATES JR, ARTHUR L | | | $112,000.00 | 91854 | 4258154 |
| 4 | 02/08/2006 | WD | Warranty Deed | LATTU, ALISON | FIELD, SHANNON L | | | $152,000.00 | 60615 | 4162174 |
| 5 | 06/22/2004 | WD | Warranty Deed | KLIMENT, ANITA D | LATTU, ALISON | | | $110,000.00 | 42850 | 4105143 |
| 6 | 03/25/2002 | WD | Warranty Deed | KLIMENT, ANITA D | KLIMENT, ANITA D | | | $83,900.00 | 21221 | 4015783 |
| 7 | 11/17/1999 | WD | Warranty Deed | JOHNSON, ROSALIE C | KLIMENT, ANITA D | | | $71,000.00 | 94804 | 99026948 |
| 8 | 10/01/1991 | WD | Warranty Deed | IRWIN, MARGARET I | JOHNSON, ROSALIE C | | | $66,000.00 | 13589 | 91015354 |
| 9 | 12/01/1989 | WD | Warranty Deed | VRTIS, JOSEPH M | IRWIN, MARGARET I | | | $59,000.00 | 96092 | 89019627 |
| 10 | 01/01/1984 | WD | Warranty Deed | CHRISTENSEN, PETER H | VRTIS, JOSEPH M | | | $0.00 | 40117 | 419862 |
| 11 | 04/01/1982 | WD | Warranty Deed | DANARD, CUSTOM H | CHRISTENSEN, PETER H | | | $52,000.00 | 20976 | 395663 |
| 12 | 01/01/1900 | OTHER | Other - Misc. Documents | Unknown | DANARD, CUSTOM H | | | $0.00 | 0 | 0 |
Payout Agreement
| No payout information available.. |