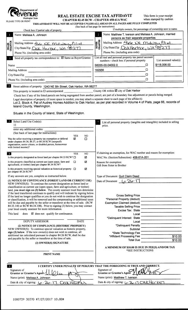
Property
Account |
| Property ID: | 560903 | Abbreviated Legal Description: | UPLANDS WEST #2 LOT 43 |
| Geographic ID: | S8335-02-00043-0 | Agent Code: | |
| Type: | Real | | |
| Tax Area: | 100 - APPRAISER-OH Schl Dist, in OH | Land Use Code | 11 |
| Open Space: | N | DFL | N |
| Historic Property: | N | Remodel Property: | N |
| Multi-Family Redevelopment: | N | | |
| Township: | | Section: | |
| Range: | |
Location |
| Address: | 1166 NE TAFTSON ST OAK HARBOR, WA 98277 | Mapsco: | |
| Neighborhood: | Cycle 1 | Map ID: | 262 |
| Neighborhood CD: | 1 |
Owner |
| Name: | ELLIOTT, CARL G | Owner ID: | 80869 |
| Mailing Address: | KAREN E ELLIOTT 15235 DECEPTION RD ANACORTES, WA 98221-8210 | % Ownership: | 100.0000000000% |
| | | Exemptions: | |
Taxes and Assessment Details
Values
| (+) Improvement Homesite Value: | + | $0 | |
| (+) Improvement Non-Homesite Value: | + | $298,469 | |
| (+) Land Homesite Value: | + | $0 | |
| (+) Land Non-Homesite Value: | + | $180,000 | |
| (+) Curr Use (HS): | + | $0 | $0 |
| (+) Curr Use (NHS): | + | $0 | $0 |
| | | -------------------------- | |
| (=) Market Value: | = | $478,469 | |
| (–) Productivity Loss: | – | $0 | |
| | | -------------------------- | |
| (=) Subtotal: | = | $478,469 | |
| (+) Senior Appraised Value: | + | $0 | |
| (+) Non-Senior Appraised Value: | + | $478,469 | |
| | | -------------------------- | |
| (=) Total Appraised Value: | = | $478,469 | |
| (–) Senior Exemption Loss: | – | $0 | |
| (–) Exemption Loss: | – | $0 | |
| | | -------------------------- | |
| (=) Taxable Value: | = | $478,469 | |
Taxing Jurisdiction
| Owner: | ELLIOTT, CARL G | | |
| % Ownership: | 100.0000000000% | | |
| Total Value: | $478,469 | | |
| Tax Area: | 100 - APPRAISER-OH Schl Dist, in OH |
| CF | Conservation Futures | 0.0316035091 | $478,469 | $478,469 | $15.12 | | |
| CEM1 | Cemetery #1 | 0.0040320932 | $478,469 | $478,469 | $1.93 | | |
| COH | City of Oak Harbor | 2.3001546061 | $478,469 | $478,469 | $1,100.55 | | |
| OAKBOND | City of Oak Harbor BOND | 0.1926904192 | $478,469 | $478,469 | $92.20 | | |
| HOBOND | Hospital BOND | 0.1910887512 | $478,469 | $478,469 | $91.43 | | |
| HOGEN | Hospital GEN | 0.3902502903 | $478,469 | $478,469 | $186.72 | | |
| CE | County Current Expense | 0.3708482477 | $478,469 | $478,469 | $177.44 | | |
| ISLANDEMS | Hospital GEN (EMS) | 0.5000000000 | $478,469 | $478,469 | $239.23 | | |
| LIB | Library Sno-Isle GEN | 0.3153421757 | $478,469 | $478,469 | $150.88 | | |
| NWHIDPRMT | P & R N Whidbey GEN | 0.2004466701 | $478,469 | $478,469 | $95.91 | | |
| SCH201MO | School 201 Enrichment | 1.8559231640 | $478,469 | $478,469 | $888.00 | | |
| ST | State School | 1.3035497053 | $478,469 | $478,469 | $623.71 | | |
| ST2 | State School Part 2 | 0.8169543533 | $478,469 | $478,469 | $390.89 | | |
| | Total Tax Rate: | 8.4728839852 | | | | | |
| | | | | Taxes w/Current Exemptions: | $4,054.01 | | |
| | | | | Taxes w/o Exemptions: | $4,054.01 | | |
Improvement / Building
| Improvement #1: | RESIDENTIAL | State Code: | Y | 1794.0 sqft | Value: | $298,469 |
| Bathrooms: | 3 | Bedrooms: | 4 | | Ceiling: | DRYWALL PAINTED | Exterior Wall/Cover: | WOOD SIDING | | Floor Covering: | CARPET/VINYL 80-20 | Floor Structure: | WOOD W/SUBFLOOR | | Foundation: | CONCRETE | Heating: | FHA GAS | | Interior Finish: | DRYWALL PAINT | Plumbing Fixture Cnt: | 14 | | Roof Slope: | 5" IN 12" | Roof Structure/Cover: | CJ ASPHALT |
|
| | Type | Description | Class CD | Sub Class CD | Year Built | Area |
| | BAS | BASE/MAIN FLOOR | 3 | 0 | 1988 | 962.0 |
| | OP3 | OPEN PORCH W/ROOF | 3 | 0 | 1988 | 20.0 |
| | AGR | ATTACHED GARAGE | 3 | 0 | 1988 | 462.0 |
| | UPS | UPPER STORY | 3 | 0 | 1988 | 832.0 |
| | OWP | OPEN WOOD PORCH W/STEPS | 3 | 0 | 1988 | 120.0 |
Sketch
Property Image
Land
| 1 | 13 | SQ (06001-08000) | 0.0000 | 0.00 | 0.00 | 0.00 | 1.00 | $180,000 | $0 |
Roll Value History
| 2026 | N/A | N/A | N/A | N/A | N/A |
| 2025 | $298,469 | $180,000 | $0 | $478,469 | $478,469 |
| 2024 | $302,384 | $170,000 | $0 | $472,384 | $472,384 |
| 2023 | $281,841 | $170,000 | $0 | $451,841 | $451,841 |
| 2022 | $258,605 | $160,000 | $0 | $418,605 | $418,605 |
| 2021 | $227,822 | $120,000 | $0 | $347,822 | $347,822 |
| 2020 | $221,739 | $100,000 | $0 | $321,739 | $321,739 |
| 2019 | $162,002 | $140,000 | $0 | $302,002 | $302,002 |
| 2018 | $162,513 | $125,000 | $0 | $287,513 | $287,513 |
| 2017 | $163,334 | $110,000 | $0 | $273,334 | $273,334 |
| 2016 | $153,126 | $90,000 | $0 | $243,126 | $243,126 |
| 2015 | $155,166 | $80,000 | $0 | $235,166 | $235,166 |
| 2014 | $157,208 | $80,000 | $0 | $237,208 | $237,208 |
| 2013 | $159,251 | $80,000 | $0 | $239,251 | $239,251 |
| 2012 | $161,291 | $70,000 | $0 | $231,291 | $231,291 |
| 2011 | $164,080 | $80,000 | $0 | $244,080 | $244,080 |
| 2010 | $175,725 | $80,000 | $0 | $255,725 | $255,725 |
| 2009 | $183,131 | $97,000 | $0 | $280,131 | $280,131 |
| 2008 | $185,257 | $97,000 | $0 | $282,257 | $282,257 |
| 2007 | $187,378 | $97,000 | $0 | $284,378 | $284,378 |
Deed and Sales History
| 1 | 09/12/2005 | WD | Warranty Deed | SPOERER, THOMAS L | ELLIOTT, CARL G | | | $296,000.00 | 54600 | 4147623 |
| 2 | 05/13/1999 | WD | Warranty Deed | VETERANS AFFAIRS, SEC OF | SPOERER, THOMAS L | | | $133,000.00 | 91934 | 99012219 |
| 3 | 06/10/1998 | WD | Warranty Deed | NAVY FEDERAL CREDIT UNION, | VETERANS AFFAIRS, SEC OF | | | $0.00 | 82938 | 9815425 |
| 4 | 06/05/1998 | TRUSTEED | Trustee's Deed | SECRETARY, VETERANS A | NAVY FEDERAL CREDIT UNION, | | | $126,465.00 | 82537 | 98013208 |
| 5 | 09/01/1992 | WD | Warranty Deed | MCNALLY, JAMES F | BROWN, JAMES & | | | $135,000.00 | 23581 | 92017334 |
| 6 | 07/01/1989 | WD | Warranty Deed | VANDERVOET, LESLIE R | MCNALLY, JAMES F | | | $99,500.00 | 92739 | 89009279 |
| 7 | 04/01/1988 | WD | Warranty Deed | KOETJE, GORDON | VANDERVOET, LESLIE R | | | $19,000.00 | 81024 | 88003929 |
| 8 | 08/01/1979 | PACD | Purchaser's Assignment | Unknown | KOETJE, GORDON | | | $24,784.00 | 94038 | 357422 |
| 9 | 01/01/1900 | OTHER | Other - Misc. Documents | BROWN, JAMES & | SECRETARY, VETERANS A | | | $0.00 | 82938 | 98015425 |
Payout Agreement
| No payout information available.. |