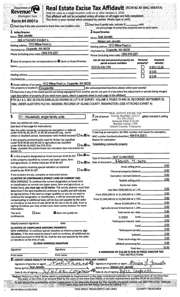
Property
Account |
| Property ID: | 561154 | Abbreviated Legal Description: | MT VW BCH 2 LOTS 203 & 204 TGW ADJ VAC BROADMOOR DR AF#325947 |
| Geographic ID: | S7525-02-00203-0 | Agent Code: | |
| Type: | Real | | |
| Tax Area: | 549 - APPRAISER-Stan/Cam Schl Dist, Special Dist, vacant & 50 acres or less | Land Use Code | 99 |
| Open Space: | N | DFL | N |
| Historic Property: | N | Remodel Property: | N |
| Multi-Family Redevelopment: | N | | |
| Township: | | Section: | |
| Range: | |
Location |
| Address: | HIGHLAND DR CAMANO ISLAND, WA 98282 | Mapsco: | |
| Neighborhood: | Cycle 5 | Map ID: | 948 |
| Neighborhood CD: | 5 |
Owner |
| Name: | ROGASS, CRAIG ERIC | Owner ID: | 289227 |
| Mailing Address: | RACHEL L GROSS 2311 HIGHLAND DR CAMANO ISLAND, WA 98282 | % Ownership: | 100.0000000000% |
| | | Exemptions: | |
Taxes and Assessment Details
Values
| (+) Improvement Homesite Value: | + | $0 | |
| (+) Improvement Non-Homesite Value: | + | $0 | |
| (+) Land Homesite Value: | + | $0 | |
| (+) Land Non-Homesite Value: | + | $9,000 | |
| (+) Curr Use (HS): | + | $0 | $0 |
| (+) Curr Use (NHS): | + | $0 | $0 |
| | | -------------------------- | |
| (=) Market Value: | = | $9,000 | |
| (–) Productivity Loss: | – | $0 | |
| | | -------------------------- | |
| (=) Subtotal: | = | $9,000 | |
| (+) Senior Appraised Value: | + | $0 | |
| (+) Non-Senior Appraised Value: | + | $9,000 | |
| | | -------------------------- | |
| (=) Total Appraised Value: | = | $9,000 | |
| (–) Senior Exemption Loss: | – | $0 | |
| (–) Exemption Loss: | – | $0 | |
| | | -------------------------- | |
| (=) Taxable Value: | = | $9,000 | |
Taxing Jurisdiction
| Owner: | ROGASS, CRAIG ERIC | | |
| % Ownership: | 100.0000000000% | | |
| Total Value: | $9,000 | | |
| Tax Area: | 549 - APPRAISER-Stan/Cam Schl Dist, Special Dist, vacant & 50 acres or less |
| CF | Conservation Futures | 0.0316035091 | $9,000 | $9,000 | $0.28 | | |
| EMS1 | Fire & Rescue Dist #1 Camano GEN (EMS) | 0.3677864386 | $9,000 | $9,000 | $3.31 | | |
| CE | County Current Expense | 0.3708482477 | $9,000 | $9,000 | $3.34 | | |
| CR | County Roads | 0.4584763726 | $9,000 | $9,000 | $4.13 | | |
| LCIB | Library Sno-Isle BOND (Camano Island) | 0.0396325772 | $9,000 | $9,000 | $0.36 | | |
| LIB | Library Sno-Isle GEN | 0.3153421757 | $9,000 | $9,000 | $2.84 | | |
| SCH205_401 | School 205-401 Enrichment | 1.2698420524 | $9,000 | $9,000 | $11.43 | | |
| SCH205BOND | School 205-401 BOND | 0.9396497583 | $9,000 | $9,000 | $8.46 | | |
| ST | State School | 1.3035497053 | $9,000 | $9,000 | $11.73 | | |
| ST2 | State School Part 2 | 0.8169543533 | $9,000 | $9,000 | $7.35 | | |
| | Total Tax Rate: | 5.9136851902 | | | | | |
| | | | | Taxes w/Current Exemptions: | $53.23 | | |
| | | | | Taxes w/o Exemptions: | $53.23 | | |
Improvement / Building
Sketch
| No sketches available for this property. |
Property Image
Land
| 1 | 14 | SQ (08001-12000) | 0.0000 | 0.00 | 0.00 | 0.00 | 1.00 | $9,000 | $0 |
Roll Value History
| 2026 | N/A | N/A | N/A | N/A | N/A |
| 2025 | $0 | $9,000 | $0 | $9,000 | $9,000 |
| 2024 | $0 | $9,000 | $0 | $9,000 | $9,000 |
| 2023 | $0 | $9,000 | $0 | $9,000 | $9,000 |
| 2022 | $0 | $5,000 | $0 | $5,000 | $5,000 |
| 2021 | $0 | $5,000 | $0 | $5,000 | $5,000 |
| 2020 | $0 | $5,000 | $0 | $5,000 | $5,000 |
| 2019 | $0 | $5,000 | $0 | $5,000 | $5,000 |
| 2018 | $0 | $5,000 | $0 | $5,000 | $5,000 |
| 2017 | $0 | $5,000 | $0 | $5,000 | $5,000 |
| 2016 | $0 | $5,000 | $0 | $5,000 | $5,000 |
| 2015 | $0 | $2,000 | $0 | $2,000 | $2,000 |
| 2014 | $0 | $3,000 | $0 | $3,000 | $3,000 |
| 2013 | $0 | $3,000 | $0 | $3,000 | $3,000 |
| 2012 | $0 | $3,000 | $0 | $3,000 | $3,000 |
| 2011 | $0 | $3,000 | $0 | $3,000 | $3,000 |
| 2010 | $0 | $3,000 | $0 | $3,000 | $3,000 |
| 2009 | $0 | $8,500 | $0 | $8,500 | $8,500 |
| 2008 | $0 | $8,500 | $0 | $8,500 | $8,500 |
| 2007 | $0 | $8,500 | $0 | $8,500 | $8,500 |
Deed and Sales History
| 1 | 04/19/2019 | WD | Warranty Deed | PARKS, KEITH M | ROGASS, CRAIG ERIC | | | $867,000.00 | 37975 | 4460980 |
|   | |
| 2 | 06/21/2004 | BLA | DNU - Boundary Line Adjustment | PARKS, KEITH M | PARKS, KEITH M | | | $0.00 | 70303 | 4085309 |
| 3 | 04/21/2003 | WD | Warranty Deed | UPPENDAHL, DONALD E | PARKS, KEITH M | | | $5,372.00 | 31724 | 4056385 |
| 4 | 06/14/2001 | WD | Warranty Deed | WITHEROW, JOSEPH R | UPPENDAHL, DONALD E | | | $8,424.00 | 12487 | 20036336 |
| 5 | 07/01/1990 | QCD | Quit Claim Deed | WITHEROW, JOSEPH R | WITHEROW, JOSEPH R | | | $0.00 | 4363 | 90014435 |
| 6 | 05/01/1990 | WD | Warranty Deed | VANASSE, H J | WITHEROW, JOSEPH R | | | $5,500.00 | 2638 | 90008570 |
| 7 | 01/01/1900 | OTHER | Other - Misc. Documents | Unknown | VANASSE, H J | | | $0.00 | 0 | 0 |
Payout Agreement
| No payout information available.. |