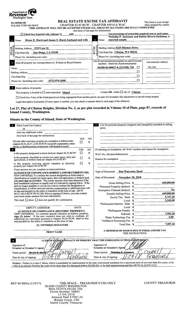
Property
Account |
| Property ID: | 565052 | Abbreviated Legal Description: | 13 - IN NE SW: BG W/4 CR SEC 26 E1644' S8.5' TPB S TP 322'S OF NLN SW E405' NELY @ R/A TO RD 182' NWLY ALG RD TPB FR 250-1390 4/27/83 |
| Geographic ID: | R23326-250-1930 | Agent Code: | |
| Type: | Real | | |
| Tax Area: | 112 - APPRAISER-OH Schl Dist, outside OH, improved, greater than 1 acre | Land Use Code | 11 |
| Open Space: | N | DFL | N |
| Historic Property: | N | Remodel Property: | N |
| Multi-Family Redevelopment: | N | | |
| Township: | 33 | Section: | 26 |
| Range: | R2 |
Location |
| Address: | 2993 STRAWBERRY POINT RD OAK HARBOR, WA 98277 | Mapsco: | |
| Neighborhood: | Cycle 6 | Map ID: | 623 |
| Neighborhood CD: | 6 |
Owner |
| Name: | CARNES, LARRY D | Owner ID: | 287769 |
| Mailing Address: | 2970 STRAWBERRY POINT RD OAK HARBOR, WA 98277 | % Ownership: | 100.0000000000% |
| | | Exemptions: | |
Taxes and Assessment Details
Values
| (+) Improvement Homesite Value: | + | $0 | |
| (+) Improvement Non-Homesite Value: | + | $114,848 | |
| (+) Land Homesite Value: | + | $0 | |
| (+) Land Non-Homesite Value: | + | $250,000 | |
| (+) Curr Use (HS): | + | $0 | $0 |
| (+) Curr Use (NHS): | + | $0 | $0 |
| | | -------------------------- | |
| (=) Market Value: | = | $364,848 | |
| (–) Productivity Loss: | – | $0 | |
| | | -------------------------- | |
| (=) Subtotal: | = | $364,848 | |
| (+) Senior Appraised Value: | + | $0 | |
| (+) Non-Senior Appraised Value: | + | $364,848 | |
| | | -------------------------- | |
| (=) Total Appraised Value: | = | $364,848 | |
| (–) Senior Exemption Loss: | – | $0 | |
| (–) Exemption Loss: | – | $0 | |
| | | -------------------------- | |
| (=) Taxable Value: | = | $364,848 | |
Taxing Jurisdiction
| Owner: | CARNES, LARRY D | | |
| % Ownership: | 100.0000000000% | | |
| Total Value: | $364,848 | | |
| Tax Area: | 112 - APPRAISER-OH Schl Dist, outside OH, improved, greater than 1 acre |
| CF | Conservation Futures | 0.0316035091 | $364,848 | $364,848 | $11.53 | | |
| CEM1 | Cemetery #1 | 0.0040320932 | $364,848 | $364,848 | $1.47 | | |
| FIRE2 | Fire & Rescue Dist #2 N Whidbey GEN | 0.5475949600 | $364,848 | $364,848 | $199.79 | | |
| HOBOND | Hospital BOND | 0.1910887512 | $364,848 | $364,848 | $69.72 | | |
| HOGEN | Hospital GEN | 0.3902502903 | $364,848 | $364,848 | $142.38 | | |
| CE | County Current Expense | 0.3708482477 | $364,848 | $364,848 | $135.30 | | |
| CR | County Roads | 0.4584763726 | $364,848 | $364,848 | $167.27 | | |
| ISLANDEMS | Hospital GEN (EMS) | 0.5000000000 | $364,848 | $364,848 | $182.42 | | |
| LIB | Library Sno-Isle GEN | 0.3153421757 | $364,848 | $364,848 | $115.05 | | |
| NWHIDPRMT | P & R N Whidbey GEN | 0.2004466701 | $364,848 | $364,848 | $73.13 | | |
| SCH201MO | School 201 Enrichment | 1.8559231640 | $364,848 | $364,848 | $677.13 | | |
| ST | State School | 1.3035497053 | $364,848 | $364,848 | $475.60 | | |
| ST2 | State School Part 2 | 0.8169543533 | $364,848 | $364,848 | $298.06 | | |
| | Total Tax Rate: | 6.9861102925 | | | | | |
| | | | | Taxes w/Current Exemptions: | $2,548.85 | | |
| | | | | Taxes w/o Exemptions: | $2,548.85 | | |
Improvement / Building
| Improvement #1: | MANUFACTURED HOME | State Code: | Y | 1572.0 sqft | Value: | $114,848 |
| Bathrooms: | 1 | Bedrooms: | 0 | | Ceiling: | PLASTER PAINTED | Cooling: | EVAP NO DUCT | | Exterior Wall/Cover: | VINYL | Floor Covering: | CARPET 100% | | Floor Structure: | SLAB ON GRADE | Foundation: | SLAB | | Heating: | FHA ELECTRIC | Interior Finish: | PLASTER | | Plumbing Fixture Cnt: | 1 | Roof Slope: | FLAT | | Roof Structure/Cover: | CJ ALUMINIUM HEAVY |   |   |
|
| | Type | Description | Class CD | Sub Class CD | Year Built | Area |
| | BAS | BASE/MAIN FLOOR | 4 | 0 | 1971 | 1572.0 |
| | UTY | STORAGE/UTILITY | 4 | 0 | 1971 | 1152.0 |
| | CPD | OPEN CARPORT DIRT FLOOR | 4 | 0 | 1971 | 720.0 |
| | UTY | STORAGE/UTILITY | 4 | 0 | 1971 | 880.0 |
| | UTY | STORAGE/UTILITY | 4 | 0 | 1971 | 1280.0 |
Sketch
Property Image
Land
| 1 | 18 | AC (02.01-03.00) | 2.8000 | 121968.00 | 0.00 | 0.00 | 1.00 | $250,000 | $0 |
Roll Value History
| 2026 | N/A | N/A | N/A | N/A | N/A |
| 2025 | $114,848 | $250,000 | $0 | $364,848 | $364,848 |
| 2024 | $118,101 | $230,000 | $0 | $348,101 | $348,101 |
| 2023 | $111,168 | $220,000 | $0 | $331,168 | $331,168 |
| 2022 | $82,341 | $210,000 | $0 | $292,341 | $292,341 |
| 2021 | $77,849 | $160,000 | $0 | $237,849 | $237,849 |
| 2020 | $78,430 | $140,000 | $0 | $218,430 | $218,430 |
| 2019 | $71,006 | $200,000 | $0 | $271,006 | $271,006 |
| 2018 | $35,875 | $170,000 | $0 | $205,875 | $205,875 |
| 2017 | $36,434 | $150,000 | $0 | $186,434 | $186,434 |
| 2016 | $61,135 | $120,000 | $0 | $181,135 | $181,135 |
| 2015 | $62,254 | $90,000 | $0 | $152,254 | $152,254 |
| 2014 | $63,931 | $80,000 | $0 | $143,931 | $143,931 |
| 2013 | $65,049 | $108,000 | $0 | $173,049 | $173,049 |
| 2012 | $66,168 | $108,000 | $0 | $174,168 | $174,168 |
| 2011 | $67,286 | $120,000 | $0 | $187,286 | $187,286 |
| 2010 | $75,865 | $120,000 | $0 | $195,865 | $195,865 |
| 2009 | $77,640 | $145,000 | $0 | $222,640 | $222,640 |
| 2008 | $78,818 | $145,000 | $0 | $223,818 | $223,818 |
| 2007 | $79,975 | $217,500 | $0 | $297,475 | $297,475 |
Deed and Sales History
| 1 | 12/06/2019 | EZ | Easement | CARNES, LARRY D | PUGET SOUND ENERGY | | | $3,310.00 | 41740 | 4478903 |
| 2 | 10/29/2018 | WD | Warranty Deed | RUPLE TRUSTEE, GLORIA | CARNES, LARRY D | | | $287,500.00 | 36515 | 4454428 |
| 3 | 11/08/2017 | PRD | Personal Representatives Deed | AQUINO, JUSTO M | RUPLE TRUSTEE, GLORIA | | | $0.00 | 31851 | 4433776 |
| 4 | 06/08/2017 | QCD | Quit Claim Deed | RUPLE, GLORIA P | AQUINO, JUSTO M | | | $0.00 | 29727 | 4424221 |
| 5 | 01/01/1990 | OTHER | Other - Misc. Documents | RUPLE, GLORIA P | RUPLE, GLORIA P | | | $12,000.00 | 283 | 0 |
| 6 | 12/01/1989 | WD | Warranty Deed | BORGMAN, PETER W | RUPLE, GLORIA P | | | $44,000.00 | 282 | 90000843 |
| 7 | 06/01/1978 | OTHER | Other - Misc. Documents | BORGMAN, PETER W | BORGMAN, PETER W | | | $0.00 | 82628 | 3341140 |
| 8 | 01/01/1900 | OTHER | Other - Misc. Documents | Unknown | BORGMAN, PETER W | | | $0.00 | 0 | 0 |
Payout Agreement
| No payout information available.. |