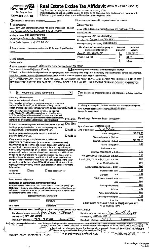
Property
Account |
| Property ID: | 565187 | Abbreviated Legal Description: | TRACT 1 SP 82-71.32919.347-3490 V1 SP P210 AF#408147 TGW & SUB EZ AF#93022821 TGW & SUB ENCROACHMENT EZ AF#95001174 |
| Geographic ID: | R32919-345-3430 | Agent Code: | |
| Type: | Real | | |
| Tax Area: | 810 - APPRAISER-S Whid Schl Dist, Diking District#1, improved & 1 acre or less | Land Use Code | 11 |
| Open Space: | N | DFL | N |
| Historic Property: | N | Remodel Property: | N |
| Multi-Family Redevelopment: | N | | |
| Township: | 29 | Section: | 19 |
| Range: | R3 |
Location |
| Address: | 2672 SUNLIGHT BEACH RD CLINTON, WA 98236 | Mapsco: | |
| Neighborhood: | Cycle 4 | Map ID: | 790 |
| Neighborhood CD: | 4 |
Owner |
| Name: | SPENCER, BENJAMIN M | Owner ID: | 302337 |
| Mailing Address: | BRETT L SPENCER 6308 227TH AVE NE REDMOND, WA 98053 | % Ownership: | 100.0000000000% |
| | | Exemptions: | |
Taxes and Assessment Details
Values
| (+) Improvement Homesite Value: | + | $0 | |
| (+) Improvement Non-Homesite Value: | + | $249,750 | |
| (+) Land Homesite Value: | + | $0 | |
| (+) Land Non-Homesite Value: | + | $900,000 | |
| (+) Curr Use (HS): | + | $0 | $0 |
| (+) Curr Use (NHS): | + | $0 | $0 |
| | | -------------------------- | |
| (=) Market Value: | = | $1,149,750 | |
| (–) Productivity Loss: | – | $0 | |
| | | -------------------------- | |
| (=) Subtotal: | = | $1,149,750 | |
| (+) Senior Appraised Value: | + | $0 | |
| (+) Non-Senior Appraised Value: | + | $1,149,750 | |
| | | -------------------------- | |
| (=) Total Appraised Value: | = | $1,149,750 | |
| (–) Senior Exemption Loss: | – | $0 | |
| (–) Exemption Loss: | – | $0 | |
| | | -------------------------- | |
| (=) Taxable Value: | = | $1,149,750 | |
Taxing Jurisdiction
| Owner: | SPENCER, BENJAMIN M | | |
| % Ownership: | 100.0000000000% | | |
| Total Value: | $1,149,750 | | |
| Tax Area: | 810 - APPRAISER-S Whid Schl Dist, Diking District#1, improved & 1 acre or less |
| CF | Conservation Futures | 0.0316035091 | $1,149,750 | $1,149,750 | $36.34 | | |
| FIRE3 | Fire & Rescue Dist #3 S Whidbey GEN | 1.2004855531 | $1,149,750 | $1,149,750 | $1,380.26 | | |
| HOBOND | Hospital BOND | 0.1910887512 | $1,149,750 | $1,149,750 | $219.70 | | |
| HOGEN | Hospital GEN | 0.3902502903 | $1,149,750 | $1,149,750 | $448.69 | | |
| CE | County Current Expense | 0.3708482477 | $1,149,750 | $1,149,750 | $426.38 | | |
| CR | County Roads | 0.4584763726 | $1,149,750 | $1,149,750 | $527.13 | | |
| ISLANDEMS | Hospital GEN (EMS) | 0.5000000000 | $1,149,750 | $1,149,750 | $574.88 | | |
| LIB | Library Sno-Isle GEN | 0.3153421757 | $1,149,750 | $1,149,750 | $362.56 | | |
| PORTWHID | Port of S Whidbey GEN | 0.1094540357 | $1,149,750 | $1,149,750 | $125.84 | | |
| SCH206BOND | School 206 BOND | 0.3161759235 | $1,149,750 | $1,149,750 | $363.52 | | |
| SCH206MO | School 206 Enrichment | 0.4547169547 | $1,149,750 | $1,149,750 | $522.81 | | |
| ST | State School | 1.3035497053 | $1,149,750 | $1,149,750 | $1,498.76 | | |
| ST2 | State School Part 2 | 0.8169543533 | $1,149,750 | $1,149,750 | $939.29 | | |
| SWHIDPRBD | P & R S Whidbey BOND | 0.0152817568 | $1,149,750 | $1,149,750 | $17.57 | | |
| SWHIDPRBD2 | P & R S Whidbey BOND2 | 0.0138911264 | $1,149,750 | $1,149,750 | $15.97 | | |
| SWHIDPRMT | P & R S Whidbey GEN | 0.2053334452 | $1,149,750 | $1,149,750 | $236.08 | | |
| | Total Tax Rate: | 6.6934522006 | | | | | |
| | | | | Taxes w/Current Exemptions: | $7,695.78 | | |
| | | | | Taxes w/o Exemptions: | $7,695.78 | | |
Improvement / Building
| Improvement #1: | RESIDENTIAL | State Code: | Y | 1545.0 sqft | Value: | $249,750 |
| Bathrooms: | 2 | Bedrooms: | 2 | | Ceiling: | DRYWALL PAINTED | Exterior Wall/Cover: | VINYL | | Floor Covering: | CARPET/VINYL 80-20 | Floor Structure: | WOOD W/SUBFLOOR | | Foundation: | CONCRETE | Heating: | WALL HEAT ELECTRIC | | Interior Finish: | DRYWALL PAINT | Plumbing Fixture Cnt: | 9 | | Roof Slope: | 12" IN 12" | Roof Structure/Cover: | CJ ASPHALT |
|
| | Type | Description | Class CD | Sub Class CD | Year Built | Area |
| | BAS | BASE/MAIN FLOOR | 3 | 0 | 1995 | 936.0 |
| | BIG | BUILT IN GARAGE | 3 | 0 | 1995 | 936.0 |
| | OWP | OPEN WOOD PORCH W/STEPS | 3 | 0 | 1995 | 396.0 |
| | UPH | HALF STORY | 3 | 0 | 1995 | 609.0 |
Sketch
Property Image
Land
| 1 | LB | LOW BANK | 0.3600 | 15681.60 | 55.00 | 0.00 | 1.00 | $900,000 | $0 |
Roll Value History
| 2026 | N/A | N/A | N/A | N/A | N/A |
| 2025 | $249,750 | $900,000 | $0 | $1,149,750 | $1,149,750 |
| 2024 | $253,068 | $900,000 | $0 | $1,153,068 | $1,153,068 |
| 2023 | $256,388 | $900,000 | $0 | $1,156,388 | $1,156,388 |
| 2022 | $235,161 | $875,000 | $0 | $1,110,161 | $1,110,161 |
| 2021 | $207,097 | $700,000 | $0 | $907,097 | $907,097 |
| 2020 | $191,997 | $675,000 | $0 | $866,997 | $866,997 |
| 2019 | $140,234 | $700,000 | $0 | $840,234 | $840,234 |
| 2018 | $140,688 | $600,000 | $0 | $740,688 | $740,688 |
| 2017 | $141,594 | $600,000 | $0 | $741,594 | $741,594 |
| 2016 | $143,411 | $600,000 | $0 | $743,411 | $743,411 |
| 2015 | $145,226 | $600,000 | $0 | $745,226 | $745,226 |
| 2014 | $145,226 | $566,397 | $0 | $711,623 | $711,623 |
| 2013 | $147,041 | $566,397 | $0 | $713,438 | $713,438 |
| 2012 | $148,857 | $566,397 | $0 | $715,254 | $715,254 |
| 2011 | $150,671 | $566,397 | $0 | $717,068 | $717,068 |
| 2010 | $156,520 | $566,397 | $0 | $722,917 | $722,917 |
| 2009 | $163,283 | $1,081,392 | $0 | $1,244,675 | $1,244,675 |
| 2008 | $165,270 | $1,081,392 | $0 | $1,246,662 | $1,246,662 |
| 2007 | $167,259 | $778,860 | $0 | $946,119 | $946,119 |
Deed and Sales History
| 1 | 12/12/2021 | QCD | Quit Claim Deed | SPENCER, SAMUEL J | SPENCER, BENJAMIN M | | | $0.00 | 51302 | 4535802 |
| 2 | 10/25/2021 | QCD | Quit Claim Deed | SPENCER, SAMUEL J | SPENCER, SAMUEL J | | | $0.00 | 50869 | 4533692 |
| 3 | 01/01/1995 | WD | Warranty Deed | MOODY, MARK & | SPENCER, SAMUEL J | | | $101,500.00 | 50246 | 95001175 |
| 4 | 12/01/1994 | QCD | Quit Claim Deed | MOODY, MARK & | MOODY, MARK & | | | $0.00 | 45187 | 94026338 |
| 5 | 08/01/1992 | WD | Warranty Deed | ASPEN, LUDVIG J | MOODY, MARK & | | | $75,000.00 | 23426 | 92016680 |
| 6 | 05/01/1983 | OTHER | Other - Misc. Documents | Unknown | ASPEN, LUDVIG J | | | $0.00 | 59949 | 0 |
Payout Agreement
| No payout information available.. |