Property
Account |
| Property ID: | 565249 | Abbreviated Legal Description: | LOT A SP 81-86.23328.215-4600 V1 SP P201 AF#405898 |
| Geographic ID: | R23328-216-4110 | Agent Code: | |
| Type: | Real | | |
| Tax Area: | 112 - APPRAISER-OH Schl Dist, outside OH, improved, greater than 1 acre | Land Use Code | 11 |
| Open Space: | N | DFL | N |
| Historic Property: | N | Remodel Property: | N |
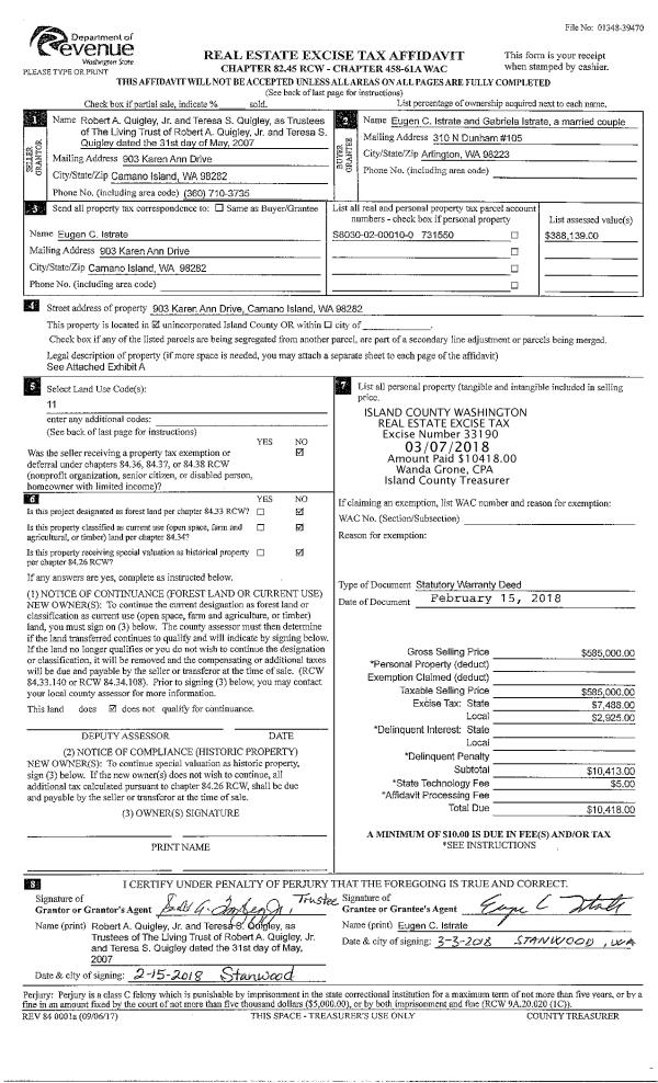
| Multi-Family Redevelopment: | N | | |
| Township: | 33 | Section: | 28 |
| Range: | R2 |
Location |
| Address: | 1104 HUCKLEBERRY LN OAK HARBOR, WA 98277 | Mapsco: | |
| Neighborhood: | Cycle 6 | Map ID: | 632 |
| Neighborhood CD: | 6 |
Owner |
| Name: | DUMMER, SUZANNE HOGAN | Owner ID: | 290860 |
| Mailing Address: | DANIEL MICHAEL DUMMER 1104 HUCKLEBERRY LN OAK HARBOR, WA 98277 | % Ownership: | 100.0000000000% |
| | | Exemptions: | |
Taxes and Assessment Details
Values
| (+) Improvement Homesite Value: | + | $0 | |
| (+) Improvement Non-Homesite Value: | + | $291,277 | |
| (+) Land Homesite Value: | + | $0 | |
| (+) Land Non-Homesite Value: | + | $300,000 | |
| (+) Curr Use (HS): | + | $0 | $0 |
| (+) Curr Use (NHS): | + | $0 | $0 |
| | | -------------------------- | |
| (=) Market Value: | = | $591,277 | |
| (–) Productivity Loss: | – | $0 | |
| | | -------------------------- | |
| (=) Subtotal: | = | $591,277 | |
| (+) Senior Appraised Value: | + | $0 | |
| (+) Non-Senior Appraised Value: | + | $591,277 | |
| | | -------------------------- | |
| (=) Total Appraised Value: | = | $591,277 | |
| (–) Senior Exemption Loss: | – | $0 | |
| (–) Exemption Loss: | – | $0 | |
| | | -------------------------- | |
| (=) Taxable Value: | = | $591,277 | |
Taxing Jurisdiction
| Owner: | DUMMER, SUZANNE HOGAN | | |
| % Ownership: | 100.0000000000% | | |
| Total Value: | $591,277 | | |
| Tax Area: | 112 - APPRAISER-OH Schl Dist, outside OH, improved, greater than 1 acre |
| CF | Conservation Futures | 0.0316035091 | $591,277 | $591,277 | $18.69 | | |
| CEM1 | Cemetery #1 | 0.0040320932 | $591,277 | $591,277 | $2.38 | | |
| FIRE2 | Fire & Rescue Dist #2 N Whidbey GEN | 0.5475949600 | $591,277 | $591,277 | $323.78 | | |
| HOBOND | Hospital BOND | 0.1910887512 | $591,277 | $591,277 | $112.99 | | |
| HOGEN | Hospital GEN | 0.3902502903 | $591,277 | $591,277 | $230.75 | | |
| CE | County Current Expense | 0.3708482477 | $591,277 | $591,277 | $219.27 | | |
| CR | County Roads | 0.4584763726 | $591,277 | $591,277 | $271.09 | | |
| ISLANDEMS | Hospital GEN (EMS) | 0.5000000000 | $591,277 | $591,277 | $295.64 | | |
| LIB | Library Sno-Isle GEN | 0.3153421757 | $591,277 | $591,277 | $186.45 | | |
| NWHIDPRMT | P & R N Whidbey GEN | 0.2004466701 | $591,277 | $591,277 | $118.52 | | |
| SCH201MO | School 201 Enrichment | 1.8559231640 | $591,277 | $591,277 | $1,097.36 | | |
| ST | State School | 1.3035497053 | $591,277 | $591,277 | $770.76 | | |
| ST2 | State School Part 2 | 0.8169543533 | $591,277 | $591,277 | $483.05 | | |
| | Total Tax Rate: | 6.9861102925 | | | | | |
| | | | | Taxes w/Current Exemptions: | $4,130.73 | | |
| | | | | Taxes w/o Exemptions: | $4,130.73 | | |
Improvement / Building
| Improvement #1: | RESIDENTIAL | State Code: | Y | 1400.0 sqft | Value: | $291,277 |
| Bathrooms: | 2 | Bedrooms: | 3 | | Ceiling: | DRYWALL PAINTED | Cooling: | HEAT PUMP/CONV/V | | Exterior Wall/Cover: | WOOD SIDING | Floor Covering: | VINYL/HARDWOOD 20-80 | | Floor Structure: | WOOD W/SUBFLOOR | Foundation: | CONCRETE | | Interior Finish: | DRYWALL PAINT | Plumbing Fixture Cnt: | 10 | | Roof Slope: | 4" IN 12" | Roof Structure/Cover: | CJ ASPHALT |
|
| | Type | Description | Class CD | Sub Class CD | Year Built | Area |
| | BAS | BASE/MAIN FLOOR | 3 | 0 | 1984 | 1400.0 |
| | OWP | OPEN WOOD PORCH W/STEPS | 3 | 0 | 1984 | 320.0 |
| | DGR | DETACHED GARAGE | 3 | 0 | 1984 | 520.0 |
| | UTY | STORAGE/UTILITY | 3 | 0 | 1984 | 520.0 |
Sketch
Property Image
Land
| 1 | 32 | AC (03.01-09.99) | 5.0600 | 0.00 | 0.00 | 0.00 | 1.00 | $300,000 | $0 |
Roll Value History
| 2026 | N/A | N/A | N/A | N/A | N/A |
| 2025 | $291,277 | $300,000 | $0 | $591,277 | $591,277 |
| 2024 | $294,775 | $280,000 | $0 | $574,775 | $574,775 |
| 2023 | $298,273 | $270,000 | $0 | $568,273 | $568,273 |
| 2022 | $286,661 | $240,000 | $0 | $526,661 | $526,661 |
| 2021 | $252,153 | $160,000 | $0 | $412,153 | $412,153 |
| 2020 | $245,373 | $140,000 | $0 | $385,373 | $385,373 |
| 2019 | $176,885 | $200,000 | $0 | $376,885 | $376,885 |
| 2018 | $177,380 | $170,000 | $0 | $347,380 | $347,380 |
| 2017 | $154,250 | $150,000 | $0 | $304,250 | $304,250 |
| 2016 | $147,400 | $140,000 | $0 | $287,400 | $287,400 |
| 2015 | $149,315 | $120,000 | $0 | $269,315 | $269,315 |
| 2014 | $151,228 | $100,000 | $0 | $251,228 | $251,228 |
| 2013 | $153,144 | $108,000 | $0 | $261,144 | $261,144 |
| 2012 | $155,057 | $100,188 | $0 | $255,245 | $255,245 |
| 2011 | $156,972 | $111,320 | $0 | $268,292 | $268,292 |
| 2010 | $160,550 | $111,320 | $0 | $271,870 | $271,870 |
| 2009 | $166,909 | $126,500 | $0 | $293,409 | $293,409 |
| 2008 | $170,873 | $146,740 | $0 | $317,613 | $317,613 |
| 2007 | $173,328 | $111,877 | $0 | $285,205 | $285,205 |
Deed and Sales History
| 1 | 06/24/2019 | WD | Warranty Deed | KIRKO, MARK | DUMMER, SUZANNE HOGAN | | | $425,900.00 | 39344 | 4466880 |
| 2 | 10/12/2017 | WD | Warranty Deed | THOMAS, LARRY W | KIRKO, MARK | | | $390,500.00 | 31621 | 4432629 |
| 3 | 04/27/2006 | WD | Warranty Deed | BERTHOLD, CATHERINE M | THOMAS, LARRY W | | | $335,000.00 | 61981 | 4169560 |
| 4 | 01/01/1991 | SHERIFFD | Sheriff Deed | BERTHOLD, CATHERINE M | BERTHOLD, CATHERINE M | | | $0.00 | 64167 | 91000885 |
| 5 | 02/01/1990 | QCD | Quit Claim Deed | NICHOLSON, MICHAEL A | METMOR, FINANCIAL, I | | | $100.00 | 911 | 90002964 |
| 6 | 02/01/1990 | WD | Warranty Deed | METMOR, FINANCIAL, I | BERTHOLD, CATHERINE M | | | $78,500.00 | 912 | 90002965 |
| 7 | 11/01/1984 | WD | Warranty Deed | ISLAND, PACIFIC C | NICHOLSON, MICHAEL A | | | $0.00 | 43255 | 84005350 |
| 8 | 06/01/1984 | WD | Warranty Deed | DANARD, R N | NICHOLSON, MICHAEL A | | | $20,000.00 | 41957 | 84000336 |
| 9 | 06/01/1984 | QCD | Quit Claim Deed | NICHOLSON, MICHAEL A | ISLAND, PACIFIC C | | | $0.00 | 41958 | 84000338 |
| 10 | 02/01/1980 | REC | Real Estate Contract | Unknown | DANARD, R N | | | $17,500.00 | 386 | 364771 |
Payout Agreement
| No payout information available.. |