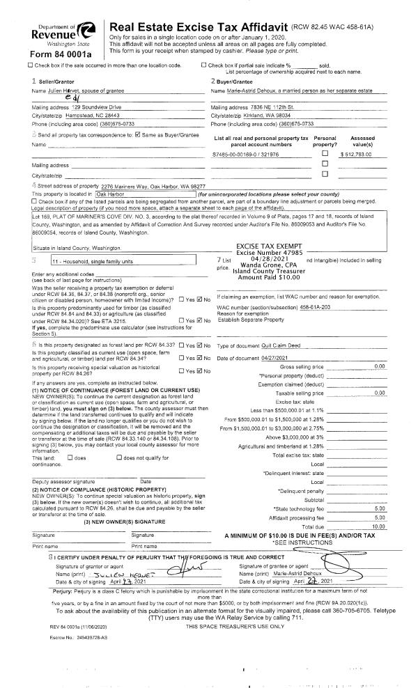
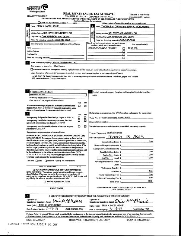
Property
Account |
| Property ID: | 56539 | Abbreviated Legal Description: | 115 - IN SE NE: BG INTER ELN CO RD W/SLN N/2 N/2 SE NE ELY 180'TPB NLY 140' ELY 60' SLY 140' WLY 60'TPB |
| Geographic ID: | R22922-368-4210 | Agent Code: | |
| Type: | Real | | |
| Tax Area: | 710 - APPRAISER-S Whid Schl Dist, outside Langley, improved & 1 acre or less | Land Use Code | 11 |
| Open Space: | N | DFL | N |
| Historic Property: | N | Remodel Property: | N |
| Multi-Family Redevelopment: | N | | |
| Township: | 29 | Section: | 22 |
| Range: | R2 |
Location |
| Address: | 1518 ROY RD FREELAND, WA 98249 | Mapsco: | |
| Neighborhood: | Cycle 3 | Map ID: | 337 |
| Neighborhood CD: | 3 |
Owner |
| Name: | BLANTON III, CHARLES BROOKER | Owner ID: | 297328 |
| Mailing Address: | TORY OLIVIA BLANTON 1518 ROY RD FREELAND, WA 98249 | % Ownership: | 100.0000000000% |
| | | Exemptions: | |
Taxes and Assessment Details
Values
| (+) Improvement Homesite Value: | + | $0 | |
| (+) Improvement Non-Homesite Value: | + | $174,707 | |
| (+) Land Homesite Value: | + | $0 | |
| (+) Land Non-Homesite Value: | + | $240,000 | |
| (+) Curr Use (HS): | + | $0 | $0 |
| (+) Curr Use (NHS): | + | $0 | $0 |
| | | -------------------------- | |
| (=) Market Value: | = | $414,707 | |
| (–) Productivity Loss: | – | $0 | |
| | | -------------------------- | |
| (=) Subtotal: | = | $414,707 | |
| (+) Senior Appraised Value: | + | $0 | |
| (+) Non-Senior Appraised Value: | + | $414,707 | |
| | | -------------------------- | |
| (=) Total Appraised Value: | = | $414,707 | |
| (–) Senior Exemption Loss: | – | $0 | |
| (–) Exemption Loss: | – | $0 | |
| | | -------------------------- | |
| (=) Taxable Value: | = | $414,707 | |
Taxing Jurisdiction
| Owner: | BLANTON III, CHARLES BROOKER | | |
| % Ownership: | 100.0000000000% | | |
| Total Value: | $414,707 | | |
| Tax Area: | 710 - APPRAISER-S Whid Schl Dist, outside Langley, improved & 1 acre or less |
| CF | Conservation Futures | 0.0316035091 | $414,707 | $414,707 | $13.11 | | |
| FIRE3 | Fire & Rescue Dist #3 S Whidbey GEN | 1.2004855531 | $414,707 | $414,707 | $497.85 | | |
| HOBOND | Hospital BOND | 0.1910887512 | $414,707 | $414,707 | $79.25 | | |
| HOGEN | Hospital GEN | 0.3902502903 | $414,707 | $414,707 | $161.84 | | |
| CE | County Current Expense | 0.3708482477 | $414,707 | $414,707 | $153.79 | | |
| CR | County Roads | 0.4584763726 | $414,707 | $414,707 | $190.13 | | |
| ISLANDEMS | Hospital GEN (EMS) | 0.5000000000 | $414,707 | $414,707 | $207.35 | | |
| LIB | Library Sno-Isle GEN | 0.3153421757 | $414,707 | $414,707 | $130.77 | | |
| PORTWHID | Port of S Whidbey GEN | 0.1094540357 | $414,707 | $414,707 | $45.39 | | |
| SCH206BOND | School 206 BOND | 0.3161759235 | $414,707 | $414,707 | $131.12 | | |
| SCH206MO | School 206 Enrichment | 0.4547169547 | $414,707 | $414,707 | $188.57 | | |
| ST | State School | 1.3035497053 | $414,707 | $414,707 | $540.59 | | |
| ST2 | State School Part 2 | 0.8169543533 | $414,707 | $414,707 | $338.80 | | |
| SWHIDPRBD | P & R S Whidbey BOND | 0.0152817568 | $414,707 | $414,707 | $6.34 | | |
| SWHIDPRBD2 | P & R S Whidbey BOND2 | 0.0138911264 | $414,707 | $414,707 | $5.76 | | |
| SWHIDPRMT | P & R S Whidbey GEN | 0.2053334452 | $414,707 | $414,707 | $85.15 | | |
| | Total Tax Rate: | 6.6934522006 | | | | | |
| | | | | Taxes w/Current Exemptions: | $2,775.81 | | |
| | | | | Taxes w/o Exemptions: | $2,775.81 | | |
Improvement / Building
| Improvement #1: | RESIDENTIAL | State Code: | Y | 1029.0 sqft | Value: | $174,707 |
| Bathrooms: | 1 | Bedrooms: | 2 | | Ceiling: | DRYWALL PAINTED | Exterior Wall/Cover: | CEMENT FIBER | | Floor Covering: | VINYL 100% | Floor Structure: | WOOD W/SUBFLOOR | | Foundation: | WOOD BLOCKS | Heating: | BASEBOARD ELECTRIC | | Interior Finish: | DRYWALL PAINT | Plumbing Fixture Cnt: | 6 | | Roof Slope: | 3" IN 12" | Roof Structure/Cover: | BEAM ROLL COMPOSITION |
|
| | Type | Description | Class CD | Sub Class CD | Year Built | Area |
| | BAS | BASE/MAIN FLOOR | 3 | 0 | 1959 | 1029.0 |
| | OWR | OPEN WOOD PORCH W/STEPS/ROOF | 3 | 0 | 1959 | 216.0 |
Sketch
Property Image
Land
| 1 | 14 | SQ (08001-12000) | 0.1900 | 8276.40 | 0.00 | 0.00 | 1.00 | $240,000 | $0 |
Roll Value History
| 2026 | N/A | N/A | N/A | N/A | N/A |
| 2025 | $174,707 | $240,000 | $0 | $414,707 | $414,707 |
| 2024 | $180,648 | $210,000 | $0 | $390,648 | $390,648 |
| 2023 | $182,041 | $230,000 | $0 | $412,041 | $412,041 |
| 2022 | $166,188 | $210,000 | $0 | $376,188 | $376,188 |
| 2021 | $145,690 | $140,000 | $0 | $285,690 | $285,690 |
| 2020 | $55,638 | $130,000 | $0 | $185,638 | $185,638 |
| 2019 | $32,160 | $170,000 | $0 | $202,160 | $202,160 |
| 2018 | $32,342 | $130,000 | $0 | $162,342 | $162,342 |
| 2017 | $32,673 | $110,000 | $0 | $142,673 | $142,673 |
| 2016 | $33,399 | $100,000 | $0 | $133,399 | $133,399 |
| 2015 | $34,125 | $80,000 | $0 | $114,125 | $114,125 |
| 2014 | $34,851 | $59,500 | $0 | $94,351 | $94,351 |
| 2013 | $36,686 | $59,500 | $0 | $96,186 | $96,186 |
| 2012 | $37,413 | $59,500 | $0 | $96,913 | $96,913 |
| 2011 | $38,138 | $70,000 | $0 | $108,138 | $108,138 |
| 2010 | $43,134 | $70,000 | $0 | $113,134 | $113,134 |
| 2009 | $45,181 | $75,000 | $0 | $120,181 | $120,181 |
| 2008 | $45,948 | $85,000 | $0 | $130,948 | $130,948 |
| 2007 | $46,326 | $68,000 | $0 | $114,326 | $114,326 |
Deed and Sales History
| 1 | 12/04/2020 | WD | Warranty Deed | GIESEKE, MICHAEL | BLANTON III, CHARLES BROOKER | | | $310,000.00 | 46142 | 4505368 |
| 2 | 12/26/2018 | TRUSTEED | Trustee's Deed | MCINTYRE JR, CHARLES H | GIESEKE, MICHAEL | | | $104,932.00 | 37231 | 4457613 |
| 3 | 06/24/2008 | TRUSTEED | Trustee's Deed | DEUTSCHE BANK NATIONAL TRUST C | MCINTYRE JR, CHARLES H | | | $112,000.00 | 81682 | 4231801 |
| 4 | 04/25/2007 | TRUSTEED | Trustee's Deed | LIDRAL, CONRAD R | DEUTSCHE BANK NATIONAL TRUST C | | | $97,392.00 | 71448 | 4200977 |
| 5 | 06/29/2004 | ESTSEPPROP | Establish Separate Property | LIDRAL, CONRAD R | LIDRAL, CONRAD R | | | $0.00 | 42955 | 4105619 |
| 6 | 05/01/1990 | WD | Warranty Deed | SCOTT, REG, E | LIDRAL, CONRAD R | | | $50,000.00 | 3259 | 90010517 |
| 7 | 11/01/1960 | EXECUTORD | Executor Deed | ROBINSON, ROY C | SCOTT, REG, E | | | $350.00 | 9067 | 0 |
| 8 | 01/01/1900 | OTHER | Other - Misc. Documents | Unknown | ROBINSON, ROY C | | | $0.00 | 0 | 0 |
Payout Agreement
| No payout information available.. |