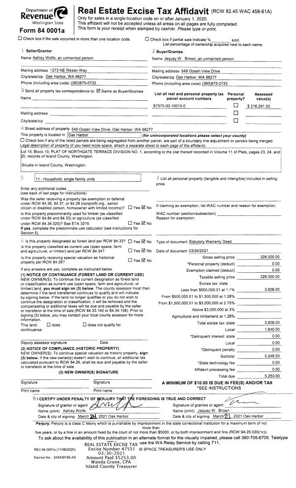
Property
Account |
| Property ID: | 565392 | Abbreviated Legal Description: | PT OF S/2 N/2 W/2 SE NE LY ELY OF CORD (SUNSET DR) FR 346 4280 |
| Geographic ID: | R23103-346-4350 | Agent Code: | |
| Type: | Real | | |
| Tax Area: | 512 - APPRAISER-Stan/Cam Schl Dist, improved, greater than 1 acre | Land Use Code | 11 |
| Open Space: | N | DFL | N |
| Historic Property: | N | Remodel Property: | N |
| Multi-Family Redevelopment: | N | | |
| Township: | 31 | Section: | 03 |
| Range: | R2 |
Location |
| Address: | 127 S SUNSET DR CAMANO ISLAND, WA 98282 | Mapsco: | |
| Neighborhood: | Cycle 5 | Map ID: | 458 |
| Neighborhood CD: | 5 |
Owner |
| Name: | THOMAS, MORIEN | Owner ID: | 297431 |
| Mailing Address: | 121 N 75TH ST SEATTLE, WA 98103 | % Ownership: | 100.0000000000% |
| | | Exemptions: | |
Taxes and Assessment Details
Values
| (+) Improvement Homesite Value: | + | $0 | |
| (+) Improvement Non-Homesite Value: | + | $4,000 | |
| (+) Land Homesite Value: | + | $0 | |
| (+) Land Non-Homesite Value: | + | $240,000 | |
| (+) Curr Use (HS): | + | $0 | $0 |
| (+) Curr Use (NHS): | + | $0 | $0 |
| | | -------------------------- | |
| (=) Market Value: | = | $244,000 | |
| (–) Productivity Loss: | – | $0 | |
| | | -------------------------- | |
| (=) Subtotal: | = | $244,000 | |
| (+) Senior Appraised Value: | + | $0 | |
| (+) Non-Senior Appraised Value: | + | $244,000 | |
| | | -------------------------- | |
| (=) Total Appraised Value: | = | $244,000 | |
| (–) Senior Exemption Loss: | – | $0 | |
| (–) Exemption Loss: | – | $0 | |
| | | -------------------------- | |
| (=) Taxable Value: | = | $244,000 | |
Taxing Jurisdiction
| Owner: | THOMAS, MORIEN | | |
| % Ownership: | 100.0000000000% | | |
| Total Value: | $244,000 | | |
| Tax Area: | 512 - APPRAISER-Stan/Cam Schl Dist, improved, greater than 1 acre |
| CF | Conservation Futures | 0.0316035091 | $244,000 | $244,000 | $7.71 | | |
| EMS1 | Fire & Rescue Dist #1 Camano GEN (EMS) | 0.3677864386 | $244,000 | $244,000 | $89.74 | | |
| FIRE1 | Fire & Rescue Dist #1 Camano GEN | 1.2502910536 | $244,000 | $244,000 | $305.07 | | |
| FIRE1BOND | Fire & Rescue Dist #1 Camano BOND | 0.1570001679 | $244,000 | $244,000 | $38.31 | | |
| CE | County Current Expense | 0.3708482477 | $244,000 | $244,000 | $90.49 | | |
| CR | County Roads | 0.4584763726 | $244,000 | $244,000 | $111.87 | | |
| LCIB | Library Sno-Isle BOND (Camano Island) | 0.0396325772 | $244,000 | $244,000 | $9.67 | | |
| LIB | Library Sno-Isle GEN | 0.3153421757 | $244,000 | $244,000 | $76.94 | | |
| SCH205_401 | School 205-401 Enrichment | 1.2698420524 | $244,000 | $244,000 | $309.84 | | |
| SCH205BOND | School 205-401 BOND | 0.9396497583 | $244,000 | $244,000 | $229.27 | | |
| ST | State School | 1.3035497053 | $244,000 | $244,000 | $318.07 | | |
| ST2 | State School Part 2 | 0.8169543533 | $244,000 | $244,000 | $199.34 | | |
| | Total Tax Rate: | 7.3209764117 | | | | | |
| | | | | Taxes w/Current Exemptions: | $1,786.32 | | |
| | | | | Taxes w/o Exemptions: | $1,786.32 | | |
Improvement / Building
| Improvement #1: | RESIDENTIAL | State Code: | Y | 0.0 sqft | Value: | $4,000 |
Sketch
Property Image
Land
| 1 | 32 | AC (03.01-09.99) | 4.0900 | 0.00 | 0.00 | 0.00 | 1.00 | $240,000 | $0 |
Roll Value History
| 2026 | N/A | N/A | N/A | N/A | N/A |
| 2025 | $4,000 | $240,000 | $0 | $244,000 | $244,000 |
| 2024 | $4,000 | $220,000 | $0 | $224,000 | $224,000 |
| 2023 | $4,000 | $200,000 | $0 | $204,000 | $204,000 |
| 2022 | $4,000 | $180,000 | $0 | $184,000 | $184,000 |
| 2021 | $0 | $140,000 | $0 | $140,000 | $140,000 |
| 2020 | $0 | $120,000 | $0 | $120,000 | $120,000 |
| 2019 | $0 | $130,000 | $0 | $130,000 | $130,000 |
| 2018 | $0 | $125,000 | $0 | $125,000 | $125,000 |
| 2017 | $0 | $90,000 | $0 | $90,000 | $90,000 |
| 2016 | $0 | $90,000 | $0 | $90,000 | $90,000 |
| 2015 | $0 | $98,160 | $0 | $98,160 | $98,160 |
| 2014 | $0 | $98,160 | $0 | $98,160 | $98,160 |
| 2013 | $0 | $98,160 | $0 | $98,160 | $98,160 |
| 2012 | $0 | $98,160 | $0 | $98,160 | $98,160 |
| 2011 | $0 | $98,160 | $0 | $98,160 | $98,160 |
| 2010 | $0 | $98,160 | $0 | $98,160 | $98,160 |
| 2009 | $0 | $122,700 | $0 | $122,700 | $122,700 |
| 2008 | $0 | $124,745 | $0 | $124,745 | $124,745 |
| 2007 | $0 | $106,340 | $0 | $106,340 | $106,340 |
Deed and Sales History
| 1 | 12/16/2020 | WD | Warranty Deed | BALLARD, DAVID A | THOMAS, MORIEN | | | $259,900.00 | 46211 | 4505855 |
| 2 | 06/28/2017 | WD | Warranty Deed | RUTLEDGE, MARCLAY HARRISON | BALLARD, DAVID A | | | $150,000.00 | 29969 | 4425244 |
| 3 | 10/16/2015 | QCD | Quit Claim Deed | RUTLEDGE, JERRY M | RUTLEDGE, MARCLAY HARRISON | | | $0.00 | 22126 | 4389419 |
| 4 | 04/01/1983 | REC | Real Estate Contract | WILBURN, ROBERT C | RUTLEDGE, JERRY M | | | $10,000.00 | 31084 | 408790 |
| 5 | 01/01/1900 | OTHER | Other - Misc. Documents | Unknown | WILBURN, ROBERT C | | | $0.00 | 0 | 0 |
Payout Agreement
| No payout information available.. |