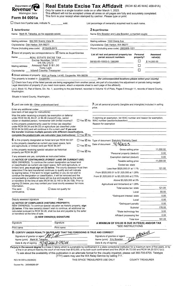
Property
Account |
| Property ID: | 565668 | Abbreviated Legal Description: | IN SW SE: BG SECR SEC 29 N88*W1306.12' N1*E733.63' S52*W330' N43*W306.87' TPB S52*W309.37' N25*W543.64' TO CLN SILVER LAKE RD N54*E 142.34' S43*E529.89' TPB EX CO RD TGW & SUBJ EZ FR 068-3290 (TR 3-A SP 77-114 AF#327498) |
| Geographic ID: | R23329-090-3150 | Agent Code: | |
| Type: | Real | | |
| Tax Area: | 112 - APPRAISER-OH Schl Dist, outside OH, improved, greater than 1 acre | Land Use Code | 11 |
| Open Space: | N | DFL | N |
| Historic Property: | N | Remodel Property: | N |
| Multi-Family Redevelopment: | N | | |
| Township: | 33 | Section: | 29 |
| Range: | R2 |
Location |
| Address: | 2860 OVERVIEW DR OAK HARBOR, WA 98277 | Mapsco: | |
| Neighborhood: | Cycle 6 | Map ID: | 636 |
| Neighborhood CD: | 6 |
Owner |
| Name: | SCOTT, ROBERT P | Owner ID: | 74030 |
| Mailing Address: | LORETTA S SCOTT 2860 OVERVIEW DR OAK HARBOR, WA 98277-7860 | % Ownership: | 100.0000000000% |
| | | Exemptions: | |
Taxes and Assessment Details
Values
| (+) Improvement Homesite Value: | + | $0 | |
| (+) Improvement Non-Homesite Value: | + | $242,588 | |
| (+) Land Homesite Value: | + | $0 | |
| (+) Land Non-Homesite Value: | + | $250,000 | |
| (+) Curr Use (HS): | + | $0 | $0 |
| (+) Curr Use (NHS): | + | $0 | $0 |
| | | -------------------------- | |
| (=) Market Value: | = | $492,588 | |
| (–) Productivity Loss: | – | $0 | |
| | | -------------------------- | |
| (=) Subtotal: | = | $492,588 | |
| (+) Senior Appraised Value: | + | $0 | |
| (+) Non-Senior Appraised Value: | + | $492,588 | |
| | | -------------------------- | |
| (=) Total Appraised Value: | = | $492,588 | |
| (–) Senior Exemption Loss: | – | $0 | |
| (–) Exemption Loss: | – | $0 | |
| | | -------------------------- | |
| (=) Taxable Value: | = | $492,588 | |
Taxing Jurisdiction
| Owner: | SCOTT, ROBERT P | | |
| % Ownership: | 100.0000000000% | | |
| Total Value: | $492,588 | | |
| Tax Area: | 112 - APPRAISER-OH Schl Dist, outside OH, improved, greater than 1 acre |
| CF | Conservation Futures | 0.0316035091 | $492,588 | $492,588 | $15.57 | | |
| CEM1 | Cemetery #1 | 0.0040320932 | $492,588 | $492,588 | $1.99 | | |
| FIRE2 | Fire & Rescue Dist #2 N Whidbey GEN | 0.5475949600 | $492,588 | $492,588 | $269.74 | | |
| HOBOND | Hospital BOND | 0.1910887512 | $492,588 | $492,588 | $94.13 | | |
| HOGEN | Hospital GEN | 0.3902502903 | $492,588 | $492,588 | $192.23 | | |
| CE | County Current Expense | 0.3708482477 | $492,588 | $492,588 | $182.68 | | |
| CR | County Roads | 0.4584763726 | $492,588 | $492,588 | $225.84 | | |
| ISLANDEMS | Hospital GEN (EMS) | 0.5000000000 | $492,588 | $492,588 | $246.29 | | |
| LIB | Library Sno-Isle GEN | 0.3153421757 | $492,588 | $492,588 | $155.33 | | |
| NWHIDPRMT | P & R N Whidbey GEN | 0.2004466701 | $492,588 | $492,588 | $98.74 | | |
| SCH201MO | School 201 Enrichment | 1.8559231640 | $492,588 | $492,588 | $914.21 | | |
| ST | State School | 1.3035497053 | $492,588 | $492,588 | $642.11 | | |
| ST2 | State School Part 2 | 0.8169543533 | $492,588 | $492,588 | $402.42 | | |
| | Total Tax Rate: | 6.9861102925 | | | | | |
| | | | | Taxes w/Current Exemptions: | $3,441.28 | | |
| | | | | Taxes w/o Exemptions: | $3,441.28 | | |
Improvement / Building
| Improvement #1: | RESIDENTIAL | State Code: | Y | 2152.0 sqft | Value: | $242,588 |
| Bathrooms: | 3 | Bedrooms: | 5 | | Ceiling: | DRY WALL SPRAYED | Exterior Wall/Cover: | WOOD SIDING | | Floor Covering: | CARPET/VINYL 80-20 | Floor Structure: | WOOD W/SUBFLOOR | | Foundation: | CONCRETE | Heating: | BASEBOARD ELECTRIC | | Interior Finish: | DRYWALL PAINT | Plumbing Fixture Cnt: | 12 | | Roof Slope: | 5" IN 12" | Roof Structure/Cover: | CJ ASPHALT |
|
| | Type | Description | Class CD | Sub Class CD | Year Built | Area |
| | BAS | BASE/MAIN FLOOR | 3 | 0 | 1976 | 1428.0 |
| | BIG | BUILT IN GARAGE | 3 | 0 | 1976 | 660.1 |
| | OWP | OPEN WOOD PORCH W/STEPS | 3 | 0 | 1976 | 217.5 |
| | OWC | OPEN WOOD PORCH W/STEPS/ROOF/C | 3 | 0 | 1976 | 35.0 |
| | DWN | DOWNSTAIRS LIVING AREA | 3 | 0 | 1976 | 724.0 |
Sketch
Property Image
Land
| 1 | 18 | AC (02.01-03.00) | 0.0000 | 0.00 | 0.00 | 0.00 | 1.00 | $250,000 | $0 |
Roll Value History
| 2026 | N/A | N/A | N/A | N/A | N/A |
| 2025 | $242,588 | $250,000 | $0 | $492,588 | $492,588 |
| 2024 | $251,597 | $230,000 | $0 | $481,597 | $481,597 |
| 2023 | $255,395 | $220,000 | $0 | $475,395 | $475,395 |
| 2022 | $217,453 | $210,000 | $0 | $427,453 | $427,453 |
| 2021 | $191,883 | $160,000 | $0 | $351,883 | $351,883 |
| 2020 | $187,716 | $140,000 | $0 | $327,716 | $327,716 |
| 2019 | $143,712 | $200,000 | $0 | $343,712 | $343,712 |
| 2018 | $144,254 | $170,000 | $0 | $314,254 | $314,254 |
| 2017 | $145,335 | $150,000 | $0 | $295,335 | $295,335 |
| 2016 | $147,744 | $120,000 | $0 | $267,744 | $267,744 |
| 2015 | $149,916 | $106,250 | $0 | $256,166 | $256,166 |
| 2014 | $152,090 | $106,250 | $0 | $258,340 | $258,340 |
| 2013 | $154,262 | $106,250 | $0 | $260,512 | $260,512 |
| 2012 | $156,435 | $106,250 | $0 | $262,685 | $262,685 |
| 2011 | $158,608 | $125,000 | $0 | $283,608 | $283,608 |
| 2010 | $159,015 | $125,000 | $0 | $284,015 | $284,015 |
| 2009 | $166,011 | $135,000 | $0 | $301,011 | $301,011 |
| 2008 | $175,025 | $155,000 | $0 | $330,025 | $330,025 |
| 2007 | $177,298 | $99,825 | $0 | $277,123 | $277,123 |
Deed and Sales History
| 1 | 05/15/2002 | WD | Warranty Deed | ALLEN, OSCAR E | SCOTT, ROBERT P | | | $198,000.00 | 22036 | 4021498 |
| 2 | 10/01/1991 | WD | Warranty Deed | HERMANN, HERBERT | ALLEN, OSCAR E | | | $145,700.00 | 13658 | 91015669 |
| 3 | 01/01/1900 | OTHER | Other - Misc. Documents | Unknown | HERMANN, HERBERT | | | $0.00 | 0 | 0 |
Payout Agreement
| No payout information available.. |