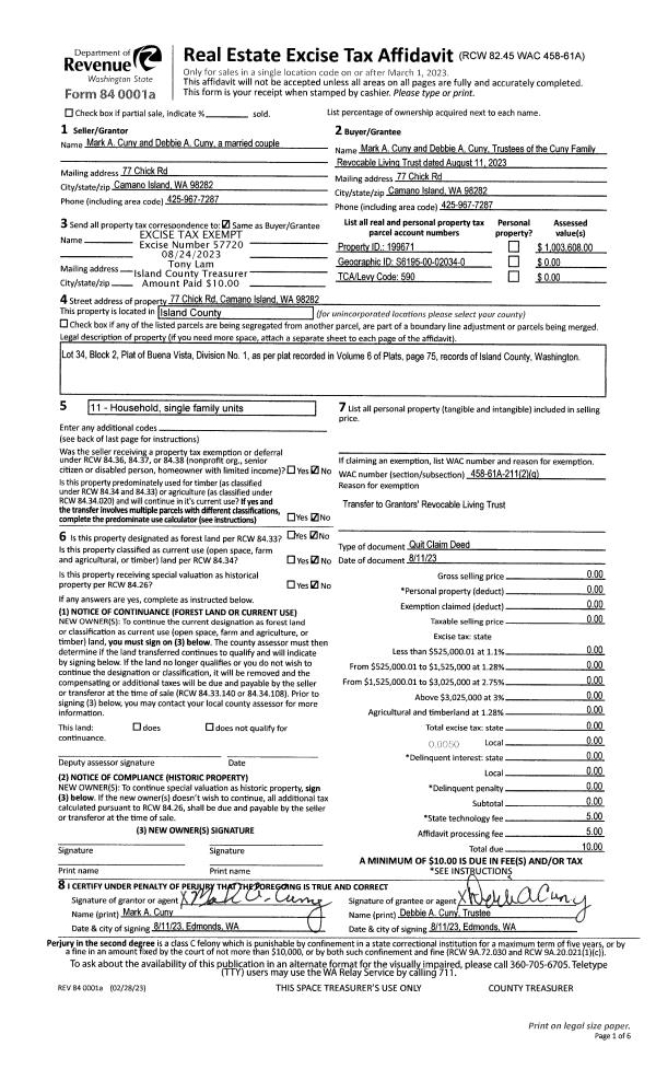
Property
Account |
| Property ID: | 566006 | Abbreviated Legal Description: | IN SE NE SEC 34 & SW NW SEC 35 BG NW CR SE NE SEC 34 E1093.43' TPB S4*E1328.68' E105.70' TO SW CR SW NW SEC 35 N27*E1476.81' TO NLN SW NW N88*W888.40' TPB FR 352-0340 354-0120 & 23334 350-5220 5/27/83 |
| Geographic ID: | R23335-340-0120 | Agent Code: | |
| Type: | Real | | |
| Tax Area: | 112 - APPRAISER-OH Schl Dist, outside OH, improved, greater than 1 acre | Land Use Code | 11 |
| Open Space: | N | DFL | N |
| Historic Property: | N | Remodel Property: | N |
| Multi-Family Redevelopment: | N | | |
| Township: | 33 | Section: | 35 |
| Range: | R2 |
Location |
| Address: | 1584 DEER RIDGE RD OAK HARBOR, WA 98277 | Mapsco: | |
| Neighborhood: | Cycle 6 | Map ID: | 662 |
| Neighborhood CD: | 6 |
Owner |
| Name: | JAKUBIK, NICHOLAS | Owner ID: | 253512 |
| Mailing Address: | SHANNON JAKUBIK 1584 DEER RIDGE RD OAK HARBOR, WA 98277-8673 | % Ownership: | 100.0000000000% |
| | | Exemptions: | |
Taxes and Assessment Details
Values
| (+) Improvement Homesite Value: | + | $0 | |
| (+) Improvement Non-Homesite Value: | + | $311,729 | |
| (+) Land Homesite Value: | + | $0 | |
| (+) Land Non-Homesite Value: | + | $340,000 | |
| (+) Curr Use (HS): | + | $0 | $0 |
| (+) Curr Use (NHS): | + | $0 | $0 |
| | | -------------------------- | |
| (=) Market Value: | = | $651,729 | |
| (–) Productivity Loss: | – | $0 | |
| | | -------------------------- | |
| (=) Subtotal: | = | $651,729 | |
| (+) Senior Appraised Value: | + | $0 | |
| (+) Non-Senior Appraised Value: | + | $651,729 | |
| | | -------------------------- | |
| (=) Total Appraised Value: | = | $651,729 | |
| (–) Senior Exemption Loss: | – | $0 | |
| (–) Exemption Loss: | – | $0 | |
| | | -------------------------- | |
| (=) Taxable Value: | = | $651,729 | |
Taxing Jurisdiction
| Owner: | JAKUBIK, NICHOLAS | | |
| % Ownership: | 100.0000000000% | | |
| Total Value: | $651,729 | | |
| Tax Area: | 112 - APPRAISER-OH Schl Dist, outside OH, improved, greater than 1 acre |
| CF | Conservation Futures | 0.0316035091 | $651,729 | $651,729 | $20.60 | | |
| CEM1 | Cemetery #1 | 0.0040320932 | $651,729 | $651,729 | $2.63 | | |
| FIRE2 | Fire & Rescue Dist #2 N Whidbey GEN | 0.5475949600 | $651,729 | $651,729 | $356.88 | | |
| HOBOND | Hospital BOND | 0.1910887512 | $651,729 | $651,729 | $124.54 | | |
| HOGEN | Hospital GEN | 0.3902502903 | $651,729 | $651,729 | $254.34 | | |
| CE | County Current Expense | 0.3708482477 | $651,729 | $651,729 | $241.69 | | |
| CR | County Roads | 0.4584763726 | $651,729 | $651,729 | $298.80 | | |
| ISLANDEMS | Hospital GEN (EMS) | 0.5000000000 | $651,729 | $651,729 | $325.86 | | |
| LIB | Library Sno-Isle GEN | 0.3153421757 | $651,729 | $651,729 | $205.52 | | |
| NWHIDPRMT | P & R N Whidbey GEN | 0.2004466701 | $651,729 | $651,729 | $130.64 | | |
| SCH201MO | School 201 Enrichment | 1.8559231640 | $651,729 | $651,729 | $1,209.56 | | |
| ST | State School | 1.3035497053 | $651,729 | $651,729 | $849.56 | | |
| ST2 | State School Part 2 | 0.8169543533 | $651,729 | $651,729 | $532.43 | | |
| | Total Tax Rate: | 6.9861102925 | | | | | |
| | | | | Taxes w/Current Exemptions: | $4,553.05 | | |
| | | | | Taxes w/o Exemptions: | $4,553.05 | | |
Improvement / Building
| Improvement #1: | RESIDENTIAL | State Code: | Y | 2160.0 sqft | Value: | $311,729 |
| Bathrooms: | 3 | Bedrooms: | 3 | | Ceiling: | DRYWALL PAINTED | Cooling: | (NONE) | | Exterior Wall/Cover: | WOOD SIDING | Floor Covering: | HARDWOOD/CARP 60-40 | | Floor Structure: | WOOD W/SUBFLOOR | Foundation: | CONCRETE | | Heating: | SPACE HEATERS | Interior Finish: | DRYWALL PAINT | | Plumbing Fixture Cnt: | 12 | Roof Slope: | 8" IN 12" | | Roof Structure/Cover: | CJ ASPHALT |   |   |
|
| | Type | Description | Class CD | Sub Class CD | Year Built | Area |
| | BAS | BASE/MAIN FLOOR | 3 | 0 | 2012 | 1200.0 |
| | OWP | OPEN WOOD PORCH W/STEPS | 3 | 0 | 2012 | 336.0 |
| | UPS | UPPER STORY | 3 | 0 | 2012 | 960.0 |
Sketch
Property Image
Land
| 1 | 35 | AC (10.00-30.99) | 15.0900 | 657320.40 | 0.00 | 0.00 | 1.00 | $340,000 | $0 |
Roll Value History
| 2026 | N/A | N/A | N/A | N/A | N/A |
| 2025 | $311,729 | $340,000 | $0 | $651,729 | $651,729 |
| 2024 | $314,348 | $300,000 | $0 | $614,348 | $614,348 |
| 2023 | $317,142 | $280,000 | $0 | $597,142 | $597,142 |
| 2022 | $284,644 | $270,000 | $0 | $554,644 | $554,644 |
| 2021 | $249,736 | $250,000 | $0 | $499,736 | $499,736 |
| 2020 | $242,450 | $240,000 | $0 | $482,450 | $482,450 |
| 2019 | $184,692 | $300,000 | $0 | $484,692 | $484,692 |
| 2018 | $185,188 | $230,000 | $0 | $415,188 | $415,188 |
| 2017 | $186,178 | $160,000 | $0 | $346,178 | $346,178 |
| 2016 | $176,034 | $220,000 | $0 | $396,034 | $396,034 |
| 2015 | $177,887 | $220,000 | $0 | $397,887 | $397,887 |
| 2014 | $15,714 | $256,530 | $0 | $272,244 | $272,244 |
| 2013 | $15,714 | $256,530 | $0 | $272,244 | $272,244 |
| 2012 | $15,714 | $127,210 | $0 | $142,924 | $142,924 |
| 2011 | $15,714 | $141,300 | $0 | $157,014 | $157,014 |
| 2010 | $24,477 | $141,300 | $0 | $165,777 | $165,777 |
| 2009 | $24,503 | $282,200 | $0 | $306,703 | $306,703 |
| 2008 | $24,503 | $225,840 | $0 | $250,343 | $250,343 |
| 2007 | $24,503 | $122,983 | $0 | $147,486 | $147,486 |
Deed and Sales History
| 1 | 02/18/2011 | WD | Warranty Deed | NEVILLE, WILLIAM GARY | JAKUBIK, NICHOLAS | | | $375,000.00 | 3664 | 4290943 |
| 2 | 04/08/2008 | TRUSTEED | Trustee's Deed | NEVILLE, WILLIAM GARY | NEVILLE, WILLIAM GARY | | | $0.00 | 80894 | 4226114 |
| 3 | 03/14/2008 | TRUSTEED | Trustee's Deed | SOUND PROPERTY SOLUTIONS, | NEVILLE, WILLIAM GARY | | | $0.00 | 80650 | 4224341 |
| 4 | 07/14/2006 | WD | Warranty Deed | NEVILLE, WILLIAM G | SOUND PROPERTY SOLUTIONS, | | | $550,000.00 | 63134 | 4176539 |
| 5 | 10/01/1982 | OTHER | Other - Misc. Documents | NEVILLE, WILLIAM G | NEVILLE, WILLIAM G | | | $0.00 | 59692 | 0 |
| 6 | 01/01/1900 | OTHER | Other - Misc. Documents | Unknown | NEVILLE, WILLIAM G | | | $0.00 | 0 | 0 |
Payout Agreement
| No payout information available.. |