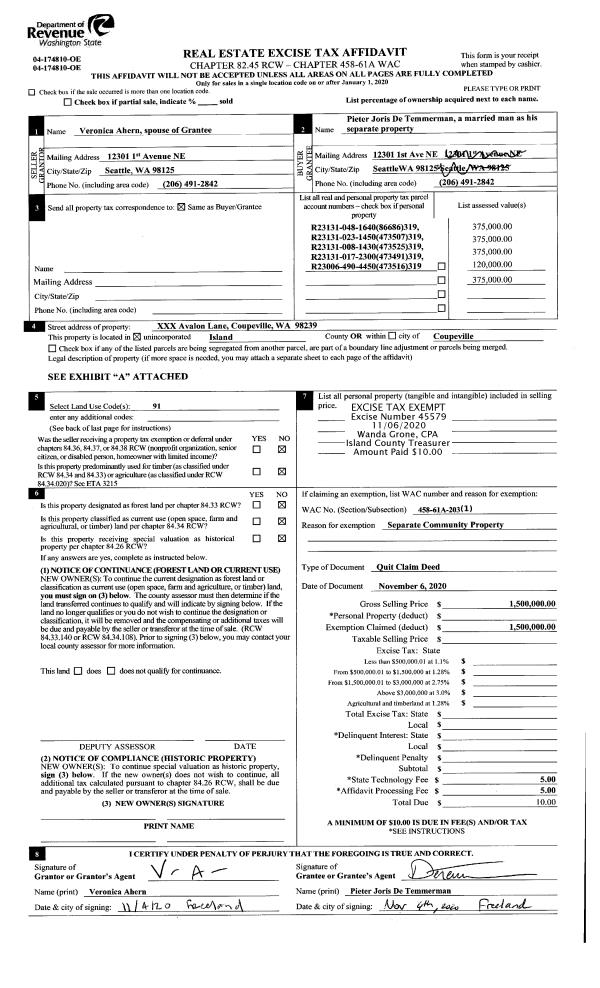
Property
Account |
| Property ID: | 56664 | Abbreviated Legal Description: | 77 - N/2 SE NE: BG INTER E LN CO RD & NLN N/2 SE NE ELY 60'TPB SLY 145' ELY 120 NLY 145' WLY 120'TPB |
| Geographic ID: | R22922-386-4130 | Agent Code: | |
| Type: | Real | | |
| Tax Area: | 710 - APPRAISER-S Whid Schl Dist, outside Langley, improved & 1 acre or less | Land Use Code | 11 |
| Open Space: | N | DFL | N |
| Historic Property: | N | Remodel Property: | N |
| Multi-Family Redevelopment: | N | | |
| Township: | 29 | Section: | 22 |
| Range: | R2 |
Location |
| Address: | 1511 ROY RD FREELAND, WA 98249 | Mapsco: | |
| Neighborhood: | Cycle 3 | Map ID: | 337 |
| Neighborhood CD: | 3 |
Owner |
| Name: | LAPP, CYNTHIA H | Owner ID: | 281419 |
| Mailing Address: | 6525 2ND NW SEATTLE, WA 98117 | % Ownership: | 100.0000000000% |
| | | Exemptions: | |
Taxes and Assessment Details
Values
| (+) Improvement Homesite Value: | + | $0 | |
| (+) Improvement Non-Homesite Value: | + | $51,301 | |
| (+) Land Homesite Value: | + | $0 | |
| (+) Land Non-Homesite Value: | + | $230,000 | |
| (+) Curr Use (HS): | + | $0 | $0 |
| (+) Curr Use (NHS): | + | $0 | $0 |
| | | -------------------------- | |
| (=) Market Value: | = | $281,301 | |
| (–) Productivity Loss: | – | $0 | |
| | | -------------------------- | |
| (=) Subtotal: | = | $281,301 | |
| (+) Senior Appraised Value: | + | $0 | |
| (+) Non-Senior Appraised Value: | + | $281,301 | |
| | | -------------------------- | |
| (=) Total Appraised Value: | = | $281,301 | |
| (–) Senior Exemption Loss: | – | $0 | |
| (–) Exemption Loss: | – | $0 | |
| | | -------------------------- | |
| (=) Taxable Value: | = | $281,301 | |
Taxing Jurisdiction
| Owner: | LAPP, CYNTHIA H | | |
| % Ownership: | 100.0000000000% | | |
| Total Value: | $281,301 | | |
| Tax Area: | 710 - APPRAISER-S Whid Schl Dist, outside Langley, improved & 1 acre or less |
| CF | Conservation Futures | 0.0316035091 | $281,301 | $281,301 | $8.89 | | |
| FIRE3 | Fire & Rescue Dist #3 S Whidbey GEN | 1.2004855531 | $281,301 | $281,301 | $337.70 | | |
| HOBOND | Hospital BOND | 0.1910887512 | $281,301 | $281,301 | $53.75 | | |
| HOGEN | Hospital GEN | 0.3902502903 | $281,301 | $281,301 | $109.78 | | |
| CE | County Current Expense | 0.3708482477 | $281,301 | $281,301 | $104.32 | | |
| CR | County Roads | 0.4584763726 | $281,301 | $281,301 | $128.97 | | |
| ISLANDEMS | Hospital GEN (EMS) | 0.5000000000 | $281,301 | $281,301 | $140.65 | | |
| LIB | Library Sno-Isle GEN | 0.3153421757 | $281,301 | $281,301 | $88.71 | | |
| PORTWHID | Port of S Whidbey GEN | 0.1094540357 | $281,301 | $281,301 | $30.79 | | |
| SCH206BOND | School 206 BOND | 0.3161759235 | $281,301 | $281,301 | $88.94 | | |
| SCH206MO | School 206 Enrichment | 0.4547169547 | $281,301 | $281,301 | $127.91 | | |
| ST | State School | 1.3035497053 | $281,301 | $281,301 | $366.69 | | |
| ST2 | State School Part 2 | 0.8169543533 | $281,301 | $281,301 | $229.81 | | |
| SWHIDPRBD | P & R S Whidbey BOND | 0.0152817568 | $281,301 | $281,301 | $4.30 | | |
| SWHIDPRBD2 | P & R S Whidbey BOND2 | 0.0138911264 | $281,301 | $281,301 | $3.91 | | |
| SWHIDPRMT | P & R S Whidbey GEN | 0.2053334452 | $281,301 | $281,301 | $57.76 | | |
| | Total Tax Rate: | 6.6934522006 | | | | | |
| | | | | Taxes w/Current Exemptions: | $1,882.88 | | |
| | | | | Taxes w/o Exemptions: | $1,882.88 | | |
Improvement / Building
| Improvement #1: | RESIDENTIAL | State Code: | Y | 462.2 sqft | Value: | $51,301 |
| Bathrooms: | 1 | Bedrooms: | 0 | | Ceiling: | ACOUSTIC FURRED | Exterior Wall/Cover: | WOOD SIDING | | Floor Covering: | CARPET 100% | Floor Structure: | WOOD W/SUBFLOOR | | Foundation: | WOOD BLOCKS | Heating: | (NONE) | | Interior Finish: | DRYWALL PAINT | Plumbing Fixture Cnt: | 5 | | Roof Slope: | FLAT | Roof Structure/Cover: | BEAM ROLL COMPOSITION |
|
| | Type | Description | Class CD | Sub Class CD | Year Built | Area |
| | BAS | BASE/MAIN FLOOR | 2 | 0 | 1961 | 462.2 |
| | OWP | OPEN WOOD PORCH W/STEPS | 2 | 0 | 1961 | 107.5 |
Sketch
Property Image
Land
| 1 | 15 | SQ (12001-21780) | 0.4000 | 17424.00 | 0.00 | 0.00 | 1.00 | $230,000 | $0 |
Roll Value History
| 2026 | N/A | N/A | N/A | N/A | N/A |
| 2025 | $51,301 | $230,000 | $0 | $281,301 | $281,301 |
| 2024 | $52,152 | $210,000 | $0 | $262,152 | $262,152 |
| 2023 | $53,004 | $230,000 | $0 | $283,004 | $283,004 |
| 2022 | $48,768 | $210,000 | $0 | $258,768 | $258,768 |
| 2021 | $43,077 | $140,000 | $0 | $183,077 | $183,077 |
| 2020 | $41,894 | $130,000 | $0 | $171,894 | $171,894 |
| 2019 | $29,728 | $170,000 | $0 | $199,728 | $199,728 |
| 2018 | $29,841 | $130,000 | $0 | $159,841 | $159,841 |
| 2017 | $15,250 | $110,000 | $0 | $125,250 | $125,250 |
| 2016 | $15,250 | $100,000 | $0 | $115,250 | $115,250 |
| 2015 | $15,250 | $80,000 | $0 | $95,250 | $95,250 |
| 2014 | $15,250 | $59,500 | $0 | $74,750 | $74,750 |
| 2013 | $17,718 | $59,500 | $0 | $77,218 | $77,218 |
| 2012 | $17,718 | $59,500 | $0 | $77,218 | $77,218 |
| 2011 | $17,718 | $70,000 | $0 | $87,718 | $87,718 |
| 2010 | $18,558 | $70,000 | $0 | $88,558 | $88,558 |
| 2009 | $18,885 | $75,000 | $0 | $93,885 | $93,885 |
| 2008 | $18,898 | $85,000 | $0 | $103,898 | $103,898 |
| 2007 | $18,781 | $68,000 | $0 | $86,781 | $86,781 |
Deed and Sales History
| 1 | 08/09/2017 | WD | Warranty Deed | RUESCHENBERG, JAMES H | LAPP, CYNTHIA H | | | $169,000.00 | 30634 | 4428163 |
| 2 | 07/31/2001 | WD | Warranty Deed | RUESCHENBERG, JAMES H | RUESCHENBERG, JAMES H | | | $0.00 | 13154 | 20040762 |
| 3 | 07/31/2001 | WD | Warranty Deed | Unknown | RUESCHENBERG, JAMES H | | | $18,000.00 | 13152 | 20040760 |
| 4 | 07/28/2001 | WD | Warranty Deed | RUESCHENBERG, JAMES H | RUESCHENBERG, JAMES H | | | $0.00 | 13153 | 20040761 |
| 5 | 03/01/1989 | WD | Warranty Deed | RUESCHENBERG, H B | COUTURE, JAMES W | | | $0.00 | 91200 | 89004194 |
| 6 | 01/01/1900 | OTHER | Other - Misc. Documents | Unknown | RUESCHENBERG, H B | | | $0.00 | 0 | 0 |
Payout Agreement
| No payout information available.. |