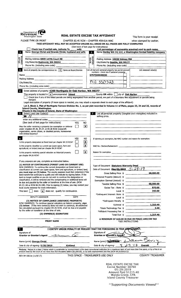
Property
Account |
| Property ID: | 567292 | Abbreviated Legal Description: | W/2 SW SW |
| Geographic ID: | R23117-067-0310 | Agent Code: | |
| Type: | Real | | |
| Tax Area: | 319 - APPRAISER-Cpvl Schl Dist, outside Cpvl, vacant & 50 acres or less | Land Use Code | 88 |
| Open Space: | N | DFL | Y |
| Historic Property: | N | Remodel Property: | N |
| Multi-Family Redevelopment: | N | | |
| Township: | 31 | Section: | 17 |
| Range: | R2 |
Location |
| Address: | | Mapsco: | |
| Neighborhood: | Cycle 2 | Map ID: | 487 |
| Neighborhood CD: | 2 |
Owner |
| Name: | MCKEE, DOUG | Owner ID: | 177372 |
| Mailing Address: | LINDA DOE MCKEE 5758 CAMERON RD FREELAND, WA 98249 | % Ownership: | 100.0000000000% |
| | | Exemptions: | |
Taxes and Assessment Details
Values
| (+) Improvement Homesite Value: | + | $0 | |
| (+) Improvement Non-Homesite Value: | + | $0 | |
| (+) Land Homesite Value: | + | $0 | |
| (+) Land Non-Homesite Value: | + | $0 | |
| (+) Curr Use (HS): | + | $0 | $0 |
| (+) Curr Use (NHS): | + | $320,100 | $4,925 |
| | | -------------------------- | |
| (=) Market Value: | = | $320,100 | |
| (–) Productivity Loss: | – | $315,175 | |
| | | -------------------------- | |
| (=) Subtotal: | = | $4,925 | |
| (+) Senior Appraised Value: | + | $0 | |
| (+) Non-Senior Appraised Value: | + | $4,925 | |
| | | -------------------------- | |
| (=) Total Appraised Value: | = | $4,925 | |
| (–) Senior Exemption Loss: | – | $0 | |
| (–) Exemption Loss: | – | $0 | |
| | | -------------------------- | |
| (=) Taxable Value: | = | $4,925 | |
Taxing Jurisdiction
| Owner: | MCKEE, DOUG | | |
| % Ownership: | 100.0000000000% | | |
| Total Value: | $320,100 | | |
| Tax Area: | 319 - APPRAISER-Cpvl Schl Dist, outside Cpvl, vacant & 50 acres or less |
| CF | Conservation Futures | 0.0316035091 | $4,925 | $4,925 | $0.16 | | |
| CEM2 | Cemetery #2 | 0.0095056933 | $4,925 | $4,925 | $0.05 | | |
| HOBOND | Hospital BOND | 0.1910887512 | $4,925 | $4,925 | $0.94 | | |
| HOGEN | Hospital GEN | 0.3902502903 | $4,925 | $4,925 | $1.92 | | |
| CE | County Current Expense | 0.3708482477 | $4,925 | $4,925 | $1.83 | | |
| CR | County Roads | 0.4584763726 | $4,925 | $4,925 | $2.26 | | |
| ISLANDEMS | Hospital GEN (EMS) | 0.5000000000 | $4,925 | $4,925 | $2.46 | | |
| LIB | Library Sno-Isle GEN | 0.3153421757 | $4,925 | $4,925 | $1.55 | | |
| LIBCAP | Library Sno-Isle BOND (Cap Fac Imp Area) | 0.0543427938 | $4,925 | $4,925 | $0.27 | | |
| POCOUP | Port of Coupeville GEN | 0.1093371703 | $4,925 | $4,925 | $0.54 | | |
| POCOUPIDD | Port of Coupeville IDD | 0.3409740022 | $4,925 | $4,925 | $1.68 | | |
| COUPSDTECH | School 204 CP (TECH) | 0.7545480007 | $4,925 | $4,925 | $3.72 | | |
| SCH204MO | School 204 Enrichment | 0.6716186034 | $4,925 | $4,925 | $3.31 | | |
| ST | State School | 1.3035497053 | $4,925 | $4,925 | $6.42 | | |
| ST2 | State School Part 2 | 0.8169543533 | $4,925 | $4,925 | $4.02 | | |
| | Total Tax Rate: | 6.3184396689 | | | | | |
| | | | | Taxes w/Current Exemptions: | $31.13 | | |
| | | | | Taxes w/o Exemptions: | $31.13 | | |
Improvement / Building
Sketch
| No sketches available for this property. |
Property Image
Land
| 1 | 35 | AC (10.00-30.99) | 4.3800 | 190792.80 | 0.00 | 0.00 | 1.00 | $70,102 | $2,020 |
| 2 | 35 | AC (10.00-30.99) | 15.6200 | 680407.20 | 0.00 | 0.00 | 1.00 | $249,998 | $2,905 |
Roll Value History
| 2026 | N/A | N/A | N/A | N/A | N/A |
| 2025 | $0 | $320,100 | $4,925 | $4,925 | $4,925 |
| 2024 | $0 | $300,000 | $4,941 | $4,941 | $4,941 |
| 2023 | $0 | $280,000 | $4,816 | $4,816 | $4,816 |
| 2022 | $0 | $260,000 | $4,816 | $4,816 | $4,816 |
| 2021 | $0 | $230,000 | $4,816 | $4,816 | $4,816 |
| 2020 | $0 | $200,000 | $4,816 | $4,816 | $4,816 |
| 2019 | $0 | $200,000 | $4,722 | $4,722 | $4,722 |
| 2018 | $0 | $200,000 | $4,691 | $4,691 | $4,691 |
| 2017 | $0 | $200,000 | $4,691 | $4,691 | $4,691 |
| 2016 | $0 | $200,000 | $2,020 | $2,020 | $2,020 |
| 2015 | $0 | $170,000 | $2,020 | $2,020 | $2,020 |
| 2014 | $0 | $170,000 | $2,020 | $2,020 | $2,020 |
| 2013 | $0 | $170,000 | $2,020 | $2,020 | $2,020 |
| 2012 | $0 | $170,000 | $2,020 | $2,020 | $2,020 |
| 2011 | $0 | $200,000 | $2,020 | $2,020 | $2,020 |
| 2010 | $0 | $200,000 | $2,020 | $2,020 | $2,020 |
| 2009 | $0 | $240,000 | $2,020 | $2,020 | $2,020 |
| 2008 | $0 | $260,000 | $2,020 | $2,020 | $2,020 |
| 2007 | $0 | $260,000 | $2,020 | $2,020 | $2,020 |
Deed and Sales History
| 1 | 06/22/1998 | WD | Warranty Deed | MCKEE, DOUG & | MCKEE, DOUG | | | $80,000.00 | 82645 | 98013634 |
| 2 | 04/01/1983 | QCD | Quit Claim Deed | DAVIS, JAMES V | DAVIS, JAMES V | | | $0.00 | 31055 | 408640 |
| 3 | 01/01/1900 | OTHER | Other - Misc. Documents | Unknown | DAVIS, JAMES V | | | $0.00 | 0 | 0 |
| 4 | 01/01/1900 | OTHER | Other - Misc. Documents | DAVIS, JAMES V | MCKEE, DOUG & | | | $0.00 | 82645 | 98013634 |
Payout Agreement
| No payout information available.. |