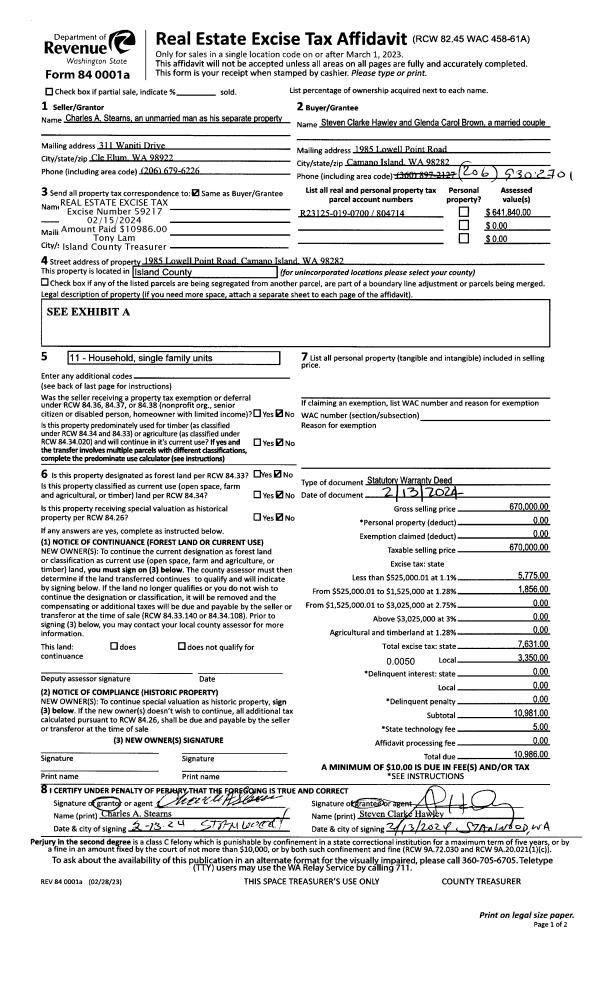
Property
Account |
| Property ID: | 568040 | Abbreviated Legal Description: | 1981 FESTIVAL 14X66 VIN# WAFL1AB06313896 TPO %04715 FROM K-550629 |
| Geographic ID: | M91100000010-1 | Agent Code: | |
| Type: | Mobile Home | | |
| Tax Area: | 100 - APPRAISER-OH Schl Dist, in OH | Land Use Code | 11 |
| Open Space: | N | DFL | N |
| Historic Property: | N | Remodel Property: | N |
| Multi-Family Redevelopment: | N | | |
| Township: | | Section: | |
| Range: | |
Location |
| Address: | 700 NW CROSBY AVE # 10 OAK HARBOR, WA 98277 | Mapsco: | |
| Neighborhood: | Cycle 1 | Map ID: | |
| Neighborhood CD: | 1 |
Owner |
| Name: | SANTIAGO-AMARO, ADAMARI | Owner ID: | 310743 |
| Mailing Address: | 700 NW CROSBY AVE #10 OAK HARBOR, WA 98277 | % Ownership: | 100.0000000000% |
| | | Exemptions: | |
Taxes and Assessment Details
Values
| (+) Improvement Homesite Value: | + | $0 | |
| (+) Improvement Non-Homesite Value: | + | $13,076 | |
| (+) Land Homesite Value: | + | $0 | |
| (+) Land Non-Homesite Value: | + | $0 | |
| (+) Curr Use (HS): | + | $0 | $0 |
| (+) Curr Use (NHS): | + | $0 | $0 |
| | | -------------------------- | |
| (=) Market Value: | = | $13,076 | |
| (–) Productivity Loss: | – | $0 | |
| | | -------------------------- | |
| (=) Subtotal: | = | $13,076 | |
| (+) Senior Appraised Value: | + | $0 | |
| (+) Non-Senior Appraised Value: | + | $13,076 | |
| | | -------------------------- | |
| (=) Total Appraised Value: | = | $13,076 | |
| (–) Senior Exemption Loss: | – | $0 | |
| (–) Exemption Loss: | – | $0 | |
| | | -------------------------- | |
| (=) Taxable Value: | = | $13,076 | |
Taxing Jurisdiction
| Owner: | SANTIAGO-AMARO, ADAMARI | | |
| % Ownership: | 100.0000000000% | | |
| Total Value: | $13,076 | | |
| Tax Area: | 100 - APPRAISER-OH Schl Dist, in OH |
| CF | Conservation Futures | 0.0316035091 | $13,076 | $13,076 | $0.41 | | |
| CEM1 | Cemetery #1 | 0.0040320932 | $13,076 | $13,076 | $0.05 | | |
| COH | City of Oak Harbor | 2.3001546061 | $13,076 | $13,076 | $30.08 | | |
| OAKBOND | City of Oak Harbor BOND | 0.1926904192 | $13,076 | $13,076 | $2.52 | | |
| HOBOND | Hospital BOND | 0.1910887512 | $13,076 | $13,076 | $2.50 | | |
| HOGEN | Hospital GEN | 0.3902502903 | $13,076 | $13,076 | $5.10 | | |
| CE | County Current Expense | 0.3708482477 | $13,076 | $13,076 | $4.85 | | |
| ISLANDEMS | Hospital GEN (EMS) | 0.5000000000 | $13,076 | $13,076 | $6.54 | | |
| LIB | Library Sno-Isle GEN | 0.3153421757 | $13,076 | $13,076 | $4.12 | | |
| NWHIDPRMT | P & R N Whidbey GEN | 0.2004466701 | $13,076 | $13,076 | $2.62 | | |
| SCH201MO | School 201 Enrichment | 1.8559231640 | $13,076 | $13,076 | $24.27 | | |
| ST | State School | 1.3035497053 | $13,076 | $13,076 | $17.05 | | |
| ST2 | State School Part 2 | 0.8169543533 | $13,076 | $13,076 | $10.68 | | |
| | Total Tax Rate: | 8.4728839852 | | | | | |
| | | | | Taxes w/Current Exemptions: | $110.79 | | |
| | | | | Taxes w/o Exemptions: | $110.79 | | |
Improvement / Building
| Improvement #1: | MANUFACTURED HOME | State Code: | Y | 924.0 sqft | Value: | $13,076 |
| Bathrooms: | 0 | Bedrooms: | 0 | | Ceiling: | PLASTER PAINTED | Cooling: | EVAP NO DUCT | | Exterior Wall/Cover: | VINYL | Floor Covering: | CARPET 100% | | Floor Structure: | SLAB ON GRADE | Foundation: | SLAB | | Heating: | FHA ELECTRIC | Interior Finish: | PLASTER | | Plumbing Fixture Cnt: | 1 | Roof Slope: | FLAT | | Roof Structure/Cover: | CJ ALUMINIUM HEAVY |   |   |
|
Sketch
Property Image
Land
No land segments exist for this property.
Roll Value History
| 2026 | N/A | N/A | N/A | N/A | N/A |
| 2025 | $13,076 | $0 | $0 | $13,076 | $13,076 |
| 2024 | $13,920 | $0 | $0 | $13,920 | $13,920 |
| 2023 | $11,115 | $0 | $0 | $11,115 | $11,115 |
| 2022 | $10,715 | $0 | $0 | $10,715 | $10,715 |
| 2021 | $9,882 | $0 | $0 | $9,882 | $9,882 |
| 2020 | $10,416 | $0 | $0 | $10,416 | $10,416 |
| 2019 | $8,636 | $0 | $0 | $8,636 | $8,636 |
| 2018 | $9,068 | $0 | $0 | $9,068 | $9,068 |
| 2017 | $7,557 | $0 | $0 | $7,557 | $7,557 |
| 2016 | $8,205 | $0 | $0 | $8,205 | $8,205 |
| 2015 | $8,636 | $0 | $0 | $8,636 | $8,636 |
| 2014 | $9,068 | $0 | $0 | $9,068 | $9,068 |
| 2013 | $9,500 | $0 | $0 | $9,500 | $0 |
| 2012 | $9,932 | $0 | $0 | $9,932 | $0 |
| 2011 | $7,373 | $0 | $0 | $7,373 | $0 |
| 2010 | $7,373 | $0 | $0 | $7,373 | $7,373 |
| 2009 | $9,519 | $0 | $0 | $9,519 | $9,519 |
| 2008 | $9,962 | $0 | $0 | $9,962 | $9,962 |
| 2007 | $10,406 | $0 | $0 | $10,406 | $10,406 |
Deed and Sales History
| 1 | 11/22/2023 | MANHOME | Manufactured Home | COOK, PAMELA | SANTIAGO-AMARO, ADAMARI | | | $3,000.00 | 58589 | |
| 2 | 01/01/2015 | MANHOME | Manufactured Home | PARKWOOD MANOR | COOK, PAMELA | | | $0.00 | 23141 | |
| 3 | 01/01/2015 | MANHOME | Manufactured Home | FOSTER, MARIE | PARKWOOD MANOR | | | $0.00 | 23140 | |
| 4 | 03/01/2007 | QCD | Quit Claim Deed | FOSTER, JULIE M | FOSTER, MARIE | | | $0.00 | 70736 | 0 |
| 5 | 07/18/2003 | OTHER | Other - Misc. Documents | COFFMAN, MARC A | FOSTER, JULIE M | | | $5,500.00 | 33096 | 0 |
| 6 | 04/01/1990 | OTHER | Other - Misc. Documents | INTERWEST, SAVINGS B | COFFMAN, MARC A | | | $12,497.00 | 1825 | 0 |
| 7 | 08/01/1989 | OTHER | Other - Misc. Documents | HARDAGE, ROBERT W | INTERWEST, SAVINGS B | | | $0.00 | 93531 | 0 |
| 8 | 03/01/1985 | OTHER | Other - Misc. Documents | BROCK, ERNEST L | HARDAGE, ROBERT W | | | $18,300.00 | 50511 | 0 |
| 9 | 04/01/1983 | OTHER | Other - Misc. Documents | Unknown | BROCK, ERNEST L | | | $0.00 | 31022000 | 0 |
Payout Agreement
| No payout information available.. |