Property
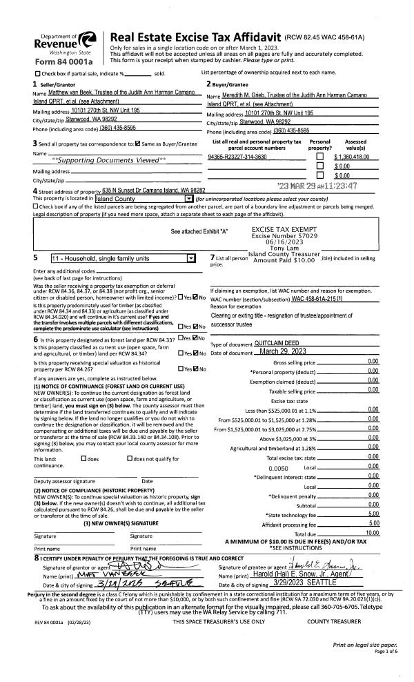
Account |
| Property ID: | 568086 | Abbreviated Legal Description: | E410' OF W810' OF N/2 NW SE LY S OF SILVER LAKE RD TGW & SUB EAS FR 214-3310 & 235-3130 7/7/83 |
| Geographic ID: | R23328-223-3230 | Agent Code: | |
| Type: | Real | | |
| Tax Area: | 112 - APPRAISER-OH Schl Dist, outside OH, improved, greater than 1 acre | Land Use Code | 11 |
| Open Space: | N | DFL | N |
| Historic Property: | N | Remodel Property: | N |
| Multi-Family Redevelopment: | N | | |
| Township: | 33 | Section: | 28 |
| Range: | R2 |
Location |
| Address: | 1044 SILVER LAKE RD OAK HARBOR, WA 98277 | Mapsco: | |
| Neighborhood: | Cycle 6 | Map ID: | 632 |
| Neighborhood CD: | 6 |
Owner |
| Name: | TURNEK, FRANK J | Owner ID: | 184173 |
| Mailing Address: | JOSEFINA TURNEK 1044 SILVER LAKE RD OAK HARBOR, WA 98277-9044 | % Ownership: | 100.0000000000% |
| | | Exemptions: | |
Taxes and Assessment Details
Values
| (+) Improvement Homesite Value: | + | $0 | |
| (+) Improvement Non-Homesite Value: | + | $533,438 | |
| (+) Land Homesite Value: | + | $0 | |
| (+) Land Non-Homesite Value: | + | $300,000 | |
| (+) Curr Use (HS): | + | $0 | $0 |
| (+) Curr Use (NHS): | + | $0 | $0 |
| | | -------------------------- | |
| (=) Market Value: | = | $833,438 | |
| (–) Productivity Loss: | – | $0 | |
| | | -------------------------- | |
| (=) Subtotal: | = | $833,438 | |
| (+) Senior Appraised Value: | + | $0 | |
| (+) Non-Senior Appraised Value: | + | $833,438 | |
| | | -------------------------- | |
| (=) Total Appraised Value: | = | $833,438 | |
| (–) Senior Exemption Loss: | – | $0 | |
| (–) Exemption Loss: | – | $0 | |
| | | -------------------------- | |
| (=) Taxable Value: | = | $833,438 | |
Taxing Jurisdiction
| Owner: | TURNEK, FRANK J | | |
| % Ownership: | 100.0000000000% | | |
| Total Value: | $833,438 | | |
| Tax Area: | 112 - APPRAISER-OH Schl Dist, outside OH, improved, greater than 1 acre |
| CF | Conservation Futures | 0.0316035091 | $833,438 | $833,438 | $26.34 | | |
| CEM1 | Cemetery #1 | 0.0040320932 | $833,438 | $833,438 | $3.36 | | |
| FIRE2 | Fire & Rescue Dist #2 N Whidbey GEN | 0.5475949600 | $833,438 | $833,438 | $456.39 | | |
| HOBOND | Hospital BOND | 0.1910887512 | $833,438 | $833,438 | $159.26 | | |
| HOGEN | Hospital GEN | 0.3902502903 | $833,438 | $833,438 | $325.25 | | |
| CE | County Current Expense | 0.3708482477 | $833,438 | $833,438 | $309.08 | | |
| CR | County Roads | 0.4584763726 | $833,438 | $833,438 | $382.11 | | |
| ISLANDEMS | Hospital GEN (EMS) | 0.5000000000 | $833,438 | $833,438 | $416.72 | | |
| LIB | Library Sno-Isle GEN | 0.3153421757 | $833,438 | $833,438 | $262.82 | | |
| NWHIDPRMT | P & R N Whidbey GEN | 0.2004466701 | $833,438 | $833,438 | $167.06 | | |
| SCH201MO | School 201 Enrichment | 1.8559231640 | $833,438 | $833,438 | $1,546.80 | | |
| ST | State School | 1.3035497053 | $833,438 | $833,438 | $1,086.43 | | |
| ST2 | State School Part 2 | 0.8169543533 | $833,438 | $833,438 | $680.88 | | |
| | Total Tax Rate: | 6.9861102925 | | | | | |
| | | | | Taxes w/Current Exemptions: | $5,822.50 | | |
| | | | | Taxes w/o Exemptions: | $5,822.50 | | |
Improvement / Building
| Improvement #1: | RESIDENTIAL | State Code: | Y | 3857.0 sqft | Value: | $533,438 |
| Bathrooms: | 3.5 | Bedrooms: | 3 | | Ceiling: | DRYWALL PAINTED | Cooling: | HEAT PUMP/CONV/V | | Exterior Wall/Cover: | CEMENT FIBER | Floor Covering: | VINYL/HARDWOOD 60-40 | | Floor Structure: | WOOD W/SUBFLOOR | Foundation: | CONCRETE | | Interior Finish: | DRYWALL PAINT | Plumbing Fixture Cnt: | 14 | | Roof Slope: | 4" IN 12" | Roof Structure/Cover: | BEAM ASPHALT |
|
| | Type | Description | Class CD | Sub Class CD | Year Built | Area |
| | BAS | BASE/MAIN FLOOR | 4 | 0 | 1972 | 2642.0 |
| | OP1 | OPEN PORCH SLAB | 4 | 0 | 1972 | 330.0 |
| | OP4 | OPEN PORCH W/CEILING-ROOF | 4 | 0 | 1972 | 112.0 |
| | AGR | ATTACHED GARAGE | 4 | 0 | 1972 | 625.0 |
| | OWP | OPEN WOOD PORCH W/STEPS | 4 | 0 | 1972 | 596.0 |
| | UPS | UPPER STORY | 4 | 0 | 1972 | 630.0 |
| | OWC | OPEN WOOD PORCH W/STEPS/ROOF/C | 4 | 0 | 1972 | 656.0 |
| | DWN | DOWNSTAIRS LIVING AREA | 4 | 0 | 1972 | 585.0 |
| | UTY | STORAGE/UTILITY | 4 | 0 | 1972 | 680.0 |
| | UTY | STORAGE/UTILITY | 4 | 0 | 1972 | 280.0 |
Sketch
Property Image
Land
| 1 | 32 | AC (03.01-09.99) | 4.7000 | 0.00 | 0.00 | 0.00 | 1.00 | $300,000 | $0 |
Roll Value History
| 2026 | N/A | N/A | N/A | N/A | N/A |
| 2025 | $533,438 | $300,000 | $0 | $833,438 | $833,438 |
| 2024 | $540,972 | $280,000 | $0 | $820,972 | $820,972 |
| 2023 | $548,507 | $270,000 | $0 | $818,507 | $818,507 |
| 2022 | $394,666 | $240,000 | $0 | $634,666 | $634,666 |
| 2021 | $347,648 | $160,000 | $0 | $507,648 | $507,648 |
| 2020 | $340,626 | $140,000 | $0 | $480,626 | $480,626 |
| 2019 | $286,637 | $200,000 | $0 | $486,637 | $486,637 |
| 2018 | $287,645 | $170,000 | $0 | $457,645 | $457,645 |
| 2017 | $289,060 | $150,000 | $0 | $439,060 | $439,060 |
| 2016 | $269,778 | $140,000 | $0 | $409,778 | $409,778 |
| 2015 | $273,578 | $120,000 | $0 | $393,578 | $393,578 |
| 2014 | $277,380 | $100,000 | $0 | $377,380 | $377,380 |
| 2013 | $281,178 | $93,060 | $0 | $374,238 | $374,238 |
| 2012 | $284,978 | $93,060 | $0 | $378,038 | $378,038 |
| 2011 | $268,179 | $103,400 | $0 | $371,579 | $371,579 |
| 2010 | $280,053 | $103,400 | $0 | $383,453 | $383,453 |
| 2009 | $258,424 | $117,500 | $0 | $375,924 | $375,924 |
| 2008 | $231,925 | $136,300 | $0 | $368,225 | $368,225 |
| 2007 | $213,547 | $103,917 | $0 | $317,464 | $317,464 |
Deed and Sales History
| 1 | 10/02/2000 | WD | Warranty Deed | RIDLON, DONALD F | TURNEK, FRANK J | | | $189,000.00 | 3893 | 20017855 |
| 2 | 07/01/1983 | OTHER | Other - Misc. Documents | Unknown | RIDLON, DONALD F | | | $0.00 | 60119 | 0 |
Payout Agreement
| No payout information available.. |