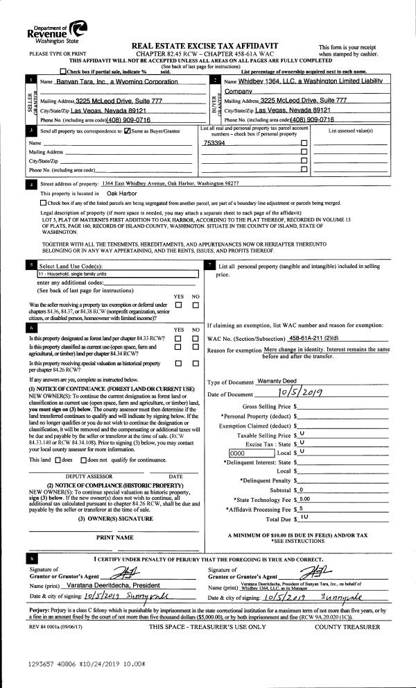
Property
Account |
| Property ID: | 56824 | Abbreviated Legal Description: | 14 - IN NE NE:N108' OF W210 LY S OF SLN OF N977.3' OF NE NE EX CO RD |
| Geographic ID: | R22922-421-4100 | Agent Code: | |
| Type: | Real | | |
| Tax Area: | 710 - APPRAISER-S Whid Schl Dist, outside Langley, improved & 1 acre or less | Land Use Code | 11 |
| Open Space: | N | DFL | N |
| Historic Property: | N | Remodel Property: | N |
| Multi-Family Redevelopment: | N | | |
| Township: | 29 | Section: | 22 |
| Range: | R2 |
Location |
| Address: | 6075 WAHL RD FREELAND, WA 98249 | Mapsco: | |
| Neighborhood: | Cycle 3 | Map ID: | 337 |
| Neighborhood CD: | 3 |
Owner |
| Name: | TENSAE, HELEN C. | Owner ID: | 306824 |
| Mailing Address: | 8015 GREENWOOD AVE N UNIT 405 SEATTLE, WA 98103 | % Ownership: | 100.0000000000% |
| | | Exemptions: | |
Taxes and Assessment Details
Values
| (+) Improvement Homesite Value: | + | $0 | |
| (+) Improvement Non-Homesite Value: | + | $160,091 | |
| (+) Land Homesite Value: | + | $0 | |
| (+) Land Non-Homesite Value: | + | $250,000 | |
| (+) Curr Use (HS): | + | $0 | $0 |
| (+) Curr Use (NHS): | + | $0 | $0 |
| | | -------------------------- | |
| (=) Market Value: | = | $410,091 | |
| (–) Productivity Loss: | – | $0 | |
| | | -------------------------- | |
| (=) Subtotal: | = | $410,091 | |
| (+) Senior Appraised Value: | + | $0 | |
| (+) Non-Senior Appraised Value: | + | $410,091 | |
| | | -------------------------- | |
| (=) Total Appraised Value: | = | $410,091 | |
| (–) Senior Exemption Loss: | – | $0 | |
| (–) Exemption Loss: | – | $0 | |
| | | -------------------------- | |
| (=) Taxable Value: | = | $410,091 | |
Taxing Jurisdiction
| Owner: | TENSAE, HELEN C. | | |
| % Ownership: | 100.0000000000% | | |
| Total Value: | $410,091 | | |
| Tax Area: | 710 - APPRAISER-S Whid Schl Dist, outside Langley, improved & 1 acre or less |
| CF | Conservation Futures | 0.0316035091 | $410,091 | $410,091 | $12.96 | | |
| FIRE3 | Fire & Rescue Dist #3 S Whidbey GEN | 1.2004855531 | $410,091 | $410,091 | $492.31 | | |
| HOBOND | Hospital BOND | 0.1910887512 | $410,091 | $410,091 | $78.36 | | |
| HOGEN | Hospital GEN | 0.3902502903 | $410,091 | $410,091 | $160.04 | | |
| CE | County Current Expense | 0.3708482477 | $410,091 | $410,091 | $152.08 | | |
| CR | County Roads | 0.4584763726 | $410,091 | $410,091 | $188.02 | | |
| ISLANDEMS | Hospital GEN (EMS) | 0.5000000000 | $410,091 | $410,091 | $205.05 | | |
| LIB | Library Sno-Isle GEN | 0.3153421757 | $410,091 | $410,091 | $129.32 | | |
| PORTWHID | Port of S Whidbey GEN | 0.1094540357 | $410,091 | $410,091 | $44.89 | | |
| SCH206BOND | School 206 BOND | 0.3161759235 | $410,091 | $410,091 | $129.66 | | |
| SCH206MO | School 206 Enrichment | 0.4547169547 | $410,091 | $410,091 | $186.48 | | |
| ST | State School | 1.3035497053 | $410,091 | $410,091 | $534.57 | | |
| ST2 | State School Part 2 | 0.8169543533 | $410,091 | $410,091 | $335.03 | | |
| SWHIDPRBD | P & R S Whidbey BOND | 0.0152817568 | $410,091 | $410,091 | $6.27 | | |
| SWHIDPRBD2 | P & R S Whidbey BOND2 | 0.0138911264 | $410,091 | $410,091 | $5.70 | | |
| SWHIDPRMT | P & R S Whidbey GEN | 0.2053334452 | $410,091 | $410,091 | $84.21 | | |
| | Total Tax Rate: | 6.6934522006 | | | | | |
| | | | | Taxes w/Current Exemptions: | $2,744.95 | | |
| | | | | Taxes w/o Exemptions: | $2,744.95 | | |
Improvement / Building
| Improvement #1: | MANUFACTURED HOME | State Code: | Y | 1400.6 sqft | Value: | $160,091 |
| Bathrooms: | 1 | Bedrooms: | 2 | | Ceiling: | PLASTER PAINTED | Cooling: | EVAP NO DUCT | | Exterior Wall/Cover: | VINYL | Floor Covering: | CARPET 100% | | Floor Structure: | SLAB ON GRADE | Foundation: | SLAB | | Heating: | FHA ELECTRIC | Interior Finish: | PLASTER | | Plumbing Fixture Cnt: | 1 | Roof Slope: | FLAT | | Roof Structure/Cover: | CJ ALUMINIUM HEAVY |   |   |
|
| | Type | Description | Class CD | Sub Class CD | Year Built | Area |
| | BAS | BASE/MAIN FLOOR | 4 | 0 | 2025 | 1400.6 |
| | OWC | OPEN WOOD PORCH W/STEPS/ROOF/C | 4 | 0 | 2025 | 55.9 |
Sketch
| No sketches available for this property. |
Property Image
Land
| 1 | 15 | SQ (12001-21780) | 0.4700 | 20473.20 | 0.00 | 0.00 | 1.00 | $250,000 | $0 |
Roll Value History
| 2026 | N/A | N/A | N/A | N/A | N/A |
| 2025 | $160,091 | $250,000 | $0 | $410,091 | $410,091 |
| 2024 | $56,573 | $230,000 | $0 | $286,573 | $286,573 |
| 2023 | $56,573 | $230,000 | $0 | $286,573 | $286,573 |
| 2022 | $51,230 | $210,000 | $0 | $261,230 | $261,230 |
| 2021 | $44,545 | $140,000 | $0 | $184,545 | $184,545 |
| 2020 | $42,941 | $130,000 | $0 | $172,941 | $172,941 |
| 2019 | $31,652 | $170,000 | $0 | $201,652 | $201,652 |
| 2018 | $31,905 | $130,000 | $0 | $161,905 | $161,905 |
| 2017 | $30,183 | $110,000 | $0 | $140,183 | $140,183 |
| 2016 | $31,126 | $100,000 | $0 | $131,126 | $131,126 |
| 2015 | $32,069 | $80,000 | $0 | $112,069 | $112,069 |
| 2014 | $33,013 | $59,500 | $0 | $92,513 | $92,513 |
| 2013 | $33,720 | $59,500 | $0 | $93,220 | $93,220 |
| 2012 | $33,720 | $59,500 | $0 | $93,220 | $93,220 |
| 2011 | $33,720 | $70,000 | $0 | $103,720 | $103,720 |
| 2010 | $36,163 | $70,000 | $0 | $106,163 | $106,163 |
| 2009 | $37,237 | $75,000 | $0 | $112,237 | $112,237 |
| 2008 | $37,257 | $85,000 | $0 | $122,257 | $122,257 |
| 2007 | $34,310 | $67,000 | $0 | $101,310 | $101,310 |
Deed and Sales History
| 1 | 05/16/2019 | TOD | Transfer On Death Deed | FISHER, ROBERT A | TENSAE, HELEN C. | | | $0.00 | 55313 | 4554547 |
| 2 | 09/16/2019 | QCD | Quit Claim Deed | FISHER, ROBERT A | FISHER, ROBERT A | | | $0.00 | 40461 | 4472284 |
| 3 | 03/05/1999 | WD | Warranty Deed | SMILEY, ANNA | FISHER, ROBERT A | | | $40,000.00 | 90961 | 99006618 |
| 4 | 01/01/1998 | WD | Warranty Deed | SMILEY, ANNA | SMILEY, ANNA | | | $0.00 | 80126 | 98000612 |
| 5 | 12/01/1997 | ESTSEPPROP | Establish Separate Property | SMILEY, STEPHEN E | SMILEY, ANNA | | | $0.00 | 80128 | 98000613 |
| 6 | 12/01/1997 | QCD | Quit Claim Deed | SMILEY, ANNA | SMILEY, STEPHEN E | | | $0.00 | 80127 | 98000614 |
| 7 | 10/01/1997 | QCD | Quit Claim Deed | OHM, JOHN N | SMILEY, ANNA | | | $0.00 | 73735 | 97017782 |
| 8 | 01/01/1900 | OTHER | Other - Misc. Documents | Unknown | OHM, JOHN N | | | $0.00 | 0 | 0 |
Payout Agreement
| No payout information available.. |