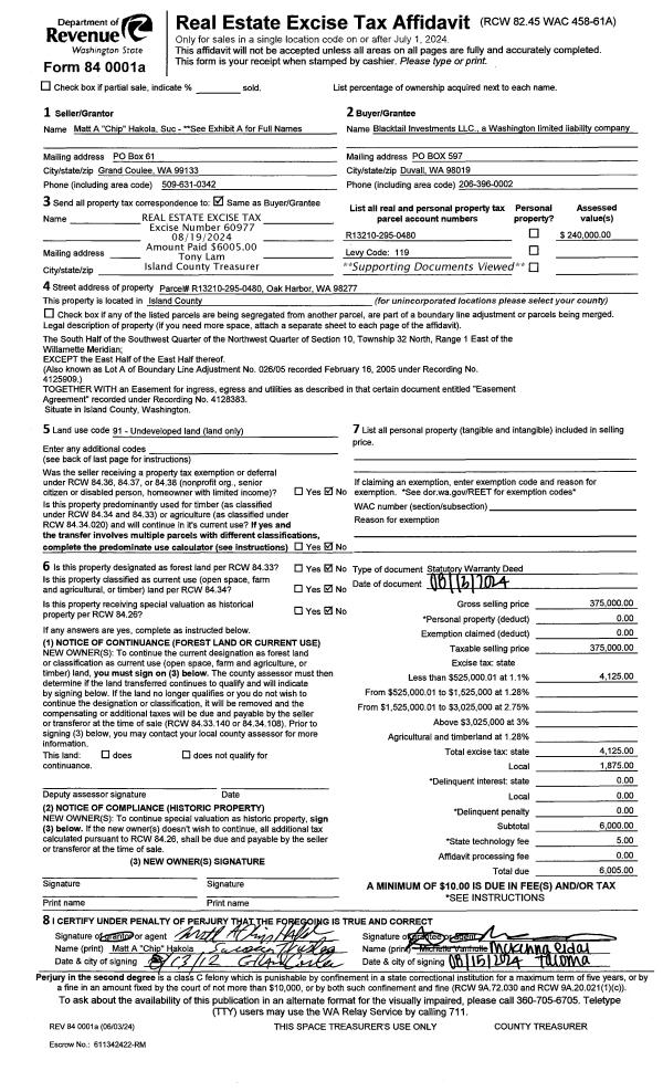
Property
Account |
| Property ID: | 568503 | Abbreviated Legal Description: | LOT A-1 SP 83-23-4.13214.480-0520 V1 SP P220 AF#411595 |
| Geographic ID: | R13214-490-0470 | Agent Code: | |
| Type: | Real | | |
| Tax Area: | 112 - APPRAISER-OH Schl Dist, outside OH, improved, greater than 1 acre | Land Use Code | 11 |
| Open Space: | N | DFL | N |
| Historic Property: | N | Remodel Property: | N |
| Multi-Family Redevelopment: | N | | |
| Township: | 32 | Section: | 14 |
| Range: | R1 |
Location |
| Address: | 1566 SCENIC HEIGHTS RD OAK HARBOR, WA 98277 | Mapsco: | |
| Neighborhood: | Cycle 1 | Map ID: | 123 |
| Neighborhood CD: | 1 |
Owner |
| Name: | KINGMA, JOHN E | Owner ID: | 271152 |
| Mailing Address: | TAMERA J KINGMA 1566 SCENIC HEIGHTS RD OAK HARBOR, WA 98277 | % Ownership: | 100.0000000000% |
| | | Exemptions: | |
Taxes and Assessment Details
Values
| (+) Improvement Homesite Value: | + | $0 | |
| (+) Improvement Non-Homesite Value: | + | $656,369 | |
| (+) Land Homesite Value: | + | $0 | |
| (+) Land Non-Homesite Value: | + | $550,000 | |
| (+) Curr Use (HS): | + | $0 | $0 |
| (+) Curr Use (NHS): | + | $0 | $0 |
| | | -------------------------- | |
| (=) Market Value: | = | $1,206,369 | |
| (–) Productivity Loss: | – | $0 | |
| | | -------------------------- | |
| (=) Subtotal: | = | $1,206,369 | |
| (+) Senior Appraised Value: | + | $0 | |
| (+) Non-Senior Appraised Value: | + | $1,206,369 | |
| | | -------------------------- | |
| (=) Total Appraised Value: | = | $1,206,369 | |
| (–) Senior Exemption Loss: | – | $0 | |
| (–) Exemption Loss: | – | $0 | |
| | | -------------------------- | |
| (=) Taxable Value: | = | $1,206,369 | |
Taxing Jurisdiction
| Owner: | KINGMA, JOHN E | | |
| % Ownership: | 100.0000000000% | | |
| Total Value: | $1,206,369 | | |
| Tax Area: | 112 - APPRAISER-OH Schl Dist, outside OH, improved, greater than 1 acre |
| CF | Conservation Futures | 0.0316035091 | $1,206,369 | $1,206,369 | $38.13 | | |
| CEM1 | Cemetery #1 | 0.0040320932 | $1,206,369 | $1,206,369 | $4.86 | | |
| FIRE2 | Fire & Rescue Dist #2 N Whidbey GEN | 0.5475949600 | $1,206,369 | $1,206,369 | $660.60 | | |
| HOBOND | Hospital BOND | 0.1910887512 | $1,206,369 | $1,206,369 | $230.52 | | |
| HOGEN | Hospital GEN | 0.3902502903 | $1,206,369 | $1,206,369 | $470.79 | | |
| CE | County Current Expense | 0.3708482477 | $1,206,369 | $1,206,369 | $447.38 | | |
| CR | County Roads | 0.4584763726 | $1,206,369 | $1,206,369 | $553.09 | | |
| ISLANDEMS | Hospital GEN (EMS) | 0.5000000000 | $1,206,369 | $1,206,369 | $603.18 | | |
| LIB | Library Sno-Isle GEN | 0.3153421757 | $1,206,369 | $1,206,369 | $380.42 | | |
| NWHIDPRMT | P & R N Whidbey GEN | 0.2004466701 | $1,206,369 | $1,206,369 | $241.81 | | |
| SCH201MO | School 201 Enrichment | 1.8559231640 | $1,206,369 | $1,206,369 | $2,238.93 | | |
| ST | State School | 1.3035497053 | $1,206,369 | $1,206,369 | $1,572.56 | | |
| ST2 | State School Part 2 | 0.8169543533 | $1,206,369 | $1,206,369 | $985.55 | | |
| | Total Tax Rate: | 6.9861102925 | | | | | |
| | | | | Taxes w/Current Exemptions: | $8,427.82 | | |
| | | | | Taxes w/o Exemptions: | $8,427.82 | | |
Improvement / Building
| Improvement #1: | RESIDENTIAL | State Code: | Y | 4298.8 sqft | Value: | $656,369 |
| Bathrooms: | 4 | Bedrooms: | 4 | | Ceiling: | DRY WALL SPRAYED | Cooling: | HEAT PUMP/CONV/V | | Exterior Wall/Cover: | PLY/HARDBOARD T-111 | Floor Covering: | VINYL TILE/CARP 20-80 | | Floor Structure: | WOOD W/SUBFLOOR | Foundation: | CONCRETE | | Interior Finish: | DRYWALL PAINT | Plumbing Fixture Cnt: | 19 | | Roof Slope: | 5" IN 12" | Roof Structure/Cover: | CJ ASPHALT |
|
| | Type | Description | Class CD | Sub Class CD | Year Built | Area |
| | BAS | BASE/MAIN FLOOR | 4 | 0 | 1984 | 4298.8 |
| | OP1 | OPEN PORCH SLAB | 4 | 0 | 1984 | 352.0 |
| | OP2 | OPEN PORCH W/STEPS | 4 | 0 | 1984 | 384.0 |
| | AGR | ATTACHED GARAGE | 4 | 0 | 1984 | 713.0 |
| | OWP | OPEN WOOD PORCH W/STEPS | 4 | 0 | 1984 | 518.8 |
| | OP1 | OPEN PORCH SLAB | 4 | 0 | 1984 | 1620.0 |
Sketch
Property Image
Land
| 1 | HB | HIGH BLUFF | 1.2300 | 53578.80 | 130.00 | 0.00 | 1.00 | $550,000 | $0 |
Roll Value History
| 2026 | N/A | N/A | N/A | N/A | N/A |
| 2025 | $656,369 | $550,000 | $0 | $1,206,369 | $1,206,369 |
| 2024 | $664,652 | $525,000 | $0 | $1,189,652 | $1,189,652 |
| 2023 | $647,847 | $525,000 | $0 | $1,172,847 | $1,172,847 |
| 2022 | $594,050 | $500,000 | $0 | $1,094,050 | $1,094,050 |
| 2021 | $522,982 | $300,000 | $0 | $822,982 | $822,982 |
| 2020 | $510,534 | $300,000 | $0 | $810,534 | $810,534 |
| 2019 | $425,330 | $300,000 | $0 | $725,330 | $725,330 |
| 2018 | $426,608 | $250,000 | $0 | $676,608 | $676,608 |
| 2017 | $413,251 | $250,000 | $0 | $663,251 | $663,251 |
| 2016 | $418,391 | $250,000 | $0 | $668,391 | $668,391 |
| 2015 | $379,912 | $250,000 | $0 | $629,912 | $629,912 |
| 2014 | $384,993 | $250,000 | $0 | $634,993 | $634,993 |
| 2013 | $390,071 | $311,037 | $0 | $701,108 | $701,108 |
| 2012 | $395,152 | $311,037 | $0 | $706,189 | $706,189 |
| 2011 | $403,422 | $311,037 | $0 | $714,459 | $714,459 |
| 2010 | $421,979 | $311,037 | $0 | $733,016 | $733,016 |
| 2009 | $439,817 | $388,795 | $0 | $828,612 | $828,612 |
| 2008 | $444,522 | $443,227 | $0 | $887,749 | $887,749 |
| 2007 | $450,454 | $443,227 | $0 | $893,681 | $893,681 |
Deed and Sales History
| 1 | 06/18/2015 | WD | Warranty Deed | MC NAMARA, JOHN F | KINGMA, JOHN E | | | $710,000.00 | 20125 | 4380740 |
| 2 | 03/04/2002 | WD | Warranty Deed | MC NAMARA, JOHN F | MC NAMARA, JOHN F | | | $0.00 | 19885 | 4379671 |
| 3 | 03/04/2002 | WD | Warranty Deed | SLICHTER, JACK M | MC NAMARA, JOHN F | | | $475,000.00 | 20940 | 4014035 |
| 4 | 08/01/1994 | QCD | Quit Claim Deed | SLICHTER, JACK M | SLICHTER, JACK M | | | $0.00 | 43541 | 94018746 |
| 5 | 02/01/1994 | QCD | Quit Claim Deed | SLICHTER, JACK M | SLICHTER, JACK M | | | $0.00 | 40452 | 94002782 |
| 6 | 08/01/1993 | QCD | Quit Claim Deed | SLICHTER, JACK M | SLICHTER, JACK M | | | $0.00 | 40121 | 94000629 |
| 7 | 07/01/1983 | WD | Warranty Deed | MEETER, GLADYS B | SLICHTER, JACK M | | | $76,000.00 | 31899 | 412003 |
| 8 | 01/01/1900 | REC | Real Estate Contract | Unknown | MEETER, GLADYS B | | | $0.00 | 0 | 5577 |
Payout Agreement
| No payout information available.. |