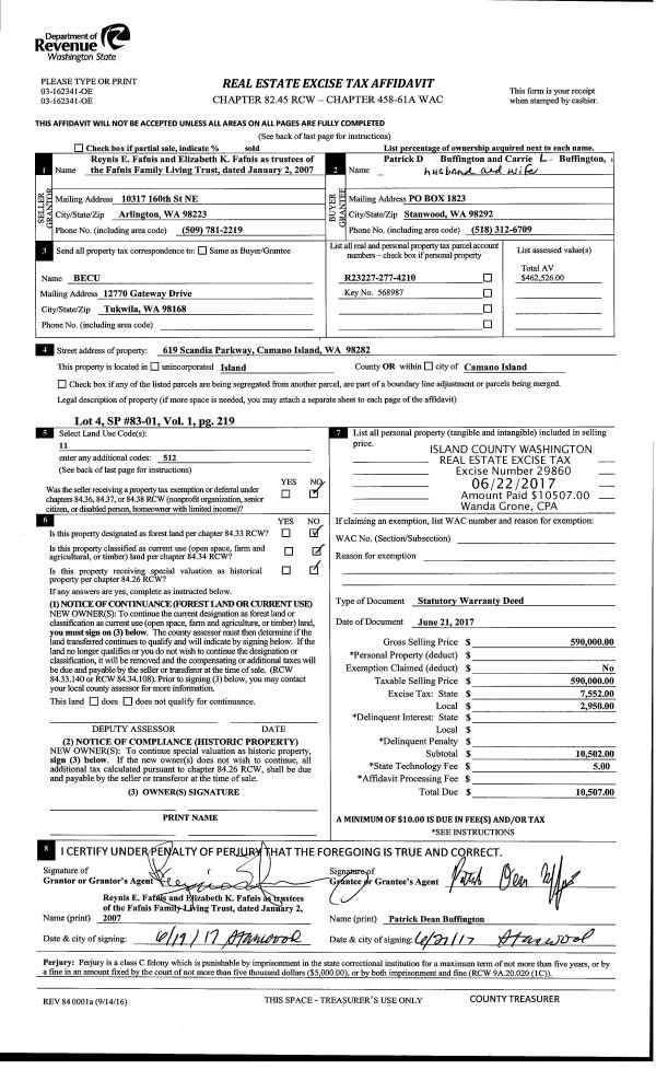
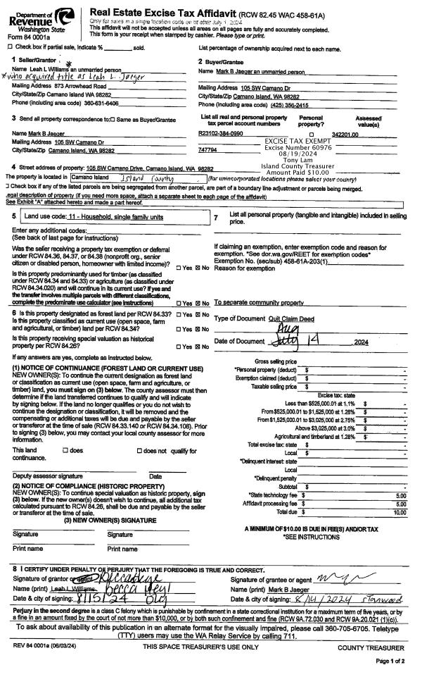
Property
Account |
| Property ID: | 568512 | Abbreviated Legal Description: | LOT A-2 SP 83-23-4.13214.480-0520 V1 SP P220 AF#411595 EX PT GL1 DESC: BG SWCR SD GL1 S89*E ALG SLN SD GL1 ALSO NLN FORD DLC 330.59' TO E R/W LN SCENIC HTS RD SD E R/W 30' FR CLN SD RD N ALG SD E R/W LN 30' S89*E71.86' TPB SD PT MST WLY CR EVERETT TR AF#2 |
| Geographic ID: | R13214-477-0600 | Agent Code: | |
| Type: | Real | | |
| Tax Area: | 112 - APPRAISER-OH Schl Dist, outside OH, improved, greater than 1 acre | Land Use Code | 11 |
| Open Space: | N | DFL | N |
| Historic Property: | N | Remodel Property: | N |
| Multi-Family Redevelopment: | N | | |
| Township: | 32 | Section: | 14 |
| Range: | R1 |
Location |
| Address: | 1562 SCENIC HEIGHTS RD OAK HARBOR, WA 98277 | Mapsco: | |
| Neighborhood: | Cycle 1 | Map ID: | 123 |
| Neighborhood CD: | 1 |
Owner |
| Name: | BYRNE, SEAN | Owner ID: | 265231 |
| Mailing Address: | THERESA BYRNE BOX 1113 OAK HARBOR, WA 98277 | % Ownership: | 100.0000000000% |
| | | Exemptions: | |
Taxes and Assessment Details
Values
| (+) Improvement Homesite Value: | + | $0 | |
| (+) Improvement Non-Homesite Value: | + | $589,143 | |
| (+) Land Homesite Value: | + | $0 | |
| (+) Land Non-Homesite Value: | + | $575,000 | |
| (+) Curr Use (HS): | + | $0 | $0 |
| (+) Curr Use (NHS): | + | $0 | $0 |
| | | -------------------------- | |
| (=) Market Value: | = | $1,164,143 | |
| (–) Productivity Loss: | – | $0 | |
| | | -------------------------- | |
| (=) Subtotal: | = | $1,164,143 | |
| (+) Senior Appraised Value: | + | $0 | |
| (+) Non-Senior Appraised Value: | + | $1,164,143 | |
| | | -------------------------- | |
| (=) Total Appraised Value: | = | $1,164,143 | |
| (–) Senior Exemption Loss: | – | $0 | |
| (–) Exemption Loss: | – | $0 | |
| | | -------------------------- | |
| (=) Taxable Value: | = | $1,164,143 | |
Taxing Jurisdiction
| Owner: | BYRNE, SEAN | | |
| % Ownership: | 100.0000000000% | | |
| Total Value: | $1,164,143 | | |
| Tax Area: | 112 - APPRAISER-OH Schl Dist, outside OH, improved, greater than 1 acre |
| CF | Conservation Futures | 0.0316035091 | $1,164,143 | $1,164,143 | $36.79 | | |
| CEM1 | Cemetery #1 | 0.0040320932 | $1,164,143 | $1,164,143 | $4.69 | | |
| FIRE2 | Fire & Rescue Dist #2 N Whidbey GEN | 0.5475949600 | $1,164,143 | $1,164,143 | $637.48 | | |
| HOBOND | Hospital BOND | 0.1910887512 | $1,164,143 | $1,164,143 | $222.45 | | |
| HOGEN | Hospital GEN | 0.3902502903 | $1,164,143 | $1,164,143 | $454.31 | | |
| CE | County Current Expense | 0.3708482477 | $1,164,143 | $1,164,143 | $431.72 | | |
| CR | County Roads | 0.4584763726 | $1,164,143 | $1,164,143 | $533.73 | | |
| ISLANDEMS | Hospital GEN (EMS) | 0.5000000000 | $1,164,143 | $1,164,143 | $582.07 | | |
| LIB | Library Sno-Isle GEN | 0.3153421757 | $1,164,143 | $1,164,143 | $367.10 | | |
| NWHIDPRMT | P & R N Whidbey GEN | 0.2004466701 | $1,164,143 | $1,164,143 | $233.35 | | |
| SCH201MO | School 201 Enrichment | 1.8559231640 | $1,164,143 | $1,164,143 | $2,160.56 | | |
| ST | State School | 1.3035497053 | $1,164,143 | $1,164,143 | $1,517.52 | | |
| ST2 | State School Part 2 | 0.8169543533 | $1,164,143 | $1,164,143 | $951.05 | | |
| | Total Tax Rate: | 6.9861102925 | | | | | |
| | | | | Taxes w/Current Exemptions: | $8,132.82 | | |
| | | | | Taxes w/o Exemptions: | $8,132.82 | | |
Improvement / Building
| Improvement #1: | RESIDENTIAL | State Code: | Y | 2724.7 sqft | Value: | $530,837 |
| Bathrooms: | 2 | Bedrooms: | 2 | | Ceiling: | PLASTER PAINTED | Cooling: | HEAT PUMP/CONV/V | | Exterior Wall/Cover: | WOOD SIDING | Floor Covering: | CARPET/VINYL 80-20 | | Floor Structure: | SLAB ON GRADE | Foundation: | SLAB | | Interior Finish: | DRYWALL PAINT | Plumbing Fixture Cnt: | 16 | | Roof Slope: | FLAT | Roof Structure/Cover: | CJ BUILT-UP ROCK |
|
| | Type | Description | Class CD | Sub Class CD | Year Built | Area |
| | BAS | BASE/MAIN FLOOR | 4 | 0 | 1951 | 2724.7 |
| | OP2 | OPEN PORCH W/STEPS | 4 | 0 | 1951 | 704.9 |
| | OP3 | OPEN PORCH W/ROOF | 4 | 0 | 1951 | 286.1 |
| | AGR | ATTACHED GARAGE | 4 | 0 | 1951 | 592.8 |
| | OP2 | OPEN PORCH W/STEPS | 4 | 0 | 1951 | 1848.0 |
| | OP3 | OPEN PORCH W/ROOF | 4 | 0 | 1951 | 268.5 |
| Improvement #2: | RESIDENTIAL | State Code: | Y | 288.0 sqft | Value: | $58,306 |
| Bathrooms: | 1 | Bedrooms: | 1 | | Ceiling: | DRYWALL PAINTED | Exterior Wall/Cover: | PLY/HARDBOARD T-111 | | Floor Covering: | VINYL 100% | Floor Structure: | WOOD W/SUBFLOOR | | Foundation: | CONCRETE | Heating: | FHA ELECTRIC | | Interior Finish: | DRYWALL PAINT | Plumbing Fixture Cnt: | 5 | | Roof Slope: | FLAT | Roof Structure/Cover: | CJ BUILT-UP ROCK |
|
| | Type | Description | Class CD | Sub Class CD | Year Built | Area |
| | BAS | BASE/MAIN FLOOR | 2 | 0 | 2024 | 192.0 |
| | LOF | LOFT | 2 | 0 | 2024 | 96.0 |
| | OP2 | OPEN PORCH W/STEPS | 2 | 0 | 2024 | 128.0 |
| | OWP | OPEN WOOD PORCH W/STEPS | 2 | 0 | 2024 | 224.0 |
Sketch
Property Image
Land
| 1 | HB | HIGH BLUFF | 1.9100 | 83199.60 | 160.00 | 0.00 | 1.00 | $575,000 | $0 |
Roll Value History
| 2026 | N/A | N/A | N/A | N/A | N/A |
| 2025 | $589,143 | $575,000 | $0 | $1,164,143 | $1,164,143 |
| 2024 | $596,560 | $550,000 | $0 | $1,146,560 | $1,146,560 |
| 2023 | $313,414 | $550,000 | $0 | $863,414 | $863,414 |
| 2022 | $288,021 | $550,000 | $0 | $838,021 | $838,021 |
| 2021 | $254,123 | $350,000 | $0 | $604,123 | $604,123 |
| 2020 | $248,859 | $350,000 | $0 | $598,859 | $598,859 |
| 2019 | $197,300 | $400,000 | $0 | $597,300 | $597,300 |
| 2018 | $197,992 | $400,000 | $0 | $597,992 | $597,992 |
| 2017 | $113,127 | $400,000 | $0 | $513,127 | $513,127 |
| 2016 | $115,484 | $400,000 | $0 | $515,484 | $515,484 |
| 2015 | $117,840 | $400,000 | $0 | $517,840 | $517,840 |
| 2014 | $120,197 | $400,000 | $0 | $520,197 | $520,197 |
| 2013 | $122,555 | $369,910 | $0 | $492,465 | $492,465 |
| 2012 | $124,911 | $369,910 | $0 | $494,821 | $494,821 |
| 2011 | $126,812 | $369,910 | $0 | $496,722 | $496,722 |
| 2010 | $130,734 | $369,910 | $0 | $500,644 | $500,644 |
| 2009 | $137,215 | $462,387 | $0 | $599,602 | $599,602 |
| 2008 | $139,870 | $527,122 | $0 | $666,992 | $666,992 |
| 2007 | $142,524 | $527,122 | $0 | $669,646 | $669,646 |
Deed and Sales History
| 1 | 09/20/2019 | QCD | Quit Claim Deed | ROSEWOOD INVESTMENTS, LLC | BYRNE, SEAN | | | $0.00 | 40389 | 4471929 |
| 2 | 05/17/2017 | QCD | Quit Claim Deed | BYRNE, SEAN | ROSEWOOD INVESTMENTS, LLC | | | $0.00 | 33892 | 4443489 |
| 3 | 02/28/2014 | QCD | Quit Claim Deed | ROSEWOOD INVESTMENTS, LLC | BYRNE, SEAN | | | $0.00 | 33890 | 4443488 |
| 4 | 05/22/2017 | QCD | Quit Claim Deed | BYRNE, SEAN | ROSEWOOD INVESTMENTS, LLC | | | $0.00 | 29377 | 4422941 |
| 5 | 02/28/2014 | QCD | Quit Claim Deed | ROSEWOOD INVESTMENTS LLC | BYRNE, SEAN | | | $0.00 | 14430 | 4355894 |
| 6 | 04/05/2011 | WD | Warranty Deed | OSBERG, MARK FRANKLIN | ROSEWOOD INVESTMENTS LLC | | | $325,000.00 | 4156 | 4293810 |
| 7 | 04/21/2010 | WD | Warranty Deed | WALKER, MARGUERITE | OSBERG, MARK FRANKLIN | | | $0.00 | 1076 | 4273340 |
| 8 | 07/01/1989 | WD | Warranty Deed | DEDOLPH, ARTHUR E | WALKER, MARGUERITE | | | $143,000.00 | 92833 | 89009509 |
| 9 | 07/01/1983 | REC | Real Estate Contract | MEETER, GLADYS B | DEDOLPH, ARTHUR E | | | $156,000.00 | 31951 | 412188 |
| 10 | 01/01/1900 | REC | Real Estate Contract | Unknown | MEETER, GLADYS B | | | $0.00 | 0 | 5577 |
Payout Agreement
| No payout information available.. |