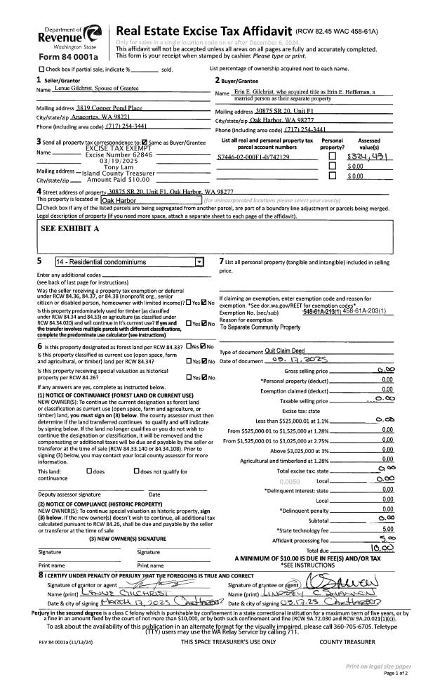
Property
Account |
| Property ID: | 568745 | Abbreviated Legal Description: | 1976 FLEETWOOD 14X60 VIN# S2099 TPO @67130 FROM K-528281 |
| Geographic ID: | M91550000001-1 | Agent Code: | |
| Type: | Mobile Home | | |
| Tax Area: | 300 - APPRAISER-Cpvl Schl Dist, in Cpvl | Land Use Code | 11 |
| Open Space: | N | DFL | N |
| Historic Property: | N | Remodel Property: | N |
| Multi-Family Redevelopment: | N | | |
| Township: | | Section: | |
| Range: | |
Location |
| Address: | 405 S MAIN ST # 1 COUPEVILLE, WA 98239 | Mapsco: | |
| Neighborhood: | Cycle 2 | Map ID: | |
| Neighborhood CD: | 2 |
Owner |
| Name: | HERNANDEZ, AMINADAB HERRERA | Owner ID: | 187537 |
| Mailing Address: | 405 S MAIN ST #1 COUPEVILLE, WA 98239-3537 | % Ownership: | 100.0000000000% |
| | | Exemptions: | |
Taxes and Assessment Details
Values
| (+) Improvement Homesite Value: | + | $0 | |
| (+) Improvement Non-Homesite Value: | + | $10,137 | |
| (+) Land Homesite Value: | + | $0 | |
| (+) Land Non-Homesite Value: | + | $0 | |
| (+) Curr Use (HS): | + | $0 | $0 |
| (+) Curr Use (NHS): | + | $0 | $0 |
| | | -------------------------- | |
| (=) Market Value: | = | $10,137 | |
| (–) Productivity Loss: | – | $0 | |
| | | -------------------------- | |
| (=) Subtotal: | = | $10,137 | |
| (+) Senior Appraised Value: | + | $0 | |
| (+) Non-Senior Appraised Value: | + | $10,137 | |
| | | -------------------------- | |
| (=) Total Appraised Value: | = | $10,137 | |
| (–) Senior Exemption Loss: | – | $0 | |
| (–) Exemption Loss: | – | $0 | |
| | | -------------------------- | |
| (=) Taxable Value: | = | $10,137 | |
Taxing Jurisdiction
| Owner: | HERNANDEZ, AMINADAB HERRERA | | |
| % Ownership: | 100.0000000000% | | |
| Total Value: | $10,137 | | |
| Tax Area: | 300 - APPRAISER-Cpvl Schl Dist, in Cpvl |
| CF | Conservation Futures | 0.0316035091 | $10,137 | $10,137 | $0.32 | | |
| CEM2 | Cemetery #2 | 0.0095056933 | $10,137 | $10,137 | $0.10 | | |
| COUP | City: Town of Coupeville | 0.8426414490 | $10,137 | $10,137 | $8.54 | | |
| FIRE5 | Fire & Rescue Dist #5 C Whidbey GEN | 1.2008080668 | $10,137 | $10,137 | $12.17 | | |
| FIRE5BOND | Fire & Rescue Dist #5 C Whidbey BOND | 0.1400090713 | $10,137 | $10,137 | $1.42 | | |
| HOBOND | Hospital BOND | 0.1910887512 | $10,137 | $10,137 | $1.94 | | |
| HOGEN | Hospital GEN | 0.3902502903 | $10,137 | $10,137 | $3.96 | | |
| CE | County Current Expense | 0.3708482477 | $10,137 | $10,137 | $3.76 | | |
| ISLANDEMS | Hospital GEN (EMS) | 0.5000000000 | $10,137 | $10,137 | $5.07 | | |
| LIB | Library Sno-Isle GEN | 0.3153421757 | $10,137 | $10,137 | $3.20 | | |
| LIBCAP | Library Sno-Isle BOND (Cap Fac Imp Area) | 0.0543427938 | $10,137 | $10,137 | $0.55 | | |
| POCOUP | Port of Coupeville GEN | 0.1093371703 | $10,137 | $10,137 | $1.11 | | |
| POCOUPIDD | Port of Coupeville IDD | 0.3409740022 | $10,137 | $10,137 | $3.46 | | |
| COUPSDTECH | School 204 CP (TECH) | 0.7545480007 | $10,137 | $10,137 | $7.65 | | |
| SCH204MO | School 204 Enrichment | 0.6716186034 | $10,137 | $10,137 | $6.81 | | |
| ST | State School | 1.3035497053 | $10,137 | $10,137 | $13.21 | | |
| ST2 | State School Part 2 | 0.8169543533 | $10,137 | $10,137 | $8.28 | | |
| | Total Tax Rate: | 8.0434218834 | | | | | |
| | | | | Taxes w/Current Exemptions: | $81.55 | | |
| | | | | Taxes w/o Exemptions: | $81.55 | | |
Improvement / Building
| Improvement #1: | MANUFACTURED HOME | State Code: | Y | 840.0 sqft | Value: | $10,137 |
| Bathrooms: | 1 | Bedrooms: | 2 | | Ceiling: | PLASTER PAINTED | Cooling: | EVAP NO DUCT | | Exterior Wall/Cover: | VINYL | Floor Covering: | CARPET 100% | | Floor Structure: | SLAB ON GRADE | Foundation: | SLAB | | Heating: | FHA ELECTRIC | Interior Finish: | PLASTER | | Plumbing Fixture Cnt: | 1 | Roof Slope: | FLAT | | Roof Structure/Cover: | CJ ALUMINIUM HEAVY |   |   |
|
Sketch
Property Image
Land
No land segments exist for this property.
Roll Value History
| 2026 | N/A | N/A | N/A | N/A | N/A |
| 2025 | $10,137 | $0 | $0 | $10,137 | $10,137 |
| 2024 | $12,662 | $0 | $0 | $12,662 | $12,662 |
| 2023 | $11,678 | $0 | $0 | $11,678 | $11,678 |
| 2022 | $11,482 | $0 | $0 | $11,482 | $11,482 |
| 2021 | $10,510 | $0 | $0 | $10,510 | $10,510 |
| 2020 | $10,715 | $0 | $0 | $10,715 | $10,715 |
| 2019 | $8,841 | $0 | $0 | $8,841 | $8,841 |
| 2018 | $5,393 | $0 | $0 | $5,393 | $5,393 |
| 2017 | $5,759 | $0 | $0 | $5,759 | $5,759 |
| 2016 | $5,942 | $0 | $0 | $5,942 | $5,942 |
| 2015 | $6,308 | $0 | $0 | $6,308 | $6,308 |
| 2014 | $6,491 | $0 | $0 | $6,491 | $6,491 |
| 2013 | $6,857 | $0 | $0 | $6,857 | $6,857 |
| 2012 | $7,550 | $0 | $0 | $7,550 | $7,550 |
| 2011 | $8,098 | $0 | $0 | $8,098 | $8,098 |
| 2010 | $8,055 | $0 | $0 | $8,055 | $8,055 |
| 2009 | $8,223 | $0 | $0 | $8,223 | $8,223 |
| 2008 | $8,239 | $0 | $0 | $8,239 | $8,239 |
| 2007 | $8,456 | $0 | $0 | $8,456 | $8,456 |
Deed and Sales History
| 1 | 11/14/2006 | OTHER | Other - Misc. Documents | HERNANDEZ, ALBERTO | HERNANDEZ, AMINADAB HERRERA | | | $0.00 | 64906 | 0 |
| 2 | 03/22/2002 | OTHER | Other - Misc. Documents | BELEW, CAROLE A | HERNANDEZ, ALBERTO | | | $9,700.00 | 21107 | 0 |
| 3 | 11/01/1994 | OTHER | Other - Misc. Documents | ZIKA, JEFFREY A | BELEW, CAROLE A | | | $5,500.00 | 44487 | 0 |
| 4 | 02/01/1992 | OTHER | Other - Misc. Documents | HAMLIN, TONY / | ZIKA, JEFFREY A | | | $10,000.00 | 20392 | 0 |
| 5 | 10/01/1990 | OTHER | Other - Misc. Documents | SHEIL, MARLENE | HAMLIN, TONY / | | | $7,500.00 | 6006 | 0 |
| 6 | 05/01/1989 | OTHER | Other - Misc. Documents | BECKWITH, LUCILLE A | SHEIL, MARLENE | | | $0.00 | 91609 | 0 |
| 7 | 05/01/1987 | OTHER | Other - Misc. Documents | BECKWITH, T J | BECKWITH, LUCILLE A | | | $0.00 | 71198 | 0 |
| 8 | 04/01/1981 | OTHER | Other - Misc. Documents | Unknown | BECKWITH, T J | | | $11,567.00 | 11567 | 0 |
Payout Agreement
| No payout information available.. |