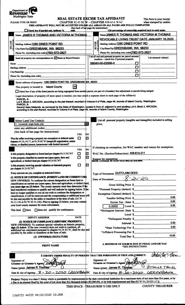
Property
Account |
| Property ID: | 56888 | Abbreviated Legal Description: | 53 - IN GL1: BG 60 RDS (990')S & 40 RDS (660')W OF NECR GL1 N144.70' E125' S144.70' W TPB |
| Geographic ID: | R22922-434-3380 | Agent Code: | |
| Type: | Real | | |
| Tax Area: | 710 - APPRAISER-S Whid Schl Dist, outside Langley, improved & 1 acre or less | Land Use Code | 11 |
| Open Space: | N | DFL | N |
| Historic Property: | N | Remodel Property: | N |
| Multi-Family Redevelopment: | N | | |
| Township: | 29 | Section: | 22 |
| Range: | R2 |
Location |
| Address: | 1454 MUTINY LN FREELAND, WA 98249 | Mapsco: | |
| Neighborhood: | Cycle 3 | Map ID: | 336 |
| Neighborhood CD: | 3 |
Owner |
| Name: | TAYLOR, CARL | Owner ID: | 271244 |
| Mailing Address: | PAMELA TAYLOR 1454 MUTINY LN FREELAND, WA 98249 | % Ownership: | 100.0000000000% |
| | | Exemptions: | |
Taxes and Assessment Details
Values
| (+) Improvement Homesite Value: | + | $0 | |
| (+) Improvement Non-Homesite Value: | + | $341,418 | |
| (+) Land Homesite Value: | + | $0 | |
| (+) Land Non-Homesite Value: | + | $340,000 | |
| (+) Curr Use (HS): | + | $0 | $0 |
| (+) Curr Use (NHS): | + | $0 | $0 |
| | | -------------------------- | |
| (=) Market Value: | = | $681,418 | |
| (–) Productivity Loss: | – | $0 | |
| | | -------------------------- | |
| (=) Subtotal: | = | $681,418 | |
| (+) Senior Appraised Value: | + | $0 | |
| (+) Non-Senior Appraised Value: | + | $681,418 | |
| | | -------------------------- | |
| (=) Total Appraised Value: | = | $681,418 | |
| (–) Senior Exemption Loss: | – | $0 | |
| (–) Exemption Loss: | – | $0 | |
| | | -------------------------- | |
| (=) Taxable Value: | = | $681,418 | |
Taxing Jurisdiction
| Owner: | TAYLOR, CARL | | |
| % Ownership: | 100.0000000000% | | |
| Total Value: | $681,418 | | |
| Tax Area: | 710 - APPRAISER-S Whid Schl Dist, outside Langley, improved & 1 acre or less |
| CF | Conservation Futures | 0.0316035091 | $681,418 | $681,418 | $21.54 | | |
| FIRE3 | Fire & Rescue Dist #3 S Whidbey GEN | 1.2004855531 | $681,418 | $681,418 | $818.03 | | |
| HOBOND | Hospital BOND | 0.1910887512 | $681,418 | $681,418 | $130.21 | | |
| HOGEN | Hospital GEN | 0.3902502903 | $681,418 | $681,418 | $265.92 | | |
| CE | County Current Expense | 0.3708482477 | $681,418 | $681,418 | $252.70 | | |
| CR | County Roads | 0.4584763726 | $681,418 | $681,418 | $312.41 | | |
| ISLANDEMS | Hospital GEN (EMS) | 0.5000000000 | $681,418 | $681,418 | $340.71 | | |
| LIB | Library Sno-Isle GEN | 0.3153421757 | $681,418 | $681,418 | $214.88 | | |
| PORTWHID | Port of S Whidbey GEN | 0.1094540357 | $681,418 | $681,418 | $74.58 | | |
| SCH206BOND | School 206 BOND | 0.3161759235 | $681,418 | $681,418 | $215.45 | | |
| SCH206MO | School 206 Enrichment | 0.4547169547 | $681,418 | $681,418 | $309.85 | | |
| ST | State School | 1.3035497053 | $681,418 | $681,418 | $888.26 | | |
| ST2 | State School Part 2 | 0.8169543533 | $681,418 | $681,418 | $556.69 | | |
| SWHIDPRBD | P & R S Whidbey BOND | 0.0152817568 | $681,418 | $681,418 | $10.41 | | |
| SWHIDPRBD2 | P & R S Whidbey BOND2 | 0.0138911264 | $681,418 | $681,418 | $9.47 | | |
| SWHIDPRMT | P & R S Whidbey GEN | 0.2053334452 | $681,418 | $681,418 | $139.92 | | |
| | Total Tax Rate: | 6.6934522006 | | | | | |
| | | | | Taxes w/Current Exemptions: | $4,561.03 | | |
| | | | | Taxes w/o Exemptions: | $4,561.03 | | |
Improvement / Building
| Improvement #1: | RESIDENTIAL | State Code: | Y | 1686.0 sqft | Value: | $341,418 |
| Bathrooms: | 2 | Bedrooms: | 2 | | Ceiling: | DRYWALL PAINTED | Cooling: | HEAT PUMP/CONV/V | | Exterior Wall/Cover: | PLY/HARDBOARD T-111 | Floor Covering: | HARDWOOD/CARP 20-80 | | Floor Structure: | WOOD W/SUBFLOOR | Foundation: | CONCRETE | | Interior Finish: | DRYWALL PAINT | Plumbing Fixture Cnt: | 9 | | Roof Slope: | FLAT | Roof Structure/Cover: | BEAM ASPHALT |
|
| | Type | Description | Class CD | Sub Class CD | Year Built | Area |
| | BAS | BASE/MAIN FLOOR | 3 | 0 | 2019 | 1686.0 |
| | OWC | OPEN WOOD PORCH W/STEPS/ROOF/C | 3 | 0 | 2019 | 384.0 |
Sketch
Property Image
Land
| 1 | 15 | SQ (12001-21780) | 0.4100 | 17859.60 | 0.00 | 0.00 | 1.00 | $340,000 | $0 |
Roll Value History
| 2026 | N/A | N/A | N/A | N/A | N/A |
| 2025 | $341,418 | $340,000 | $0 | $681,418 | $681,418 |
| 2024 | $344,171 | $320,000 | $0 | $664,171 | $664,171 |
| 2023 | $346,924 | $300,000 | $0 | $646,924 | $646,924 |
| 2022 | $316,644 | $280,000 | $0 | $596,644 | $596,644 |
| 2021 | $278,236 | $190,000 | $0 | $468,236 | $468,236 |
| 2020 | $273,020 | $180,000 | $0 | $453,020 | $453,020 |
| 2019 | $66,791 | $100,000 | $0 | $166,791 | $166,791 |
| 2018 | $0 | $100,000 | $0 | $100,000 | $100,000 |
| 2017 | $0 | $15,000 | $0 | $15,000 | $15,000 |
| 2016 | $0 | $15,000 | $0 | $15,000 | $15,000 |
| 2015 | $0 | $15,000 | $0 | $15,000 | $15,000 |
| 2014 | $0 | $15,000 | $0 | $15,000 | $15,000 |
| 2013 | $0 | $35,000 | $0 | $35,000 | $35,000 |
| 2012 | $0 | $35,000 | $0 | $35,000 | $35,000 |
| 2011 | $0 | $35,000 | $0 | $35,000 | $35,000 |
| 2010 | $0 | $35,000 | $0 | $35,000 | $35,000 |
| 2009 | $0 | $37,500 | $0 | $37,500 | $37,500 |
| 2008 | $0 | $42,500 | $0 | $42,500 | $42,500 |
| 2007 | $0 | $29,500 | $0 | $29,500 | $29,500 |
Deed and Sales History
| 1 | 06/23/2015 | WD | Warranty Deed | BRONSON, KENNETH E | TAYLOR, CARL | | | $15,000.00 | 20233 | 4381132 |
| 2 | 05/01/1995 | QCD | Quit Claim Deed | BRONSON, KENNETH E | BRONSON, KENNETH E | | | $0.00 | 51573 | 95007433 |
| 3 | 01/01/1900 | OTHER | Other - Misc. Documents | Unknown | BRONSON, KENNETH E | | | $0.00 | 0 | 0 |
Payout Agreement
| No payout information available.. |