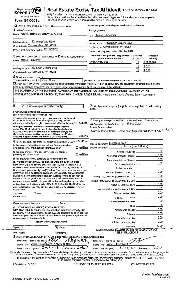
Property
Account |
| Property ID: | 568950 | Abbreviated Legal Description: | LOT 1 SP 83-01.23227.300-4200 V1 SP P219 AF#411474 |
| Geographic ID: | R23227-330-4180 | Agent Code: | |
| Type: | Real | | |
| Tax Area: | 512 - APPRAISER-Stan/Cam Schl Dist, improved, greater than 1 acre | Land Use Code | 11 |
| Open Space: | N | DFL | N |
| Historic Property: | N | Remodel Property: | N |
| Multi-Family Redevelopment: | N | | |
| Township: | 32 | Section: | 27 |
| Range: | R2 |
Location |
| Address: | 883 SCANDIA HILL RD CAMANO ISLAND, WA 98282 | Mapsco: | |
| Neighborhood: | North Camano | Map ID: | 571 |
| Neighborhood CD: | 06-C |
Owner |
| Name: | JOHNSON, DUSTIN B. | Owner ID: | 273488 |
| Mailing Address: | CALAIS H JOHNSON 883 SCANDIA HILL RD CAMANO ISLAND, WA 98282 | % Ownership: | 100.0000000000% |
| | | Exemptions: | |
Taxes and Assessment Details
Values
| (+) Improvement Homesite Value: | + | $0 | |
| (+) Improvement Non-Homesite Value: | + | $441,816 | |
| (+) Land Homesite Value: | + | $0 | |
| (+) Land Non-Homesite Value: | + | $300,000 | |
| (+) Curr Use (HS): | + | $0 | $0 |
| (+) Curr Use (NHS): | + | $0 | $0 |
| | | -------------------------- | |
| (=) Market Value: | = | $741,816 | |
| (–) Productivity Loss: | – | $0 | |
| | | -------------------------- | |
| (=) Subtotal: | = | $741,816 | |
| (+) Senior Appraised Value: | + | $0 | |
| (+) Non-Senior Appraised Value: | + | $741,816 | |
| | | -------------------------- | |
| (=) Total Appraised Value: | = | $741,816 | |
| (–) Senior Exemption Loss: | – | $0 | |
| (–) Exemption Loss: | – | $0 | |
| | | -------------------------- | |
| (=) Taxable Value: | = | $741,816 | |
Taxing Jurisdiction
| Owner: | JOHNSON, DUSTIN B. | | |
| % Ownership: | 100.0000000000% | | |
| Total Value: | $741,816 | | |
| Tax Area: | 512 - APPRAISER-Stan/Cam Schl Dist, improved, greater than 1 acre |
| CF | Conservation Futures | 0.0316035091 | $741,816 | $741,816 | $23.44 | | |
| EMS1 | Fire & Rescue Dist #1 Camano GEN (EMS) | 0.3677864386 | $741,816 | $741,816 | $272.83 | | |
| FIRE1 | Fire & Rescue Dist #1 Camano GEN | 1.2502910536 | $741,816 | $741,816 | $927.49 | | |
| FIRE1BOND | Fire & Rescue Dist #1 Camano BOND | 0.1570001679 | $741,816 | $741,816 | $116.47 | | |
| CE | County Current Expense | 0.3708482477 | $741,816 | $741,816 | $275.10 | | |
| CR | County Roads | 0.4584763726 | $741,816 | $741,816 | $340.11 | | |
| LCIB | Library Sno-Isle BOND (Camano Island) | 0.0396325772 | $741,816 | $741,816 | $29.40 | | |
| LIB | Library Sno-Isle GEN | 0.3153421757 | $741,816 | $741,816 | $233.93 | | |
| SCH205_401 | School 205-401 Enrichment | 1.2698420524 | $741,816 | $741,816 | $941.99 | | |
| SCH205BOND | School 205-401 BOND | 0.9396497583 | $741,816 | $741,816 | $697.05 | | |
| ST | State School | 1.3035497053 | $741,816 | $741,816 | $966.99 | | |
| ST2 | State School Part 2 | 0.8169543533 | $741,816 | $741,816 | $606.03 | | |
| | Total Tax Rate: | 7.3209764117 | | | | | |
| | | | | Taxes w/Current Exemptions: | $5,430.83 | | |
| | | | | Taxes w/o Exemptions: | $5,430.83 | | |
Improvement / Building
| Improvement #1: | RESIDENTIAL | State Code: | Y | 3277.8 sqft | Value: | $441,816 |
| Bathrooms: | 2 | Bedrooms: | 2 | | Ceiling: | DRYWALL PAINTED | Cooling: | HEAT PUMP/CONV/V | | Exterior Wall/Cover: | WOOD SIDING | Floor Covering: | HARDWOOD/CARP 80-20 | | Floor Structure: | WOOD W/SUBFLOOR | Foundation: | CONCRETE | | Interior Finish: | DRYWALL PAINT | Plumbing Fixture Cnt: | 11 | | Roof Slope: | 10" IN 12" | Roof Structure/Cover: | CJ ASPHALT |
|
| | Type | Description | Class CD | Sub Class CD | Year Built | Area |
| | BAS | BASE/MAIN FLOOR | 3 | 0 | 2003 | 1663.5 |
| | DWN | DOWNSTAIRS LIVING AREA | 3 | 0 | 2003 | 1614.3 |
| | OP4 | OPEN PORCH W/CEILING-ROOF | 3 | 0 | 2003 | 54.3 |
| | AGR | ATTACHED GARAGE | 3 | 0 | 2003 | 505.4 |
| | OWP | OPEN WOOD PORCH W/STEPS | 3 | 0 | 2003 | 397.4 |
| | DGR | DETACHED GARAGE | 3 | 0 | 2003 | 768.0 |
| | OP1 | OPEN PORCH SLAB | 3 | 0 | 2003 | 472.7 |
Sketch
Property Image
Land
| 1 | 17 | AC (01.01-02.00) | 1.2200 | 53143.20 | 0.00 | 0.00 | 1.00 | $300,000 | $0 |
Roll Value History
| 2026 | N/A | N/A | N/A | N/A | N/A |
| 2025 | $441,816 | $300,000 | $0 | $741,816 | $741,816 |
| 2024 | $447,254 | $290,000 | $0 | $737,254 | $737,254 |
| 2023 | $452,692 | $290,000 | $0 | $742,692 | $742,692 |
| 2022 | $406,839 | $260,000 | $0 | $666,839 | $666,839 |
| 2021 | $358,068 | $190,000 | $0 | $548,068 | $548,068 |
| 2020 | $348,895 | $150,000 | $0 | $498,895 | $498,895 |
| 2019 | $255,195 | $180,000 | $0 | $435,195 | $435,195 |
| 2018 | $255,943 | $150,000 | $0 | $405,943 | $405,943 |
| 2017 | $257,439 | $120,000 | $0 | $377,439 | $377,439 |
| 2016 | $264,766 | $130,000 | $0 | $394,766 | $394,766 |
| 2015 | $252,617 | $74,400 | $0 | $327,017 | $327,017 |
| 2014 | $255,521 | $74,400 | $0 | $329,921 | $131,968 |
| 2013 | $258,426 | $74,400 | $0 | $332,826 | $133,130 |
| 2012 | $261,330 | $74,400 | $0 | $335,730 | $134,292 |
| 2011 | $264,232 | $93,000 | $0 | $357,232 | $142,893 |
| 2010 | $279,971 | $93,000 | $0 | $372,971 | $149,188 |
| 2009 | $291,073 | $113,730 | $0 | $404,803 | $158,835 |
| 2008 | $297,087 | $100,000 | $0 | $397,087 | $158,835 |
| 2007 | $273,748 | $100,000 | $0 | $373,748 | $373,748 |
Deed and Sales History
| 1 | 12/24/2015 | WD | Warranty Deed | MYER, MIKEL J | JOHNSON, DUSTIN B. | | | $385,000.00 | 22669 | 4391808 |
| 2 | 12/03/2003 | WD | Warranty Deed | COZY HEATING INC, | MYER, MIKEL J | | | $259,950.00 | 35515 | 4085387 |
| 3 | 10/28/2002 | WD | Warranty Deed | FAMILY LLC, LOREN RANKIN | COZY HEATING INC, | | | $60,725.00 | 24626 | 4037877 |
| 4 | 12/30/1997 | QCD | Quit Claim Deed | LOREN, RANKIN F | FAMILY LLC, LOREN RANKIN | | | $0.00 | 82773 | 98014383 |
| 5 | 12/01/1978 | OTHER | Other - Misc. Documents | Unknown | RANKIN, LOREN | | | $20,000.00 | 90603 | 347229 |
| 6 | 01/01/1900 | OTHER | Other - Misc. Documents | RANKIN, LOREN | LOREN, RANKIN F | | | $0.00 | 82773 | 98014383 |
Payout Agreement
| No payout information available.. |