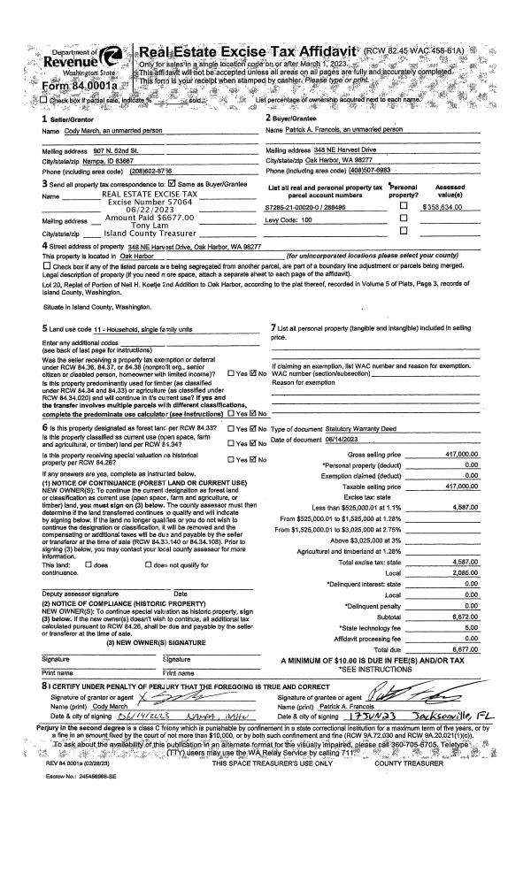
Property
Account |
| Property ID: | 569227 | Abbreviated Legal Description: | TR C SP 83-33.23234.180-5100 AF#413526 V1-SP-P228 TGW PT LOT D SP83-55(33): BG SECR LOT C SP 83-55(33) N89*W134.77'TO SWCR LOT C S5*W347.29'TP NWLY LN PRIV RD (HORIZON WAY) ALG NWLY LN SD PRIV RD N16*E178.41' TP CUR/R 108.97' N43*E82.01 CUR/L 22.57'TPB |
| Geographic ID: | R23234-211-5030 | Agent Code: | |
| Type: | Real | | |
| Tax Area: | 510 - APPRAISER-Stan/Cam Schl Dist, improved & 1 acre or less | Land Use Code | 11 |
| Open Space: | N | DFL | N |
| Historic Property: | N | Remodel Property: | N |
| Multi-Family Redevelopment: | N | | |
| Township: | 32 | Section: | 34 |
| Range: | R2 |
Location |
| Address: | 157 HORIZON WAY CAMANO ISLAND, WA 98282 | Mapsco: | |
| Neighborhood: | North Camano | Map ID: | 573 |
| Neighborhood CD: | 06-C |
Owner |
| Name: | BORING, WILLIAM C | Owner ID: | 26661 |
| Mailing Address: | PAMELA D BORING 157 HORIZON WAY CAMANO ISLAND, WA 98282-8518 | % Ownership: | 100.0000000000% |
| | | Exemptions: | |
Taxes and Assessment Details
Values
| (+) Improvement Homesite Value: | + | $0 | |
| (+) Improvement Non-Homesite Value: | + | $662,728 | |
| (+) Land Homesite Value: | + | $0 | |
| (+) Land Non-Homesite Value: | + | $430,000 | |
| (+) Curr Use (HS): | + | $0 | $0 |
| (+) Curr Use (NHS): | + | $0 | $0 |
| | | -------------------------- | |
| (=) Market Value: | = | $1,092,728 | |
| (–) Productivity Loss: | – | $0 | |
| | | -------------------------- | |
| (=) Subtotal: | = | $1,092,728 | |
| (+) Senior Appraised Value: | + | $0 | |
| (+) Non-Senior Appraised Value: | + | $1,092,728 | |
| | | -------------------------- | |
| (=) Total Appraised Value: | = | $1,092,728 | |
| (–) Senior Exemption Loss: | – | $0 | |
| (–) Exemption Loss: | – | $0 | |
| | | -------------------------- | |
| (=) Taxable Value: | = | $1,092,728 | |
Taxing Jurisdiction
| Owner: | BORING, WILLIAM C | | |
| % Ownership: | 100.0000000000% | | |
| Total Value: | $1,092,728 | | |
| Tax Area: | 510 - APPRAISER-Stan/Cam Schl Dist, improved & 1 acre or less |
| CF | Conservation Futures | 0.0316035091 | $1,092,728 | $1,092,728 | $34.53 | | |
| EMS1 | Fire & Rescue Dist #1 Camano GEN (EMS) | 0.3677864386 | $1,092,728 | $1,092,728 | $401.89 | | |
| FIRE1 | Fire & Rescue Dist #1 Camano GEN | 1.2502910536 | $1,092,728 | $1,092,728 | $1,366.23 | | |
| FIRE1BOND | Fire & Rescue Dist #1 Camano BOND | 0.1570001679 | $1,092,728 | $1,092,728 | $171.56 | | |
| CE | County Current Expense | 0.3708482477 | $1,092,728 | $1,092,728 | $405.24 | | |
| CR | County Roads | 0.4584763726 | $1,092,728 | $1,092,728 | $500.99 | | |
| LCIB | Library Sno-Isle BOND (Camano Island) | 0.0396325772 | $1,092,728 | $1,092,728 | $43.31 | | |
| LIB | Library Sno-Isle GEN | 0.3153421757 | $1,092,728 | $1,092,728 | $344.58 | | |
| SCH205_401 | School 205-401 Enrichment | 1.2698420524 | $1,092,728 | $1,092,728 | $1,387.59 | | |
| SCH205BOND | School 205-401 BOND | 0.9396497583 | $1,092,728 | $1,092,728 | $1,026.78 | | |
| ST | State School | 1.3035497053 | $1,092,728 | $1,092,728 | $1,424.43 | | |
| ST2 | State School Part 2 | 0.8169543533 | $1,092,728 | $1,092,728 | $892.71 | | |
| | Total Tax Rate: | 7.3209764117 | | | | | |
| | | | | Taxes w/Current Exemptions: | $7,999.84 | | |
| | | | | Taxes w/o Exemptions: | $7,999.84 | | |
Improvement / Building
| Improvement #1: | RESIDENTIAL | State Code: | Y | 3770.2 sqft | Value: | $662,728 |
| Bathrooms: | 2.5 | Bedrooms: | 3 | | Ceiling: | DRYWALL PAINTED | Cooling: | HEAT PUMP/CONV/V | | Exterior Wall/Cover: | WOOD SIDING | Floor Covering: | HARDWOOD/CARP 60-40 | | Floor Structure: | WOOD W/SUBFLOOR | Foundation: | CONCRETE | | Interior Finish: | DRYWALL PAINT | Plumbing Fixture Cnt: | 17 | | Roof Slope: | 4" IN 12" | Roof Structure/Cover: | BEAM ASPHALT |
|
| | Type | Description | Class CD | Sub Class CD | Year Built | Area |
| | BAS | BASE/MAIN FLOOR | 4 | 0 | 1992 | 1885.1 |
| | DGR | DETACHED GARAGE | 4 | 0 | 1992 | 1536.0 |
| | AGR | ATTACHED GARAGE | 4 | 0 | 1992 | 878.4 |
| | OWP | OPEN WOOD PORCH W/STEPS | 4 | 0 | 1992 | 693.1 |
| | OWC | OPEN WOOD PORCH W/STEPS/ROOF/C | 4 | 0 | 1992 | 152.0 |
| | DWN | DOWNSTAIRS LIVING AREA | 4 | 0 | 1992 | 1885.1 |
| | OWP | OPEN WOOD PORCH W/STEPS | 4 | 0 | 1992 | 261.7 |
Sketch
Property Image
Land
| 1 | 16 | AC (00.51-01.00) | 0.0000 | 0.00 | 0.00 | 0.00 | 1.00 | $430,000 | $0 |
Roll Value History
| 2026 | N/A | N/A | N/A | N/A | N/A |
| 2025 | $662,728 | $430,000 | $0 | $1,092,728 | $1,092,728 |
| 2024 | $671,306 | $430,000 | $0 | $1,101,306 | $1,101,306 |
| 2023 | $679,887 | $460,000 | $0 | $1,139,887 | $1,139,887 |
| 2022 | $569,928 | $360,000 | $0 | $929,928 | $929,928 |
| 2021 | $502,286 | $240,000 | $0 | $742,286 | $742,286 |
| 2020 | $490,888 | $200,000 | $0 | $690,888 | $690,888 |
| 2019 | $401,430 | $250,000 | $0 | $651,430 | $651,430 |
| 2018 | $402,729 | $180,000 | $0 | $582,729 | $582,729 |
| 2017 | $405,327 | $180,000 | $0 | $585,327 | $585,327 |
| 2016 | $394,520 | $130,000 | $0 | $524,520 | $524,520 |
| 2015 | $399,643 | $104,000 | $0 | $503,643 | $503,643 |
| 2014 | $404,767 | $104,000 | $0 | $508,767 | $508,767 |
| 2013 | $409,890 | $104,000 | $0 | $513,890 | $513,890 |
| 2012 | $415,013 | $104,000 | $0 | $519,013 | $519,013 |
| 2011 | $420,138 | $130,000 | $0 | $550,138 | $550,138 |
| 2010 | $417,652 | $130,000 | $0 | $547,652 | $547,652 |
| 2009 | $435,557 | $200,000 | $0 | $635,557 | $635,557 |
| 2008 | $440,723 | $200,000 | $0 | $640,723 | $640,723 |
| 2007 | $432,756 | $213,148 | $0 | $645,904 | $645,904 |
Deed and Sales History
| 1 | 07/30/2007 | WD | Warranty Deed | AMENT, STANLEY E | BORING, WILLIAM C | | | $670,000.00 | 72585 | 4208371 |
| 2 | 05/01/1991 | OTHER | Other - Misc. Documents | AMENT, STANLEY E | AMENT, STANLEY E | | | $0.00 | 64192 | 91006291 |
| 3 | 05/01/1991 | QCD | Quit Claim Deed | AMENT, STANLEY E | AMENT, STANLEY E | | | $0.00 | 11544 | 91006471 |
| 4 | 09/01/1986 | WD | Warranty Deed | RIEHL, DAN | AMENT, STANLEY E | | | $20,000.00 | 62602 | 86011859 |
| 5 | 08/01/1983 | OTHER | Other - Misc. Documents | Unknown | RIEHL, DAN | | | $0.00 | 60200 | 413526 |
Payout Agreement
| No payout information available.. |