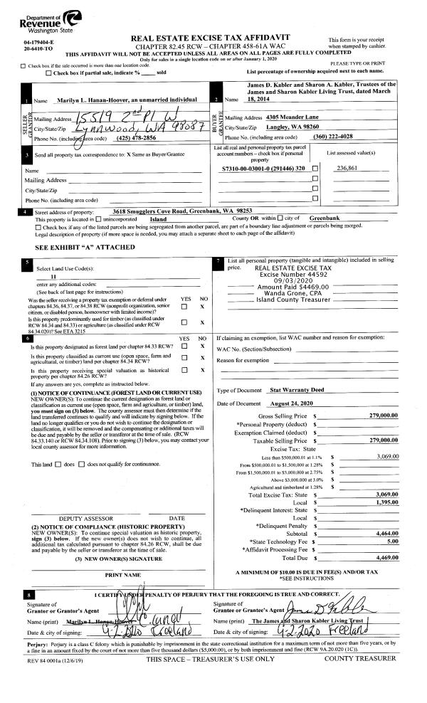
Property
Account |
| Property ID: | 569361 | Abbreviated Legal Description: | IN SW NW & GL3 LY E OF ST HWY 525: BG NWCR SW NW S88*E660' S1*W330' TP OF INTER/W NLN GREENBANK EST #1 SD LN PROJ WLY FR NWCR SD PLAT S88*E152.43' TO ELN HWY TPB S88*E791.95' N1*W TO NLN GL3 N88*W TO ELN HWY S17*E348.91' TPB TGW & SUB EZS FR 382 1580 |
| Geographic ID: | R23016-377-1300 | Agent Code: | |
| Type: | Real | | |
| Tax Area: | 312 - APPRAISER-Cpvl Schl Dist, outside Cpvl, improved, greater than 1 acre | Land Use Code | 11 |
| Open Space: | N | DFL | N |
| Historic Property: | N | Remodel Property: | N |
| Multi-Family Redevelopment: | N | | |
| Township: | 30 | Section: | 16 |
| Range: | R2 |
Location |
| Address: | 24550 SR525 GREENBANK, WA 98253 | Mapsco: | |
| Neighborhood: | Cycle 3 | Map ID: | 383 |
| Neighborhood CD: | 3 |
Owner |
| Name: | POWELL, GEORGE G | Owner ID: | 15142 |
| Mailing Address: | CAROL S POWELL PO BOX 16 GREENBANK, WA 98253-0016 | % Ownership: | 100.0000000000% |
| | | Exemptions: | |
Taxes and Assessment Details
Values
| (+) Improvement Homesite Value: | + | $0 | |
| (+) Improvement Non-Homesite Value: | + | $283,371 | |
| (+) Land Homesite Value: | + | $0 | |
| (+) Land Non-Homesite Value: | + | $390,000 | |
| (+) Curr Use (HS): | + | $0 | $0 |
| (+) Curr Use (NHS): | + | $0 | $0 |
| | | -------------------------- | |
| (=) Market Value: | = | $673,371 | |
| (–) Productivity Loss: | – | $0 | |
| | | -------------------------- | |
| (=) Subtotal: | = | $673,371 | |
| (+) Senior Appraised Value: | + | $0 | |
| (+) Non-Senior Appraised Value: | + | $673,371 | |
| | | -------------------------- | |
| (=) Total Appraised Value: | = | $673,371 | |
| (–) Senior Exemption Loss: | – | $0 | |
| (–) Exemption Loss: | – | $0 | |
| | | -------------------------- | |
| (=) Taxable Value: | = | $673,371 | |
Taxing Jurisdiction
| Owner: | POWELL, GEORGE G | | |
| % Ownership: | 100.0000000000% | | |
| Total Value: | $673,371 | | |
| Tax Area: | 312 - APPRAISER-Cpvl Schl Dist, outside Cpvl, improved, greater than 1 acre |
| CF | Conservation Futures | 0.0316035091 | $673,371 | $673,371 | $21.28 | | |
| CEM2 | Cemetery #2 | 0.0095056933 | $673,371 | $673,371 | $6.40 | | |
| FIRE5 | Fire & Rescue Dist #5 C Whidbey GEN | 1.2008080668 | $673,371 | $673,371 | $808.59 | | |
| FIRE5BOND | Fire & Rescue Dist #5 C Whidbey BOND | 0.1400090713 | $673,371 | $673,371 | $94.28 | | |
| HOBOND | Hospital BOND | 0.1910887512 | $673,371 | $673,371 | $128.67 | | |
| HOGEN | Hospital GEN | 0.3902502903 | $673,371 | $673,371 | $262.78 | | |
| CE | County Current Expense | 0.3708482477 | $673,371 | $673,371 | $249.72 | | |
| CR | County Roads | 0.4584763726 | $673,371 | $673,371 | $308.72 | | |
| ISLANDEMS | Hospital GEN (EMS) | 0.5000000000 | $673,371 | $673,371 | $336.69 | | |
| LIB | Library Sno-Isle GEN | 0.3153421757 | $673,371 | $673,371 | $212.34 | | |
| LIBCAP | Library Sno-Isle BOND (Cap Fac Imp Area) | 0.0543427938 | $673,371 | $673,371 | $36.59 | | |
| POCOUP | Port of Coupeville GEN | 0.1093371703 | $673,371 | $673,371 | $73.62 | | |
| POCOUPIDD | Port of Coupeville IDD | 0.3409740022 | $673,371 | $673,371 | $229.60 | | |
| COUPSDTECH | School 204 CP (TECH) | 0.7545480007 | $673,371 | $673,371 | $508.09 | | |
| SCH204MO | School 204 Enrichment | 0.6716186034 | $673,371 | $673,371 | $452.25 | | |
| ST | State School | 1.3035497053 | $673,371 | $673,371 | $877.77 | | |
| ST2 | State School Part 2 | 0.8169543533 | $673,371 | $673,371 | $550.11 | | |
| | Total Tax Rate: | 7.6592568070 | | | | | |
| | | | | Taxes w/Current Exemptions: | $5,157.50 | | |
| | | | | Taxes w/o Exemptions: | $5,157.50 | | |
Improvement / Building
| Improvement #1: | RESIDENTIAL | State Code: | Y | 1296.0 sqft | Value: | $283,371 |
| Bathrooms: | 1.5 | Bedrooms: | 2 | | Ceiling: | DRYWALL PAINTED | Exterior Wall/Cover: | WOOD SIDING | | Floor Covering: | CARPET/VINYL 80-20 | Floor Structure: | WOOD W/SUBFLOOR | | Foundation: | CONCRETE | Heating: | WALL HEAT ELECTRIC | | Interior Finish: | DRYWALL PAINT | Plumbing Fixture Cnt: | 8 | | Roof Slope: | 4" IN 12" | Roof Structure/Cover: | CJ ALUMINIUM HEAVY |
|
| | Type | Description | Class CD | Sub Class CD | Year Built | Area |
| | BAS | BASE/MAIN FLOOR | 3 | 0 | 1998 | 1296.0 |
| | OP1 | OPEN PORCH SLAB | 3 | 0 | 1998 | 140.0 |
| | OP1 | OPEN PORCH SLAB | 3 | 0 | 1998 | 150.0 |
| | AGR | ATTACHED GARAGE | 3 | 0 | 1998 | 336.0 |
| | OWR | OPEN WOOD PORCH W/STEPS/ROOF | 3 | 0 | 1998 | 110.0 |
| | OWR | OPEN WOOD PORCH W/STEPS/ROOF | 3 | 0 | 1998 | 176.0 |
| | DGR | DETACHED GARAGE | 3 | 0 | 1998 | 1152.0 |
Sketch
Property Image
Land
| 1 | 32 | AC (03.01-09.99) | 6.2200 | 0.00 | 0.00 | 0.00 | 1.00 | $390,000 | $0 |
Roll Value History
| 2026 | N/A | N/A | N/A | N/A | N/A |
| 2025 | $283,371 | $390,000 | $0 | $673,371 | $673,371 |
| 2024 | $286,857 | $370,000 | $0 | $656,857 | $656,857 |
| 2023 | $290,346 | $350,000 | $0 | $640,346 | $640,346 |
| 2022 | $266,066 | $350,000 | $0 | $616,066 | $616,066 |
| 2021 | $234,110 | $280,000 | $0 | $514,110 | $514,110 |
| 2020 | $228,030 | $240,000 | $0 | $468,030 | $468,030 |
| 2019 | $144,559 | $280,000 | $0 | $424,559 | $424,559 |
| 2018 | $144,938 | $235,000 | $0 | $379,938 | $379,938 |
| 2017 | $145,696 | $200,000 | $0 | $345,696 | $345,696 |
| 2016 | $147,210 | $180,000 | $0 | $327,210 | $327,210 |
| 2015 | $148,725 | $150,000 | $0 | $298,725 | $298,725 |
| 2014 | $150,240 | $150,000 | $0 | $300,240 | $300,240 |
| 2013 | $151,754 | $157,176 | $0 | $308,930 | $308,930 |
| 2012 | $153,267 | $157,176 | $0 | $310,443 | $310,443 |
| 2011 | $154,784 | $174,640 | $0 | $329,424 | $329,424 |
| 2010 | $161,205 | $174,640 | $0 | $335,845 | $335,845 |
| 2009 | $167,693 | $184,080 | $0 | $351,773 | $351,773 |
| 2008 | $169,997 | $169,425 | $0 | $339,422 | $339,422 |
| 2007 | $172,260 | $146,720 | $0 | $318,980 | $318,980 |
Deed and Sales History
| 1 | 03/01/1996 | WD | Warranty Deed | POWELL, GEORGE G | POWELL, GEORGE G | | | $3,900.00 | 61377 | 96006982 |
| 2 | 12/01/1988 | WD | Warranty Deed | SCHWALD, CHARLES E | POWELL, GEORGE G | | | $45,000.00 | 84075 | 88015287 |
| 3 | 04/01/1986 | WD | Warranty Deed | ZIMMERMAN, DALE H | SCHWALD, CHARLES E | | | $35,000.00 | 60855 | 86003925 |
| 4 | 08/01/1983 | OTHER | Other - Misc. Documents | ZIMMERMAN, DALE H | ZIMMERMAN, DALE H | | | $0.00 | 60216 | 0 |
| 5 | 01/01/1900 | OTHER | Other - Misc. Documents | Unknown | ZIMMERMAN, DALE H | | | $0.00 | 0 | 0 |
Payout Agreement
| No payout information available.. |