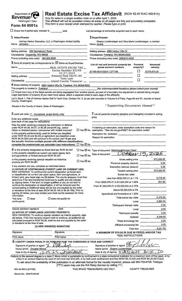
Property
Account |
| Property ID: | 569487 | Abbreviated Legal Description: | 1980 FLEETWOOD STONERIDGE 24X48 TPO %09030 VIN# WAFL2AA31643546AB FROM K-532711 |
| Geographic ID: | M91100000035-1 | Agent Code: | |
| Type: | Mobile Home | | |
| Tax Area: | 100 - APPRAISER-OH Schl Dist, in OH | Land Use Code | 11 |
| Open Space: | N | DFL | N |
| Historic Property: | N | Remodel Property: | N |
| Multi-Family Redevelopment: | N | | |
| Township: | | Section: | |
| Range: | |
Location |
| Address: | 700 NW CROSBY AVE # 35 OAK HARBOR, WA 98277 | Mapsco: | |
| Neighborhood: | Cycle 1 | Map ID: | |
| Neighborhood CD: | 1 |
Owner |
| Name: | MAGEE, MICHAEL J | Owner ID: | 317123 |
| Mailing Address: | PO BOX 475 FREELAND, WA 98249 | % Ownership: | 100.0000000000% |
| | | Exemptions: | |
Taxes and Assessment Details
Values
| (+) Improvement Homesite Value: | + | $0 | |
| (+) Improvement Non-Homesite Value: | + | $37,269 | |
| (+) Land Homesite Value: | + | $0 | |
| (+) Land Non-Homesite Value: | + | $0 | |
| (+) Curr Use (HS): | + | $0 | $0 |
| (+) Curr Use (NHS): | + | $0 | $0 |
| | | -------------------------- | |
| (=) Market Value: | = | $37,269 | |
| (–) Productivity Loss: | – | $0 | |
| | | -------------------------- | |
| (=) Subtotal: | = | $37,269 | |
| (+) Senior Appraised Value: | + | $0 | |
| (+) Non-Senior Appraised Value: | + | $37,269 | |
| | | -------------------------- | |
| (=) Total Appraised Value: | = | $37,269 | |
| (–) Senior Exemption Loss: | – | $0 | |
| (–) Exemption Loss: | – | $0 | |
| | | -------------------------- | |
| (=) Taxable Value: | = | $37,269 | |
Taxing Jurisdiction
| Owner: | MAGEE, MICHAEL J | | |
| % Ownership: | 100.0000000000% | | |
| Total Value: | $37,269 | | |
| Tax Area: | 100 - APPRAISER-OH Schl Dist, in OH |
| CF | Conservation Futures | 0.0316035091 | $37,269 | $37,269 | $1.18 | | |
| CEM1 | Cemetery #1 | 0.0040320932 | $37,269 | $37,269 | $0.15 | | |
| COH | City of Oak Harbor | 2.3001546061 | $37,269 | $37,269 | $85.72 | | |
| OAKBOND | City of Oak Harbor BOND | 0.1926904192 | $37,269 | $37,269 | $7.18 | | |
| HOBOND | Hospital BOND | 0.1910887512 | $37,269 | $37,269 | $7.12 | | |
| HOGEN | Hospital GEN | 0.3902502903 | $37,269 | $37,269 | $14.54 | | |
| CE | County Current Expense | 0.3708482477 | $37,269 | $37,269 | $13.82 | | |
| ISLANDEMS | Hospital GEN (EMS) | 0.5000000000 | $37,269 | $37,269 | $18.63 | | |
| LIB | Library Sno-Isle GEN | 0.3153421757 | $37,269 | $37,269 | $11.75 | | |
| NWHIDPRMT | P & R N Whidbey GEN | 0.2004466701 | $37,269 | $37,269 | $7.47 | | |
| SCH201MO | School 201 Enrichment | 1.8559231640 | $37,269 | $37,269 | $69.17 | | |
| ST | State School | 1.3035497053 | $37,269 | $37,269 | $48.58 | | |
| ST2 | State School Part 2 | 0.8169543533 | $37,269 | $37,269 | $30.45 | | |
| | Total Tax Rate: | 8.4728839852 | | | | | |
| | | | | Taxes w/Current Exemptions: | $315.76 | | |
| | | | | Taxes w/o Exemptions: | $315.76 | | |
Improvement / Building
| Improvement #1: | MANUFACTURED HOME | State Code: | Y | 1152.0 sqft | Value: | $37,269 |
| Bathrooms: | 0 | Bedrooms: | 0 | | Ceiling: | PLASTER PAINTED | Cooling: | EVAP NO DUCT | | Exterior Wall/Cover: | VINYL | Floor Covering: | CARPET 100% | | Floor Structure: | SLAB ON GRADE | Foundation: | SLAB | | Heating: | FHA ELECTRIC | Interior Finish: | PLASTER | | Plumbing Fixture Cnt: | 1 | Roof Slope: | FLAT | | Roof Structure/Cover: | CJ ALUMINIUM HEAVY |   |   |
|
Sketch
Property Image
Land
No land segments exist for this property.
Roll Value History
| 2026 | N/A | N/A | N/A | N/A | N/A |
| 2025 | $37,269 | $0 | $0 | $37,269 | $37,269 |
| 2024 | $39,931 | $0 | $0 | $39,931 | $0 |
| 2023 | $27,372 | $0 | $0 | $27,372 | $0 |
| 2022 | $25,614 | $0 | $0 | $25,614 | $0 |
| 2021 | $23,708 | $0 | $0 | $23,708 | $0 |
| 2020 | $24,412 | $0 | $0 | $24,412 | $0 |
| 2019 | $20,878 | $0 | $0 | $20,878 | $0 |
| 2018 | $21,977 | $0 | $0 | $21,977 | $0 |
| 2017 | $18,131 | $0 | $0 | $18,131 | $0 |
| 2016 | $19,230 | $0 | $0 | $19,230 | $0 |
| 2015 | $20,878 | $0 | $0 | $20,878 | $0 |
| 2014 | $21,977 | $0 | $0 | $21,977 | $0 |
| 2013 | $23,076 | $0 | $0 | $23,076 | $0 |
| 2012 | $24,175 | $0 | $0 | $24,175 | $0 |
| 2011 | $18,304 | $0 | $0 | $18,304 | $0 |
| 2010 | $20,702 | $0 | $0 | $20,702 | $0 |
| 2009 | $27,019 | $0 | $0 | $27,019 | $0 |
| 2008 | $28,133 | $0 | $0 | $28,133 | $0 |
| 2007 | $28,701 | $0 | $0 | $28,701 | $0 |
Deed and Sales History
| 1 | 06/26/2025 | MANHOME | Manufactured Home | METCALF, GARY B | MAGEE, MICHAEL J | | | $15,000.00 | 63947 | |
| 2 | 07/05/2016 | OTHER | Other - Misc. Documents | METCALF, MYRTLE O | METCALF, GARY B | | | $0.00 | 25094 | |
| 3 | 04/01/2005 | WD | Warranty Deed | WATT, ROBERT W | METCALF, MYRTLE O | | | $24,500.00 | 0 | 51328 |
| 4 | 03/01/2002 | OTHER | Other - Misc. Documents | KAY, MOLLY D | WATT, ROBERT W | | | $28,500.00 | 20809 | 0 |
| 5 | 10/01/1996 | OTHER | Other - Misc. Documents | REDHAGE, MARGARET M | KAY, MOLLY D | | | $27,500.00 | 63541 | 0 |
| 6 | 02/01/1995 | OTHER | Other - Misc. Documents | DUNCAN, EVELYN | REDHAGE, MARGARET M | | | $22,000.00 | 50546 | 0 |
| 7 | 11/01/1986 | OTHER | Other - Misc. Documents | GREENFIELD, VAN A | DUNCAN, EVELYN | | | $20,900.00 | 63275 | 0 |
| 8 | 10/01/1984 | OTHER | Other - Misc. Documents | FRANK, JOHN | GREENFIELD, VAN A | | | $0.00 | 42906 | 0 |
| 9 | 05/01/1981 | OTHER | Other - Misc. Documents | Unknown | FRANK, JOHN | | | $28,950.00 | 30615 | 0 |
Payout Agreement
| No payout information available.. |