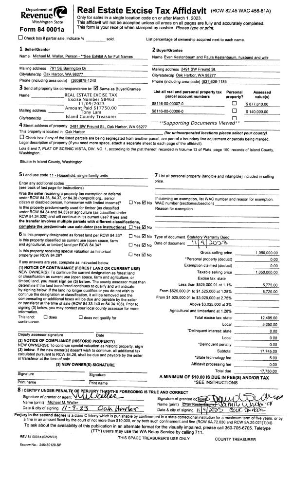
Property
Account |
| Property ID: | 569539 | Abbreviated Legal Description: | 1975 FLEETWOOD 14X56 VIN# S1587 TPO @37556 FROM K-534817 |
| Geographic ID: | M9170000000G0 | Agent Code: | |
| Type: | Mobile Home | | |
| Tax Area: | 110 - APPRAISER-OH Schl Dist, outside OH, improved & 1 acre or less | Land Use Code | 11 |
| Open Space: | N | DFL | N |
| Historic Property: | N | Remodel Property: | N |
| Multi-Family Redevelopment: | N | | |
| Township: | | Section: | |
| Range: | |
Location |
| Address: | 2920 HELLER RD UNIT G OAK HARBOR, WA 98277 | Mapsco: | |
| Neighborhood: | Cycle 6 | Map ID: | |
| Neighborhood CD: | 6 |
Owner |
| Name: | KIMMET, BRIANNA | Owner ID: | 309203 |
| Mailing Address: | SUZANNE KIMMET 2920 HELLER RD TRLR G OAK HARBOR, WA 98277 | % Ownership: | 100.0000000000% |
| | | Exemptions: | |
Taxes and Assessment Details
Values
| (+) Improvement Homesite Value: | + | $0 | |
| (+) Improvement Non-Homesite Value: | + | $11,298 | |
| (+) Land Homesite Value: | + | $0 | |
| (+) Land Non-Homesite Value: | + | $0 | |
| (+) Curr Use (HS): | + | $0 | $0 |
| (+) Curr Use (NHS): | + | $0 | $0 |
| | | -------------------------- | |
| (=) Market Value: | = | $11,298 | |
| (–) Productivity Loss: | – | $0 | |
| | | -------------------------- | |
| (=) Subtotal: | = | $11,298 | |
| (+) Senior Appraised Value: | + | $0 | |
| (+) Non-Senior Appraised Value: | + | $11,298 | |
| | | -------------------------- | |
| (=) Total Appraised Value: | = | $11,298 | |
| (–) Senior Exemption Loss: | – | $0 | |
| (–) Exemption Loss: | – | $0 | |
| | | -------------------------- | |
| (=) Taxable Value: | = | $11,298 | |
Taxing Jurisdiction
| Owner: | KIMMET, BRIANNA | | |
| % Ownership: | 100.0000000000% | | |
| Total Value: | $11,298 | | |
| Tax Area: | 110 - APPRAISER-OH Schl Dist, outside OH, improved & 1 acre or less |
| CF | Conservation Futures | 0.0316035091 | $11,298 | $11,298 | $0.36 | | |
| CEM1 | Cemetery #1 | 0.0040320932 | $11,298 | $11,298 | $0.05 | | |
| FIRE2 | Fire & Rescue Dist #2 N Whidbey GEN | 0.5475949600 | $11,298 | $11,298 | $6.19 | | |
| HOBOND | Hospital BOND | 0.1910887512 | $11,298 | $11,298 | $2.16 | | |
| HOGEN | Hospital GEN | 0.3902502903 | $11,298 | $11,298 | $4.41 | | |
| CE | County Current Expense | 0.3708482477 | $11,298 | $11,298 | $4.19 | | |
| CR | County Roads | 0.4584763726 | $11,298 | $11,298 | $5.18 | | |
| ISLANDEMS | Hospital GEN (EMS) | 0.5000000000 | $11,298 | $11,298 | $5.65 | | |
| LIB | Library Sno-Isle GEN | 0.3153421757 | $11,298 | $11,298 | $3.56 | | |
| NWHIDPRMT | P & R N Whidbey GEN | 0.2004466701 | $11,298 | $11,298 | $2.26 | | |
| SCH201MO | School 201 Enrichment | 1.8559231640 | $11,298 | $11,298 | $20.97 | | |
| ST | State School | 1.3035497053 | $11,298 | $11,298 | $14.73 | | |
| ST2 | State School Part 2 | 0.8169543533 | $11,298 | $11,298 | $9.23 | | |
| | Total Tax Rate: | 6.9861102925 | | | | | |
| | | | | Taxes w/Current Exemptions: | $78.94 | | |
| | | | | Taxes w/o Exemptions: | $78.94 | | |
Improvement / Building
| Improvement #1: | MANUFACTURED HOME | State Code: | Y | 784.0 sqft | Value: | $11,298 |
| Bathrooms: | 0 | Bedrooms: | 0 | | Ceiling: | PLASTER PAINTED | Cooling: | EVAP NO DUCT | | Exterior Wall/Cover: | VINYL | Floor Covering: | CARPET 100% | | Floor Structure: | SLAB ON GRADE | Foundation: | SLAB | | Heating: | FHA ELECTRIC | Interior Finish: | PLASTER | | Plumbing Fixture Cnt: | 1 | Roof Slope: | FLAT | | Roof Structure/Cover: | CJ ALUMINIUM HEAVY |   |   |
|
Sketch
Property Image
Land
No land segments exist for this property.
Roll Value History
| 2026 | N/A | N/A | N/A | N/A | N/A |
| 2025 | $11,298 | $0 | $0 | $11,298 | $11,298 |
| 2024 | $11,983 | $0 | $0 | $11,983 | $11,983 |
| 2023 | $11,312 | $0 | $0 | $11,312 | $11,312 |
| 2022 | $6,471 | $0 | $0 | $6,471 | $6,471 |
| 2021 | $5,861 | $0 | $0 | $5,861 | $5,861 |
| 2020 | $6,145 | $0 | $0 | $6,145 | $6,145 |
| 2019 | $5,020 | $0 | $0 | $5,020 | $5,020 |
| 2018 | $5,379 | $0 | $0 | $5,379 | $5,379 |
| 2017 | $5,558 | $0 | $0 | $5,558 | $5,558 |
| 2016 | $1,746 | $0 | $0 | $1,746 | $1,746 |
| 2015 | $1,811 | $0 | $0 | $1,811 | $1,811 |
| 2014 | $1,940 | $0 | $0 | $1,940 | $1,940 |
| 2013 | $2,005 | $0 | $0 | $2,005 | $2,005 |
| 2012 | $2,134 | $0 | $0 | $2,134 | $2,134 |
| 2011 | $2,264 | $0 | $0 | $2,264 | $2,264 |
| 2010 | $4,094 | $0 | $0 | $4,094 | $4,094 |
| 2009 | $4,293 | $0 | $0 | $4,293 | $4,293 |
| 2008 | $4,315 | $0 | $0 | $4,315 | $4,315 |
| 2007 | $4,330 | $0 | $0 | $4,330 | $4,330 |
Deed and Sales History
| 1 | 07/06/2023 | MANHOME | Manufactured Home | FLAT TOP LLC | KIMMET, BRIANNA | | | $12,500.00 | 57226 | |
| 2 | 09/22/2016 | MANHOME | Manufactured Home | VALENTINE, MICHAEL | FLAT TOP LLC | | | $0.00 | 26208 | |
| 3 | 01/05/2006 | OTHER | Other - Misc. Documents | TURNER, NICHOLAS A | VALENTINE, MICHAEL | | | $100.00 | 60039 | 0 |
| 4 | 10/04/2005 | OTHER | Other - Misc. Documents | HOWARD, SANDRA L | TURNER, NICHOLAS A | | | $0.00 | 55366 | 0 |
| 5 | 09/10/2002 | WD | Warranty Deed | Unknown | WOLF, RAYMOND J | | | $8,200.00 | 23600 | 0 |
| 6 | 08/01/1981 | OTHER | Other - Misc. Documents | WOLF, RAYMOND J | HOWARD, SANDRA L | | | $7,731.00 | 12662 | 0 |
Payout Agreement
| No payout information available.. |