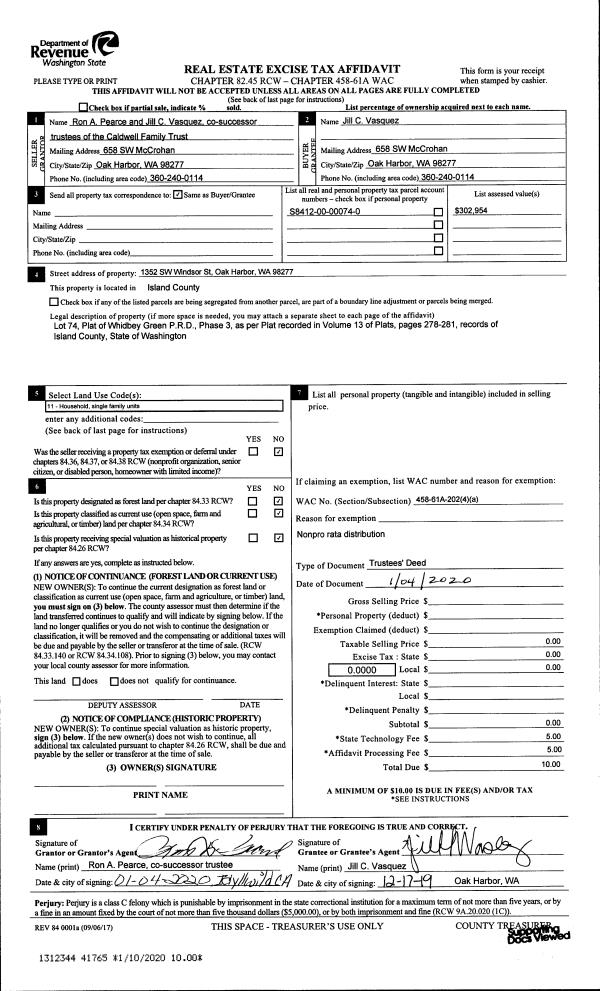
Property
Account |
| Property ID: | 569664 | Abbreviated Legal Description: | LOT A SP 81-84.23021.020-2010 V1 SP P194 AF#405336 EX PT TO ST HWY AF#99008536 |
| Geographic ID: | R23021-020-1650 | Agent Code: | |
| Type: | Real | | |
| Tax Area: | 312 - APPRAISER-Cpvl Schl Dist, outside Cpvl, improved, greater than 1 acre | Land Use Code | 11 |
| Open Space: | N | DFL | N |
| Historic Property: | N | Remodel Property: | N |
| Multi-Family Redevelopment: | N | | |
| Township: | 30 | Section: | 21 |
| Range: | R2 |
Location |
| Address: | 913 TOMCHUCK LN GREENBANK, WA 98253 | Mapsco: | |
| Neighborhood: | Cycle 3 | Map ID: | 400 |
| Neighborhood CD: | 3 |
Owner |
| Name: | JOHNSON, TANYA J | Owner ID: | 292338 |
| Mailing Address: | THOMAS O JOHNSON 913 TOMCHUCK LN GREENBANK, WA 98253 | % Ownership: | 100.0000000000% |
| | | Exemptions: | |
Taxes and Assessment Details
Values
| (+) Improvement Homesite Value: | + | $0 | |
| (+) Improvement Non-Homesite Value: | + | $253,965 | |
| (+) Land Homesite Value: | + | $0 | |
| (+) Land Non-Homesite Value: | + | $350,000 | |
| (+) Curr Use (HS): | + | $0 | $0 |
| (+) Curr Use (NHS): | + | $0 | $0 |
| | | -------------------------- | |
| (=) Market Value: | = | $603,965 | |
| (–) Productivity Loss: | – | $0 | |
| | | -------------------------- | |
| (=) Subtotal: | = | $603,965 | |
| (+) Senior Appraised Value: | + | $0 | |
| (+) Non-Senior Appraised Value: | + | $603,965 | |
| | | -------------------------- | |
| (=) Total Appraised Value: | = | $603,965 | |
| (–) Senior Exemption Loss: | – | $0 | |
| (–) Exemption Loss: | – | $0 | |
| | | -------------------------- | |
| (=) Taxable Value: | = | $603,965 | |
Taxing Jurisdiction
| Owner: | JOHNSON, TANYA J | | |
| % Ownership: | 100.0000000000% | | |
| Total Value: | $603,965 | | |
| Tax Area: | 312 - APPRAISER-Cpvl Schl Dist, outside Cpvl, improved, greater than 1 acre |
| CF | Conservation Futures | 0.0316035091 | $603,965 | $603,965 | $19.09 | | |
| CEM2 | Cemetery #2 | 0.0095056933 | $603,965 | $603,965 | $5.74 | | |
| FIRE5 | Fire & Rescue Dist #5 C Whidbey GEN | 1.2008080668 | $603,965 | $603,965 | $725.25 | | |
| FIRE5BOND | Fire & Rescue Dist #5 C Whidbey BOND | 0.1400090713 | $603,965 | $603,965 | $84.56 | | |
| HOBOND | Hospital BOND | 0.1910887512 | $603,965 | $603,965 | $115.41 | | |
| HOGEN | Hospital GEN | 0.3902502903 | $603,965 | $603,965 | $235.70 | | |
| CE | County Current Expense | 0.3708482477 | $603,965 | $603,965 | $223.98 | | |
| CR | County Roads | 0.4584763726 | $603,965 | $603,965 | $276.90 | | |
| ISLANDEMS | Hospital GEN (EMS) | 0.5000000000 | $603,965 | $603,965 | $301.98 | | |
| LIB | Library Sno-Isle GEN | 0.3153421757 | $603,965 | $603,965 | $190.46 | | |
| LIBCAP | Library Sno-Isle BOND (Cap Fac Imp Area) | 0.0543427938 | $603,965 | $603,965 | $32.82 | | |
| POCOUP | Port of Coupeville GEN | 0.1093371703 | $603,965 | $603,965 | $66.04 | | |
| POCOUPIDD | Port of Coupeville IDD | 0.3409740022 | $603,965 | $603,965 | $205.94 | | |
| COUPSDTECH | School 204 CP (TECH) | 0.7545480007 | $603,965 | $603,965 | $455.72 | | |
| SCH204MO | School 204 Enrichment | 0.6716186034 | $603,965 | $603,965 | $405.63 | | |
| ST | State School | 1.3035497053 | $603,965 | $603,965 | $787.30 | | |
| ST2 | State School Part 2 | 0.8169543533 | $603,965 | $603,965 | $493.41 | | |
| | Total Tax Rate: | 7.6592568070 | | | | | |
| | | | | Taxes w/Current Exemptions: | $4,625.93 | | |
| | | | | Taxes w/o Exemptions: | $4,625.93 | | |
Improvement / Building
| Improvement #1: | RESIDENTIAL | State Code: | Y | 3347.8 sqft | Value: | $253,965 |
| Bathrooms: | 2 | Bedrooms: | 3 | | Ceiling: | DRYWALL PAINTED | Exterior Wall/Cover: | WOOD SIDING | | Floor Covering: | TILE CERAMIC | Floor Structure: | WOOD W/SUBFLOOR | | Foundation: | SLAB | Heating: | WALL HEAT ELECTRIC | | Interior Finish: | DRYWALL PAINT | Plumbing Fixture Cnt: | 9 | | Roof Slope: | 3" IN 12" | Roof Structure/Cover: | CJ ASPHALT |
|
| | Type | Description | Class CD | Sub Class CD | Year Built | Area |
| | BAS | BASE/MAIN FLOOR | 3 | 0 | 1995 | 2379.0 |
| | OP1 | OPEN PORCH SLAB | 3 | 0 | 1995 | 320.6 |
| | UTY | STORAGE/UTILITY | 3 | 0 | 1995 | 18.5 |
| | UPH | HALF STORY | 3 | 0 | 1995 | 968.8 |
| | DGR | DETACHED GARAGE | 3 | 0 | 1995 | 864.0 |
| | OCP | OPEN CARPORT | 3 | 0 | 1995 | 288.0 |
| | UTY | STORAGE/UTILITY | 3 | 0 | 1995 | 1152.0 |
| | OCP | OPEN CARPORT | 3 | 0 | 1995 | 288.0 |
Sketch
Property Image
Land
| 1 | 32 | AC (03.01-09.99) | 4.6900 | 0.00 | 0.00 | 0.00 | 1.00 | $350,000 | $0 |
Roll Value History
| 2026 | N/A | N/A | N/A | N/A | N/A |
| 2025 | $253,965 | $350,000 | $0 | $603,965 | $603,965 |
| 2024 | $257,580 | $340,000 | $0 | $597,580 | $597,580 |
| 2023 | $263,536 | $320,000 | $0 | $583,536 | $583,536 |
| 2022 | $241,945 | $260,000 | $0 | $501,945 | $501,945 |
| 2021 | $213,248 | $230,000 | $0 | $443,248 | $443,248 |
| 2020 | $209,007 | $180,000 | $0 | $389,007 | $389,007 |
| 2019 | $289,273 | $220,000 | $0 | $509,273 | $509,273 |
| 2018 | $290,096 | $170,000 | $0 | $460,096 | $460,096 |
| 2017 | $291,622 | $160,000 | $0 | $451,622 | $451,622 |
| 2016 | $294,914 | $120,000 | $0 | $414,914 | $414,914 |
| 2015 | $298,203 | $130,000 | $0 | $428,203 | $428,203 |
| 2014 | $301,493 | $125,000 | $0 | $426,493 | $426,493 |
| 2013 | $306,688 | $113,967 | $0 | $420,655 | $420,655 |
| 2012 | $309,980 | $113,967 | $0 | $423,947 | $423,947 |
| 2011 | $313,270 | $126,630 | $0 | $439,900 | $439,900 |
| 2010 | $328,088 | $126,630 | $0 | $454,718 | $454,718 |
| 2009 | $342,379 | $182,910 | $0 | $525,289 | $525,289 |
| 2008 | $347,723 | $158,288 | $0 | $506,011 | $506,011 |
| 2007 | $349,911 | $135,390 | $0 | $485,301 | $485,301 |
Deed and Sales History
| 1 | 10/17/2019 | WD | Warranty Deed | YOCCO, MICHAEL | JOHNSON, TANYA J | | | $380,000.00 | 40814 | 4473997 |
| 2 | 07/16/2003 | WD | Warranty Deed | WINN, DON/JUDY | YOCCO, MICHAEL | | | $310,000.00 | 33177 | 4067954 |
| 3 | 03/04/1999 | WD | Warranty Deed | WINN, DON/JUDY | WINN, DON/JUDY | | | $2,300.00 | 91298 | 99008536 |
| 4 | 05/01/1993 | WD | Warranty Deed | JOHNSTON, THOMAS J | WINN, DON/JUDY | | | $25,000.00 | 31833 | 93009611 |
| 5 | 08/01/1990 | WD | Warranty Deed | KELLEMS, VAN G | JOHNSTON, THOMAS J | | | $23,500.00 | 4599 | 90015242 |
| 6 | 03/01/1981 | EXECUTORD | Executor Deed | Unknown | KELLEMS, VAN G | | | $15,925.00 | 10887 | 381058 |
| 7 | 01/01/1900 | OTHER | Other - Misc. Documents | KELLEMS, VAN G | KELLEMS, VAN G | | | $0.00 | 60232 | 0 |
Payout Agreement
| No payout information available.. |