Property
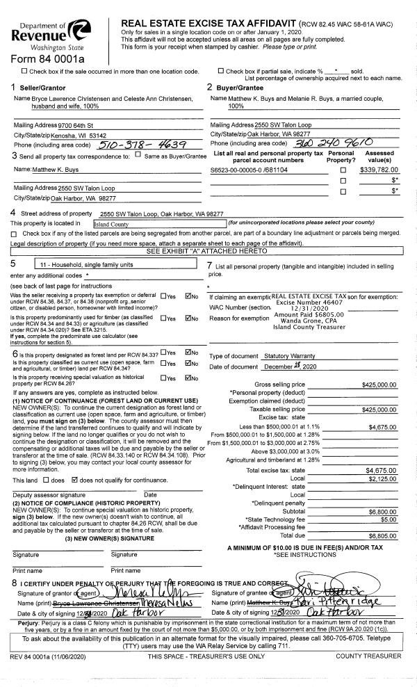
Account |
| Property ID: | 56977 | Abbreviated Legal Description: | 40 - IN GL1: BG PT ON SEC LN PROD FR 1/4 CR S89*W312 .84' MC FOR SECS 15 & 22 S1*E649' N89*E90.74' S8* W40.58' TO SLN RD & TPB N89*E122.53' S1*E64.7' S89*W133.65' N8*E65.65' M/L TPB |
| Geographic ID: | R22922-451-2480 | Agent Code: | |
| Type: | Real | | |
| Tax Area: | 710 - APPRAISER-S Whid Schl Dist, outside Langley, improved & 1 acre or less | Land Use Code | 11 |
| Open Space: | N | DFL | N |
| Historic Property: | N | Remodel Property: | N |
| Multi-Family Redevelopment: | N | | |
| Township: | 29 | Section: | 22 |
| Range: | R2 |
Location |
| Address: | 6056 SEAGULL LN FREELAND, WA 98249 | Mapsco: | |
| Neighborhood: | Cycle 3 | Map ID: | 336 |
| Neighborhood CD: | 3 |
Owner |
| Name: | LIEB, TIMOTHY | Owner ID: | 266902 |
| Mailing Address: | LORRIE LIEB 1124 GLEN RD LAFAYETTE, CA 94549 | % Ownership: | 100.0000000000% |
| | | Exemptions: | |
Taxes and Assessment Details
Values
| (+) Improvement Homesite Value: | + | $0 | |
| (+) Improvement Non-Homesite Value: | + | $365,844 | |
| (+) Land Homesite Value: | + | $0 | |
| (+) Land Non-Homesite Value: | + | $330,000 | |
| (+) Curr Use (HS): | + | $0 | $0 |
| (+) Curr Use (NHS): | + | $0 | $0 |
| | | -------------------------- | |
| (=) Market Value: | = | $695,844 | |
| (–) Productivity Loss: | – | $0 | |
| | | -------------------------- | |
| (=) Subtotal: | = | $695,844 | |
| (+) Senior Appraised Value: | + | $0 | |
| (+) Non-Senior Appraised Value: | + | $695,844 | |
| | | -------------------------- | |
| (=) Total Appraised Value: | = | $695,844 | |
| (–) Senior Exemption Loss: | – | $0 | |
| (–) Exemption Loss: | – | $0 | |
| | | -------------------------- | |
| (=) Taxable Value: | = | $695,844 | |
Taxing Jurisdiction
| Owner: | LIEB, TIMOTHY | | |
| % Ownership: | 100.0000000000% | | |
| Total Value: | $695,844 | | |
| Tax Area: | 710 - APPRAISER-S Whid Schl Dist, outside Langley, improved & 1 acre or less |
| CF | Conservation Futures | 0.0316035091 | $695,844 | $695,844 | $21.99 | | |
| FIRE3 | Fire & Rescue Dist #3 S Whidbey GEN | 1.2004855531 | $695,844 | $695,844 | $835.35 | | |
| HOBOND | Hospital BOND | 0.1910887512 | $695,844 | $695,844 | $132.97 | | |
| HOGEN | Hospital GEN | 0.3902502903 | $695,844 | $695,844 | $271.55 | | |
| CE | County Current Expense | 0.3708482477 | $695,844 | $695,844 | $258.05 | | |
| CR | County Roads | 0.4584763726 | $695,844 | $695,844 | $319.03 | | |
| ISLANDEMS | Hospital GEN (EMS) | 0.5000000000 | $695,844 | $695,844 | $347.92 | | |
| LIB | Library Sno-Isle GEN | 0.3153421757 | $695,844 | $695,844 | $219.43 | | |
| PORTWHID | Port of S Whidbey GEN | 0.1094540357 | $695,844 | $695,844 | $76.16 | | |
| SCH206BOND | School 206 BOND | 0.3161759235 | $695,844 | $695,844 | $220.01 | | |
| SCH206MO | School 206 Enrichment | 0.4547169547 | $695,844 | $695,844 | $316.41 | | |
| ST | State School | 1.3035497053 | $695,844 | $695,844 | $907.07 | | |
| ST2 | State School Part 2 | 0.8169543533 | $695,844 | $695,844 | $568.47 | | |
| SWHIDPRBD | P & R S Whidbey BOND | 0.0152817568 | $695,844 | $695,844 | $10.63 | | |
| SWHIDPRBD2 | P & R S Whidbey BOND2 | 0.0138911264 | $695,844 | $695,844 | $9.67 | | |
| SWHIDPRMT | P & R S Whidbey GEN | 0.2053334452 | $695,844 | $695,844 | $142.88 | | |
| | Total Tax Rate: | 6.6934522006 | | | | | |
| | | | | Taxes w/Current Exemptions: | $4,657.59 | | |
| | | | | Taxes w/o Exemptions: | $4,657.59 | | |
Improvement / Building
| Improvement #1: | RESIDENTIAL | State Code: | Y | 1920.0 sqft | Value: | $365,844 |
| Bathrooms: | 2 | Bedrooms: | 2 | | Ceiling: | DRYWALL PAINTED | Cooling: | HEAT PUMP/CONV/V | | Exterior Wall/Cover: | CEMENT FIBER | Floor Covering: | HARDWOOD/CARP 60-40 | | Floor Structure: | WOOD W/SUBFLOOR | Foundation: | CONCRETE | | Interior Finish: | DRYWALL PAINT | Plumbing Fixture Cnt: | 10 | | Roof Slope: | 8" IN 12" | Roof Structure/Cover: | CJ ALUMINIUM HEAVY |
|
| | Type | Description | Class CD | Sub Class CD | Year Built | Area |
| | BAS | BASE/MAIN FLOOR | 3 | 0 | 2015 | 864.0 |
| | UPS | UPPER STORY | 3 | 0 | 2015 | 864.0 |
| | UB8 | BASEMENT UNFINISHED 8" | 3 | 0 | 2015 | 864.0 |
| | OWP | OPEN WOOD PORCH W/STEPS | 3 | 0 | 2015 | 288.0 |
| | OWP | OPEN WOOD PORCH W/STEPS | 3 | 0 | 2015 | 240.0 |
| | LOF | LOFT | 3 | 0 | 2015 | 192.0 |
| | OWP | OPEN WOOD PORCH W/STEPS | 3 | 0 | 2015 | 35.0 |
| | OP1 | OPEN PORCH SLAB | 3 | 0 | 2015 | 50.0 |
Sketch
Property Image
Land
| 1 | 14 | SQ (08001-12000) | 0.1900 | 8276.40 | 0.00 | 0.00 | 1.00 | $330,000 | $0 |
Roll Value History
| 2026 | N/A | N/A | N/A | N/A | N/A |
| 2025 | $365,844 | $330,000 | $0 | $695,844 | $695,844 |
| 2024 | $369,096 | $310,000 | $0 | $679,096 | $679,096 |
| 2023 | $371,942 | $300,000 | $0 | $671,942 | $671,942 |
| 2022 | $339,565 | $280,000 | $0 | $619,565 | $619,565 |
| 2021 | $297,672 | $190,000 | $0 | $487,672 | $487,672 |
| 2020 | $289,346 | $180,000 | $0 | $469,346 | $469,346 |
| 2019 | $222,854 | $200,000 | $0 | $422,854 | $422,854 |
| 2018 | $223,432 | $200,000 | $0 | $423,432 | $423,432 |
| 2017 | $224,590 | $165,000 | $0 | $389,590 | $389,590 |
| 2016 | $226,905 | $165,000 | $0 | $391,905 | $391,905 |
| 2015 | $147,916 | $165,000 | $0 | $312,916 | $312,916 |
| 2014 | $26,953 | $125,000 | $0 | $151,953 | $151,953 |
| 2013 | $21,760 | $125,000 | $0 | $146,760 | $146,760 |
| 2012 | $21,760 | $140,250 | $0 | $162,010 | $162,010 |
| 2011 | $21,760 | $165,000 | $0 | $186,760 | $186,760 |
| 2010 | $22,335 | $165,000 | $0 | $187,335 | $187,335 |
| 2009 | $22,695 | $200,000 | $0 | $222,695 | $222,695 |
| 2008 | $22,803 | $223,000 | $0 | $245,803 | $245,803 |
| 2007 | $22,349 | $154,000 | $0 | $176,349 | $176,349 |
Deed and Sales History
| 1 | 06/13/2014 | WD | Warranty Deed | SOHNS, WILLIAM | LIEB, TIMOTHY | | | $181,000.00 | 15654 | 4360921 |
| 2 | 12/20/2010 | WD | Warranty Deed | GABELEIN, VERNON | SOHNS, WILLIAM | | | $187,000.00 | 3185 | 4287176 |
| 3 | 11/01/1987 | WD | Warranty Deed | REQUA, JAMES A | GABELEIN, VERNON | | | $45,000.00 | 73637 | 87015845 |
| 4 | 01/01/1900 | OTHER | Other - Misc. Documents | Unknown | REQUA, JAMES A | | | $0.00 | 0 | 0 |
Payout Agreement
| No payout information available.. |