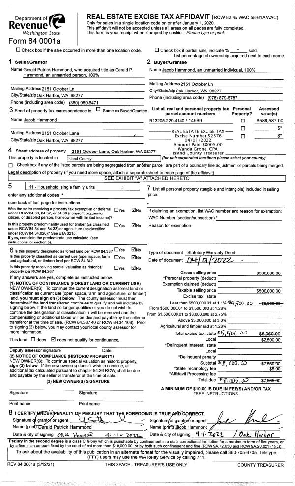
Property
Account |
| Property ID: | 571697 | Abbreviated Legal Description: | HILNDS CAM LOT 12 INCL ADJ TIDES TGW & SUB INT IN WELL FOR LOT 11-A & 11-B AF#415197 |
| Geographic ID: | S7125-00-00012-0 | Agent Code: | |
| Type: | Real | | |
| Tax Area: | 542 - APPRAISER-Stan/Cam Schl Dist, Special Dist, improved, greater than 1 acre | Land Use Code | 11 |
| Open Space: | N | DFL | N |
| Historic Property: | N | Remodel Property: | N |
| Multi-Family Redevelopment: | N | | |
| Township: | | Section: | |
| Range: | |
Location |
| Address: | 3816 SOUTH CAMANO DR CAMANO ISLAND, WA 98282 | Mapsco: | |
| Neighborhood: | 58RscamWF-South Cam | Map ID: | 875 |
| Neighborhood CD: | 58RscamWF |
Owner |
| Name: | 3816 CAMANO, LLC | Owner ID: | 287852 |
| Mailing Address: | 3816 S CAMANO DR CAMANO ISLAND, WA 98282 | % Ownership: | 100.0000000000% |
| | | Exemptions: | |
Taxes and Assessment Details
Values
| (+) Improvement Homesite Value: | + | $0 | |
| (+) Improvement Non-Homesite Value: | + | $182,854 | |
| (+) Land Homesite Value: | + | $0 | |
| (+) Land Non-Homesite Value: | + | $827,200 | |
| (+) Curr Use (HS): | + | $0 | $0 |
| (+) Curr Use (NHS): | + | $0 | $0 |
| | | -------------------------- | |
| (=) Market Value: | = | $1,010,054 | |
| (–) Productivity Loss: | – | $0 | |
| | | -------------------------- | |
| (=) Subtotal: | = | $1,010,054 | |
| (+) Senior Appraised Value: | + | $0 | |
| (+) Non-Senior Appraised Value: | + | $1,010,054 | |
| | | -------------------------- | |
| (=) Total Appraised Value: | = | $1,010,054 | |
| (–) Senior Exemption Loss: | – | $0 | |
| (–) Exemption Loss: | – | $0 | |
| | | -------------------------- | |
| (=) Taxable Value: | = | $1,010,054 | |
Taxing Jurisdiction
| Owner: | 3816 CAMANO, LLC | | |
| % Ownership: | 100.0000000000% | | |
| Total Value: | $1,010,054 | | |
| Tax Area: | 542 - APPRAISER-Stan/Cam Schl Dist, Special Dist, improved, greater than 1 acre |
| CF | Conservation Futures | 0.0316035091 | $1,010,054 | $1,010,054 | $31.92 | | |
| EMS1 | Fire & Rescue Dist #1 Camano GEN (EMS) | 0.3677864386 | $1,010,054 | $1,010,054 | $371.48 | | |
| FIRE1 | Fire & Rescue Dist #1 Camano GEN | 1.2502910536 | $1,010,054 | $1,010,054 | $1,262.86 | | |
| FIRE1BOND | Fire & Rescue Dist #1 Camano BOND | 0.1570001679 | $1,010,054 | $1,010,054 | $158.58 | | |
| CE | County Current Expense | 0.3708482477 | $1,010,054 | $1,010,054 | $374.58 | | |
| CR | County Roads | 0.4584763726 | $1,010,054 | $1,010,054 | $463.09 | | |
| LCIB | Library Sno-Isle BOND (Camano Island) | 0.0396325772 | $1,010,054 | $1,010,054 | $40.03 | | |
| LIB | Library Sno-Isle GEN | 0.3153421757 | $1,010,054 | $1,010,054 | $318.51 | | |
| SCH205_401 | School 205-401 Enrichment | 1.2698420524 | $1,010,054 | $1,010,054 | $1,282.61 | | |
| SCH205BOND | School 205-401 BOND | 0.9396497583 | $1,010,054 | $1,010,054 | $949.10 | | |
| ST | State School | 1.3035497053 | $1,010,054 | $1,010,054 | $1,316.66 | | |
| ST2 | State School Part 2 | 0.8169543533 | $1,010,054 | $1,010,054 | $825.17 | | |
| | Total Tax Rate: | 7.3209764117 | | | | | |
| | | | | Taxes w/Current Exemptions: | $7,394.59 | | |
| | | | | Taxes w/o Exemptions: | $7,394.59 | | |
Improvement / Building
| Improvement #1: | RESIDENTIAL | State Code: | Y | 1044.0 sqft | Value: | $182,854 |
| Bathrooms: | 1 | Bedrooms: | 2 | | Ceiling: | ACOUSTIC FURRED | Exterior Wall/Cover: | SHINGLE | | Floor Covering: | SOFTWOOD/VINYL 80-20 | Floor Structure: | WOOD W/SUBFLOOR | | Foundation: | WOOD BLOCKS | Heating: | BASEBOARD ELECTRIC | | Interior Finish: | DRYWALL PAINT | Plumbing Fixture Cnt: | 5 | | Roof Slope: | 6" IN 12" | Roof Structure/Cover: | CJ WOOD SHAKES |
|
| | Type | Description | Class CD | Sub Class CD | Year Built | Area |
| | BAS | BASE/MAIN FLOOR | 3 | 0 | 1946 | 1044.0 |
| | DGR | DETACHED GARAGE | 3 | 0 | 1946 | 676.0 |
| | OWP | OPEN WOOD PORCH W/STEPS | 3 | 0 | 1946 | 88.0 |
| | OWR | OPEN WOOD PORCH W/STEPS/ROOF | 3 | 0 | 1946 | 100.0 |
| | OWP | OPEN WOOD PORCH W/STEPS | 3 | 0 | 1946 | 960.2 |
Sketch
Property Image
Land
| 1 | HB | HIGH BLUFF | 4.7600 | 207345.60 | 220.00 | 0.00 | 1.00 | $825,000 | $0 |
| 2 | 55 | TIDES | 0.0000 | 0.00 | 220.00 | 0.00 | 1.00 | $2,200 | $0 |
Roll Value History
| 2026 | N/A | N/A | N/A | N/A | N/A |
| 2025 | $182,854 | $827,200 | $0 | $1,010,054 | $1,010,054 |
| 2024 | $189,621 | $802,200 | $0 | $991,821 | $991,821 |
| 2023 | $192,400 | $802,200 | $0 | $994,600 | $994,600 |
| 2022 | $176,732 | $702,200 | $0 | $878,932 | $878,932 |
| 2021 | $152,506 | $527,200 | $0 | $679,706 | $679,706 |
| 2020 | $149,553 | $452,200 | $0 | $601,753 | $601,753 |
| 2019 | $107,677 | $502,200 | $0 | $609,877 | $609,877 |
| 2018 | $108,062 | $352,200 | $0 | $460,262 | $460,262 |
| 2017 | $108,829 | $352,200 | $0 | $461,029 | $461,029 |
| 2016 | $110,362 | $352,200 | $0 | $462,562 | $462,562 |
| 2015 | $92,014 | $352,200 | $0 | $444,214 | $444,214 |
| 2014 | $93,405 | $352,200 | $0 | $445,605 | $445,605 |
| 2013 | $94,798 | $395,467 | $0 | $490,265 | $490,265 |
| 2012 | $96,192 | $462,667 | $0 | $558,859 | $558,859 |
| 2011 | $97,584 | $577,784 | $0 | $675,368 | $675,368 |
| 2010 | $106,158 | $641,738 | $0 | $747,896 | $747,896 |
| 2009 | $99,903 | $756,712 | $0 | $856,615 | $856,615 |
| 2008 | $101,769 | $756,712 | $0 | $858,481 | $858,481 |
| 2007 | $103,312 | $755,172 | $0 | $858,484 | $858,484 |
Deed and Sales History
| 1 | 11/06/2018 | QCD | Quit Claim Deed | NOREN, GARY M | 3816 CAMANO, LLC | | | $0.00 | 36602 | 4454803 |
| 2 | 04/19/2007 | DECREE | Divorce Decree/Legal Separation | NOREN, GARY M | NOREN, GARY M | | | $0.00 | 71509 | 4201509 |
| 3 | 08/01/1991 | DECREE | Divorce Decree/Legal Separation | NOREN, GARY M | NOREN, GARY M | | | $0.00 | 12862 | 91012202 |
| 4 | 09/01/1983 | WD | Warranty Deed | MCNEILL, RONALD A | NOREN, GARY M | | | $120,000.00 | 32767 | 415331 |
| 5 | 09/01/1983 | EZ | Easement | NOREN, GARY M | NOREN, GARY M | | | $0.00 | 60896 | 415197 |
| 6 | 07/01/1975 | CD | DNU - Correction Deed | Unknown | MCNEILL, RONALD A | | | $0.00 | 93745 | 356468 |
Payout Agreement
| No payout information available.. |