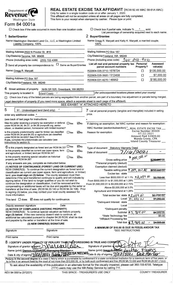
Property
Account |
| Property ID: | 571848 | Abbreviated Legal Description: | LOT 4 SP 81-38.32925.458-3400 V1 SP P192 AF#405334 EX PT DESC: BG NWCR LOT 1 S82*E284.22' TO NECR N02*W 72.36' TO NWCR S83*W280.07' TPB |
| Geographic ID: | R32925-462-3400 | Agent Code: | |
| Type: | Real | | |
| Tax Area: | 722 - APPRAISER-S Whid Schl Dist, Special District, improved, greater than 1 acre | Land Use Code | 11 |
| Open Space: | N | DFL | N |
| Historic Property: | N | Remodel Property: | N |
| Multi-Family Redevelopment: | N | | |
| Township: | 29 | Section: | 25 |
| Range: | R3 |
Location |
| Address: | 6439 PLUM TREE LN CLINTON, WA 98236 | Mapsco: | |
| Neighborhood: | Cycle 4 | Map ID: | 815 |
| Neighborhood CD: | 4 |
Owner |
| Name: | PETERSEN, KURTIS HOWARD | Owner ID: | 295124 |
| Mailing Address: | AMY JANE PETERSEN 6439 PLUM TREE LN CLINTON, WA 98236 | % Ownership: | 100.0000000000% |
| | | Exemptions: | |
Taxes and Assessment Details
Values
| (+) Improvement Homesite Value: | + | $0 | |
| (+) Improvement Non-Homesite Value: | + | $1,082,884 | |
| (+) Land Homesite Value: | + | $0 | |
| (+) Land Non-Homesite Value: | + | $370,000 | |
| (+) Curr Use (HS): | + | $0 | $0 |
| (+) Curr Use (NHS): | + | $0 | $0 |
| | | -------------------------- | |
| (=) Market Value: | = | $1,452,884 | |
| (–) Productivity Loss: | – | $0 | |
| | | -------------------------- | |
| (=) Subtotal: | = | $1,452,884 | |
| (+) Senior Appraised Value: | + | $0 | |
| (+) Non-Senior Appraised Value: | + | $1,452,884 | |
| | | -------------------------- | |
| (=) Total Appraised Value: | = | $1,452,884 | |
| (–) Senior Exemption Loss: | – | $0 | |
| (–) Exemption Loss: | – | $0 | |
| | | -------------------------- | |
| (=) Taxable Value: | = | $1,452,884 | |
Taxing Jurisdiction
| Owner: | PETERSEN, KURTIS HOWARD | | |
| % Ownership: | 100.0000000000% | | |
| Total Value: | $1,452,884 | | |
| Tax Area: | 722 - APPRAISER-S Whid Schl Dist, Special District, improved, greater than 1 acre |
| CF | Conservation Futures | 0.0316035091 | $1,452,884 | $1,452,884 | $45.92 | | |
| FIRE3 | Fire & Rescue Dist #3 S Whidbey GEN | 1.2004855531 | $1,452,884 | $1,452,884 | $1,744.17 | | |
| HOBOND | Hospital BOND | 0.1910887512 | $1,452,884 | $1,452,884 | $277.63 | | |
| HOGEN | Hospital GEN | 0.3902502903 | $1,452,884 | $1,452,884 | $566.99 | | |
| CE | County Current Expense | 0.3708482477 | $1,452,884 | $1,452,884 | $538.80 | | |
| CR | County Roads | 0.4584763726 | $1,452,884 | $1,452,884 | $666.11 | | |
| ISLANDEMS | Hospital GEN (EMS) | 0.5000000000 | $1,452,884 | $1,452,884 | $726.44 | | |
| LIB | Library Sno-Isle GEN | 0.3153421757 | $1,452,884 | $1,452,884 | $458.16 | | |
| PORTWHID | Port of S Whidbey GEN | 0.1094540357 | $1,452,884 | $1,452,884 | $159.02 | | |
| SCH206BOND | School 206 BOND | 0.3161759235 | $1,452,884 | $1,452,884 | $459.37 | | |
| SCH206MO | School 206 Enrichment | 0.4547169547 | $1,452,884 | $1,452,884 | $660.65 | | |
| ST | State School | 1.3035497053 | $1,452,884 | $1,452,884 | $1,893.91 | | |
| ST2 | State School Part 2 | 0.8169543533 | $1,452,884 | $1,452,884 | $1,186.94 | | |
| SWHIDPRBD | P & R S Whidbey BOND | 0.0152817568 | $1,452,884 | $1,452,884 | $22.20 | | |
| SWHIDPRBD2 | P & R S Whidbey BOND2 | 0.0138911264 | $1,452,884 | $1,452,884 | $20.18 | | |
| SWHIDPRMT | P & R S Whidbey GEN | 0.2053334452 | $1,452,884 | $1,452,884 | $298.33 | | |
| | Total Tax Rate: | 6.6934522006 | | | | | |
| | | | | Taxes w/Current Exemptions: | $9,724.82 | | |
| | | | | Taxes w/o Exemptions: | $9,724.82 | | |
Improvement / Building
| Improvement #1: | RESIDENTIAL | State Code: | Y | 2339.8 sqft | Value: | $877,661 |
| Bathrooms: | 2.5 | Bedrooms: | 3 | | Ceiling: | DRYWALL PAINTED | Cooling: | HEAT PUMP/CONV/V | | Exterior Wall/Cover: | WOOD SIDING | Floor Covering: | CERAMIC TILE/CPT 40-60 | | Floor Structure: | WOOD W/SUBFLOOR | Foundation: | CONCRETE | | Heating: | (NONE) | Interior Finish: | DRYWALL PAINT | | Plumbing Fixture Cnt: | 15 | Roof Slope: | 6" IN 12" | | Roof Structure/Cover: | CJ ASPHALT |   |   |
|
| | Type | Description | Class CD | Sub Class CD | Year Built | Area |
| | BAS | BASE/MAIN FLOOR | 6 | 0 | 2014 | 2339.8 |
| | AGR | ATTACHED GARAGE | 6 | 0 | 2014 | 875.0 |
| | oOBD | Out Buildings | 6 | 0 | 2014 | 880.0 |
| | OP4 | OPEN PORCH W/CEILING-ROOF | 6 | 0 | 2014 | 78.2 |
| | OWP | OPEN WOOD PORCH W/STEPS | 6 | 0 | 2014 | 90.0 |
| | OWP | OPEN WOOD PORCH W/STEPS | 6 | 0 | 2014 | 315.0 |
| | OWC | OPEN WOOD PORCH W/STEPS/ROOF/C | 6 | 0 | 2014 | 329.2 |
| | OP2 | OPEN PORCH W/STEPS | 6 | 0 | 2014 | 34.0 |
| | OWP | OPEN WOOD PORCH W/STEPS | 6 | 0 | 2014 | 144.0 |
| Improvement #2: | RESIDENTIAL | State Code: | Y | 900.0 sqft | Value: | $205,223 |
| Bathrooms: | 1 | Bedrooms: | 1 | | Ceiling: | DRYWALL PAINTED | Cooling: | HEAT PUMP/CONV/V | | Exterior Wall/Cover: | WOOD SIDING | Floor Covering: | TILE CERAMIC | | Floor Structure: | WOOD W/SUBFLOOR | Foundation: | CONCRETE | | Heating: | (NONE) | Interior Finish: | DRYWALL PAINT | | Plumbing Fixture Cnt: | 5 | Roof Slope: | 6" IN 12" | | Roof Structure/Cover: | CJ ASPHALT |   |   |
|
Sketch
Property Image
Land
| 1 | 17 | AC (01.01-02.00) | 0.0000 | 0.00 | 0.00 | 0.00 | 1.00 | $370,000 | $0 |
Roll Value History
| 2026 | N/A | N/A | N/A | N/A | N/A |
| 2025 | $1,082,884 | $370,000 | $0 | $1,452,884 | $1,452,884 |
| 2024 | $1,091,155 | $350,000 | $0 | $1,441,155 | $1,441,155 |
| 2023 | $1,100,018 | $310,000 | $0 | $1,410,018 | $1,410,018 |
| 2022 | $1,005,055 | $280,000 | $0 | $1,285,055 | $1,285,055 |
| 2021 | $882,250 | $260,000 | $0 | $1,142,250 | $1,142,250 |
| 2020 | $834,740 | $230,000 | $0 | $1,064,740 | $1,064,740 |
| 2019 | $678,590 | $260,000 | $0 | $938,590 | $938,590 |
| 2018 | $680,328 | $230,000 | $0 | $910,328 | $910,328 |
| 2017 | $683,807 | $200,000 | $0 | $883,807 | $883,807 |
| 2016 | $690,767 | $150,000 | $0 | $840,767 | $840,767 |
| 2015 | $703,524 | $150,000 | $0 | $853,524 | $853,524 |
| 2014 | $237,424 | $150,000 | $0 | $387,424 | $387,424 |
| 2013 | $198,530 | $150,720 | $0 | $349,250 | $349,250 |
| 2012 | $200,987 | $150,720 | $0 | $351,707 | $351,707 |
| 2011 | $203,444 | $150,720 | $0 | $354,164 | $354,164 |
| 2010 | $215,611 | $150,720 | $0 | $366,331 | $366,331 |
| 2009 | $222,108 | $175,720 | $0 | $397,828 | $397,828 |
| 2008 | $205,703 | $198,000 | $0 | $403,703 | $403,703 |
| 2007 | $208,966 | $138,600 | $0 | $347,566 | $347,566 |
Deed and Sales History
| 1 | 06/17/2020 | WD | Warranty Deed | THOM TRUSTEE, JEFFREY L | PETERSEN, KURTIS HOWARD | | | $1,075,000.00 | 43737 | 4490945 |
|   | |
| 2 | 10/19/2017 | WD | Warranty Deed | THOM, JEFFREY L | THOM TRUSTEE, JEFFREY L | | | $0.00 | 31826 | 4433657 |
| 3 | 06/24/2011 | WD | Warranty Deed | JOHNSON, CAROLYN | THOM, JEFFREY L | | | $320,000.00 | 4842 | 4297394 |
| 4 | 03/11/2004 | DECREE | Divorce Decree/Legal Separation | JOHNSON, LANE | JOHNSON, CAROLYN | | | $0.00 | 41910 | 4099877 |
| 5 | 12/01/1988 | WD | Warranty Deed | BELLMAN, WILLIAM G | JOHNSON, LANE | | | $113,300.00 | 84464 | 88016514 |
| 6 | 09/01/1986 | OTHER | Other - Misc. Documents | BELLMAN, WILLIAM G | BELLMAN, WILLIAM G | | | $0.00 | 61828 | 86008763 |
| 7 | 01/01/1900 | OTHER | Other - Misc. Documents | Unknown | BELLMAN, WILLIAM G | | | $0.00 | 0 | 0 |
| 8 | 01/01/1900 | OTHER | Other - Misc. Documents | BELLMAN, WILLIAM G | BELLMAN, WILLIAM G | | | $0.00 | 60254 | 0 |
Payout Agreement
| No payout information available.. |