Property
Account |
| Property ID: | 571884 | Abbreviated Legal Description: | LOT 3 SP 81-38.32925.458-3400 V1 SP P192 AF#405334 |
| Geographic ID: | R32925-477-3500 | Agent Code: | |
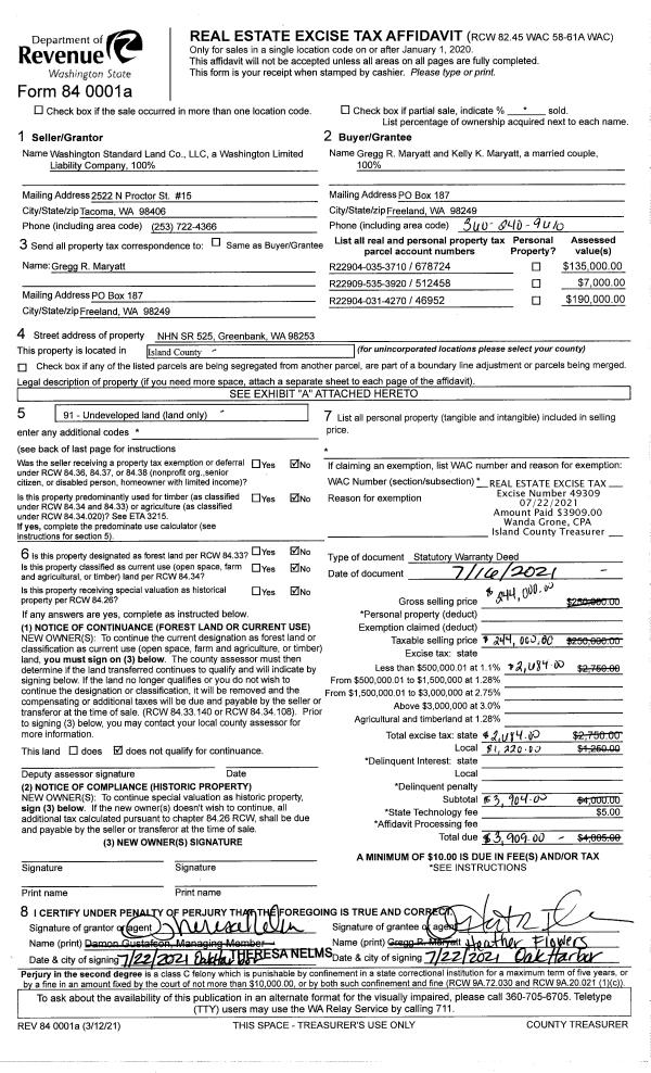
| Type: | Real | | |
| Tax Area: | 720 - APPRAISER-S Whid Schl Dist, Special District, improved & less than 1 acre | Land Use Code | 11 |
| Open Space: | N | DFL | N |
| Historic Property: | N | Remodel Property: | N |
| Multi-Family Redevelopment: | N | | |
| Township: | 29 | Section: | 25 |
| Range: | R3 |
Location |
| Address: | 6425 PLUM TREE LN CLINTON, WA 98236 | Mapsco: | |
| Neighborhood: | Cycle 4 | Map ID: | 815 |
| Neighborhood CD: | 4 |
Owner |
| Name: | ROSEBERRY, ROBERT J | Owner ID: | 19001 |
| Mailing Address: | 6425 PLUM TREE LN CLINTON, WA 98236-9628 | % Ownership: | 100.0000000000% |
| | | Exemptions: | |
Taxes and Assessment Details
Values
| (+) Improvement Homesite Value: | + | $0 | |
| (+) Improvement Non-Homesite Value: | + | $278,777 | |
| (+) Land Homesite Value: | + | $0 | |
| (+) Land Non-Homesite Value: | + | $260,000 | |
| (+) Curr Use (HS): | + | $0 | $0 |
| (+) Curr Use (NHS): | + | $0 | $0 |
| | | -------------------------- | |
| (=) Market Value: | = | $538,777 | |
| (–) Productivity Loss: | – | $0 | |
| | | -------------------------- | |
| (=) Subtotal: | = | $538,777 | |
| (+) Senior Appraised Value: | + | $0 | |
| (+) Non-Senior Appraised Value: | + | $538,777 | |
| | | -------------------------- | |
| (=) Total Appraised Value: | = | $538,777 | |
| (–) Senior Exemption Loss: | – | $0 | |
| (–) Exemption Loss: | – | $0 | |
| | | -------------------------- | |
| (=) Taxable Value: | = | $538,777 | |
Taxing Jurisdiction
| Owner: | ROSEBERRY, ROBERT J | | |
| % Ownership: | 100.0000000000% | | |
| Total Value: | $538,777 | | |
| Tax Area: | 720 - APPRAISER-S Whid Schl Dist, Special District, improved & less than 1 acre |
| CF | Conservation Futures | 0.0316035091 | $538,777 | $538,777 | $17.03 | | |
| FIRE3 | Fire & Rescue Dist #3 S Whidbey GEN | 1.2004855531 | $538,777 | $538,777 | $646.79 | | |
| HOBOND | Hospital BOND | 0.1910887512 | $538,777 | $538,777 | $102.95 | | |
| HOGEN | Hospital GEN | 0.3902502903 | $538,777 | $538,777 | $210.26 | | |
| CE | County Current Expense | 0.3708482477 | $538,777 | $538,777 | $199.80 | | |
| CR | County Roads | 0.4584763726 | $538,777 | $538,777 | $247.02 | | |
| ISLANDEMS | Hospital GEN (EMS) | 0.5000000000 | $538,777 | $538,777 | $269.39 | | |
| LIB | Library Sno-Isle GEN | 0.3153421757 | $538,777 | $538,777 | $169.90 | | |
| PORTWHID | Port of S Whidbey GEN | 0.1094540357 | $538,777 | $538,777 | $58.97 | | |
| SCH206BOND | School 206 BOND | 0.3161759235 | $538,777 | $538,777 | $170.35 | | |
| SCH206MO | School 206 Enrichment | 0.4547169547 | $538,777 | $538,777 | $244.99 | | |
| ST | State School | 1.3035497053 | $538,777 | $538,777 | $702.32 | | |
| ST2 | State School Part 2 | 0.8169543533 | $538,777 | $538,777 | $440.16 | | |
| SWHIDPRBD | P & R S Whidbey BOND | 0.0152817568 | $538,777 | $538,777 | $8.23 | | |
| SWHIDPRBD2 | P & R S Whidbey BOND2 | 0.0138911264 | $538,777 | $538,777 | $7.48 | | |
| SWHIDPRMT | P & R S Whidbey GEN | 0.2053334452 | $538,777 | $538,777 | $110.63 | | |
| | Total Tax Rate: | 6.6934522006 | | | | | |
| | | | | Taxes w/Current Exemptions: | $3,606.27 | | |
| | | | | Taxes w/o Exemptions: | $3,606.27 | | |
Improvement / Building
| Improvement #1: | RESIDENTIAL | State Code: | Y | 1520.0 sqft | Value: | $278,777 |
| Bathrooms: | 2 | Bedrooms: | 2 | | Ceiling: | DRYWALL PAINTED | Exterior Wall/Cover: | WOOD SIDING | | Floor Covering: | CERAMIC TILE/CPT 40-60 | Floor Structure: | WOOD W/SUBFLOOR | | Foundation: | CONCRETE | Heating: | BASEBOARD ELECTRIC | | Interior Finish: | DRYWALL PAINT | Plumbing Fixture Cnt: | 12 | | Roof Slope: | 6" IN 12" | Roof Structure/Cover: | CJ ASPHALT |
|
| | Type | Description | Class CD | Sub Class CD | Year Built | Area |
| | BAS | BASE/MAIN FLOOR | 3 | 0 | 1984 | 760.0 |
| | AGR | ATTACHED GARAGE | 3 | 0 | 1984 | 520.0 |
| | UPS | UPPER STORY | 3 | 0 | 1984 | 760.0 |
| | OWP | OPEN WOOD PORCH W/STEPS | 3 | 0 | 1984 | 160.0 |
| | OWC | OPEN WOOD PORCH W/STEPS/ROOF/C | 3 | 0 | 1984 | 36.0 |
| | OWP | OPEN WOOD PORCH W/STEPS | 3 | 0 | 1984 | 126.0 |
Sketch
Property Image
Land
| 1 | 16 | AC (00.51-01.00) | 0.0000 | 0.00 | 0.00 | 0.00 | 1.00 | $260,000 | $0 |
Roll Value History
| 2026 | N/A | N/A | N/A | N/A | N/A |
| 2025 | $278,777 | $260,000 | $0 | $538,777 | $538,777 |
| 2024 | $287,864 | $250,000 | $0 | $537,864 | $537,864 |
| 2023 | $291,543 | $240,000 | $0 | $531,543 | $531,543 |
| 2022 | $267,331 | $240,000 | $0 | $507,331 | $507,331 |
| 2021 | $235,366 | $155,000 | $0 | $390,366 | $390,366 |
| 2020 | $232,667 | $135,000 | $0 | $367,667 | $367,667 |
| 2019 | $167,870 | $180,000 | $0 | $347,870 | $347,870 |
| 2018 | $168,386 | $150,000 | $0 | $318,386 | $318,386 |
| 2017 | $169,419 | $100,000 | $0 | $269,419 | $269,419 |
| 2016 | $171,487 | $100,000 | $0 | $271,487 | $271,487 |
| 2015 | $173,553 | $100,000 | $0 | $273,553 | $273,553 |
| 2014 | $162,221 | $100,000 | $0 | $262,221 | $262,221 |
| 2013 | $156,129 | $100,000 | $0 | $256,129 | $256,129 |
| 2012 | $158,160 | $106,250 | $0 | $264,410 | $264,410 |
| 2011 | $160,190 | $125,000 | $0 | $285,190 | $285,190 |
| 2010 | $168,472 | $125,000 | $0 | $293,472 | $293,472 |
| 2009 | $175,597 | $160,000 | $0 | $335,597 | $335,597 |
| 2008 | $155,653 | $165,000 | $0 | $320,653 | $320,653 |
| 2007 | $157,600 | $165,000 | $0 | $322,600 | $322,600 |
Deed and Sales History
| 1 | 03/01/1994 | DECREE | Divorce Decree/Legal Separation | ROSEBERRY, ROBERT J | ROSEBERRY, ROBERT J | | | $0.00 | 40934 | 94006132 |
| 2 | 11/01/1983 | REC | Real Estate Contract | BELLMAN, WILLIAM G | ROSEBERRY, ROBERT J | | | $27,500.00 | 33251 | 417107 |
| 3 | 01/01/1900 | OTHER | Other - Misc. Documents | Unknown | BELLMAN, WILLIAM G | | | $0.00 | 0 | 0 |
| 4 | 01/01/1900 | OTHER | Other - Misc. Documents | BELLMAN, WILLIAM G | BELLMAN, WILLIAM G | | | $0.00 | 60254 | 0 |
Payout Agreement
| No payout information available.. |