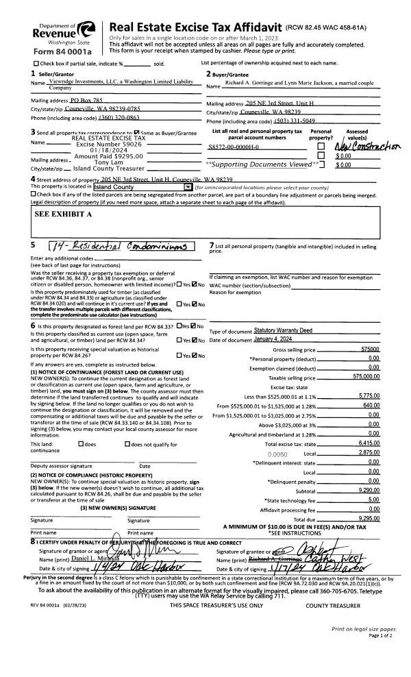
Property
Account |
| Property ID: | 572339 | Abbreviated Legal Description: | LANGLEY S65.5' OF E/2 OF LOT 12 & S65.5' OF LOT 13 BLK 12 FR 12013 0 |
| Geographic ID: | S7345-00-12013-1 | Agent Code: | |
| Type: | Real | | |
| Tax Area: | 700 - APPRAISER-S Whid Schl Dist, in town of Langley | Land Use Code | 65 |
| Open Space: | N | DFL | N |
| Historic Property: | N | Remodel Property: | N |
| Multi-Family Redevelopment: | N | | |
| Township: | | Section: | |
| Range: | |
Location |
| Address: | 118 2ND ST LANGLEY, WA 98260 | Mapsco: | |
| Neighborhood: | 42cLG-north | Map ID: | 913 |
| Neighborhood CD: | 42cLGnorth |
Owner |
| Name: | SCOTTHANSON TTEE, KELLY | Owner ID: | 309671 |
| Mailing Address: | 5950 MAXWELTON RD CLINTON, WA 98236 | % Ownership: | 100.0000000000% |
| | | Exemptions: | |
Taxes and Assessment Details
Values
| (+) Improvement Homesite Value: | + | $0 | |
| (+) Improvement Non-Homesite Value: | + | $159,481 | |
| (+) Land Homesite Value: | + | $0 | |
| (+) Land Non-Homesite Value: | + | $350,636 | |
| (+) Curr Use (HS): | + | $0 | $0 |
| (+) Curr Use (NHS): | + | $0 | $0 |
| | | -------------------------- | |
| (=) Market Value: | = | $510,117 | |
| (–) Productivity Loss: | – | $0 | |
| | | -------------------------- | |
| (=) Subtotal: | = | $510,117 | |
| (+) Senior Appraised Value: | + | $0 | |
| (+) Non-Senior Appraised Value: | + | $510,117 | |
| | | -------------------------- | |
| (=) Total Appraised Value: | = | $510,117 | |
| (–) Senior Exemption Loss: | – | $0 | |
| (–) Exemption Loss: | – | $0 | |
| | | -------------------------- | |
| (=) Taxable Value: | = | $510,117 | |
Taxing Jurisdiction
| Owner: | SCOTTHANSON TTEE, KELLY | | |
| % Ownership: | 100.0000000000% | | |
| Total Value: | $510,117 | | |
| Tax Area: | 700 - APPRAISER-S Whid Schl Dist, in town of Langley |
| CF | Conservation Futures | 0.0316035091 | $510,117 | $510,117 | $16.12 | | |
| LANG | City of Langley | 1.0093520762 | $510,117 | $510,117 | $514.89 | | |
| LANGBOND | City of Langley BOND | 1.0326110892 | $510,117 | $510,117 | $526.75 | | |
| FIRE3 | Fire & Rescue Dist #3 S Whidbey GEN | 1.2004855531 | $510,117 | $510,117 | $612.39 | | |
| HOBOND | Hospital BOND | 0.1910887512 | $510,117 | $510,117 | $97.48 | | |
| HOGEN | Hospital GEN | 0.3902502903 | $510,117 | $510,117 | $199.07 | | |
| CE | County Current Expense | 0.3708482477 | $510,117 | $510,117 | $189.18 | | |
| ISLANDEMS | Hospital GEN (EMS) | 0.5000000000 | $510,117 | $510,117 | $255.06 | | |
| LIB | Library Sno-Isle GEN | 0.3153421757 | $510,117 | $510,117 | $160.86 | | |
| PORTWHID | Port of S Whidbey GEN | 0.1094540357 | $510,117 | $510,117 | $55.83 | | |
| SCH206BOND | School 206 BOND | 0.3161759235 | $510,117 | $510,117 | $161.29 | | |
| SCH206MO | School 206 Enrichment | 0.4547169547 | $510,117 | $510,117 | $231.96 | | |
| ST | State School | 1.3035497053 | $510,117 | $510,117 | $664.96 | | |
| ST2 | State School Part 2 | 0.8169543533 | $510,117 | $510,117 | $416.74 | | |
| SWHIDPRBD | P & R S Whidbey BOND | 0.0152817568 | $510,117 | $510,117 | $7.80 | | |
| SWHIDPRBD2 | P & R S Whidbey BOND2 | 0.0138911264 | $510,117 | $510,117 | $7.09 | | |
| SWHIDPRMT | P & R S Whidbey GEN | 0.2053334452 | $510,117 | $510,117 | $104.74 | | |
| | Total Tax Rate: | 8.2769389934 | | | | | |
| | | | | Taxes w/Current Exemptions: | $4,222.21 | | |
| | | | | Taxes w/o Exemptions: | $4,222.21 | | |
Improvement / Building
| Improvement #1: | COMMERCIAL | State Code: | F1 | 2056.0 sqft | Value: | $159,481 |
| Bathrooms: | 0 | Bedrooms: | 0 | | Ceiling: | DRYWALL PAINTED | Exterior Wall/Cover: | WD/WD OR STEEL STUDS | | Floor Covering: | CARPET 100% | Floor Structure: | WOOD ON WOOD JOIST | | Foundation: | CONCRETE | Heating: | B/B HOT WATER-GAS | | Interior Finish: | OFFICE | Plumbing Fixture Cnt: | 1 | | Roof Structure/Cover: | BUILT-UP/OPEN WOOD |   |   |
|
| | Type | Description | Class CD | Sub Class CD | Year Built | Area |
| | BAS | BASE/MAIN FLOOR | 3 | 0 | 1993 | 1068.0 |
| | OWP | OPEN WOOD PORCH W/STEPS | 3 | 0 | 1993 | 96.0 |
| | OWP | OPEN WOOD PORCH W/STEPS | 3 | 0 | 1993 | 32.0 |
| | UPS | UPPER STORY | 3 | 0 | 1993 | 988.0 |
Sketch
Property Image
Land
| 1 | 68 | COMMERCIAL RETAIL | 0.0947 | 4125.13 | 0.00 | 0.00 | 1.00 | $350,636 | $0 |
Roll Value History
| 2026 | N/A | N/A | N/A | N/A | N/A |
| 2025 | $159,481 | $350,636 | $0 | $510,117 | $510,117 |
| 2024 | $312,563 | $350,636 | $0 | $663,199 | $663,199 |
| 2023 | $322,105 | $350,636 | $0 | $672,741 | $672,741 |
| 2022 | $255,692 | $288,759 | $0 | $544,451 | $544,451 |
| 2021 | $255,211 | $288,759 | $0 | $543,970 | $543,970 |
| 2020 | $199,168 | $288,759 | $0 | $487,927 | $487,927 |
| 2019 | $192,873 | $288,759 | $0 | $481,632 | $481,632 |
| 2018 | $192,881 | $288,759 | $0 | $481,640 | $481,640 |
| 2017 | $177,997 | $206,257 | $0 | $384,254 | $384,254 |
| 2016 | $178,015 | $206,257 | $0 | $384,272 | $384,272 |
| 2015 | $186,184 | $185,631 | $0 | $371,815 | $371,815 |
| 2014 | $150,939 | $185,532 | $0 | $336,471 | $336,471 |
| 2013 | $150,939 | $185,532 | $0 | $336,471 | $336,471 |
| 2012 | $150,939 | $185,532 | $0 | $336,471 | $336,471 |
| 2011 | $150,939 | $185,532 | $0 | $336,471 | $336,471 |
| 2010 | $179,073 | $511,831 | $0 | $690,904 | $690,904 |
| 2009 | $186,141 | $595,856 | $0 | $781,997 | $781,997 |
| 2008 | $188,498 | $595,856 | $0 | $784,354 | $784,354 |
| 2007 | $193,210 | $595,856 | $0 | $789,066 | $789,066 |
Deed and Sales History
| 1 | 08/10/2023 | WD | Warranty Deed | VALENTINE, JESSIE L | SCOTTHANSON TTEE, KELLY | | | $650,000.00 | 57626 | 4563529 |
| 2 | 03/01/1990 | QCD | Quit Claim Deed | PRIESTHOFF, STEPHEN D | VALENTINE, JESSIE L | | | $0.00 | 1507 | 90004868 |
| 3 | 08/01/1986 | WD | Warranty Deed | NASH, LEONARD G | PRIESTHOFF, STEPHEN D | | | $60,000.00 | 62186 | 86010108 |
| 4 | 07/01/1984 | WD | Warranty Deed | NASH, LEONARD G | NASH, LEONARD G | | | $0.00 | 42089 | 84000812 |
| 5 | 08/01/1983 | WD | Warranty Deed | OSULLIVAN, C., H | NASH, LEONARD G | | | $60,000.00 | 32189 | 413088 |
| 6 | 08/01/1979 | EXECUTORD | Executor Deed | Unknown | OSULLIVAN, C., H | | | $6,600.00 | 94387 | 0 |
Payout Agreement
| No payout information available.. |