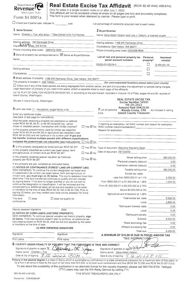
Property
Account |
| Property ID: | 572990 | Abbreviated Legal Description: | REPLACES 048 0230 165 - IN GL 1:BG CM ON WLN PAT ANN DR & SLN SEC 7 N72. .7'ALG CUR/R 74.22'TPB W96 .73' N3*E100.18' E186.48' SWLY ALG RD 141.68' TPB |
| Geographic ID: | R33107-023-0480 | Agent Code: | |
| Type: | Real | | |
| Tax Area: | 510 - APPRAISER-Stan/Cam Schl Dist, improved & 1 acre or less | Land Use Code | 11 |
| Open Space: | N | DFL | N |
| Historic Property: | N | Remodel Property: | N |
| Multi-Family Redevelopment: | N | | |
| Township: | 31 | Section: | 07 |
| Range: | R3 |
Location |
| Address: | 766 VESPER WAY CAMANO ISLAND, WA 98282 | Mapsco: | |
| Neighborhood: | Cycle 5 | Map ID: | 922 |
| Neighborhood CD: | 5 |
Owner |
| Name: | CONA, MICHAEL JAYE | Owner ID: | 294134 |
| Mailing Address: | 766 VESPER WAY CAMANO ISLAND, WA 98282 | % Ownership: | 100.0000000000% |
| | | Exemptions: | |
Taxes and Assessment Details
Values
| (+) Improvement Homesite Value: | + | $0 | |
| (+) Improvement Non-Homesite Value: | + | $174,948 | |
| (+) Land Homesite Value: | + | $0 | |
| (+) Land Non-Homesite Value: | + | $230,000 | |
| (+) Curr Use (HS): | + | $0 | $0 |
| (+) Curr Use (NHS): | + | $0 | $0 |
| | | -------------------------- | |
| (=) Market Value: | = | $404,948 | |
| (–) Productivity Loss: | – | $0 | |
| | | -------------------------- | |
| (=) Subtotal: | = | $404,948 | |
| (+) Senior Appraised Value: | + | $0 | |
| (+) Non-Senior Appraised Value: | + | $404,948 | |
| | | -------------------------- | |
| (=) Total Appraised Value: | = | $404,948 | |
| (–) Senior Exemption Loss: | – | $0 | |
| (–) Exemption Loss: | – | $0 | |
| | | -------------------------- | |
| (=) Taxable Value: | = | $404,948 | |
Taxing Jurisdiction
| Owner: | CONA, MICHAEL JAYE | | |
| % Ownership: | 100.0000000000% | | |
| Total Value: | $404,948 | | |
| Tax Area: | 510 - APPRAISER-Stan/Cam Schl Dist, improved & 1 acre or less |
| CF | Conservation Futures | 0.0316035091 | $404,948 | $404,948 | $12.80 | | |
| EMS1 | Fire & Rescue Dist #1 Camano GEN (EMS) | 0.3677864386 | $404,948 | $404,948 | $148.93 | | |
| FIRE1 | Fire & Rescue Dist #1 Camano GEN | 1.2502910536 | $404,948 | $404,948 | $506.30 | | |
| FIRE1BOND | Fire & Rescue Dist #1 Camano BOND | 0.1570001679 | $404,948 | $404,948 | $63.58 | | |
| CE | County Current Expense | 0.3708482477 | $404,948 | $404,948 | $150.17 | | |
| CR | County Roads | 0.4584763726 | $404,948 | $404,948 | $185.66 | | |
| LCIB | Library Sno-Isle BOND (Camano Island) | 0.0396325772 | $404,948 | $404,948 | $16.05 | | |
| LIB | Library Sno-Isle GEN | 0.3153421757 | $404,948 | $404,948 | $127.70 | | |
| SCH205_401 | School 205-401 Enrichment | 1.2698420524 | $404,948 | $404,948 | $514.22 | | |
| SCH205BOND | School 205-401 BOND | 0.9396497583 | $404,948 | $404,948 | $380.51 | | |
| ST | State School | 1.3035497053 | $404,948 | $404,948 | $527.87 | | |
| ST2 | State School Part 2 | 0.8169543533 | $404,948 | $404,948 | $330.82 | | |
| | Total Tax Rate: | 7.3209764117 | | | | | |
| | | | | Taxes w/Current Exemptions: | $2,964.61 | | |
| | | | | Taxes w/o Exemptions: | $2,964.61 | | |
Improvement / Building
| Improvement #1: | MANUFACTURED HOME | State Code: | Y | 1080.0 sqft | Value: | $174,948 |
| Bathrooms: | 0 | Bedrooms: | 0 | | Ceiling: | PLASTER PAINTED | Cooling: | EVAP NO DUCT | | Exterior Wall/Cover: | VINYL | Floor Covering: | CARPET 100% | | Floor Structure: | SLAB ON GRADE | Foundation: | SLAB | | Heating: | FHA ELECTRIC | Interior Finish: | PLASTER | | Plumbing Fixture Cnt: | 1 | Roof Slope: | FLAT | | Roof Structure/Cover: | CJ ALUMINIUM HEAVY |   |   |
|
| | Type | Description | Class CD | Sub Class CD | Year Built | Area |
| | BAS | BASE/MAIN FLOOR | 3 | 0 | 1990 | 1080.0 |
| | OWP | OPEN WOOD PORCH W/STEPS | 3 | 0 | 1990 | 428.0 |
| | CPD | OPEN CARPORT DIRT FLOOR | 3 | 0 | 1990 | 280.0 |
| | OWP | OPEN WOOD PORCH W/STEPS | 3 | 0 | 1990 | 108.0 |
Sketch
Property Image
Land
| 1 | 14 | SQ (08001-12000) | 0.0000 | 0.00 | 0.00 | 0.00 | 1.00 | $230,000 | $0 |
Roll Value History
| 2026 | N/A | N/A | N/A | N/A | N/A |
| 2025 | $174,948 | $230,000 | $0 | $404,948 | $404,948 |
| 2024 | $177,100 | $210,000 | $0 | $387,100 | $387,100 |
| 2023 | $179,253 | $200,000 | $0 | $379,253 | $379,253 |
| 2022 | $164,274 | $200,000 | $0 | $364,274 | $364,274 |
| 2021 | $144,540 | $140,000 | $0 | $284,540 | $284,540 |
| 2020 | $55,420 | $120,000 | $0 | $175,420 | $175,420 |
| 2019 | $44,979 | $160,000 | $0 | $204,979 | $204,979 |
| 2018 | $46,303 | $140,000 | $0 | $186,303 | $186,303 |
| 2017 | $35,582 | $90,000 | $0 | $125,582 | $125,582 |
| 2016 | $36,877 | $80,000 | $0 | $116,877 | $116,877 |
| 2015 | $46,046 | $85,000 | $0 | $131,046 | $131,046 |
| 2014 | $47,079 | $85,000 | $0 | $132,079 | $132,079 |
| 2013 | $48,111 | $85,000 | $0 | $133,111 | $133,111 |
| 2012 | $49,144 | $84,000 | $0 | $133,144 | $133,144 |
| 2011 | $50,177 | $105,000 | $0 | $155,177 | $155,177 |
| 2010 | $48,558 | $105,000 | $0 | $153,558 | $153,558 |
| 2009 | $49,424 | $113,000 | $0 | $162,424 | $162,424 |
| 2008 | $50,844 | $113,000 | $0 | $163,844 | $163,844 |
| 2007 | $52,260 | $96,000 | $0 | $148,260 | $148,260 |
Deed and Sales History
| 1 | 05/06/2020 | WD | Warranty Deed | BISHOP TRUSTEE, MARK S | CONA, MICHAEL JAYE | | | $295,000.00 | 42943 | 4486241 |
| 2 | 10/06/2017 | WD | Warranty Deed | LEWIS, LARRY L | BISHOP TRUSTEE, MARK S | | | $210,000.00 | 31489 | 4431987 |
| 3 | 04/16/2008 | QCD | Quit Claim Deed | DAVIS, MIKE N | LEWIS, LARRY L | | | $0.00 | 80978 | 4226892 |
| 4 | 10/01/1997 | OTHER | Other - Misc. Documents | PUGET, SOUND R | DAVIS, MIKE N | | | $30,475.00 | 73829 | 0 |
| 5 | 10/01/1997 | WD | Warranty Deed | DAVIS, MIKE N | DAVIS, MIKE N | | | $78,525.00 | 73819 | 97018275 |
| 6 | 12/01/1996 | OTHER | Other - Misc. Documents | PUGET, SOUND R | PUGET, SOUND R | | | $18,000.00 | 64334 | 0 |
| 7 | 10/01/1996 | WD | Warranty Deed | WALBRUN, JERRY R | PUGET, SOUND R | | | $0.00 | 64050 | 96019735 |
| 8 | 04/01/1996 | WD | Warranty Deed | MORRISON, L G | WALBRUN, JERRY R | | | $31,000.00 | 61214 | 96006249 |
| 9 | 06/01/1982 | PACD | Purchaser's Assignment | Unknown | MORRISON, L G | | | $0.00 | 59519 | 0 |
Payout Agreement
| No payout information available.. |