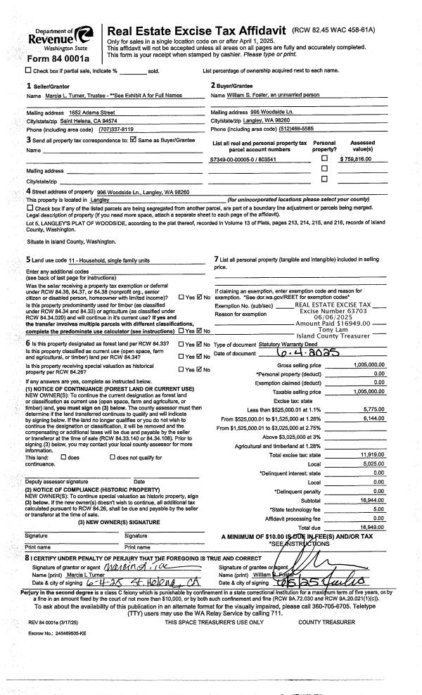
Property
Account |
| Property ID: | 573622 | Abbreviated Legal Description: | BG PT 716.20'S & 222'E OF SWCR HANCOCK & RACE ADD E112' TO WLN EBEY RD S95' ALG CUR/R 15.71' W102' N105 TPB INCL RD R/W FR 168-2130 TR A C-SP 83-5 |
| Geographic ID: | R13233-173-2300 | Agent Code: | |
| Type: | Real | | |
| Tax Area: | 300 - APPRAISER-Cpvl Schl Dist, in Cpvl | Land Use Code | 11 |
| Open Space: | N | DFL | N |
| Historic Property: | N | Remodel Property: | N |
| Multi-Family Redevelopment: | N | | |
| Township: | 32 | Section: | 33 |
| Range: | R1 |
Location |
| Address: | 502 NW OAKMONT ST COUPEVILLE, WA 98239 | Mapsco: | |
| Neighborhood: | Area 2 Coupeville Non-Waterfront Residential | Map ID: | 172 |
| Neighborhood CD: | 2CPV02R |
Owner |
| Name: | SAWYER, JAIMIE ELIZABETH | Owner ID: | 308595 |
| Mailing Address: | SHANNON MARIE IVINS 502 NW OAKMOUNT ST COUPEVILLE, WA 98239 | % Ownership: | 100.0000000000% |
| | | Exemptions: | |
Taxes and Assessment Details
Values
| (+) Improvement Homesite Value: | + | $0 | |
| (+) Improvement Non-Homesite Value: | + | $256,888 | |
| (+) Land Homesite Value: | + | $0 | |
| (+) Land Non-Homesite Value: | + | $238,050 | |
| (+) Curr Use (HS): | + | $0 | $0 |
| (+) Curr Use (NHS): | + | $0 | $0 |
| | | -------------------------- | |
| (=) Market Value: | = | $494,938 | |
| (–) Productivity Loss: | – | $0 | |
| | | -------------------------- | |
| (=) Subtotal: | = | $494,938 | |
| (+) Senior Appraised Value: | + | $0 | |
| (+) Non-Senior Appraised Value: | + | $494,938 | |
| | | -------------------------- | |
| (=) Total Appraised Value: | = | $494,938 | |
| (–) Senior Exemption Loss: | – | $0 | |
| (–) Exemption Loss: | – | $0 | |
| | | -------------------------- | |
| (=) Taxable Value: | = | $494,938 | |
Taxing Jurisdiction
| Owner: | SAWYER, JAIMIE ELIZABETH | | |
| % Ownership: | 100.0000000000% | | |
| Total Value: | $494,938 | | |
| Tax Area: | 300 - APPRAISER-Cpvl Schl Dist, in Cpvl |
| CF | Conservation Futures | 0.0316035091 | $494,938 | $494,938 | $15.64 | | |
| CEM2 | Cemetery #2 | 0.0095056933 | $494,938 | $494,938 | $4.70 | | |
| COUP | City: Town of Coupeville | 0.8426414490 | $494,938 | $494,938 | $417.06 | | |
| FIRE5 | Fire & Rescue Dist #5 C Whidbey GEN | 1.2008080668 | $494,938 | $494,938 | $594.33 | | |
| FIRE5BOND | Fire & Rescue Dist #5 C Whidbey BOND | 0.1400090713 | $494,938 | $494,938 | $69.30 | | |
| HOBOND | Hospital BOND | 0.1910887512 | $494,938 | $494,938 | $94.58 | | |
| HOGEN | Hospital GEN | 0.3902502903 | $494,938 | $494,938 | $193.15 | | |
| CE | County Current Expense | 0.3708482477 | $494,938 | $494,938 | $183.55 | | |
| ISLANDEMS | Hospital GEN (EMS) | 0.5000000000 | $494,938 | $494,938 | $247.47 | | |
| LIB | Library Sno-Isle GEN | 0.3153421757 | $494,938 | $494,938 | $156.07 | | |
| LIBCAP | Library Sno-Isle BOND (Cap Fac Imp Area) | 0.0543427938 | $494,938 | $494,938 | $26.90 | | |
| POCOUP | Port of Coupeville GEN | 0.1093371703 | $494,938 | $494,938 | $54.12 | | |
| POCOUPIDD | Port of Coupeville IDD | 0.3409740022 | $494,938 | $494,938 | $168.76 | | |
| COUPSDTECH | School 204 CP (TECH) | 0.7545480007 | $494,938 | $494,938 | $373.45 | | |
| SCH204MO | School 204 Enrichment | 0.6716186034 | $494,938 | $494,938 | $332.41 | | |
| ST | State School | 1.3035497053 | $494,938 | $494,938 | $645.18 | | |
| ST2 | State School Part 2 | 0.8169543533 | $494,938 | $494,938 | $404.34 | | |
| | Total Tax Rate: | 8.0434218834 | | | | | |
| | | | | Taxes w/Current Exemptions: | $3,981.01 | | |
| | | | | Taxes w/o Exemptions: | $3,981.01 | | |
Improvement / Building
| Improvement #1: | RESIDENTIAL | State Code: | Y | 1467.2 sqft | Value: | $256,888 |
| Bathrooms: | 1.75 | Bedrooms: | 3 | | Ceiling: | DRYWALL PAINTED | Exterior Wall/Cover: | WOOD SIDING | | Floor Covering: | CARPET/VINYL 80-20 | Floor Structure: | WOOD W/SUBFLOOR | | Foundation: | CONCRETE | Heating: | BASEBOARD ELECTRIC | | Interior Finish: | DRYWALL PAINT | Plumbing Fixture Cnt: | 9 | | Roof Slope: | 4" IN 12" | Roof Structure/Cover: | CJ ASPHALT |
|
| | Type | Description | Class CD | Sub Class CD | Year Built | Area |
| | BAS | BASE/MAIN FLOOR | 3 | 0 | 1986 | 790.7 |
| | DGR | DETACHED GARAGE | 3 | 0 | 1986 | 288.0 |
| | UPS | UPPER STORY | 3 | 0 | 1986 | 676.5 |
| | OWP | OPEN WOOD PORCH W/STEPS | 3 | 0 | 1986 | 199.2 |
| | OWR | OPEN WOOD PORCH W/STEPS/ROOF | 3 | 0 | 1986 | 109.2 |
| | OWR | OPEN WOOD PORCH W/STEPS/ROOF | 3 | 0 | 1986 | 97.5 |
Sketch
Property Image
Land
| 1 | HS | HOMESITE | 0.2500 | 10890.00 | 0.00 | 0.00 | 1.00 | $238,050 | $0 |
Roll Value History
| 2026 | N/A | N/A | N/A | N/A | N/A |
| 2025 | $256,888 | $238,050 | $0 | $494,938 | $494,938 |
| 2024 | $228,466 | $240,000 | $0 | $468,466 | $468,466 |
| 2023 | $231,541 | $200,000 | $0 | $431,541 | $431,541 |
| 2022 | $212,449 | $200,000 | $0 | $412,449 | $412,449 |
| 2021 | $187,161 | $150,000 | $0 | $337,161 | $337,161 |
| 2020 | $182,502 | $130,000 | $0 | $312,502 | $312,502 |
| 2019 | $132,457 | $170,000 | $0 | $302,457 | $302,457 |
| 2018 | $126,224 | $150,000 | $0 | $276,224 | $276,224 |
| 2017 | $126,809 | $125,000 | $0 | $251,809 | $251,809 |
| 2016 | $110,749 | $115,000 | $0 | $225,749 | $225,749 |
| 2015 | $112,355 | $90,000 | $0 | $202,355 | $202,355 |
| 2014 | $113,959 | $85,000 | $0 | $198,959 | $198,959 |
| 2013 | $115,564 | $85,000 | $0 | $200,564 | $200,564 |
| 2012 | $120,246 | $89,250 | $0 | $209,496 | $209,496 |
| 2011 | $121,851 | $105,000 | $0 | $226,851 | $226,851 |
| 2010 | $128,179 | $105,000 | $0 | $233,179 | $233,179 |
| 2009 | $133,976 | $125,000 | $0 | $258,976 | $258,976 |
| 2008 | $135,977 | $134,000 | $0 | $269,977 | $269,977 |
| 2007 | $137,924 | $105,000 | $0 | $242,924 | $242,924 |
Deed and Sales History
| 1 | 04/28/2023 | WD | Warranty Deed | FINLEY, JUDITH A | SAWYER, JAIMIE ELIZABETH | | | $535,000.00 | 56694 | 4559892 |
| 2 | 08/30/2019 | CPADC | Comm Prop Agmnt & Death Cert | FINLEY, DANIEL P | FINLEY, JUDITH A | | | | 88171 | |
| 3 | 08/31/2016 | WD | Warranty Deed | BROWN, NANCY | FINLEY, DANIEL P | | | $259,000.00 | 26267 | 4407944 |
| 4 | 09/18/2007 | QCD | Quit Claim Deed | I. L. E. LLC, | BROWN, NANCY | | | $43,297.00 | 73152 | 4212072 |
| 5 | 08/21/2006 | QCD | Quit Claim Deed | BROWN, NANCY J | I. L. E. LLC, | | | $0.00 | 63648 | 4179810 |
| 6 | 06/24/2005 | WD | Warranty Deed | RYNN, SONG C | BROWN, NANCY J | | | $197,500.00 | 53303 | 4140257 |
| 7 | 02/01/1998 | WD | Warranty Deed | DESTRY, JOHN M | RYNN, SONG C | | | $124,000.00 | 80432 | 98002205 |
| 8 | 09/01/1991 | QCD | Quit Claim Deed | DESTRY, JOHN M | DESTRY, JOHN M | | | $0.00 | 13592 | 91015358 |
| 9 | 10/01/1988 | WD | Warranty Deed | ANDERSON, JOHN E | DESTRY, JOHN M | | | $69,900.00 | 83574 | 88013374 |
| 10 | 07/01/1985 | QCD | Quit Claim Deed | ANDERSON, JOHN E | ANDERSON, JOHN E | | | $0.00 | 51864 | 85007229 |
| 11 | 07/01/1979 | EXECUTORD | Executor Deed | Unknown | ANDERSON, JOHN E | | | $6,750.00 | 93551 | 355884 |
Payout Agreement
| No payout information available.. |