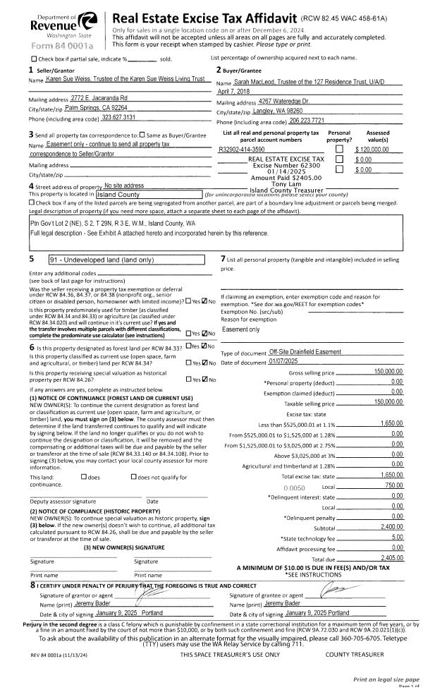
Property
Account |
| Property ID: | 573793 | Abbreviated Legal Description: | 1978 KOZY 14X56 TPO $13383 VIN# SB0788A FR K-479048 |
| Geographic ID: | M917000000120 | Agent Code: | |
| Type: | Mobile Home | | |
| Tax Area: | 110 - APPRAISER-OH Schl Dist, outside OH, improved & 1 acre or less | Land Use Code | 11 |
| Open Space: | N | DFL | N |
| Historic Property: | N | Remodel Property: | N |
| Multi-Family Redevelopment: | N | | |
| Township: | | Section: | |
| Range: | |
Location |
| Address: | 2920 HELLER RD # 12 OAK HARBOR, WA 98277 | Mapsco: | |
| Neighborhood: | Cycle 6 | Map ID: | |
| Neighborhood CD: | 6 |
Owner |
| Name: | BUSSEY, NATHANIEL J | Owner ID: | 283430 |
| Mailing Address: | 950 N OAK HARBOR ST SPT C102 OAK HARBOR, WA 98277-3555 | % Ownership: | 100.0000000000% |
| | | Exemptions: | |
Taxes and Assessment Details
Values
| (+) Improvement Homesite Value: | + | $0 | |
| (+) Improvement Non-Homesite Value: | + | $6,847 | |
| (+) Land Homesite Value: | + | $0 | |
| (+) Land Non-Homesite Value: | + | $0 | |
| (+) Curr Use (HS): | + | $0 | $0 |
| (+) Curr Use (NHS): | + | $0 | $0 |
| | | -------------------------- | |
| (=) Market Value: | = | $6,847 | |
| (–) Productivity Loss: | – | $0 | |
| | | -------------------------- | |
| (=) Subtotal: | = | $6,847 | |
| (+) Senior Appraised Value: | + | $0 | |
| (+) Non-Senior Appraised Value: | + | $6,847 | |
| | | -------------------------- | |
| (=) Total Appraised Value: | = | $6,847 | |
| (–) Senior Exemption Loss: | – | $0 | |
| (–) Exemption Loss: | – | $0 | |
| | | -------------------------- | |
| (=) Taxable Value: | = | $6,847 | |
Taxing Jurisdiction
| Owner: | BUSSEY, NATHANIEL J | | |
| % Ownership: | 100.0000000000% | | |
| Total Value: | $6,847 | | |
| Tax Area: | 110 - APPRAISER-OH Schl Dist, outside OH, improved & 1 acre or less |
| CF | Conservation Futures | 0.0316035091 | $6,847 | $6,847 | $0.22 | | |
| CEM1 | Cemetery #1 | 0.0040320932 | $6,847 | $6,847 | $0.03 | | |
| FIRE2 | Fire & Rescue Dist #2 N Whidbey GEN | 0.5475949600 | $6,847 | $6,847 | $3.75 | | |
| HOBOND | Hospital BOND | 0.1910887512 | $6,847 | $6,847 | $1.31 | | |
| HOGEN | Hospital GEN | 0.3902502903 | $6,847 | $6,847 | $2.67 | | |
| CE | County Current Expense | 0.3708482477 | $6,847 | $6,847 | $2.54 | | |
| CR | County Roads | 0.4584763726 | $6,847 | $6,847 | $3.14 | | |
| ISLANDEMS | Hospital GEN (EMS) | 0.5000000000 | $6,847 | $6,847 | $3.42 | | |
| LIB | Library Sno-Isle GEN | 0.3153421757 | $6,847 | $6,847 | $2.16 | | |
| NWHIDPRMT | P & R N Whidbey GEN | 0.2004466701 | $6,847 | $6,847 | $1.37 | | |
| SCH201MO | School 201 Enrichment | 1.8559231640 | $6,847 | $6,847 | $12.71 | | |
| ST | State School | 1.3035497053 | $6,847 | $6,847 | $8.93 | | |
| ST2 | State School Part 2 | 0.8169543533 | $6,847 | $6,847 | $5.59 | | |
| | Total Tax Rate: | 6.9861102925 | | | | | |
| | | | | Taxes w/Current Exemptions: | $47.84 | | |
| | | | | Taxes w/o Exemptions: | $47.84 | | |
Improvement / Building
| Improvement #1: | MANUFACTURED HOME | State Code: | Y | 784.0 sqft | Value: | $6,847 |
| Bathrooms: | 0 | Bedrooms: | 0 | | Ceiling: | PLASTER PAINTED | Cooling: | EVAP NO DUCT | | Exterior Wall/Cover: | VINYL | Floor Covering: | CARPET 100% | | Floor Structure: | SLAB ON GRADE | Foundation: | SLAB | | Heating: | FHA ELECTRIC | Interior Finish: | PLASTER | | Plumbing Fixture Cnt: | 1 | Roof Slope: | FLAT | | Roof Structure/Cover: | CJ ALUMINIUM HEAVY |   |   |
|
Sketch
Property Image
Land
No land segments exist for this property.
Roll Value History
| 2026 | N/A | N/A | N/A | N/A | N/A |
| 2025 | $6,847 | $0 | $0 | $6,847 | $6,847 |
| 2024 | $6,847 | $0 | $0 | $6,847 | $6,847 |
| 2023 | $5,954 | $0 | $0 | $5,954 | $5,954 |
| 2022 | $5,932 | $0 | $0 | $5,932 | $5,932 |
| 2021 | $5,626 | $0 | $0 | $5,626 | $5,626 |
| 2020 | $5,690 | $0 | $0 | $5,690 | $5,690 |
| 2019 | $4,841 | $0 | $0 | $4,841 | $4,841 |
| 2018 | $5,020 | $0 | $0 | $5,020 | $5,020 |
| 2017 | $5,379 | $0 | $0 | $5,379 | $5,379 |
| 2016 | $2,557 | $0 | $0 | $2,557 | $0 |
| 2015 | $2,722 | $0 | $0 | $2,722 | $0 |
| 2014 | $2,887 | $0 | $0 | $2,887 | $0 |
| 2013 | $3,134 | $0 | $0 | $3,134 | $0 |
| 2012 | $3,299 | $0 | $0 | $3,299 | $0 |
| 2011 | $3,464 | $0 | $0 | $3,464 | $0 |
| 2010 | $5,499 | $0 | $0 | $5,499 | $0 |
| 2009 | $5,798 | $0 | $0 | $5,798 | $0 |
| 2008 | $5,902 | $0 | $0 | $5,902 | $0 |
| 2007 | $6,107 | $0 | $0 | $6,107 | $6,107 |
Deed and Sales History
| 1 | 12/21/2017 | MANHOME | Manufactured Home | PARENT, CHERYLLANN A | BUSSEY, NATHANIEL J | | | $0.00 | 32435 | |
| 2 | 05/07/2008 | OTHER | Other - Misc. Documents | VERBARENDSE, AL / | PARENT, CHERYLLANN A | | | $7,835.00 | 81197 | 0 |
| 3 | 06/01/1990 | OTHER | Other - Misc. Documents | WEINHEIMER, GARY J | VERBARENDSE, AL / | | | $0.00 | 3432 | 0 |
| 4 | 04/01/1984 | OTHER | Other - Misc. Documents | HAMMERSLEY, DONALD P | WEINHEIMER, GARY J | | | $10,500.00 | 41119 | 0 |
| 5 | 07/01/1982 | OTHER | Other - Misc. Documents | Unknown | HAMMERSLEY, DONALD P | | | $8,443.00 | 21604 | 0 |
Payout Agreement
| No payout information available.. |