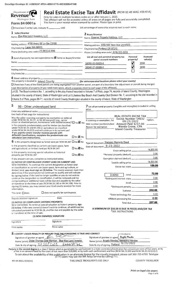
Property
Account |
| Property ID: | 573855 | Abbreviated Legal Description: | LOT 1 SP 82-60.13205.098-5130 V1 SP P241 AF#417837 |
| Geographic ID: | R13205-094-5110 | Agent Code: | |
| Type: | Real | | |
| Tax Area: | 112 - APPRAISER-OH Schl Dist, outside OH, improved, greater than 1 acre | Land Use Code | 11 |
| Open Space: | N | DFL | N |
| Historic Property: | N | Remodel Property: | N |
| Multi-Family Redevelopment: | N | | |
| Township: | 32 | Section: | 05 |
| Range: | R1 |
Location |
| Address: | 2055 SAGE LN OAK HARBOR, WA 98277 | Mapsco: | |
| Neighborhood: | Cycle 1 | Map ID: | 99 |
| Neighborhood CD: | 1 |
Owner |
| Name: | LIEURANCE, STEPHEN V | Owner ID: | 303221 |
| Mailing Address: | ARLENE K LIEURANCE JON P LIEURANCE 2055 SAGE LANE OAK HARBOR, WA 98277 | % Ownership: | 100.0000000000% |
| | | Exemptions: | |
Taxes and Assessment Details
Values
| (+) Improvement Homesite Value: | + | $0 | |
| (+) Improvement Non-Homesite Value: | + | $309,591 | |
| (+) Land Homesite Value: | + | $0 | |
| (+) Land Non-Homesite Value: | + | $260,000 | |
| (+) Curr Use (HS): | + | $0 | $0 |
| (+) Curr Use (NHS): | + | $0 | $0 |
| | | -------------------------- | |
| (=) Market Value: | = | $569,591 | |
| (–) Productivity Loss: | – | $0 | |
| | | -------------------------- | |
| (=) Subtotal: | = | $569,591 | |
| (+) Senior Appraised Value: | + | $0 | |
| (+) Non-Senior Appraised Value: | + | $569,591 | |
| | | -------------------------- | |
| (=) Total Appraised Value: | = | $569,591 | |
| (–) Senior Exemption Loss: | – | $0 | |
| (–) Exemption Loss: | – | $0 | |
| | | -------------------------- | |
| (=) Taxable Value: | = | $569,591 | |
Taxing Jurisdiction
| Owner: | LIEURANCE, STEPHEN V | | |
| % Ownership: | 100.0000000000% | | |
| Total Value: | $569,591 | | |
| Tax Area: | 112 - APPRAISER-OH Schl Dist, outside OH, improved, greater than 1 acre |
| CF | Conservation Futures | 0.0316035091 | $569,591 | $569,591 | $18.00 | | |
| CEM1 | Cemetery #1 | 0.0040320932 | $569,591 | $569,591 | $2.30 | | |
| FIRE2 | Fire & Rescue Dist #2 N Whidbey GEN | 0.5475949600 | $569,591 | $569,591 | $311.91 | | |
| HOBOND | Hospital BOND | 0.1910887512 | $569,591 | $569,591 | $108.84 | | |
| HOGEN | Hospital GEN | 0.3902502903 | $569,591 | $569,591 | $222.28 | | |
| CE | County Current Expense | 0.3708482477 | $569,591 | $569,591 | $211.23 | | |
| CR | County Roads | 0.4584763726 | $569,591 | $569,591 | $261.14 | | |
| ISLANDEMS | Hospital GEN (EMS) | 0.5000000000 | $569,591 | $569,591 | $284.80 | | |
| LIB | Library Sno-Isle GEN | 0.3153421757 | $569,591 | $569,591 | $179.62 | | |
| NWHIDPRMT | P & R N Whidbey GEN | 0.2004466701 | $569,591 | $569,591 | $114.17 | | |
| SCH201MO | School 201 Enrichment | 1.8559231640 | $569,591 | $569,591 | $1,057.12 | | |
| ST | State School | 1.3035497053 | $569,591 | $569,591 | $742.49 | | |
| ST2 | State School Part 2 | 0.8169543533 | $569,591 | $569,591 | $465.33 | | |
| | Total Tax Rate: | 6.9861102925 | | | | | |
| | | | | Taxes w/Current Exemptions: | $3,979.23 | | |
| | | | | Taxes w/o Exemptions: | $3,979.23 | | |
Improvement / Building
| Improvement #1: | RESIDENTIAL | State Code: | Y | 2160.5 sqft | Value: | $309,591 |
| Bathrooms: | 2.5 | Bedrooms: | 3 | | Ceiling: | DRYWALL PAINTED | Cooling: | HEAT PUMP/CONV/V | | Exterior Wall/Cover: | PLY/HARDBOARD T-111 | Floor Covering: | CERAMIC TILE/CPT 40-60 | | Floor Structure: | SLAB ABOVE GRADE | Foundation: | SLAB | | Interior Finish: | DRYWALL PAINT | Plumbing Fixture Cnt: | 11 | | Roof Slope: | 4" IN 12" | Roof Structure/Cover: | CJ WOOD SHAKES |
|
| | Type | Description | Class CD | Sub Class CD | Year Built | Area |
| | BAS | BASE/MAIN FLOOR | 3 | 0 | 1982 | 1401.5 |
| | DGR | DETACHED GARAGE | 3 | 0 | 1982 | 1260.0 |
| | OP3 | OPEN PORCH W/ROOF | 3 | 0 | 1982 | 80.0 |
| | UPS | UPPER STORY | 3 | 0 | 1982 | 759.0 |
Sketch
Property Image
Land
| 1 | 18 | AC (02.01-03.00) | 0.0000 | 0.00 | 0.00 | 0.00 | 1.00 | $260,000 | $0 |
Roll Value History
| 2026 | N/A | N/A | N/A | N/A | N/A |
| 2025 | $309,591 | $260,000 | $0 | $569,591 | $569,591 |
| 2024 | $314,063 | $250,000 | $0 | $564,063 | $564,063 |
| 2023 | $318,532 | $240,000 | $0 | $558,532 | $558,532 |
| 2022 | $260,915 | $220,000 | $0 | $480,915 | $480,915 |
| 2021 | $230,039 | $180,000 | $0 | $410,039 | $410,039 |
| 2020 | $224,706 | $140,000 | $0 | $364,706 | $364,706 |
| 2019 | $170,647 | $200,000 | $0 | $370,647 | $370,647 |
| 2018 | $171,214 | $160,000 | $0 | $331,214 | $331,214 |
| 2017 | $156,639 | $150,000 | $0 | $306,639 | $306,639 |
| 2016 | $158,679 | $120,000 | $0 | $278,679 | $278,679 |
| 2015 | $160,718 | $90,000 | $0 | $250,718 | $250,718 |
| 2014 | $162,757 | $90,000 | $0 | $252,757 | $252,757 |
| 2013 | $164,797 | $102,000 | $0 | $266,797 | $266,797 |
| 2012 | $166,836 | $102,000 | $0 | $268,836 | $268,836 |
| 2011 | $169,350 | $120,000 | $0 | $289,350 | $289,350 |
| 2010 | $174,490 | $120,000 | $0 | $294,490 | $294,490 |
| 2009 | $182,172 | $140,000 | $0 | $322,172 | $322,172 |
| 2008 | $194,650 | $132,000 | $0 | $326,650 | $326,650 |
| 2007 | $197,738 | $132,000 | $0 | $329,738 | $329,738 |
Deed and Sales History
| 1 | 02/09/2022 | WD | Warranty Deed | DICKEY, RAYMOND L | LIEURANCE, STEPHEN V | | | $560,000.00 | 52156 | 4540792 |
| 2 | 03/01/1985 | WD | Warranty Deed | SULLIVAN, JAMES L | DICKEY, RAYMOND L | | | $89,500.00 | 50534 | 85002389 |
| 3 | 12/01/1983 | WD | Warranty Deed | REICON, INC | SULLIVAN, JAMES L | | | $0.00 | 33572 | 418405 |
| 4 | 03/01/1982 | REC | Real Estate Contract | Unknown | REICON, INC | | | $30,000.00 | 20569 | 393993 |
Payout Agreement
| No payout information available.. |