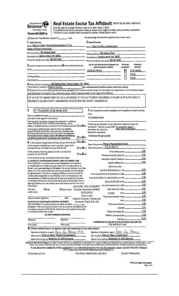
Property
Account |
| Property ID: | 574239 | Abbreviated Legal Description: | LOT 1 SP 82-25.13221.206-2400 V1 SP P237 AF#416903 |
| Geographic ID: | R13221-170-2520 | Agent Code: | |
| Type: | Real | | |
| Tax Area: | 332 - APPRAISER-Cpvl Schl Dist, Special Dist, improved, greater than 1 acre | Land Use Code | 11 |
| Open Space: | N | DFL | N |
| Historic Property: | N | Remodel Property: | N |
| Multi-Family Redevelopment: | N | | |
| Township: | 32 | Section: | 21 |
| Range: | R1 |
Location |
| Address: | 1410 ARNOLD RD OAK HARBOR, WA 98277 | Mapsco: | |
| Neighborhood: | Cycle 2 | Map ID: | 149 |
| Neighborhood CD: | 2 |
Owner |
| Name: | SOCHA, SHAWN | Owner ID: | 302232 |
| Mailing Address: | EMILY SOCHA 1410 ARNOLD RD OAK HARBOR, WA 98277 | % Ownership: | 100.0000000000% |
| | | Exemptions: | |
Taxes and Assessment Details
Values
| (+) Improvement Homesite Value: | + | $0 | |
| (+) Improvement Non-Homesite Value: | + | $133,707 | |
| (+) Land Homesite Value: | + | $0 | |
| (+) Land Non-Homesite Value: | + | $326,810 | |
| (+) Curr Use (HS): | + | $0 | $0 |
| (+) Curr Use (NHS): | + | $0 | $0 |
| | | -------------------------- | |
| (=) Market Value: | = | $460,517 | |
| (–) Productivity Loss: | – | $0 | |
| | | -------------------------- | |
| (=) Subtotal: | = | $460,517 | |
| (+) Senior Appraised Value: | + | $0 | |
| (+) Non-Senior Appraised Value: | + | $460,517 | |
| | | -------------------------- | |
| (=) Total Appraised Value: | = | $460,517 | |
| (–) Senior Exemption Loss: | – | $0 | |
| (–) Exemption Loss: | – | $0 | |
| | | -------------------------- | |
| (=) Taxable Value: | = | $460,517 | |
Taxing Jurisdiction
| Owner: | SOCHA, SHAWN | | |
| % Ownership: | 100.0000000000% | | |
| Total Value: | $460,517 | | |
| Tax Area: | 332 - APPRAISER-Cpvl Schl Dist, Special Dist, improved, greater than 1 acre |
| CF | Conservation Futures | 0.0316035091 | $460,517 | $460,517 | $14.55 | | |
| CEM2 | Cemetery #2 | 0.0095056933 | $460,517 | $460,517 | $4.38 | | |
| FIRE2 | Fire & Rescue Dist #2 N Whidbey GEN | 0.5475949600 | $460,517 | $460,517 | $252.18 | | |
| HOBOND | Hospital BOND | 0.1910887512 | $460,517 | $460,517 | $88.00 | | |
| HOGEN | Hospital GEN | 0.3902502903 | $460,517 | $460,517 | $179.72 | | |
| CE | County Current Expense | 0.3708482477 | $460,517 | $460,517 | $170.78 | | |
| CR | County Roads | 0.4584763726 | $460,517 | $460,517 | $211.14 | | |
| ISLANDEMS | Hospital GEN (EMS) | 0.5000000000 | $460,517 | $460,517 | $230.26 | | |
| LIB | Library Sno-Isle GEN | 0.3153421757 | $460,517 | $460,517 | $145.22 | | |
| LIBCAP | Library Sno-Isle BOND (Cap Fac Imp Area) | 0.0543427938 | $460,517 | $460,517 | $25.03 | | |
| POCOUP | Port of Coupeville GEN | 0.1093371703 | $460,517 | $460,517 | $50.35 | | |
| POCOUPIDD | Port of Coupeville IDD | 0.3409740022 | $460,517 | $460,517 | $157.02 | | |
| COUPSDTECH | School 204 CP (TECH) | 0.7545480007 | $460,517 | $460,517 | $347.48 | | |
| SCH204MO | School 204 Enrichment | 0.6716186034 | $460,517 | $460,517 | $309.29 | | |
| ST | State School | 1.3035497053 | $460,517 | $460,517 | $600.31 | | |
| ST2 | State School Part 2 | 0.8169543533 | $460,517 | $460,517 | $376.22 | | |
| | Total Tax Rate: | 6.8660346289 | | | | | |
| | | | | Taxes w/Current Exemptions: | $3,161.93 | | |
| | | | | Taxes w/o Exemptions: | $3,161.93 | | |
Improvement / Building
| Improvement #1: | MANUFACTURED HOME | State Code: | Y | 1333.0 sqft | Value: | $31,278 |
| Bathrooms: | 0 | Bedrooms: | 0 | | Ceiling: | PLASTER PAINTED | Cooling: | EVAP NO DUCT | | Exterior Wall/Cover: | VINYL | Floor Covering: | CARPET 100% | | Floor Structure: | SLAB ON GRADE | Foundation: | SLAB | | Heating: | FHA ELECTRIC | Interior Finish: | PLASTER | | Plumbing Fixture Cnt: | 1 | Roof Slope: | FLAT | | Roof Structure/Cover: | CJ ALUMINIUM HEAVY |   |   |
|
| | Type | Description | Class CD | Sub Class CD | Year Built | Area |
| | BAS | BASE/MAIN FLOOR | 3 | 0 | 1983 | 1333.0 |
| | OWC | OPEN WOOD PORCH W/STEPS/ROOF/C | 3 | 0 | 1983 | 19.5 |
| Improvement #2: | RESIDENTIAL | State Code: | Y | 651.8 sqft | Value: | $102,429 |
| Bathrooms: | 0 | Ceiling: | DRYWALL PAINTED | | Exterior Wall/Cover: | PLY/HARDBOARD T-111 | Floor Covering: | CARPET 100% | | Floor Structure: | SLAB ON GRADE | Foundation: | SLAB | | Heating: | FHA ELECTRIC | Interior Finish: | DRYWALL PAINT | | Plumbing Fixture Cnt: | 1 | Roof Slope: | 4" IN 12" | | Roof Structure/Cover: | CJ ASPHALT |   |   |
|
| | Type | Description | Class CD | Sub Class CD | Year Built | Area |
| | BAS | BASE/MAIN FLOOR | 3 | 0 | 1983 | 651.8 |
| | OWR | OPEN WOOD PORCH W/STEPS/ROOF | 3 | 0 | 1983 | 48.0 |
| | OWR | OPEN WOOD PORCH W/STEPS/ROOF | 3 | 0 | 1983 | 240.0 |
| | DGR | DETACHED GARAGE | 3 | 0 | 1983 | 1064.0 |
Sketch
Property Image
Land
| 1 | HS | HOMESITE | 1.0000 | 43560.00 | 0.00 | 0.00 | 1.00 | $220,000 | $0 |
| 2 | 91 | UNDEVELOPED LAND-METES AND BOUNDS | 2.7900 | 121532.40 | 0.00 | 0.00 | 1.00 | $106,810 | $0 |
Roll Value History
| 2026 | N/A | N/A | N/A | N/A | N/A |
| 2025 | $133,707 | $326,810 | $0 | $460,517 | $460,517 |
| 2024 | $77,065 | $300,000 | $0 | $377,065 | $377,065 |
| 2023 | $79,047 | $280,000 | $0 | $359,047 | $359,047 |
| 2022 | $74,505 | $260,000 | $0 | $334,505 | $334,505 |
| 2021 | $66,345 | $170,000 | $0 | $236,345 | $236,345 |
| 2020 | $66,782 | $170,000 | $0 | $236,782 | $236,782 |
| 2019 | $52,493 | $230,000 | $0 | $282,493 | $282,493 |
| 2018 | $72,120 | $170,000 | $0 | $242,120 | $242,120 |
| 2017 | $73,833 | $170,000 | $0 | $243,833 | $243,833 |
| 2016 | $75,750 | $160,000 | $0 | $235,750 | $235,750 |
| 2015 | $77,666 | $120,000 | $0 | $197,666 | $197,666 |
| 2014 | $79,584 | $120,000 | $0 | $199,584 | $199,584 |
| 2013 | $81,502 | $92,097 | $0 | $173,599 | $173,599 |
| 2012 | $82,957 | $92,097 | $0 | $175,054 | $175,054 |
| 2011 | $84,470 | $102,330 | $0 | $186,800 | $186,800 |
| 2010 | $86,229 | $102,330 | $0 | $188,559 | $188,559 |
| 2009 | $89,866 | $121,280 | $0 | $211,146 | $211,146 |
| 2008 | $104,794 | $138,265 | $0 | $243,059 | $243,059 |
| 2007 | $107,411 | $125,695 | $0 | $233,106 | $233,106 |
Deed and Sales History
| 1 | 11/23/2021 | WD | Warranty Deed | AREVALO, OLIVIA | SOCHA, SHAWN | | | $425,000.00 | 51184 | 4535131 |
| 2 | 04/13/2016 | QCD | Quit Claim Deed | AREVALO, OLIVIA | AREVALO, OLIVIA | | | $0.00 | 24052 | 4398356 |
| 3 | 04/12/2016 | WD | Warranty Deed | BOS, CATHLEEN M | AREVALO, OLIVIA | | | $235,000.00 | 24051 | 4398355 |
| 4 | 07/11/2012 | DECREE | Divorce Decree/Legal Separation | BOS, RONALD | BOS, CATHLEEN M | | | $0.00 | 8227 | 4319312 |
| 5 | 05/29/2003 | WD | Warranty Deed | ROBERTS, BRUCE A | BOS, CATHLEEN M | | | $171,000.00 | 32378 | 4061691 |
| 6 | 01/16/2002 | QCD | Quit Claim Deed | ROBERTS, BRUCE A | ROBERTS, BRUCE A | | | $0.00 | 20181 | 4008450 |
| 7 | 07/01/1995 | OTHER | Other - Misc. Documents | HERRINGTON, VALENTINA N | ROBERTS, BRUCE A | | | $40,000.00 | 52297 | 0 |
| 8 | 07/01/1995 | WD | Warranty Deed | ROBERTS, BRUCE A | ROBERTS, BRUCE A | | | $119,400.00 | 52296 | 95010512 |
| 9 | 05/01/1992 | WD | Warranty Deed | HERRINGTON, JESS/VALENTINE | HERRINGTON, VALENTINA N | | | $0.00 | 21769 | 92008384 |
| 10 | 01/01/1984 | OTHER | Other - Misc. Documents | HERRINGTON, VALENTINE N | HERRINGTON, JESS/VALENTINE | | | $39,900.00 | 11111111 | 0 |
| 11 | 01/01/1900 | OTHER | Other - Misc. Documents | Unknown | HERRINGTON, VALENTINE N | | | $0.00 | 0 | 0 |
Payout Agreement
| No payout information available.. |