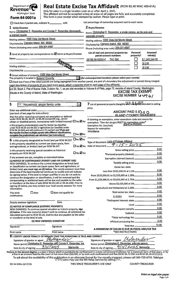
Property
Account |
| Property ID: | 574257 | Abbreviated Legal Description: | LOT 3 SP 82-25.13221.206-2400 V1 SP P237 AF#416903 |
| Geographic ID: | R13221-230-2400 | Agent Code: | |
| Type: | Real | | |
| Tax Area: | 332 - APPRAISER-Cpvl Schl Dist, Special Dist, improved, greater than 1 acre | Land Use Code | 11 |
| Open Space: | N | DFL | N |
| Historic Property: | N | Remodel Property: | N |
| Multi-Family Redevelopment: | N | | |
| Township: | 32 | Section: | 21 |
| Range: | R1 |
Location |
| Address: | 961 TANNER RD OAK HARBOR, WA 98277 | Mapsco: | |
| Neighborhood: | Cycle 2 | Map ID: | 149 |
| Neighborhood CD: | 2 |
Owner |
| Name: | OLSON, JESSE J / CAROL ROSE | Owner ID: | 177168 |
| Mailing Address: | 961 TANNER RD OAK HARBOR, WA 98277-8210 | % Ownership: | 100.0000000000% |
| | | Exemptions: | |
Taxes and Assessment Details
Values
| (+) Improvement Homesite Value: | + | $0 | |
| (+) Improvement Non-Homesite Value: | + | $485,013 | |
| (+) Land Homesite Value: | + | $0 | |
| (+) Land Non-Homesite Value: | + | $314,819 | |
| (+) Curr Use (HS): | + | $0 | $0 |
| (+) Curr Use (NHS): | + | $0 | $0 |
| | | -------------------------- | |
| (=) Market Value: | = | $799,832 | |
| (–) Productivity Loss: | – | $0 | |
| | | -------------------------- | |
| (=) Subtotal: | = | $799,832 | |
| (+) Senior Appraised Value: | + | $0 | |
| (+) Non-Senior Appraised Value: | + | $799,832 | |
| | | -------------------------- | |
| (=) Total Appraised Value: | = | $799,832 | |
| (–) Senior Exemption Loss: | – | $0 | |
| (–) Exemption Loss: | – | $0 | |
| | | -------------------------- | |
| (=) Taxable Value: | = | $799,832 | |
Taxing Jurisdiction
| Owner: | OLSON, JESSE J / CAROL ROSE | | |
| % Ownership: | 100.0000000000% | | |
| Total Value: | $799,832 | | |
| Tax Area: | 332 - APPRAISER-Cpvl Schl Dist, Special Dist, improved, greater than 1 acre |
| CF | Conservation Futures | 0.0316035091 | $799,832 | $799,832 | $25.28 | | |
| CEM2 | Cemetery #2 | 0.0095056933 | $799,832 | $799,832 | $7.60 | | |
| FIRE2 | Fire & Rescue Dist #2 N Whidbey GEN | 0.5475949600 | $799,832 | $799,832 | $437.98 | | |
| HOBOND | Hospital BOND | 0.1910887512 | $799,832 | $799,832 | $152.84 | | |
| HOGEN | Hospital GEN | 0.3902502903 | $799,832 | $799,832 | $312.13 | | |
| CE | County Current Expense | 0.3708482477 | $799,832 | $799,832 | $296.62 | | |
| CR | County Roads | 0.4584763726 | $799,832 | $799,832 | $366.70 | | |
| ISLANDEMS | Hospital GEN (EMS) | 0.5000000000 | $799,832 | $799,832 | $399.92 | | |
| LIB | Library Sno-Isle GEN | 0.3153421757 | $799,832 | $799,832 | $252.22 | | |
| LIBCAP | Library Sno-Isle BOND (Cap Fac Imp Area) | 0.0543427938 | $799,832 | $799,832 | $43.47 | | |
| POCOUP | Port of Coupeville GEN | 0.1093371703 | $799,832 | $799,832 | $87.45 | | |
| POCOUPIDD | Port of Coupeville IDD | 0.3409740022 | $799,832 | $799,832 | $272.72 | | |
| COUPSDTECH | School 204 CP (TECH) | 0.7545480007 | $799,832 | $799,832 | $603.51 | | |
| SCH204MO | School 204 Enrichment | 0.6716186034 | $799,832 | $799,832 | $537.18 | | |
| ST | State School | 1.3035497053 | $799,832 | $799,832 | $1,042.62 | | |
| ST2 | State School Part 2 | 0.8169543533 | $799,832 | $799,832 | $653.43 | | |
| | Total Tax Rate: | 6.8660346289 | | | | | |
| | | | | Taxes w/Current Exemptions: | $5,491.67 | | |
| | | | | Taxes w/o Exemptions: | $5,491.67 | | |
Improvement / Building
| Improvement #1: | RESIDENTIAL | State Code: | Y | 2456.5 sqft | Value: | $485,013 |
| Bathrooms: | 3 | Bedrooms: | 4 | | Ceiling: | DRYWALL PAINTED | Exterior Wall/Cover: | PLY/HARDBOARD T-111 | | Floor Covering: | CARPET/VINYL 80-20 | Floor Structure: | WOOD W/SUBFLOOR | | Foundation: | CONCRETE | Heating: | BASEBOARD ELECTRIC | | Interior Finish: | DRYWALL PAINT | Plumbing Fixture Cnt: | 16 | | Roof Slope: | 6" IN 12" | Roof Structure/Cover: | CJ ASPHALT |
|
| | Type | Description | Class CD | Sub Class CD | Year Built | Area |
| | BAS | BASE/MAIN FLOOR | 4 | 0 | 1994 | 1207.2 |
| | AGR | ATTACHED GARAGE | 4 | 0 | 1994 | 504.0 |
| | UPS | UPPER STORY | 4 | 0 | 1994 | 1249.3 |
| | OWP | OPEN WOOD PORCH W/STEPS | 4 | 0 | 1994 | 282.3 |
| | OWC | OPEN WOOD PORCH W/STEPS/ROOF/C | 4 | 0 | 1994 | 216.0 |
| | DGR | DETACHED GARAGE | 4 | 0 | 1994 | 1296.0 |
Sketch
Property Image
Land
| 1 | HS | HOMESITE | 1.0000 | 43560.00 | 0.00 | 0.00 | 1.00 | $220,000 | $0 |
| 2 | 91 | UNDEVELOPED LAND-METES AND BOUNDS | 1.9500 | 84942.00 | 0.00 | 0.00 | 1.00 | $94,819 | $0 |
Roll Value History
| 2026 | N/A | N/A | N/A | N/A | N/A |
| 2025 | $485,013 | $314,819 | $0 | $799,832 | $799,832 |
| 2024 | $488,298 | $300,000 | $0 | $788,298 | $788,298 |
| 2023 | $494,703 | $270,000 | $0 | $764,703 | $764,703 |
| 2022 | $453,748 | $250,000 | $0 | $703,748 | $703,748 |
| 2021 | $399,613 | $170,000 | $0 | $569,613 | $569,613 |
| 2020 | $389,091 | $150,000 | $0 | $539,091 | $539,091 |
| 2019 | $285,790 | $180,000 | $0 | $465,790 | $465,790 |
| 2018 | $262,031 | $170,000 | $0 | $432,031 | $432,031 |
| 2017 | $259,881 | $150,000 | $0 | $409,881 | $409,881 |
| 2016 | $262,905 | $120,000 | $0 | $382,905 | $382,905 |
| 2015 | $265,931 | $90,000 | $0 | $355,931 | $355,931 |
| 2014 | $268,955 | $90,000 | $0 | $358,955 | $358,955 |
| 2013 | $271,980 | $102,000 | $0 | $373,980 | $373,980 |
| 2012 | $275,450 | $102,000 | $0 | $377,450 | $377,450 |
| 2011 | $278,411 | $120,000 | $0 | $398,411 | $398,411 |
| 2010 | $289,423 | $120,000 | $0 | $409,423 | $409,423 |
| 2009 | $301,659 | $105,000 | $0 | $406,659 | $406,659 |
| 2008 | $305,834 | $115,200 | $0 | $421,034 | $421,034 |
| 2007 | $310,033 | $115,200 | $0 | $425,233 | $425,233 |
Deed and Sales History
| 1 | 06/23/1998 | WD | Warranty Deed | OLSON, JESSE J | OLSON, JESSE J/CAROL ROSE | | | $251,750.00 | 82521 | 98013145 |
| 2 | 03/01/1994 | WD | Warranty Deed | KOVACH, NANCY E | RICE, G M | | | $39,000.00 | 40902 | 94005910 |
| 3 | 10/01/1983 | QCD | Quit Claim Deed | HERRINGTON, VALENTINE N | KOVACH, NANCY E | | | $0.00 | 33389 | 417649 |
| 4 | 01/01/1900 | OTHER | Other - Misc. Documents | Unknown | HERRINGTON, VALENTINE N | | | $0.00 | 0 | 0 |
| 5 | 01/01/1900 | OTHER | Other - Misc. Documents | RICE, G M | OLSON, JESSE J | | | $0.00 | 82521 | 98013145 |
Payout Agreement
| No payout information available.. |