Property
Account |
| Property ID: | 57431 | Abbreviated Legal Description: | 29 - PT GL2 LY WLY OF CO RD: BG SECR GL2 N89*W401.13 TO WLN DOUBLE BLUFF RD TPB N89*W531.33' N166.25' N57*E 323' S24*E100' N65*E217.63' TO WLN SD RD ALG CUR/L 74.92' S3*E268.74' TPB TGW & SUB EZ AF#90018169 |
| Geographic ID: | R22923-149-3330 | Agent Code: | |
| Type: | Real | | |
| Tax Area: | 759 - APPRAISER-S Whid Schl Dist, Special District, vacant & 50 acres or less | Land Use Code | 91 |
| Open Space: | N | DFL | N |
| Historic Property: | N | Remodel Property: | N |
| Multi-Family Redevelopment: | N | | |
| Township: | 29 | Section: | 23 |
| Range: | R2 |
Location |
| Address: | | Mapsco: | |
| Neighborhood: | Cycle 3 | Map ID: | 339 |
| Neighborhood CD: | 3 |
Owner |
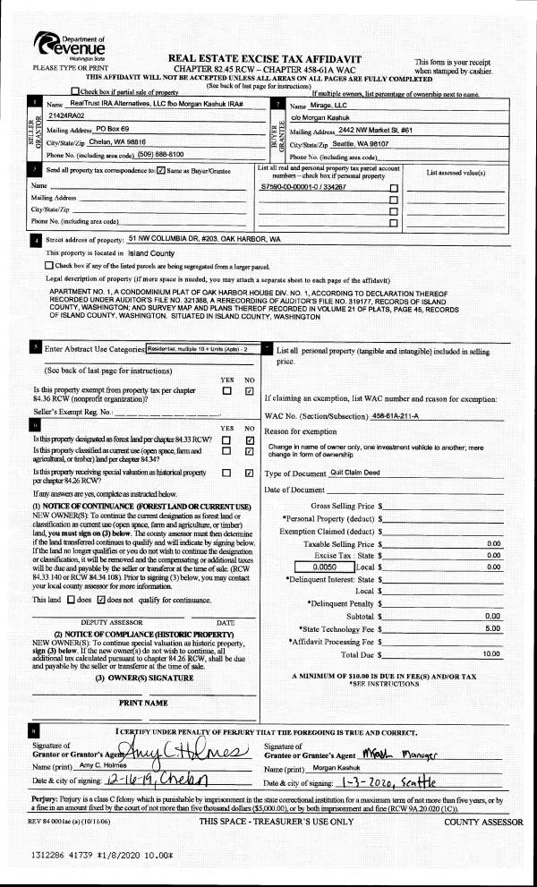
| Name: | DOUBLE BLUFF ROAD, LLC | Owner ID: | 297316 |
| Mailing Address: | 4616 25TH AVE NE #422 SEATTLE, WA 98105 | % Ownership: | 100.0000000000% |
| | | Exemptions: | |
Taxes and Assessment Details
Values
| (+) Improvement Homesite Value: | + | $0 | |
| (+) Improvement Non-Homesite Value: | + | $0 | |
| (+) Land Homesite Value: | + | $0 | |
| (+) Land Non-Homesite Value: | + | $210,000 | |
| (+) Curr Use (HS): | + | $0 | $0 |
| (+) Curr Use (NHS): | + | $0 | $0 |
| | | -------------------------- | |
| (=) Market Value: | = | $210,000 | |
| (–) Productivity Loss: | – | $0 | |
| | | -------------------------- | |
| (=) Subtotal: | = | $210,000 | |
| (+) Senior Appraised Value: | + | $0 | |
| (+) Non-Senior Appraised Value: | + | $210,000 | |
| | | -------------------------- | |
| (=) Total Appraised Value: | = | $210,000 | |
| (–) Senior Exemption Loss: | – | $0 | |
| (–) Exemption Loss: | – | $0 | |
| | | -------------------------- | |
| (=) Taxable Value: | = | $210,000 | |
Taxing Jurisdiction
| Owner: | DOUBLE BLUFF ROAD, LLC | | |
| % Ownership: | 100.0000000000% | | |
| Total Value: | $210,000 | | |
| Tax Area: | 759 - APPRAISER-S Whid Schl Dist, Special District, vacant & 50 acres or less |
| CF | Conservation Futures | 0.0316035091 | $210,000 | $210,000 | $6.64 | | |
| HOBOND | Hospital BOND | 0.1910887512 | $210,000 | $210,000 | $40.13 | | |
| HOGEN | Hospital GEN | 0.3902502903 | $210,000 | $210,000 | $81.95 | | |
| CE | County Current Expense | 0.3708482477 | $210,000 | $210,000 | $77.88 | | |
| CR | County Roads | 0.4584763726 | $210,000 | $210,000 | $96.28 | | |
| ISLANDEMS | Hospital GEN (EMS) | 0.5000000000 | $210,000 | $210,000 | $105.00 | | |
| LIB | Library Sno-Isle GEN | 0.3153421757 | $210,000 | $210,000 | $66.22 | | |
| PORTWHID | Port of S Whidbey GEN | 0.1094540357 | $210,000 | $210,000 | $22.99 | | |
| SCH206BOND | School 206 BOND | 0.3161759235 | $210,000 | $210,000 | $66.40 | | |
| SCH206MO | School 206 Enrichment | 0.4547169547 | $210,000 | $210,000 | $95.49 | | |
| ST | State School | 1.3035497053 | $210,000 | $210,000 | $273.75 | | |
| ST2 | State School Part 2 | 0.8169543533 | $210,000 | $210,000 | $171.56 | | |
| SWHIDPRBD | P & R S Whidbey BOND | 0.0152817568 | $210,000 | $210,000 | $3.21 | | |
| SWHIDPRBD2 | P & R S Whidbey BOND2 | 0.0138911264 | $210,000 | $210,000 | $2.92 | | |
| SWHIDPRMT | P & R S Whidbey GEN | 0.2053334452 | $210,000 | $210,000 | $43.12 | | |
| | Total Tax Rate: | 5.4929666475 | | | | | |
| | | | | Taxes w/Current Exemptions: | $1,153.54 | | |
| | | | | Taxes w/o Exemptions: | $1,153.54 | | |
Improvement / Building
Sketch
| No sketches available for this property. |
Property Image
Land
| 1 | 32 | AC (03.01-09.99) | 3.2000 | 139392.00 | 0.00 | 0.00 | 1.00 | $210,000 | $0 |
Roll Value History
| 2026 | N/A | N/A | N/A | N/A | N/A |
| 2025 | $0 | $210,000 | $0 | $210,000 | $210,000 |
| 2024 | $0 | $200,000 | $0 | $200,000 | $200,000 |
| 2023 | $0 | $180,000 | $0 | $180,000 | $180,000 |
| 2022 | $0 | $170,000 | $0 | $170,000 | $170,000 |
| 2021 | $0 | $135,000 | $0 | $135,000 | $135,000 |
| 2020 | $0 | $135,000 | $0 | $135,000 | $135,000 |
| 2019 | $0 | $140,000 | $0 | $140,000 | $140,000 |
| 2018 | $0 | $140,000 | $0 | $140,000 | $140,000 |
| 2017 | $0 | $140,000 | $0 | $140,000 | $140,000 |
| 2016 | $0 | $140,000 | $0 | $140,000 | $140,000 |
| 2015 | $0 | $68,000 | $0 | $68,000 | $68,000 |
| 2014 | $0 | $68,000 | $810 | $22,060 | $22,060 |
| 2013 | $0 | $68,000 | $810 | $22,060 | $22,060 |
| 2012 | $0 | $68,000 | $810 | $22,060 | $22,060 |
| 2011 | $0 | $55,000 | $810 | $810 | $810 |
| 2010 | $0 | $55,000 | $810 | $810 | $810 |
| 2009 | $0 | $68,200 | $810 | $810 | $810 |
| 2008 | $0 | $59,400 | $810 | $810 | $810 |
| 2007 | $0 | $92,400 | $810 | $810 | $810 |
Deed and Sales History
| 1 | 12/10/2020 | WD | Warranty Deed | GARVEY, DANA M | DOUBLE BLUFF ROAD, LLC | | | $0.00 | 46128 | 4505241 |
| 2 | 03/30/2001 | WD | Warranty Deed | SMITH, CRAIG N | GARVEY, DANA M | | | $0.00 | 0 | 0 |
| 3 | 09/01/1990 | WD | Warranty Deed | STROUSS, C A | SMITH, CRAIG N | | | $0.00 | 5436 | 90018163 |
| 4 | 02/01/1982 | PACD | Purchaser's Assignment | CLINTON, ROLAND F | STROUSS, C A | | | $0.00 | 20320 | 393013 |
| 5 | 01/01/1982 | OTHER | Other - Misc. Documents | CLINTON, ROLAND F | CLINTON, ROLAND F | | | $1.00 | 20116 | 392134 |
| 6 | 01/01/1900 | OTHER | Other - Misc. Documents | Unknown | CLINTON, ROLAND F | | | $0.00 | 0 | 0 |
Payout Agreement
| No payout information available.. |