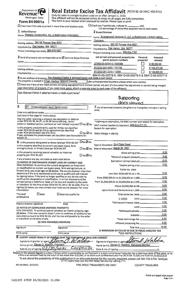
Property
Account |
| Property ID: | 574952 | Abbreviated Legal Description: | MS1:CF REM CORR VAL AFTER 84 CALC IN SE SE: PT LY W OF SMUGGLERS COVE RD EX PT TO IS CO AF#240968 & 241172 EX RD FR 050 2360 |
| Geographic ID: | R23007-122-1480 | Agent Code: | |
| Type: | Real | | |
| Tax Area: | 319 - APPRAISER-Cpvl Schl Dist, outside Cpvl, vacant & 50 acres or less | Land Use Code | 91 |
| Open Space: | N | DFL | N |
| Historic Property: | N | Remodel Property: | N |
| Multi-Family Redevelopment: | N | | |
| Township: | 30 | Section: | 07 |
| Range: | R2 |
Location |
| Address: | 3062 SPHAHR RD GREENBANK, WA 98253 | Mapsco: | |
| Neighborhood: | Cycle 3 | Map ID: | 361 |
| Neighborhood CD: | 3 |
Owner |
| Name: | TABATABAI, ALI S | Owner ID: | 296544 |
| Mailing Address: | 424 W BAKERVIEW RD, #105-369 BELLINGHAM, WA 98226 | % Ownership: | 100.0000000000% |
| | | Exemptions: | |
Taxes and Assessment Details
Values
| (+) Improvement Homesite Value: | + | $0 | |
| (+) Improvement Non-Homesite Value: | + | $0 | |
| (+) Land Homesite Value: | + | $0 | |
| (+) Land Non-Homesite Value: | + | $120,000 | |
| (+) Curr Use (HS): | + | $0 | $0 |
| (+) Curr Use (NHS): | + | $0 | $0 |
| | | -------------------------- | |
| (=) Market Value: | = | $120,000 | |
| (–) Productivity Loss: | – | $0 | |
| | | -------------------------- | |
| (=) Subtotal: | = | $120,000 | |
| (+) Senior Appraised Value: | + | $0 | |
| (+) Non-Senior Appraised Value: | + | $120,000 | |
| | | -------------------------- | |
| (=) Total Appraised Value: | = | $120,000 | |
| (–) Senior Exemption Loss: | – | $0 | |
| (–) Exemption Loss: | – | $0 | |
| | | -------------------------- | |
| (=) Taxable Value: | = | $120,000 | |
Taxing Jurisdiction
| Owner: | TABATABAI, ALI S | | |
| % Ownership: | 100.0000000000% | | |
| Total Value: | $120,000 | | |
| Tax Area: | 319 - APPRAISER-Cpvl Schl Dist, outside Cpvl, vacant & 50 acres or less |
| CF | Conservation Futures | 0.0316035091 | $120,000 | $120,000 | $3.79 | | |
| CEM2 | Cemetery #2 | 0.0095056933 | $120,000 | $120,000 | $1.14 | | |
| HOBOND | Hospital BOND | 0.1910887512 | $120,000 | $120,000 | $22.93 | | |
| HOGEN | Hospital GEN | 0.3902502903 | $120,000 | $120,000 | $46.83 | | |
| CE | County Current Expense | 0.3708482477 | $120,000 | $120,000 | $44.50 | | |
| CR | County Roads | 0.4584763726 | $120,000 | $120,000 | $55.02 | | |
| ISLANDEMS | Hospital GEN (EMS) | 0.5000000000 | $120,000 | $120,000 | $60.00 | | |
| LIB | Library Sno-Isle GEN | 0.3153421757 | $120,000 | $120,000 | $37.84 | | |
| LIBCAP | Library Sno-Isle BOND (Cap Fac Imp Area) | 0.0543427938 | $120,000 | $120,000 | $6.52 | | |
| POCOUP | Port of Coupeville GEN | 0.1093371703 | $120,000 | $120,000 | $13.12 | | |
| POCOUPIDD | Port of Coupeville IDD | 0.3409740022 | $120,000 | $120,000 | $40.92 | | |
| COUPSDTECH | School 204 CP (TECH) | 0.7545480007 | $120,000 | $120,000 | $90.55 | | |
| SCH204MO | School 204 Enrichment | 0.6716186034 | $120,000 | $120,000 | $80.59 | | |
| ST | State School | 1.3035497053 | $120,000 | $120,000 | $156.43 | | |
| ST2 | State School Part 2 | 0.8169543533 | $120,000 | $120,000 | $98.03 | | |
| | Total Tax Rate: | 6.3184396689 | | | | | |
| | | | | Taxes w/Current Exemptions: | $758.21 | | |
| | | | | Taxes w/o Exemptions: | $758.21 | | |
Improvement / Building
Sketch
| No sketches available for this property. |
Property Image
Land
| 1 | 17 | AC (01.01-02.00) | 0.0000 | 0.00 | 0.00 | 0.00 | 1.00 | $120,000 | $0 |
Roll Value History
| 2026 | N/A | N/A | N/A | N/A | N/A |
| 2025 | $0 | $120,000 | $0 | $120,000 | $120,000 |
| 2024 | $0 | $120,000 | $0 | $120,000 | $120,000 |
| 2023 | $0 | $110,000 | $0 | $110,000 | $110,000 |
| 2022 | $0 | $40,000 | $0 | $40,000 | $40,000 |
| 2021 | $0 | $40,000 | $0 | $40,000 | $40,000 |
| 2020 | $0 | $40,000 | $0 | $40,000 | $40,000 |
| 2019 | $0 | $40,000 | $0 | $40,000 | $40,000 |
| 2018 | $0 | $40,000 | $0 | $40,000 | $40,000 |
| 2017 | $0 | $40,000 | $0 | $40,000 | $40,000 |
| 2016 | $0 | $50,000 | $0 | $50,000 | $50,000 |
| 2015 | $0 | $80,000 | $0 | $80,000 | $80,000 |
| 2014 | $0 | $65,000 | $0 | $65,000 | $65,000 |
| 2013 | $0 | $65,000 | $0 | $65,000 | $65,000 |
| 2012 | $0 | $65,000 | $0 | $65,000 | $65,000 |
| 2011 | $0 | $65,000 | $0 | $65,000 | $65,000 |
| 2010 | $0 | $65,000 | $0 | $65,000 | $65,000 |
| 2009 | $0 | $79,300 | $0 | $79,300 | $79,300 |
| 2008 | $0 | $62,400 | $0 | $62,400 | $62,400 |
| 2007 | $0 | $50,000 | $0 | $50,000 | $50,000 |
Deed and Sales History
| 1 | 12/19/2020 | WD | Warranty Deed | LTD PREMIER PROPERTIES LLC | TABATABAI, ALI S | | | $33,000.00 | 46200 | 4505780 |
| 2 | 01/09/2019 | TTAXD | Treasurer's Tax Deed | ISLAND COUNTY TREASURER | LTD PREMIER PROPERTIES LLC | | | $0.00 | 37255 | 4457690 |
| 3 | 11/01/1983 | QCD | Quit Claim Deed | SHOEMAKER, ROBERT R | KAAS, JANIS | | | $0.00 | 33656 | 418775 |
| 4 | 01/01/1900 | OTHER | Other - Misc. Documents | Unknown | SHOEMAKER, ROBERT R | | | $0.00 | 0 | 0 |
Payout Agreement
| No payout information available.. |