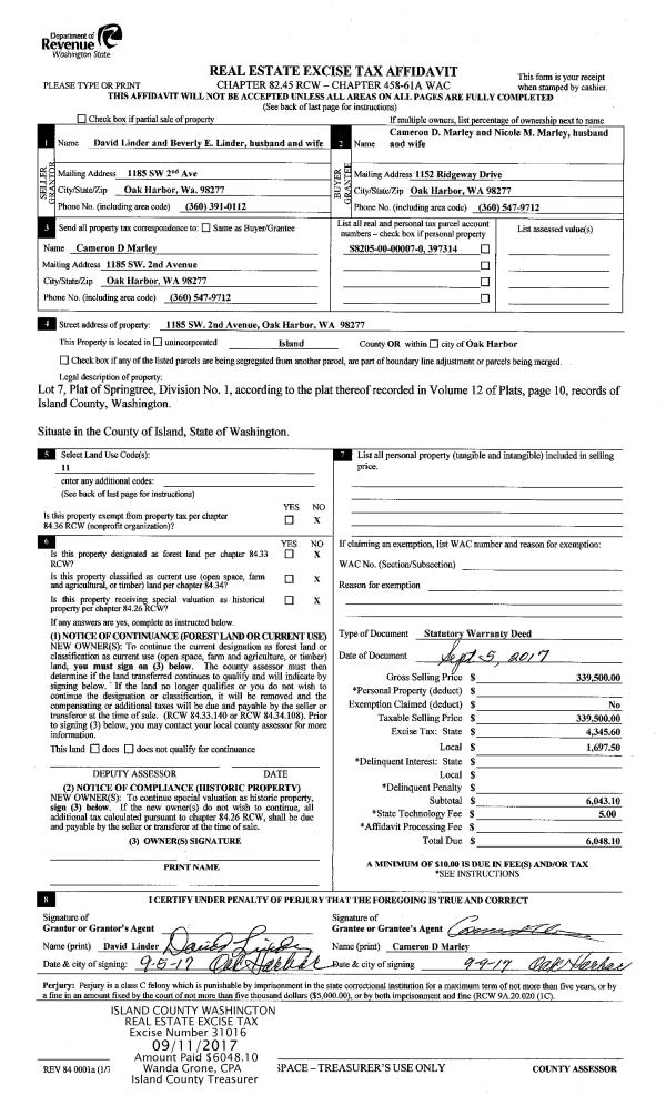
Property
Account |
| Property ID: | 575121 | Abbreviated Legal Description: | LOT B SP 83-18.3.13312.200-1830 V1 SP P240 AF#417393 |
| Geographic ID: | R13312-232-1800 | Agent Code: | |
| Type: | Real | | |
| Tax Area: | 112 - APPRAISER-OH Schl Dist, outside OH, improved, greater than 1 acre | Land Use Code | 11 |
| Open Space: | N | DFL | N |
| Historic Property: | N | Remodel Property: | N |
| Multi-Family Redevelopment: | N | | |
| Township: | 33 | Section: | 12 |
| Range: | R1 |
Location |
| Address: | 275 W HENNI RD OAK HARBOR, WA 98277 | Mapsco: | |
| Neighborhood: | Cycle 6 | Map ID: | 204 |
| Neighborhood CD: | 6 |
Owner |
| Name: | SCOLES, MATTHEW | Owner ID: | 280324 |
| Mailing Address: | SABRINA SCOLES 275 W HENNI RD OAK HARBOR, WA 98277 | % Ownership: | 100.0000000000% |
| | | Exemptions: | |
Taxes and Assessment Details
Values
| (+) Improvement Homesite Value: | + | $0 | |
| (+) Improvement Non-Homesite Value: | + | $129,790 | |
| (+) Land Homesite Value: | + | $0 | |
| (+) Land Non-Homesite Value: | + | $300,000 | |
| (+) Curr Use (HS): | + | $0 | $0 |
| (+) Curr Use (NHS): | + | $0 | $0 |
| | | -------------------------- | |
| (=) Market Value: | = | $429,790 | |
| (–) Productivity Loss: | – | $0 | |
| | | -------------------------- | |
| (=) Subtotal: | = | $429,790 | |
| (+) Senior Appraised Value: | + | $0 | |
| (+) Non-Senior Appraised Value: | + | $429,790 | |
| | | -------------------------- | |
| (=) Total Appraised Value: | = | $429,790 | |
| (–) Senior Exemption Loss: | – | $0 | |
| (–) Exemption Loss: | – | $0 | |
| | | -------------------------- | |
| (=) Taxable Value: | = | $429,790 | |
Taxing Jurisdiction
| Owner: | SCOLES, MATTHEW | | |
| % Ownership: | 100.0000000000% | | |
| Total Value: | $429,790 | | |
| Tax Area: | 112 - APPRAISER-OH Schl Dist, outside OH, improved, greater than 1 acre |
| CF | Conservation Futures | 0.0316035091 | $429,790 | $429,790 | $13.58 | | |
| CEM1 | Cemetery #1 | 0.0040320932 | $429,790 | $429,790 | $1.73 | | |
| FIRE2 | Fire & Rescue Dist #2 N Whidbey GEN | 0.5475949600 | $429,790 | $429,790 | $235.35 | | |
| HOBOND | Hospital BOND | 0.1910887512 | $429,790 | $429,790 | $82.13 | | |
| HOGEN | Hospital GEN | 0.3902502903 | $429,790 | $429,790 | $167.73 | | |
| CE | County Current Expense | 0.3708482477 | $429,790 | $429,790 | $159.39 | | |
| CR | County Roads | 0.4584763726 | $429,790 | $429,790 | $197.05 | | |
| ISLANDEMS | Hospital GEN (EMS) | 0.5000000000 | $429,790 | $429,790 | $214.90 | | |
| LIB | Library Sno-Isle GEN | 0.3153421757 | $429,790 | $429,790 | $135.53 | | |
| NWHIDPRMT | P & R N Whidbey GEN | 0.2004466701 | $429,790 | $429,790 | $86.15 | | |
| SCH201MO | School 201 Enrichment | 1.8559231640 | $429,790 | $429,790 | $797.66 | | |
| ST | State School | 1.3035497053 | $429,790 | $429,790 | $560.25 | | |
| ST2 | State School Part 2 | 0.8169543533 | $429,790 | $429,790 | $351.12 | | |
| | Total Tax Rate: | 6.9861102925 | | | | | |
| | | | | Taxes w/Current Exemptions: | $3,002.57 | | |
| | | | | Taxes w/o Exemptions: | $3,002.57 | | |
Improvement / Building
| Improvement #1: | MANUFACTURED HOME | State Code: | Y | 1512.0 sqft | Value: | $129,790 |
| Bathrooms: | 0 | Bedrooms: | 0 | | Ceiling: | PLASTER PAINTED | Cooling: | EVAP NO DUCT | | Exterior Wall/Cover: | VINYL | Floor Covering: | CARPET 100% | | Floor Structure: | SLAB ON GRADE | Foundation: | SLAB | | Heating: | FHA ELECTRIC | Interior Finish: | PLASTER | | Plumbing Fixture Cnt: | 1 | Roof Slope: | FLAT | | Roof Structure/Cover: | CJ ALUMINIUM HEAVY |   |   |
|
Sketch
Property Image
Land
| 1 | 32 | AC (03.01-09.99) | 5.0000 | 0.00 | 0.00 | 0.00 | 1.00 | $300,000 | $0 |
Roll Value History
| 2026 | N/A | N/A | N/A | N/A | N/A |
| 2025 | $129,790 | $300,000 | $0 | $429,790 | $429,790 |
| 2024 | $133,161 | $280,000 | $0 | $413,161 | $413,161 |
| 2023 | $118,724 | $270,000 | $0 | $388,724 | $388,724 |
| 2022 | $91,748 | $240,000 | $0 | $331,748 | $331,748 |
| 2021 | $81,799 | $175,000 | $0 | $256,799 | $256,799 |
| 2020 | $81,372 | $140,000 | $0 | $221,372 | $221,372 |
| 2019 | $65,648 | $200,000 | $0 | $265,648 | $265,648 |
| 2018 | $66,420 | $175,000 | $0 | $241,420 | $241,420 |
| 2017 | $67,193 | $140,000 | $0 | $207,193 | $207,193 |
| 2016 | $57,529 | $140,000 | $0 | $197,529 | $197,529 |
| 2015 | $58,851 | $120,000 | $0 | $178,851 | $178,851 |
| 2014 | $59,512 | $112,500 | $0 | $172,012 | $172,012 |
| 2013 | $60,835 | $112,500 | $0 | $173,335 | $173,335 |
| 2012 | $61,496 | $112,500 | $0 | $173,996 | $173,996 |
| 2011 | $62,158 | $125,000 | $0 | $187,158 | $187,158 |
| 2010 | $69,258 | $125,000 | $0 | $194,258 | $194,258 |
| 2009 | $72,899 | $125,000 | $0 | $197,899 | $197,899 |
| 2008 | $74,290 | $142,500 | $0 | $216,790 | $216,790 |
| 2007 | $76,251 | $142,500 | $0 | $218,751 | $218,751 |
Deed and Sales History
| 1 | 06/06/2017 | WD | Warranty Deed | LANG, PATRICK J | SCOLES, MATTHEW | | | $245,000.00 | 29676 | 4424005 |
| 2 | 08/29/2005 | WD | Warranty Deed | SWARTWOOD FAMILY LLP, | LANG, PATRICK J | | | $80,000.00 | 54406 | 4146419 |
| 3 | 07/20/1999 | QCD | Quit Claim Deed | SWARTWOOD, LAVINA M | SWARTWOOD FAMILY LLP, | | | $0.00 | 92876 | 99017031 |
| 4 | 01/01/1985 | OTHER | Other - Misc. Documents | SWARTWOOD, SAMUEL V | SWARTWOOD, LAVINA M | | | $0.00 | 61010 | 0 |
| 5 | 01/01/1900 | OTHER | Other - Misc. Documents | Unknown | SWARTWOOD, SAMUEL V | | | $0.00 | 0 | 0 |
| 6 | 01/01/1900 | OTHER | Other - Misc. Documents | SWARTWOOD, LAVINA M | SWARTWOOD, LAVINA M | | | $0.00 | 0 | 0 |
Payout Agreement
| No payout information available.. |