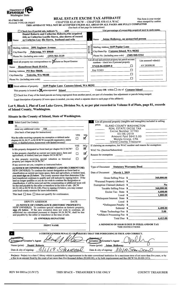
Property
Account |
| Property ID: | 575238 | Abbreviated Legal Description: | LOT A-1 SP 83-32.5.13236.231-3460 V1 SP P251 AF#419902 INCL ADJ TIDES |
| Geographic ID: | R13236-240-3400 | Agent Code: | |
| Type: | Real | | |
| Tax Area: | 312 - APPRAISER-Cpvl Schl Dist, outside Cpvl, improved, greater than 1 acre | Land Use Code | 11 |
| Open Space: | N | DFL | N |
| Historic Property: | N | Remodel Property: | N |
| Multi-Family Redevelopment: | N | | |
| Township: | 32 | Section: | 36 |
| Range: | R1 |
Location |
| Address: | 176 N PHEASANT RUN RD COUPEVILLE, WA 98239 | Mapsco: | |
| Neighborhood: | Area 2 Waterfront Eastside Res | Map ID: | 186 |
| Neighborhood CD: | 2WFTE01R |
Owner |
| Name: | RODRIGUEZ JR, VICTOR MANUEL | Owner ID: | 315537 |
| Mailing Address: | CYNTHIA DAWN RODRIGUEZ 6930 GROVE ST MARYSVILLE, WA 98270 | % Ownership: | 100.0000000000% |
| | | Exemptions: | |
Taxes and Assessment Details
Values
| (+) Improvement Homesite Value: | + | $0 | |
| (+) Improvement Non-Homesite Value: | + | $436,537 | |
| (+) Land Homesite Value: | + | $0 | |
| (+) Land Non-Homesite Value: | + | $511,100 | |
| (+) Curr Use (HS): | + | $0 | $0 |
| (+) Curr Use (NHS): | + | $0 | $0 |
| | | -------------------------- | |
| (=) Market Value: | = | $947,637 | |
| (–) Productivity Loss: | – | $0 | |
| | | -------------------------- | |
| (=) Subtotal: | = | $947,637 | |
| (+) Senior Appraised Value: | + | $0 | |
| (+) Non-Senior Appraised Value: | + | $947,637 | |
| | | -------------------------- | |
| (=) Total Appraised Value: | = | $947,637 | |
| (–) Senior Exemption Loss: | – | $0 | |
| (–) Exemption Loss: | – | $0 | |
| | | -------------------------- | |
| (=) Taxable Value: | = | $947,637 | |
Taxing Jurisdiction
| Owner: | RODRIGUEZ JR, VICTOR MANUEL | | |
| % Ownership: | 100.0000000000% | | |
| Total Value: | $947,637 | | |
| Tax Area: | 312 - APPRAISER-Cpvl Schl Dist, outside Cpvl, improved, greater than 1 acre |
| CF | Conservation Futures | 0.0316035091 | $947,637 | $947,637 | $29.95 | | |
| CEM2 | Cemetery #2 | 0.0095056933 | $947,637 | $947,637 | $9.01 | | |
| FIRE5 | Fire & Rescue Dist #5 C Whidbey GEN | 1.2008080668 | $947,637 | $947,637 | $1,137.93 | | |
| FIRE5BOND | Fire & Rescue Dist #5 C Whidbey BOND | 0.1400090713 | $947,637 | $947,637 | $132.68 | | |
| HOBOND | Hospital BOND | 0.1910887512 | $947,637 | $947,637 | $181.08 | | |
| HOGEN | Hospital GEN | 0.3902502903 | $947,637 | $947,637 | $369.82 | | |
| CE | County Current Expense | 0.3708482477 | $947,637 | $947,637 | $351.43 | | |
| CR | County Roads | 0.4584763726 | $947,637 | $947,637 | $434.47 | | |
| ISLANDEMS | Hospital GEN (EMS) | 0.5000000000 | $947,637 | $947,637 | $473.82 | | |
| LIB | Library Sno-Isle GEN | 0.3153421757 | $947,637 | $947,637 | $298.83 | | |
| LIBCAP | Library Sno-Isle BOND (Cap Fac Imp Area) | 0.0543427938 | $947,637 | $947,637 | $51.50 | | |
| POCOUP | Port of Coupeville GEN | 0.1093371703 | $947,637 | $947,637 | $103.61 | | |
| POCOUPIDD | Port of Coupeville IDD | 0.3409740022 | $947,637 | $947,637 | $323.12 | | |
| COUPSDTECH | School 204 CP (TECH) | 0.7545480007 | $947,637 | $947,637 | $715.04 | | |
| SCH204MO | School 204 Enrichment | 0.6716186034 | $947,637 | $947,637 | $636.45 | | |
| ST | State School | 1.3035497053 | $947,637 | $947,637 | $1,235.29 | | |
| ST2 | State School Part 2 | 0.8169543533 | $947,637 | $947,637 | $774.18 | | |
| | Total Tax Rate: | 7.6592568070 | | | | | |
| | | | | Taxes w/Current Exemptions: | $7,258.21 | | |
| | | | | Taxes w/o Exemptions: | $7,258.21 | | |
Improvement / Building
| Improvement #1: | RESIDENTIAL | State Code: | Y | 2096.9 sqft | Value: | $436,537 |
| Bathrooms: | 2.5 | Bedrooms: | 3 | | Ceiling: | DRYWALL PAINTED | Exterior Wall/Cover: | WOOD SIDING | | Floor Covering: | VINYL TILE/CARP 20-80 | Floor Structure: | WOOD W/SUBFLOOR | | Foundation: | CONCRETE | Heating: | FHA GAS | | Interior Finish: | DRYWALL PAINT | Plumbing Fixture Cnt: | 13 | | Roof Slope: | 6" IN 12" | Roof Structure/Cover: | CJ ASPHALT |
|
| | Type | Description | Class CD | Sub Class CD | Year Built | Area |
| | BAS | BASE/MAIN FLOOR | 4 | 0 | 1995 | 2096.9 |
| | OP4 | OPEN PORCH W/CEILING-ROOF | 4 | 0 | 1995 | 153.0 |
| | AGR | ATTACHED GARAGE | 4 | 0 | 1995 | 641.2 |
| | OWP | OPEN WOOD PORCH W/STEPS | 4 | 0 | 1995 | 241.5 |
| | OWC | OPEN WOOD PORCH W/STEPS/ROOF/C | 4 | 0 | 1995 | 260.0 |
| | oCAR | CARPORT | 2 | 0 | 2019 | 400.0 |
Sketch
Property Image
Land
| 1 | HB | HIGH BLUFF | 1.0000 | 43560.00 | 110.00 | 0.00 | 1.00 | $510,000 | $0 |
| 2 | 55 | TIDES | 0.0000 | 0.00 | 110.00 | 0.00 | 1.00 | $1,100 | $0 |
Roll Value History
| 2026 | N/A | N/A | N/A | N/A | N/A |
| 2025 | $436,537 | $511,100 | $0 | $947,637 | $947,637 |
| 2024 | $407,053 | $461,100 | $0 | $868,153 | $868,153 |
| 2023 | $412,128 | $461,100 | $0 | $873,228 | $873,228 |
| 2022 | $377,768 | $421,100 | $0 | $798,868 | $798,868 |
| 2021 | $332,498 | $351,100 | $0 | $683,598 | $683,598 |
| 2020 | $269,996 | $326,100 | $0 | $596,096 | $596,096 |
| 2019 | $194,392 | $351,100 | $0 | $545,492 | $545,492 |
| 2018 | $192,680 | $276,100 | $0 | $468,780 | $468,780 |
| 2017 | $193,962 | $251,100 | $0 | $445,062 | $445,062 |
| 2016 | $196,328 | $251,100 | $0 | $447,428 | $447,428 |
| 2015 | $198,695 | $251,100 | $0 | $449,795 | $449,795 |
| 2014 | $201,059 | $251,100 | $0 | $452,159 | $452,159 |
| 2013 | $203,425 | $233,601 | $0 | $437,026 | $437,026 |
| 2012 | $204,160 | $233,601 | $0 | $437,761 | $437,761 |
| 2011 | $206,526 | $233,601 | $0 | $440,127 | $440,127 |
| 2010 | $216,104 | $233,601 | $0 | $449,705 | $449,705 |
| 2009 | $226,015 | $271,544 | $0 | $497,559 | $497,559 |
| 2008 | $229,622 | $271,544 | $0 | $501,166 | $501,166 |
| 2007 | $233,251 | $270,774 | $0 | $504,025 | $504,025 |
Deed and Sales History
| 1 | 02/18/2025 | WD | Warranty Deed | THORPE, MICHAEL | RODRIGUEZ JR, VICTOR MANUEL | | | $1,075,000.00 | 62625 | 4582482 |
| 2 | 02/26/2024 | QCD | Quit Claim Deed | THORPE TTEE, MICHAEL | THORPE, MICHAEL | | | $0.00 | 59285 | 4569764 |
| 3 | 09/13/2020 | QCD | Quit Claim Deed | THORPE, MICHAEL | THORPE TTEE, MICHAEL | | | $0.00 | 50795 | 4534232 |
| 4 | 09/13/2020 | QCD | Quit Claim Deed | THORPE TTEE, MICHAEL | THORPE, MICHAEL | | | $0.00 | 50794 | 4534230 |
| 5 | 03/08/2019 | QCD | Quit Claim Deed | THORPE TRUSTEE, MICHAEL | THORPE TTEE, MICHAEL | | | $0.00 | 37868 | 4460489 |
| 6 | 08/20/2014 | TRUSTEED | Trustee's Deed | THORPE, MICHAEL D | THORPE TRUSTEE, MICHAEL | | | $0.00 | 18582 | 4373823 |
| 7 | 04/18/2013 | ESTSEPPROP | Establish Separate Property | THORPE, MICHAEL D | THORPE, MICHAEL D | | | $0.00 | 11067 | 4338153 |
| 8 | 04/18/2013 | WD | Warranty Deed | HONE, LILLIAN A | THORPE, MICHAEL D | | | $500,000.00 | 11066 | 4338152 |
| 9 | 11/08/2012 | QCD | Quit Claim Deed | HONE, DEAN S & LILLIAN A | HONE, LILLIAN A | | | $0.00 | 9404 | 4326860 |
| 10 | 05/01/1996 | WD | Warranty Deed | KELLY, CHRIS E | HONE, DEAN S | | | $256,000.00 | 61538 | 96007670 |
| 11 | 04/01/1995 | WD | Warranty Deed | FRIENDS, OF G | KELLY, CHRIS E | | | $70,000.00 | 51572 | 95007400 |
| 12 | 06/01/1992 | QCD | Quit Claim Deed | DEKABAN, ANATOLE S | FRIENDS, OF G | | | $0.00 | 22697 | 92013006 |
| 13 | 01/01/1900 | OTHER | Other - Misc. Documents | Unknown | DEKABAN, ANATOLE S | | | $0.00 | 0 | 0 |
Payout Agreement
| No payout information available.. |