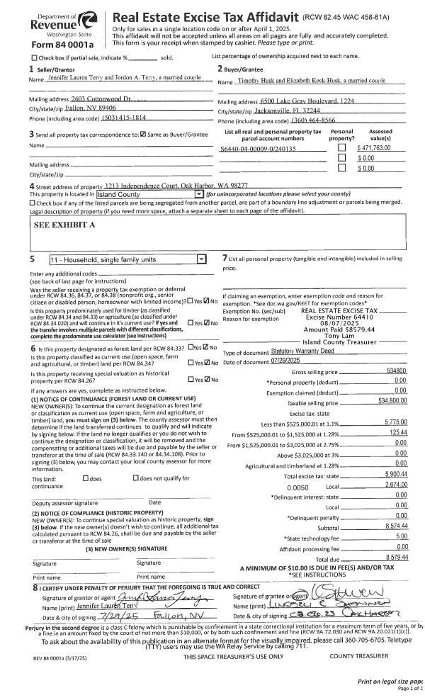
Property
Account |
| Property ID: | 5755 | Abbreviated Legal Description: | 4 T S DAVIS DC - W200' OF: BG 182.7'N SW CR SD DLC N1043.5' S89*E754.8' S1042. 3' S89*W756' TPB EX CO RD TGW & SUB SCENIC EZ AF#91002380 |
| Geographic ID: | R13105-487-5270 | Agent Code: | |
| Type: | Real | | |
| Tax Area: | 319 - APPRAISER-Cpvl Schl Dist, outside Cpvl, vacant & 50 acres or less | Land Use Code | 83 |
| Open Space: | Y | DFL | N |
| Historic Property: | N | Remodel Property: | N |
| Multi-Family Redevelopment: | N | | |
| Township: | 31 | Section: | 05 |
| Range: | R1 |
Location |
| Address: | COUPEVILLE, WA 98239 | Mapsco: | |
| Neighborhood: | Cycle 2 | Map ID: | 36 |
| Neighborhood CD: | 2 |
Owner |
| Name: | SHERMAN, VINCENT R | Owner ID: | 306187 |
| Mailing Address: | MARILYN J CLAY 82 S EBEY RD COUPEVILLE, WA 98239 | % Ownership: | 100.0000000000% |
| | | Exemptions: | |
Taxes and Assessment Details
Values
| (+) Improvement Homesite Value: | + | $0 | |
| (+) Improvement Non-Homesite Value: | + | $0 | |
| (+) Land Homesite Value: | + | $0 | |
| (+) Land Non-Homesite Value: | + | $0 | |
| (+) Curr Use (HS): | + | $0 | $0 |
| (+) Curr Use (NHS): | + | $19,200 | $1,766 |
| | | -------------------------- | |
| (=) Market Value: | = | $19,200 | |
| (–) Productivity Loss: | – | $17,434 | |
| | | -------------------------- | |
| (=) Subtotal: | = | $1,766 | |
| (+) Senior Appraised Value: | + | $0 | |
| (+) Non-Senior Appraised Value: | + | $1,766 | |
| | | -------------------------- | |
| (=) Total Appraised Value: | = | $1,766 | |
| (–) Senior Exemption Loss: | – | $0 | |
| (–) Exemption Loss: | – | $0 | |
| | | -------------------------- | |
| (=) Taxable Value: | = | $1,766 | |
Taxing Jurisdiction
| Owner: | SHERMAN, VINCENT R | | |
| % Ownership: | 100.0000000000% | | |
| Total Value: | $19,200 | | |
| Tax Area: | 319 - APPRAISER-Cpvl Schl Dist, outside Cpvl, vacant & 50 acres or less |
| CF | Conservation Futures | 0.0316035091 | $1,766 | $1,766 | $0.06 | | |
| CEM2 | Cemetery #2 | 0.0095056933 | $1,766 | $1,766 | $0.02 | | |
| HOBOND | Hospital BOND | 0.1910887512 | $1,766 | $1,766 | $0.34 | | |
| HOGEN | Hospital GEN | 0.3902502903 | $1,766 | $1,766 | $0.69 | | |
| CE | County Current Expense | 0.3708482477 | $1,766 | $1,766 | $0.65 | | |
| CR | County Roads | 0.4584763726 | $1,766 | $1,766 | $0.81 | | |
| ISLANDEMS | Hospital GEN (EMS) | 0.5000000000 | $1,766 | $1,766 | $0.88 | | |
| LIB | Library Sno-Isle GEN | 0.3153421757 | $1,766 | $1,766 | $0.56 | | |
| LIBCAP | Library Sno-Isle BOND (Cap Fac Imp Area) | 0.0543427938 | $1,766 | $1,766 | $0.10 | | |
| POCOUP | Port of Coupeville GEN | 0.1093371703 | $1,766 | $1,766 | $0.19 | | |
| POCOUPIDD | Port of Coupeville IDD | 0.3409740022 | $1,766 | $1,766 | $0.60 | | |
| COUPSDTECH | School 204 CP (TECH) | 0.7545480007 | $1,766 | $1,766 | $1.33 | | |
| SCH204MO | School 204 Enrichment | 0.6716186034 | $1,766 | $1,766 | $1.19 | | |
| ST | State School | 1.3035497053 | $1,766 | $1,766 | $2.30 | | |
| ST2 | State School Part 2 | 0.8169543533 | $1,766 | $1,766 | $1.44 | | |
| | Total Tax Rate: | 6.3184396689 | | | | | |
| | | | | Taxes w/Current Exemptions: | $11.16 | | |
| | | | | Taxes w/o Exemptions: | $11.16 | | |
Improvement / Building
Sketch
| No sketches available for this property. |
Property Image
Land
| 1 | 32 | AC (03.01-09.99) | 4.8000 | 209088.00 | 0.00 | 0.00 | 1.00 | $19,200 | $1,766 |
Roll Value History
| 2026 | N/A | N/A | N/A | N/A | N/A |
| 2025 | $0 | $19,200 | $1,766 | $1,766 | $1,766 |
| 2024 | $0 | $19,200 | $1,766 | $1,766 | $1,766 |
| 2023 | $0 | $19,200 | $1,766 | $1,766 | $1,766 |
| 2022 | $0 | $19,200 | $1,766 | $1,766 | $1,766 |
| 2021 | $0 | $19,200 | $1,766 | $1,766 | $1,766 |
| 2020 | $0 | $19,200 | $1,766 | $1,766 | $1,766 |
| 2019 | $0 | $19,200 | $1,766 | $1,766 | $1,766 |
| 2018 | $0 | $19,200 | $1,766 | $1,766 | $1,766 |
| 2017 | $0 | $38,400 | $1,766 | $1,766 | $1,766 |
| 2016 | $0 | $38,400 | $1,766 | $1,766 | $1,766 |
| 2015 | $0 | $40,800 | $1,766 | $1,766 | $1,766 |
| 2014 | $0 | $40,800 | $1,766 | $1,766 | $1,766 |
| 2013 | $0 | $40,800 | $1,766 | $1,766 | $1,766 |
| 2012 | $0 | $20,400 | $1,766 | $1,766 | $1,766 |
| 2011 | $0 | $24,000 | $1,766 | $1,766 | $1,766 |
| 2010 | $0 | $24,000 | $1,766 | $1,766 | $1,766 |
| 2009 | $0 | $48,000 | $1,766 | $1,766 | $1,766 |
| 2008 | $0 | $18,460 | $1,766 | $1,766 | $1,766 |
| 2007 | $0 | $18,480 | $1,766 | $1,766 | $1,766 |
Deed and Sales History
| 1 | 06/06/2022 | PRD | Personal Representatives Deed | SHERMAN, JEAN H | SHERMAN, VINCENT R | | | $0.00 | 54675 | 4551785 |
| 2 | 07/17/1998 | OTHER | Other - Misc. Documents | SHERMAN, EDWIN R | SHERMAN, JEAN H | | | $0.00 | 67944 | 343437 |
| 3 | 01/01/1900 | OTHER | Other - Misc. Documents | Unknown | SHERMAN, EDWIN R | | | $0.00 | 0 | 0 |
Payout Agreement
| No payout information available.. |