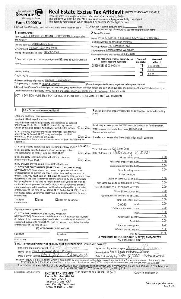
Property
Account |
| Property ID: | 575602 | Abbreviated Legal Description: | LOT 2 SP 81-17-42931.315-0520 V1 SP P254 AF#420375 REV AF#421575 |
| Geographic ID: | R42931-315-0330 | Agent Code: | |
| Type: | Real | | |
| Tax Area: | 720 - APPRAISER-S Whid Schl Dist, Special District, improved & less than 1 acre | Land Use Code | 11 |
| Open Space: | N | DFL | N |
| Historic Property: | N | Remodel Property: | N |
| Multi-Family Redevelopment: | N | | |
| Township: | 29 | Section: | 31 |
| Range: | R4 |
Location |
| Address: | 4821 VERBENA LN CLINTON, WA 98236 | Mapsco: | |
| Neighborhood: | Cycle 4 | Map ID: | 1004 |
| Neighborhood CD: | 4 |
Owner |
| Name: | JOYCE, TERRY | Owner ID: | 267704 |
| Mailing Address: | TERESA JOYCE 4821 VERBENA LN CLINTON, WA 98236 | % Ownership: | 100.0000000000% |
| | | Exemptions: | |
Taxes and Assessment Details
Values
| (+) Improvement Homesite Value: | + | $0 | |
| (+) Improvement Non-Homesite Value: | + | $747,276 | |
| (+) Land Homesite Value: | + | $0 | |
| (+) Land Non-Homesite Value: | + | $360,000 | |
| (+) Curr Use (HS): | + | $0 | $0 |
| (+) Curr Use (NHS): | + | $0 | $0 |
| | | -------------------------- | |
| (=) Market Value: | = | $1,107,276 | |
| (–) Productivity Loss: | – | $0 | |
| | | -------------------------- | |
| (=) Subtotal: | = | $1,107,276 | |
| (+) Senior Appraised Value: | + | $0 | |
| (+) Non-Senior Appraised Value: | + | $1,107,276 | |
| | | -------------------------- | |
| (=) Total Appraised Value: | = | $1,107,276 | |
| (–) Senior Exemption Loss: | – | $0 | |
| (–) Exemption Loss: | – | $0 | |
| | | -------------------------- | |
| (=) Taxable Value: | = | $1,107,276 | |
Taxing Jurisdiction
| Owner: | JOYCE, TERRY | | |
| % Ownership: | 100.0000000000% | | |
| Total Value: | $1,107,276 | | |
| Tax Area: | 720 - APPRAISER-S Whid Schl Dist, Special District, improved & less than 1 acre |
| CF | Conservation Futures | 0.0316035091 | $1,107,276 | $1,107,276 | $34.99 | | |
| FIRE3 | Fire & Rescue Dist #3 S Whidbey GEN | 1.2004855531 | $1,107,276 | $1,107,276 | $1,329.27 | | |
| HOBOND | Hospital BOND | 0.1910887512 | $1,107,276 | $1,107,276 | $211.59 | | |
| HOGEN | Hospital GEN | 0.3902502903 | $1,107,276 | $1,107,276 | $432.11 | | |
| CE | County Current Expense | 0.3708482477 | $1,107,276 | $1,107,276 | $410.63 | | |
| CR | County Roads | 0.4584763726 | $1,107,276 | $1,107,276 | $507.66 | | |
| ISLANDEMS | Hospital GEN (EMS) | 0.5000000000 | $1,107,276 | $1,107,276 | $553.64 | | |
| LIB | Library Sno-Isle GEN | 0.3153421757 | $1,107,276 | $1,107,276 | $349.17 | | |
| PORTWHID | Port of S Whidbey GEN | 0.1094540357 | $1,107,276 | $1,107,276 | $121.20 | | |
| SCH206BOND | School 206 BOND | 0.3161759235 | $1,107,276 | $1,107,276 | $350.09 | | |
| SCH206MO | School 206 Enrichment | 0.4547169547 | $1,107,276 | $1,107,276 | $503.50 | | |
| ST | State School | 1.3035497053 | $1,107,276 | $1,107,276 | $1,443.39 | | |
| ST2 | State School Part 2 | 0.8169543533 | $1,107,276 | $1,107,276 | $904.59 | | |
| SWHIDPRBD | P & R S Whidbey BOND | 0.0152817568 | $1,107,276 | $1,107,276 | $16.92 | | |
| SWHIDPRBD2 | P & R S Whidbey BOND2 | 0.0138911264 | $1,107,276 | $1,107,276 | $15.38 | | |
| SWHIDPRMT | P & R S Whidbey GEN | 0.2053334452 | $1,107,276 | $1,107,276 | $227.36 | | |
| | Total Tax Rate: | 6.6934522006 | | | | | |
| | | | | Taxes w/Current Exemptions: | $7,411.49 | | |
| | | | | Taxes w/o Exemptions: | $7,411.49 | | |
Improvement / Building
| Improvement #1: | RESIDENTIAL | State Code: | Y | 4895.6 sqft | Value: | $747,276 |
| Bathrooms: | 3.5 | Bedrooms: | 3 | | Ceiling: | DRYWALL PAINTED | Cooling: | HEAT PUMP/CONV/V | | Exterior Wall/Cover: | WOOD SIDING | Floor Covering: | HARDWOOD/CARP 80-20 | | Floor Structure: | WOOD W/SUBFLOOR | Foundation: | CONCRETE | | Interior Finish: | DRYWALL PAINT | Plumbing Fixture Cnt: | 16 | | Roof Slope: | 6" IN 12" | Roof Structure/Cover: | CJ CONCRETE TILE |
|
| | Type | Description | Class CD | Sub Class CD | Year Built | Area |
| | BAS | BASE/MAIN FLOOR | 4 | 0 | 1989 | 2776.4 |
| | DWN | DOWNSTAIRS LIVING AREA | 4 | 0 | 1989 | 2119.2 |
| | OP3 | OPEN PORCH W/ROOF | 4 | 0 | 1989 | 23.2 |
| | AGR | ATTACHED GARAGE | 4 | 0 | 1989 | 719.1 |
| | UTY | STORAGE/UTILITY | 4 | 0 | 1989 | 88.8 |
| | OWP | OPEN WOOD PORCH W/STEPS | 4 | 0 | 1989 | 808.5 |
| | OWC | OPEN WOOD PORCH W/STEPS/ROOF/C | 4 | 0 | 1989 | 41.0 |
| | OWC | OPEN WOOD PORCH W/STEPS/ROOF/C | 4 | 0 | 1989 | 73.2 |
| | OP1 | OPEN PORCH SLAB | 4 | 0 | 1989 | 313.9 |
| | DGR | DETACHED GARAGE | 4 | 0 | 1989 | 425.0 |
Sketch
Property Image
Land
| 1 | 16 | AC (00.51-01.00) | 0.0000 | 0.00 | 0.00 | 0.00 | 1.00 | $360,000 | $0 |
Roll Value History
| 2026 | N/A | N/A | N/A | N/A | N/A |
| 2025 | $747,276 | $360,000 | $0 | $1,107,276 | $1,107,276 |
| 2024 | $756,474 | $340,000 | $0 | $1,096,474 | $1,096,474 |
| 2023 | $765,671 | $300,000 | $0 | $1,065,671 | $1,065,671 |
| 2022 | $701,631 | $280,000 | $0 | $981,631 | $981,631 |
| 2021 | $617,347 | $250,000 | $0 | $867,347 | $867,347 |
| 2020 | $603,596 | $260,000 | $0 | $863,596 | $863,596 |
| 2019 | $515,250 | $290,000 | $0 | $805,250 | $805,250 |
| 2018 | $516,726 | $250,000 | $0 | $766,726 | $766,726 |
| 2017 | $518,751 | $250,000 | $0 | $768,751 | $768,751 |
| 2016 | $524,648 | $250,000 | $0 | $774,648 | $774,648 |
| 2015 | $488,662 | $200,000 | $0 | $688,662 | $688,662 |
| 2014 | $442,392 | $200,000 | $0 | $642,392 | $642,392 |
| 2013 | $447,644 | $100,000 | $0 | $547,644 | $547,644 |
| 2012 | $452,894 | $127,500 | $0 | $580,394 | $580,394 |
| 2011 | $458,014 | $150,000 | $0 | $608,014 | $608,014 |
| 2010 | $483,814 | $150,000 | $0 | $633,814 | $633,814 |
| 2009 | $504,346 | $175,000 | $0 | $679,346 | $679,346 |
| 2008 | $452,928 | $200,000 | $0 | $652,928 | $652,928 |
| 2007 | $458,801 | $200,000 | $0 | $658,801 | $658,801 |
Deed and Sales History
| 1 | 08/19/2014 | BARGSLD | Bargain And Sale Deed | HSBC BANK USA | JOYCE, TERRY | | | $495,000.00 | 16765 | 4365384 |
| 2 | 08/07/2013 | TRUSTEED | Trustee's Deed | WORKMAN, RICKY A | HSBC BANK USA | | | $646,000.00 | 12332 | 4346017 |
| 3 | 10/27/2000 | WD | Warranty Deed | JOHNSON, DAVID C | WORKMAN, RICKY A | | | $406,000.00 | 4200 | 20019211 |
| 4 | 08/01/1990 | WD | Warranty Deed | JOHNSON, DAVID C | JOHNSON, DAVID C | | | $0.00 | 5100 | 90016884 |
| 5 | 08/01/1990 | WD | Warranty Deed | SIMMONS, PAUL | JOHNSON, DAVID C | | | $365,000.00 | 4729 | 90015616 |
| 6 | 04/01/1988 | PACD | Purchaser's Assignment | EIDE, JEROME J | SIMMONS, PAUL | | | $30,000.00 | 81113 | 88004229 |
| 7 | 02/01/1984 | REC | Real Estate Contract | CUNNINGHAM, PHIL A | EIDE, JEROME J | | | $25,000.00 | 40343 | 420884 |
| 8 | 04/01/1983 | QCD | Quit Claim Deed | Unknown | CUNNINGHAM, PHIL A | | | $0.00 | 30968 | 408324 |
Payout Agreement
| No payout information available.. |